Pisos en venda a Barcelona Ciudad

341 Pisos en venda a Barcelona Ciudad

Ordenar per
  • Llistat
  • Mosaic

Propietats vistes recentment

Casa en venda
VV2505078
299.900 €

Casa en venda amb terrassa a Castellón de la Plana (Plana Alta)

Castellón de la Plana, Castellón
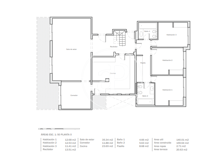
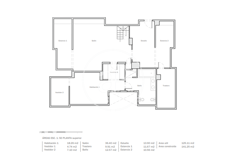
Aproperties presenta esta magnífica casa independent situada en una zona privilegiada de Castelló, a tan sols 5 minuts de la Universitat Jaume I i a 15 minuts del centre de la ciutat. Una propietat única que combina comoditat, espai, naturalesa i múltiples possibilitats, tant com vivenda familiar com per a activitats eqüestres o d'esbarjo. La vivenda, totalment reformada en 2021, compta amb una superfície aproximada de 150 m², més una terrassa de 20 m². En la planta superior, originalment disposava de 5 habitacions, encara que després de la reforma una d'elles s'ha incorporat al dormitori principal com *vestidor. Actualment, la primera planta oferix 4 amplis dormitoris, un *vestidor independent en la suite, un bany complet amb dutxa, una espaiosa cuina amb zona de menjador integrada, moderna i lluminosa, i una gran terrassa ideal per a gaudir del bon clima. La planta baixa, funcional i versàtil, compta amb accés directe des del carrer i una distribució perfecta per a convidats, ús recreatiu o fins i tot com a segona vivenda. Disposa de cuina-menjador, un bany de cortesia, un ampli dormitori, un gran rebedor, escala interior d'accés a la planta superior i accés des de la cotxera a un celler subterrani, ideal per a emmagatzematge o per a condicionar com vinoteca. En l'exterior i zones recreatives, la propietat oferix una piscina privada d'aproximadament 11x5 metres, zona ensostrada al costat de la piscina amb forn morú i barbacoa, perfecta per a reunions i celebracions, així com un porxo amb tendal per a aparcar còmodament dos vehicles i porta corredissa motoritzada de 6 metres en l'entrada principal. Zona eqüestre i terreny agrícola: disposa de 3 quadres per a cavalls i un paller, amb codi REGA en vigor per a la tinença legal de fins a 3 cavalls. El terreny compta amb aproximadament 25-30 oliveres en producció i una variada selecció d'arbres fruiters: taronger, llimera, ametler, garrofera, nispro i un bell magraner. La propietat disposa de subministrament d'aigua de xarxa (FACSA) i electricitat a través d'Iberdrola. Esta propietat ho té tot: amplitud, naturalesa, privacitat, instal·lacions completes, ubicació estratègica i encant rústic. Ideal tant per a famílies com per a amants de la vida a l'aire lliure i els animals. No deixe passar esta oportunitat única. Contacte'ns per a més informació o per a concertar una visita.
Superfície 329 m2
Parcela 2.929 m2
Dormitoris 5
Banys 2
299.900 €
Pis en lloguer
Llogada
AB2505023
1.990 €

Dúplex de lloguer al costat de Plaça Espanya

Montjuïc, Barcelona ciutat
El teu refugi amb estil al cor de Barcelona. Imagina viure en un dúplex de 90 m² on la llum natural inunda cada racó i cada detall ha estat pensat perquè et sentis com a casa des del primer moment. Situat en un edifici modern prop de la Plaça Espanya i Montjuïc, aquest espai combina disseny, funcionalitat i una ubicació immillorable. A la planta baixa et rep una sala d’estar de sostres alts, àmplia i plena de vida, decorada amb tocs naturals i bon gust. La cuina, integrada a l’ambient amb una elegant barra, està equipada amb tot el necessari per gaudir cuinant: forn, microones, rentavaixelles, cafetera, rentadora, assecadora i més. Pujant les escales, trobaràs un racó perfecte per descansar i treballar. Dues habitacions dobles —una amb llit de matrimoni i TV, l’altra amb llits individuals i amplis armaris— juntament amb un estudi acollidor, ideal per concentrar-te o crear. El dúplex disposa de dos banys complets: un amb dutxa a la planta baixa per a visites, i un altre amb banyera a la planta superior, pensat per a la teva comoditat. Tots dos estan equipats amb mirall anti-baf i sistema de ventilació. A més, compta amb aire condicionat i calefacció per aerotèrmia, xarxa Wi-Fi optimitzada a ambdós nivells, sistema de seguretat i videovigilància a l’edifici. També tens l’opció de llogar una plaça d’aparcament per a cotxe i/o moto. Viure aquí és estar envoltat de natura, cultura i tots els serveis: supermercats, bars, restaurants, farmàcies i una excel·lent connexió amb metro, tren i autobusos a només minuts de casa.* En compliment de la Llei 12/2023 i la Llei 18/2007 informem que:Lloguer de l'últim contracte d'arrendament: 1.990,00 €
Superfície 90 m2
Dormitoris 2
Banys 2
1.990 €
Pis en venda
VB2510017
585.000 €

Pis en venda al carrer Gran Via Carles III

Les Corts, Barcelona ciutat
Imagina’t entrar en un oasi de tranquil·litat al cor de Barcelona... A només 5 minuts a peu d’El Corte Inglés i de la vibrant Gran Via, trobem aquest pis ampli i silenciós, orientat cap a un pati d’illa interior que garanteix llum i calma durant tot el dia, especialment gràcies a la seva orientació sud-oest, perfecta per gaudir del sol de la tarda. Des del moment en què travesses el seu acollidor rebedor, l’espai et captiva amb una agradable sensació de llar. El saló-menjador, ampli i lluminós, s’obre a una terrassa de 12 m² on pots gaudir d’un cafè al sol o d’un sopar tranquil a l’aire lliure, amb vistes clares i sense sorolls de trànsit. L’habitatge compta amb 4 habitacions: Una suite principal amb bany complet, banyera i armaris encastats. Dues habitacions individuals, ideals com a dormitoris, despatx o zona de jocs. Una quarta habitació al costat de la cuina, perfecta per a servei o com a zona de convidats, amb lavabo privat. La cuina és independent, amb espai office i sortida a un safareig funcional, i ofereix múltiples possibilitats de reforma: es pot obrir al saló i crear un espai diàfan i modern. Disposa de tres banys: un complet amb banyera, un altre amb dutxa a la zona de nit i un lavabo addicional a l’habitació posterior. A més, gaudiràs de la comoditat de tenir conserge a la finca, un valor afegit que aporta seguretat i assistència diària. Altres detalls que marquen la diferència: Calefacció de gas Altell a la zona d’habitacions Distribució pràctica i amb gran potencial de reforma Un habitatge perfecte per a qui busca viure al centre sense renunciar al silenci, la llum i la comoditat. Truca avui mateix per concertar una visita i descobrir-ho en persona. T’encantarà!
Superfície 99 m2
Dormitoris 4
Banys 3
585.000 €
Utilitzem cookies pròpies y de tercers per fer funcionar de manera segura la nostra pàgina web i personalitzar el seu contingut. Igualment, fem servir cookies per mesurar i obtenir dades de la navegació que realitza i per ajustar la publicitat als seus gustos i preferències. Premi el botó "Acceptar totes" per confirmar que ha llegit i acceptat l'informació presentada. Per administrar o deshabilitar aquestes cookies faci clic a "Configuració". Pot obtenir més informació a la nostra política de cookies.
Modificar cookies
Tècniques i funcionals Sempre activades
Aquest lloc web utilitza cookies pròpies per recopilar informació amb la finalitat de millorar els nostres serveis. Si continua navegant, suposa l'acceptació de la instal·lació de les mateixes. L'usuari té la possibilitat de configurar el navegador podent, si així ho desitja, impedir que siguin instal·lades al disc dur, encara que haurà de tenir en compte que aquesta acció podrà ocasionar dificultats de navegació de la pàgina web.
Analítiques i personalització
Permeten fer el seguiment i l'anàlisi del comportament dels usuaris d'aquest lloc web. La informació recollida mitjançant aquest tipus de cookies s'utilitza en el mesurament de l'activitat del web per a l'elaboració de perfils de navegació dels usuaris per introduir millores en funció de l'anàlisi de les dades d'ús que fan els usuaris del servei. Permeten desar la informació de preferència de l'usuari per millorar la qualitat dels nostres serveis i oferir una millor experiència a través de productes recomanats.
Marketing i publicitat
Aquestes cookies són utilitzades per emmagatzemar informació sobre les preferències i les eleccions personals de l'usuari a través de l'observació continuada dels seus hàbits de navegació. Gràcies a elles, podem conèixer els hàbits de navegació al lloc web i mostrar publicitat relacionada amb el perfil de navegació de l'usuari.