Pis en venda a la Plaça Sagrada Família

Superfície
75 m²
Dormitoris
2
Banys
2
Pis en venda
645.000 €

T'agrada? Contacta amb nosaltres

  • He llegit i accepto la condicions d'us

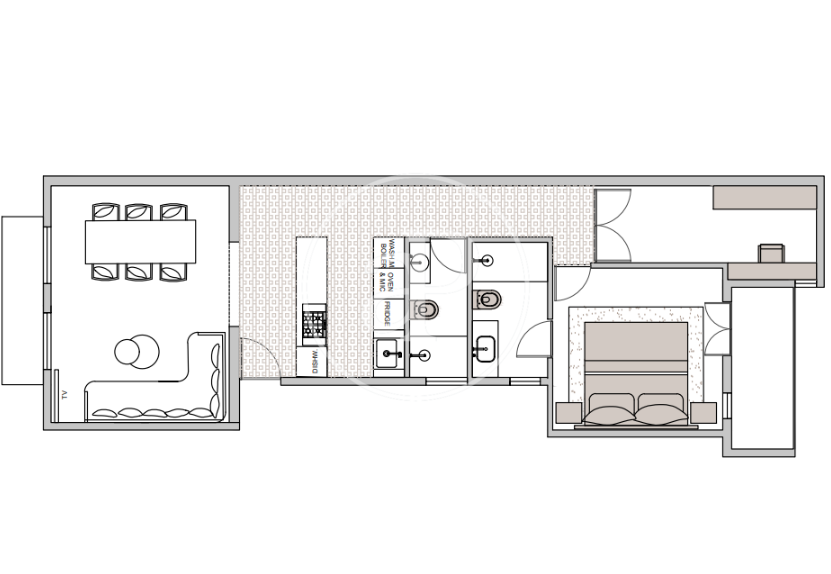
PIS PER REFORMAR O ES POT LLIURAR AMB LA REFORMA AL TEU GUST (PREU NO INCLÒS)

Presentem aquest habitatge actualment per reformar, oferint dues possibilitats: la reforma a càrrec del comprador o bé afegir la reforma integral amb acabats d’alta gamma per 100.000 €, brindant així l’oportunitat de poder decidir els acabats. L’habitatge té 71 m² més un balcó de 3 m² i una terrassa de 5 m².

En ambdós casos, el cost de demolició i la llicència d’obres estan inclosos en el preu de venda. L’habitatge conserva elements originals com els sostres amb volta catalana.

Les imatges són renders, per poder veure que hi pot haver dues habitacions i dos banys i la cuina oberta al saló menjador, des d’on s’accedeix al balcó que aporta la llum natural necessària per crear l’ambient ideal. A més, l’habitació principal té sortida a una terrassa de 5 m². Es tracta d’una finca règia, 2a planta real.

Si estàs buscant una bona ubicació per al teu nou habitatge i personalitzar la reforma, no dubtis a sol·licitar una visita i poder dissenyar la teva llar. T’hi animes?

  • Característiques
  • Terrassa
  • Ascensor
Certificat energètic
Consum energia:
E
131.00 Kw h/m² any
    Emissions:
    E
    27.00 Co/m² any
Més eficient Menys eficient Qualificació energètica Consum energia Kw h/m² any Emissions Co/m² any 131.00 27.00

Sobre La Sagrada Família

Sagrada Família, antigament conegut com el Poblet, és un dels barris que componen el districte de l'Eixample, al centre de Barcelona. Aproximadament en el centre de barri es localitza el temple mundialment conegut de la Sagrada Família de Gaudí, encara en construcció. D'aquest temple part l'Avinguda de Gaudí, que condueix a l'extrem nord de barri, on es troba l'Hospital de la Santa Creu i Sant Pau, de Lluís Domènech i Montaner, una altra magnífica obra d'el modernisme català que, juntament amb el temple de la Sagrada Família, ha estat declarada per la UNESCO com a Patrimoni de la Humanitat. Hi ha una bona comunicació d'autobusos i de metro (Sagrada Família, Hospital Sant Pau, Encants i Glòries).

Propietats vistes recentment

Casa en venda
VSC2509005
1.350.000 €

Casa en venda a Sant Cugat del Vallès

La floresta, Vallès Occidental
Des d'Aproperties tenim el plaer absolut de presentar-los en exclusiva aquesta increïble propietat, en un entorn totalment privilegiat, amb vistes que conviden al gaudi indefinit. Batejada com a "The house on the top of the hill", és a dir, "La casa a dalt del turó", ja que creiem que és la casa més alta als turons de la Floresta, amb els seus 309 m sobre el nivell del mar! Dir que els propietaris gaudeixen d'un gust exquisit, és poc. La casa està parcialment reformada amb una subtilesa admirable, una cura pels detalls suprema, que espero que gaudeixin i sàpiguen admirar. Aquest habitatge es desenvolupa sobre una parcel·la de 3.900m² dels quals una gran part són forestals, la qual cosa es tradueix en un entorn verd, protegit, on no es pot edificar, envoltada indefinidament la casa d'espais verds garantits. Té 360m² construïts que es divideixen en tres plantes i 120 m² de terrasses. El nostre recorregut comença per la zona de recepció, que ens convida a triar la zona a la qual ens dirigirem, donant accés des d'aquí a les tres plantes que componen l'habitatge. Optem per conèixer aquesta, la planta principal, dedicada exclusivament a la zona de dia i a la zona dels adults de la casa, amb la seva suite principal digna de somnis. La planta ofereix un gran saló menjador, amb una xemeneia tradicional. Des del saló, una sortida directa a la terrassa que envolta pràcticament totes les estances, des de la qual, les vistes l'hipnotitzaran. Seguim el nostre recorregut cap a la gran cuina menjador recentment reformada, amb sortida directa al jardí, del qual parlarem després. La Master Suite, mereix un capítol a part, acabada de treure d'un llibre de decoració! Està totalment remodelada, amb 55m² i racons suficients per no voler ni necessitar sortir... Compta amb vistes, sortida a una terrassa, zona de vestidor i un bany que fins i tot em fa respecte descriure... A la planta superior, els més petits de la casa poden escollir entre una habitació doble amb un bany que la serveix o una gran sala polivalent, amb dues habitacions que comparteixen un bany complet, gairebé un pis a part dins de la mateixa casa. A l'última planta, una habitació individual per a convidats, una oficina, zones de trasters, celler i un gran espai exterior, possible menjador d'estiu, o d'hivern, si decidissin tancar-lo amb capacitat per a uns 40 comensals aprox. La casa es completa amb tres places de pàrquing, exteriors però cobertes i dues places de pàrquing per a convidats, tot un luxe del qual molt poques cases a La Floresta poden presumir. Ara, toca el moment de l'exterior... hi ha diverses zones de gaudi, acuradament dissenyades. "El porxo" just a la sortida de la cuina, en una zona plana des d'on veure l'horitzó, menjar, prendre alguna cosa... "El passeig de les flors", un altre detall per delectar-se. Es tracta d'un recorregut de camins, en el qual han escollit cada planta. També hi ha un superhort. Curiosament els propietaris no han escollit fer una piscina, però hi ha lloc de sobres, si aquest és el seu desig. Molt important: la casa ha estat remodelada per sectors, encara queda feina, però ja veuen com pot quedar amb una inversió segons els plans de cadascú. Detalls de la remodelació: Cuina: Santos acabat nacre seda mate lacat, model Plat A870 quadre, amb motllura fina, tiradors daurats, llums sota moble en cocció i prestatges interiors moble esmorzar, taulell Neolight Himàlaia ultrasoft de 20mm de gruix, pica en el mateix color, marca Subline 700-u, forn multifunció Studio Line Siemens, microones Studio Line Siemens, escalfaplats - Studio Line Siemens, rentaplats integrat – Siemens, campana Siemens 749m3/h, visera cristall negre, 90cm, placa de gas 5 focs, 75cm, de Dietrich, llums de disseny, finestres i porta francesa d'alumini, acabat en color blanc trencat texturitzat, 4x4 climalit, antirobatori. Dormitori principal: parquet Roure fusta natural, col·locat a mà en espiga, finestres d'alumini 4x4 climalit antirobatori. Bany suite: Banyera Admiral- ferro colat -marca Devon & Devon -made in Italy, aixeteria de llautó acabat en light gold - marca Devon & Devon- made in Italy, Lavabo de disseny, bidet i inodor marca Viadurini -made in Italy, Ceràmica Rhombus white, feta a mà de la col·lecció l'antic Colonial, Porcelanosa, terra - pedra natural, marbre, Nairobi crema, Porcelanosa, paper pintat de la marca parisenca Ananbo. Bany principal: Banyera Admiral- ferro colat -marca Devon & Devon -made in Italy, aixeteria de llautó acabat en light gold - marca Devon & Devon- made in Italy, finestres alumini, (acabat color blanc trencat texturitzat) 4x4 climalit, antirobatori. Bany 2: Revestiment parets i dutxa -calacatta gold de la marca Museum, aixeteria marca Twins. Jardí: pèrgola metall per a chillout- marca Unopiu, coberta per a cotxes -cover car de fusta – marca Unopiu Tots els Aires condicionats són de la marca Mitsubishi Tendals elèctrics Panells solars: 12 amb Bateria d'acumulació. 1 unitat de 5kw Dipòsit d'aigua de pluja Totes les finestres que estan canviades són 4x4 antirobatori i climalit. Ubicació: La Floresta és un districte residencial de Sant Cugat del Vallès de Barcelona, al Vallès Occidental, a 124 m sobre el nivell del mar. En la seva part baixa, discorre el rierol de Vallvidrera. Està ubicada a la serra de Collserola, caracteritzat per estar envoltat de vegetació. Aquest barri limita amb l'EMD de Valldoreix, el barri de Les Planes i amb el nucli de població de Sant Cugat del Vallès. La seva orografia fa que les parcel·les no acostumin a ser del tot planes, però com a contrapartida la majoria de les cases tenen unes magnífiques vistes. La peculiaritat de l'entorn natural que envolta aquesta zona i l'encant de les seves cases ha fet que siguin molts els clients, sobretot estrangers, els que decideixen instal·lar-s'hi. Per descomptat disposa de serveis, escoles, una piscina pública, instal·lacions esportives i parcs. Estació de Ferrocarrils Catalans de la Generalitat que l'enllacen directament amb el centre de Barcelona amb la mateixa afluència que Sant Cugat o Valldoreix. Són diverses les línies internes que interconnexionen les diferents zones de la localitat i que ens porten al centre de Sant Cugat. Finalment, podem optar pel cotxe per arribar al centre de Barcelona a través de l'autopista E9 i AP7. També per la Crta de l'Arrabassada, la Crta. de Vallvidrera o directament per l'autopista dels Túnels de Vallvidrera, en funció de la zona de Barcelona on anem. A Aproperties estarem encantats de concertar una visita.
Superfície 474 m2
Parcela 3.900 m2
Dormitoris 6
Banys 3
1.350.000 €
Pis en lloguer
Llogada
AB2511019
2.700 €

Pis de lloguer a Glòries

El Fort Pienc, Barcelona ciutat
Es tracta d’un habitatge d’obra nova a estrenar en un edifici de La Llave de Oro, ubicat a la nova zona residencial de Glòries. L’habitatge es lliura completament moblat i equipat, llest per entrar-hi a viure. A la zona de dia trobem un ampli saló-menjador amb accés a una terrassa orientada a l’oest, la qual gaudeix de molta llum natural i vistes al Tibidabo, la Sagrada Família i Montjuïc. Des de la terrassa es pot veure la posta de sol. La cuina està totalment equipada amb rentadora-assecadora i tots els electrodomèstics. A la zona de nit trobem tres habitacions àmplies amb armaris encastats: una d’elles amb dos llits i lesaltres dues amb llits dobles. També disposa de dos banys, un en suite a l’habitació principal i un altre bany general que dona servei a les altres dues habitacions. Entre les característiques de l’habitatge cal destacar-ne l’eficiència energètica, ja que disposa de plaques solars, aire condicionat per conductes i calefacció, persianes elèctriques a totes les finestres, i una àmplia zona comunitària amb dues piscines a la terrassa de l’edifici. El preu inclou una plaça d’aparcament. Contracte de lloguer de llarga durada de 5 anys, amb el primer any obligatori.* En compliment de la Llei 12/2023 i la Llei 18/2007 informem que:Índex de R.P.LL: 22,00 € / m2 Preu de referència estatal 1.864,00 €Lloguer de l'últim contracte d'arrendament: 2.500,00 €
Superfície 111 m2
Dormitoris 3
Banys 2
2.700 €
Casa en venda
VSC2512009
1.400.000 €

Casa en venda a La Floresta

La floresta, Vallès Occidental
Casa passiva sostenible amb terreny privat i vistes al Parc de Collserola En un entorn natural privilegiat, al costat del Parc de Collserola, es troben dues vivendes passives adossades dissenyades sota els més alts estàndards d’eficiència energètica, confort i sostenibilitat. Formen part d’una única parcel·la indivisible, fet que les converteix en una oportunitat exclusiva per a aquells que busquen viure en plena harmonia amb la natura sense renunciar al disseny, la tecnologia i la qualitat constructiva. Cada vivenda compta amb 250 m² construïts, incloent-hi dues plantes i un garatge privat de 60 m². A la planta baixa s’ubiquen les zones de dia: saló-menjador de concepte obert, grans finestrals orientats al sud que maximitzen la llum natural, cuina integrada d’alt rendiment i lavabo de cortesia, amb accés directe al jardí privat i a l’entorn del parc. La planta superior comprèn tres dormitoris —inclosa una suite principal amb bany i vestidor— i un segon bany complet. Tots els espais prioritzen el confort tèrmic i acústic, amb materials naturals, aïllaments d’alta densitat i carpinteries de triple vidre. La propietat inclou a més un terreny rústic de 10.000 m² dins de l’entorn protegit del Parc de Collserola, d’ús privat. Aquest espai natural, propi d’un bosc mediterrani, permet gaudir de passejades i activitats a l’aire lliure amb total privacitat, aportant un valor excepcional al conjunt. Les dues vivendes es comercialitzen de forma conjunta, amb un preu de 700.000 € per unitat. La constructora i promotora del projecte compta amb més de 25 anys d’experiència en edificació sostenible. Referent en vivendes d’alta eficiència energètica, ha desenvolupat promocions a Sant Cugat del Vallès i la Costa del Garraf, destacant per la seva qualitat, disseny i fiabilitat. El seu model de gestió integral abasta totes les fases del projecte, garantint innovació, personalització i respecte per l’entorn. A Aproperties comptem amb els millors agents immobiliaris per brindar-li una atenció professional, personalitzada i eficient, on vostè és el protagonista. No dubti a posar-se en contacte amb nosaltres per rebre informació més detallada sobre aquest immoble.
Superfície 500 m2
Parcela 21 m2
Dormitoris 8
Banys 4
1.400.000 €
x

DATOS DEL PROPIETARIO DE LA WEB

  • RAZÓN SOCIAL: APROPERTIES REAL ESTATE ASSETS SL
  • NIF: B66207879
  • DIRECCIÓN  POSTAL: PASSEIG DE GRACIA 85 PLANTA 8 08008, BARCELONA
  • DIRECCIÓN ELECTRÓNICA: [email protected] 
  • OBJETO PRINCIPAL: PLATAFORMA INMOBILIARIA

De conformidad con la normativa vigente y aplicable en protección de datos de carácter personal, le informamos  que sus datos serán incorporados al sistema de tratamiento titularidad de APROPERTIES REAL ESTATE  ASSETS SL. con NIF B66207879 y domicilio social sito en PASSEIG DE GRACIA 85 PLANTA 8 08008,  BARCELONA, y que a continuación se relacionan sus respectivas finalidades, plazos de conservación y bases  legitimadoras. Para aquellos tratamientos que lo requieran, se informa también de la posible elaboración de  perfiles y decisiones automatizadas, así como las posibles cesiones y las transferencias internacionales que  APROPERTIES REAL ESTATE ASSETS S.L. tiene previsto realizar: 

TRATAMIENTOS REALIZADOS

Gestión de la página web

  • Finalidad: Tratamiento y gestión de los datos necesarios para la funcionalidad de la página  web 
  • Plazo de conservación: mientras perdure el consentimiento prestado  
  • Base legítima: El consentimiento del interesado 
  • Tipología de Datos: Datos meramente identificativos 
  • Cesiones: No se prevén 
  • Transferencias internacionales: No se prevén 
  • Elaboraciones de perfiles: No se prevén

Formulario contacto y cotización

  • Finalidad: Atender sus consultas y/o solicitudes 
  • Plazo de conservación: mientras se mantenga el consentimiento prestado. Base legítima: El consentimiento del interesado 
  • Tipología de Datos: Datos meramente identificativos 
  • Cesiones: Ninguna 
  • Transferencias internacionales: No se prevén 
  • Elaboraciones de perfiles: No se prevén

Gestión del cumplimiento normativo

  • Finalidad: Gestión y tramitación de las obligaciones y deberes que se deriven del  cumplimiento de la normativa a la cual está sujeta la entidad 
  • Plazo de conservación: conservación de las copias de los documentos hasta que  prescriban las acciones para reclamarle una posible responsabilidad 
  • Base legítima: El cumplimiento de una ley 
  • Tipología de Datos: Datos meramente identificativos 
  • Cesiones: sus datos serán comunicados en caso de ser necesario a Organismos y/o  administración pública con competencia en la materia con la finalidad de cumplir con las  obligaciones establecidas en la normativa aplicable. Además, se informa que la base  legitimadora de la cesión es cumplir con las obligaciones establecidas en la normativa  aplicable 
  • Transferencias internacionales: No se prevén 
  • Elaboraciones de perfiles: No se prevén

Acciones Comerciales

  • Finalidad: Captación, registro y tratamiento de datos con finalidades de publicidad y  prospección comercial de nuestros productos y/o servicios 
  • Plazo de conservación: mientras se mantenga el consentimiento prestado Base legítima: El consentimiento del interesado 
  • Tipología de Datos: Datos meramente identificativos 
  • Cesiones: Ninguna 
  • Transferencias internacionales: No se prevén 
  • Elaboraciones de perfiles: No se prevén

Gestión Bolsa de empleo

  • Finalidad: Registro y tratamiento de datos de candidatos para finalidades de selección de  personal referentes a puestos de trabajo vacantes de las entidades colaboradoras y gestión  de la bolsa de empleo 
  • Plazo de conservación: mientras perdure el consentimiento prestado 
  • Base legítima: El consentimiento del interesado 
  • Tipología de Datos: Datos meramente identificativos 
  • Cesiones: sus datos serán comunicados en caso de ser necesario a Entidades  Colaboradoras con la finalidad de gestionar la bolsa de empleo y trasladar la candidatura a  la empresa colaboradora. Además, se informa que la base legitimadora de la cesión es su  consentimiento 
  • Transferencias internacionales: No se prevén 
  • Elaboraciones de perfiles: No se prevén

GESTIÓN DE DATOS

De acuerdo con lo establecido por el Reglamento (UE) 2016/679 del Parlamento Europeo y del Consejo, de 27 de abril de 2016, relativo a la protección de las personas físicas en lo que respecta al tratamiento de datos personales y a la libre circulación de estos datos y por el que se deroga la Directiva 95/46/CE, APROPERTIES REAL ESTATE ASSETS SL informa al Usuario en relación a los sitios web www.aproperties.es y derivados (en adelante, sitios web), que la información que se pueda recabar en los sitios web se incorporará en los sistemas de tratamiento responsabilidad de APROPERTIES REAL ESTATE ASSETS SL, con las finalidades de realizar la gestión y el mantenimiento de la relación con el Usuario con los sitios web, así como las labores de información, estadística, y comercialización de los servicios y de las actividades relacionadas con los mismos.

APROPERTIES REAL ESTATE ASSETS SL informa de que la base legítima que ampara los tratamientos indicados es la existencia de un interés legítimo, asimismo en cuanto a la instalación de cookies se encuentran legitimados en la existencia del consentimiento prestado por parte de los interesados o, en su caso, de los representantes legales de los mismos.

  • APROPERTIES REAL ESTATE ASSETS SL informa de que los datos serán conservados mientras perdure el consentimiento prestado por el Usuario, exceptuando aquellos casos en los que estemos obligados legalmente a su conservación.
  • De acuerdo con los derechos que le confiere la normativa vigente en protección de datos, el Usuario podrá dirigirse a la Autoridad de Control competente para presentar la reclamación que considere oportuna, así como también podrá ejercer los derechos de acceso, rectificación, limitación de tratamiento, supresión, portabilidad y oposición al tratamiento de sus datos de carácter personal, así como a la retirada del consentimiento prestado para el tratamiento de los mismos.

De acuerdo con lo establecido por el artículo 32 del Reglamento (UE) 2016/679 del Parlamento Europeo y del Consejo, de 27 de abril de 2016, relativo a la protección de las personas físicas en lo que respecta al tratamiento de datos personales y a la libre circulación de estos datos y por el que se deroga la Directiva 95/46/CE, APROPERTIES REAL ESTATE ASSETS SL se compromete a adoptar las medidas técnicas y organizativas necesarias, acorde al nivel de riesgos que acompañan los tratamientos realizados por éstas e indicados en el apartado de los términos y condiciones de uso, de forma que garanticen su integridad, confidencialidad y disponibilidad.
 
Asimismo, APROPERTIES REAL ESTATE ASSETS SL informa que en el caso que el Usuario introduzca datos en los formularios de los sitios web de terceros, serán estos últimos los responsables de los datos de carácter personal, y quienes deberán adoptar las medidas técnicas descritas en el siguiente apartado.

DERECHOS DE LOS INTERESADOS

APROPERTIES REAL ESTATE ASSETS S.L. informa a los Usuarios que, podrá ejercer los derechos  de acceso, rectificación, limitación, supresión, portabilidad y oposición al tratamiento de sus datos de carácter personal ante el Responsable del Tratamiento, así como a la retirada del consentimiento prestado. 

  • Derecho de Acceso: Es el derecho del usuario a obtener información sobre sus datos concretos de carácter personal y del tratamiento que se haya realizado o realice, así como de la información disponible sobre el origen de dichos datos y las comunicaciones realizadas o previstas de los mismos. 
  • Derecho de Rectificación: Es el derecho del afectado a que se modifiquen los datos que resulten ser inexactos o incompletos. Sólo podrá satisfacerse en relación a aquella información que se encuentre bajo el control de la APP, por ejemplo, eliminar comentarios publicados en la propia página, imágenes o contenidos web donde consten datos de carácter personal del usuario. 
  • Derecho a la Limitación de tratamiento: Es el derecho a que se limiten los fines del tratamiento previstos de forma original por el responsable del tratamiento. 
  • Derecho de Supresión: Es el derecho a suprimir los datos de carácter personal del usuario, a excepción de lo previsto en el propio RGPD o en otras normativas aplicables que determinen la obligatoriedad de la conservación de los mismos, en tiempo y forma. 
  • Derecho de portabilidad: El derecho a recibir los datos personales que el usuario, haya facilitado, en un formato estructurado, de uso común y lectura mecánica, y a transmitirlos a otro responsable. 
  • Derecho de Oposición: Es el derecho del usuario a que no se lleve a cabo el tratamiento de sus datos de carácter personal o se cese el tratamiento de los mismos por parte de la APP. 

Para poder ejercer cualquiera de los derechos descritos anteriormente deberá cumplir con los siguientes requisitos: 

- Presentación de un escrito a la dirección indicada en la parte superior de esta (a la atención de APROPERTIES REAL ESTATE ASSETS S.L.) o bien a través de correo electrónico a [email protected]

- El escrito remitido por el titular de los datos que solicite el ejercicio deberá de cumplir los siguientes requisitos legales:

  • Nombre, apellidos del interesado y copia del DNI/NIE o cualquier documento identificativo. En los excepcionales casos en que se admita la representación, será también necesaria la identificación por el mismo medio de la persona que le representa, así como el documento acreditativo de la representación. La fotocopia del DNI podrá ser sustituida siempre que se acredite la identidad por cualquier otro medio válido en derecho. 
  • Petición en que se concreta la solicitud. (Ejercicio en el que se solicita la información a la que se quiere acceder). Si no hace referencia a un fichero concreto se le facilitará toda la información que se tenga con sus datos de carácter personal. Si solicita información de un fichero en concreto, sólo la información de este fichero. Si solicita información relativa a un tercero nunca se podrá facilitar. Si lo solicita por teléfono se le indicará que lo haga por escrito y se le informará de cómo lo puede hacer y la dirección a la que tiene que enviarlo. Nunca se le dará información por teléfono. 
  • Domicilio a efectos de notificaciones. 
  • Fecha y firma del solicitante. 
  • Documentos acreditativos de la petición que formula. 
  • El interesado debe utilizar cualquier medio que permita acreditar el envío y la recepción de la solicitud. 

Por último, le informamos que Usted tiene derecho a presentar una reclamación ante la Agencia Española de  Protección de Datos en caso de que tenga conocimiento o considere que un hecho pueda suponer un  incumplimiento de la normativa aplicable en materia de protección de datos.

APROPERTIES REAL ESTATE ASSETS S.L. se compromete a adoptar las medidas técnicas y organizativas  necesarias, acorde al nivel de riesgos que acompañan los tratamientos realizados por éstas e indicados en el  apartado de los términos y condiciones de uso, de forma que garanticen su integridad, confidencialidad y disponibilidad.

POLÍTICA DE REDES SOCIALES

De conformidad con lo establecido en la normativa vigente y aplicable de protección de datos de carácter  personal y la Ley 34/2002, de 11 de julio, de Servicios de la Sociedad de la Información y de Comercio  Electrónico (LSSI-CE), APROPERTIES REAL ESTATE ASSETS S.L. informa a los usuarios, que ha procedido a  crear un perfil en la/s Red/es Social/es Facebook, Instagram, Linkedin y YouTube, con la finalidad principal de  publicitar sus productos y servicios. 

El usuario dispone de un perfil en la misma Red Social y ha decidido unirse a la página creada por  APROPERTIES REAL ESTATE ASSETS S.L., mostrando así interés en la información que se publicite en la  Red. Al unirse a nuestra página, nos facilita su consentimiento para el tratamiento de aquellos datos personales  publicados en su perfil. 

El usuario puede acceder en todo momento a las políticas de privacidad de la propia Red Social, así como  configurar su perfil para garantizar su privacidad. 

APROPERTIES REAL ESTATE ASSETS S.L. tiene acceso y trata aquella información pública del usuario, en  especial, su nombre de contacto. Estos datos, sólo son utilizados dentro de la propia Red Social. No son  incorporados a ningún sistema de tratamiento. 

Derechos de los interesados 

En relación a los acceso, rectificación, limitación de tratamiento, supresión, portabilidad y oposición al tratamiento  de sus datos de carácter personal, de los que usted dispone y que pueden ser ejercitados ante APROPERTIES  REAL ESTATE ASSETS S.L., de acuerdo con la RGPD, debe tener en cuenta los siguientes matices: 

  • Derecho de Acceso: Es el derecho del usuario a obtener información sobre sus datos concretos de carácter personal y del tratamiento que se haya realizado o realice, así como de la información disponible sobre el origen de dichos datos y las comunicaciones realizadas o previstas de los mismos. 
  • Derecho de Rectificación: Es el derecho del afectado a que se modifiquen los datos que resulten ser inexactos o incompletos. Sólo podrá satisfacerse en relación a aquella información que se encuentre bajo el control de APROPERTIES REAL ESTATE ASSETS S.L., por ejemplo, eliminar comentarios publicados en la propia página, imágenes o contenidos web donde consten datos de carácter personal del usuario. 
  • Derecho a la Limitación de tratamiento: Es el derecho a que se limiten los fines del tratamiento previstos de forma original por el responsable del tratamiento. 
  • Derecho de Supresión: Es el derecho a suprimir los datos de carácter personal del usuario, a excepción de lo previsto en el propio RGPD o en otras normativas aplicables que determinen la obligatoriedad de la conservación de los mismos, en tiempo y forma. 
  • Derecho de portabilidad: El derecho a recibir los datos personales que el usuario, haya facilitado, en un formato estructurado, de uso común y lectura mecánica, y a transmitirlos a otro responsable. 
  • Derecho de Oposición: Es el derecho del usuario a que no se lleve a cabo el tratamiento de sus datos de carácter personal o se cese el tratamiento de los mismos por parte de APROPERTIES REAL ESTATE ASSETS S.L.. 

APROPERTIES REAL ESTATE ASSETS S.L. realizará las siguientes actuaciones: 

  • Acceso a la información pública del perfil. 
  • Publicación en el perfil del usuario de toda aquella información ya publicada en la página de APROPERTIES REAL ESTATE ASSETS S.L..
  • Enviar mensajes personales e individuales a través de los canales de la Red Social. 
  • Actualizaciones del estado de la página que se publicarán en el perfil del usuario. 

El usuario siempre puede controlar sus conexiones, eliminar los contenidos que dejen de interesarle y restringir  con quién comparte sus conexiones, para ello deberá acceder a su configuración de privacidad. 

Publicaciones 

El usuario, una vez unido a la página de APROPERTIES REAL ESTATE ASSETS S.L., podrá publicar en ésta  última comentarios, enlaces, imágenes o fotografías o cualquier otro tipo de contenido multimedia soportado por  la Red Social. El usuario, en todos los casos, debe ser el titular de los mismos, gozar de los derechos de autor y  de propiedad intelectual o contar con el consentimiento de los terceros afectados. Se prohíbe expresamente  cualquier publicación en la página, ya sean textos, gráficos, fotografías, vídeos, etc. que atenten o sean  susceptibles de atentar contra la moral, la ética, el buen gusto o el decoro, y/o que infrinjan, violen o quebranten  los derechos de propiedad intelectual o industrial, el derecho a la imagen o la Ley. En estos casos,  APROPERTIES REAL ESTATE ASSETS S.L. se reserva el derecho a retirar de inmediato el contenido,  pudiendo solicitar el bloqueo permanente del usuario. 

APROPERTIES REAL ESTATE ASSETS S.L. no se hará responsable de los contenidos que libremente ha  publicado un usuario. 

El usuario debe tener presente que sus publicaciones serán conocidas por los otros usuarios, por lo que él  mismo es el principal responsable de su privacidad. 

Las imágenes que puedan publicarse en la página no serán almacenadas en ningún sistema de tratamiento por  parte de APROPERTIES REAL ESTATE ASSETS S.L., pero sí que permanecerán en la Red Social. 

Concursos y promociones 

APROPERTIES REAL ESTATE ASSETS S.L. se reserva el derecho a realizar concursos y promociones, en los  que podrá participar el usuario unido a su página. Las bases de cada uno de ellos, cuando se utilice para ello la  plataforma de la Red Social, serán publicadas en la misma. Cumpliendo siempre con la LSSI-CE y con cualquier  otra norma que le sea de aplicación. 

La Red Social no patrocina, avala ni administra, de modo alguno, ninguna de nuestras promociones, ni está  asociada a ninguna de ellas.

Publicidad 

APROPERTIES REAL ESTATE ASSETS S.L. utilizará la Red Social para publicitar sus productos y servicios, en  todo caso, si decide tratar sus datos de contacto para realizar acciones directas de prospección comercial, será  siempre, cumpliendo con las exigencias legales del RGPD y de la LSSI-CE. 

No se considerará publicidad el hecho de recomendar a otros usuarios la página de APROPERTIES REAL  ESTATE ASSETS S.L. para que también ellos puedan disfrutar de las promociones o estar informados de su  actividad. 

A continuación detallamos el enlace a la política de privacidad de la Red Social: 

ÚLTIMA ACTUALIZACIÓN: 21 de enero de 2022.

Utilitzem cookies pròpies y de tercers per fer funcionar de manera segura la nostra pàgina web i personalitzar el seu contingut. Igualment, fem servir cookies per mesurar i obtenir dades de la navegació que realitza i per ajustar la publicitat als seus gustos i preferències. Premi el botó "Acceptar totes" per confirmar que ha llegit i acceptat l'informació presentada. Per administrar o deshabilitar aquestes cookies faci clic a "Configuració". Pot obtenir més informació a la nostra política de cookies.
Modificar cookies
Tècniques i funcionals Sempre activades
Aquest lloc web utilitza cookies pròpies per recopilar informació amb la finalitat de millorar els nostres serveis. Si continua navegant, suposa l'acceptació de la instal·lació de les mateixes. L'usuari té la possibilitat de configurar el navegador podent, si així ho desitja, impedir que siguin instal·lades al disc dur, encara que haurà de tenir en compte que aquesta acció podrà ocasionar dificultats de navegació de la pàgina web.
Analítiques i personalització
Permeten fer el seguiment i l'anàlisi del comportament dels usuaris d'aquest lloc web. La informació recollida mitjançant aquest tipus de cookies s'utilitza en el mesurament de l'activitat del web per a l'elaboració de perfils de navegació dels usuaris per introduir millores en funció de l'anàlisi de les dades d'ús que fan els usuaris del servei. Permeten desar la informació de preferència de l'usuari per millorar la qualitat dels nostres serveis i oferir una millor experiència a través de productes recomanats.
Marketing i publicitat
Aquestes cookies són utilitzades per emmagatzemar informació sobre les preferències i les eleccions personals de l'usuari a través de l'observació continuada dels seus hàbits de navegació. Gràcies a elles, podem conèixer els hàbits de navegació al lloc web i mostrar publicitat relacionada amb el perfil de navegació de l'usuari.