Pis en venda al carrer Nàpols

Superfície
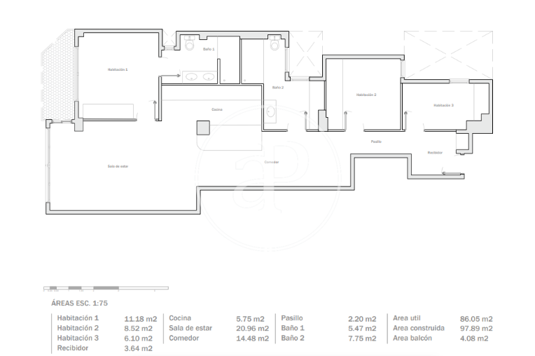
102 m²
Dormitoris
3
Banys
3
Pis en venda
775.000 €

T'agrada? Contacta amb nosaltres

  • He llegit i accepto la condicions d'us

Play icon Veure video de la propietat

ESPECTACULAR HABITATGE REFORMAT AL COR DEL EIXAMPLE DRETA

Presentem aquesta extraordinària propietat totalment reformada el 2025, amb 102m² construïts segons cadastre, situada en un edifici de 1974 amb ascensor i en un excel·lent estat de conservació.

L'habitatge es troba en una ubicació privilegiada, al Eixample Dret, en una zona cèntrica i perfectament comunicada, que ofereix un accés ràpid als principals punts d'interès de la ciutat.

Llum Natural i Confort en Tota la Llar
Un dels aspectes més destacats d'aquesta propietat és la seva magnífica luminositat. Situada a la quarta planta real amb orientació suroest, gaudeix d'una excel·lent entrada de llum natural al llarg del dia.

La reforma s'ha realitzat amb materials de primera qualitat i acabats de disseny, destacant el sòl d'alta resistència i un sistema d'aerotèrmia modern per al subministrament d'aigua calenta. A més, l'habitatge compta amb un sistema de climatització per conductes, amb control independent per zones de dia i de nit, garantint el màxim confort en tot moment.

Espai i Disseny en Cada Detall
L'habitatge disposa de tres àmplies habitacions, totes elles equipades amb armaris encastats a mida i il·luminació interior. La suite principal és doble, amb un gran finestral i bany privat. Completant la zona de nit, una habitació doble i una individual de bon tamany.

El centre de l'habitatge és la cuina oberta d'estil americà, dissenyada amb un gust contemporani i equipada amb electrodomèstics Bosch de darrera generació, amb tecnologia intel·ligent programable des del mòbil.

Detalls de Disseny que Marquen la Diferència
El mobiliari de disseny danès de KVIK i la griferia GROHE en acabat metàl·lic mate es fusionen a la perfecció amb els ventanals de doble vidre (les finestres oscil·lobatents proporcionen un excel·lent aïllament tèrmic i acústic) i els detalls de disseny coherents a tota l'habitatge, aportant una estètica moderna, funcional i elegant.

T'imagines Vivint Aquí?
No deixis passar l'oportunitat de descobrir aquesta propietat única. ¡Sol·licita una visita i enamora't d'aquest espai dissenyat per al teu màxim confort!

  • Característiques
  • Vistes
  • Calefacció
  • Aacc
  • Ascensor

Sobre El Fort Pienc

El Fort Pienc és un barri de petites dimensions, però amb molts espais verds. La plaça del Fort Pienc, de traçat irregular, i els jardins de la carretera Antiga d'Horta són alguns dels interiors d'illa més característics.

Propietats vistes recentment

Casa en lloguer
AB2509060
2.950 €

Casa en lloguer al Baix Guinardó

Horta-Guinardó, Barcelona ciutat
Descobreix aquesta espectacular casa recentment reformada, amb un encantador jardí que t'invita a gaudir de la tranquil·litat i el confort. La propietat ofereix un ampli saló menjador amb xemeneia, que s'obre directament al jardí, creant un espai perfecte per relaxar-te i gaudir de la natura. La cuina és independent, amb una pràctica zona office, i està completament equipada amb electrodomèstics d'alta qualitat, ideal per als amants de la cuina. A més, a la mateixa planta es troba un bany de cortesia. La casa compta amb quatre habitacions, totes exteriors, la qual cosa garanteix una excel·lent il·luminació natural. La suite principal es troba a la segona planta de la casa i disposa d’un bany privat amb banyera i accés a una terrassa solàrium, on podràs gaudir de moments de relax i vistes privilegiades. Els altres dormitoris també són amplis i lluminosos, situats a la primera planta de la casa, amb un d'ells oferint accés a un balcó amb vistes al jardí. Les habitacions comparteixen un bany complet, un d'ells amb dutxa. Amb més de 150 m2 d'espai habitable, aquesta vivenda és ideal per a famílies que busquen comoditat i amplitud. Compten amb calefacció de gas i aire condicionat a la suite. Disponible des de l'1 de novembre i es lloga semi-moblat amb contracte de llarga durada. Es troba en una excel·lent ubicació, en una zona residencial tranquil·la, envoltada de zones verdes com el Parc de les Aigües i els Jardins del Doctor Pla i Armengol. La casa està molt ben comunicada, amb fàcil accés al metro i autobusos, i propera a l'Hospital de Sant Pau. Una oportunitat única de viure en un entorn privilegiat i ben connectat. No deixis passar aquesta oportunitat!* En compliment de la Llei 12/2023 i la Llei 18/2007 informem que:Índex de R.P.LL: 19,27 € / m2 Respecto a la presente propiedad no existe certificado informativo estatal de referencia de precios de alquilerLloguer de l'últim contracte d'arrendament: 3.100,00 €
Superfície 153 m2
Dormitoris 4
Banys 3
2.950 €
Pis en venda
VPM2509005
1.600.000 €

Pis en venda a San Agustín (Palma de Mallorca)

San Agustín, Mallorca
Extraordinària propietat única al mercat. En primera línia i amb accés directe a la mar. Situada a la sisena planta d’un edifici de vuit altures, accedim a la propietat per una de les dues portes, la principal o la de servei. Iniciem la visita a través del rebedor, que comunica amb un ampli saló-menjador, la cuina i el passadís que condueix a la part privada de la casa. Des del saló-menjador, i gràcies als seus grans finestrals, es pot gaudir de les meravelloses vistes a la badia de Palma, contemplant el Palau de Marivent, el port de Cala Nova i la platja de Cala Major. A través del passadís accedim a la zona privada de la casa, formada per quatre habitacions, tres dobles i una individual, i tres banys, dos d’ells en suite. L’habitació principal, a més del seu propi bany, disposa també de vestidor i de precioses vistes a la mar. Al final del passadís trobam dues habitacions amb vistes a la Tramuntana. Aquesta propietat també compta amb zones comunes, amb una piscina de gran tamany recentment reformada, un jardí i un espai infantil amb gronxadors. S’inclouen dues places d’aparcament i un traster al pàrquing del mateix edifici. La zona té oferta d’oci, comerços i bones comunicacions. Hi trobaràs restaurants, botigues, farmàcies i supermercats. La platja és a cinc minuts caminant, i tota l’oferta cultural i d’oci de Palma la tens a cinc minuts en cotxe o en transport públic. A més, té bona connexió amb l’autopista, perquè puguis accedir fàcilment a tota l’illa. És l’oportunitat perfecta per gaudir de les seves meravelloses vistes, de la piscina o de l’accés directe a la mar, en una comunitat molt tranquil·la. Propietat única al mercat! Vine a visitar-la!
Superfície 150 m2
Dormitoris 4
Banys 3
1.600.000 €
Pis en venda
Nou
VB2512008
299.000 €

Pis en venda al costat de la Rambla

El Raval, Barcelona ciutat
En ple centre de Barcelona, entre dos dels seus principals icones, el Mercat de la Boqueria i el Teatre del Liceu, es troba aquesta joia de propietat. Envoltada de carrers per als vianants, comerços, restaurants i una àmplia oferta de serveis, aquesta vivenda de 112 m² de superfície construïda (segons nota simple), situada a la planta real d’una finca clàssica en perfecte estat, ofereix el millor de la ciutat al teu abast. El pis, recentment renovat amb materials d’alta qualitat, destaca per la seva distribució moderna i funcional. En entrar, t’acull un vestíbul que dona pas a una lluminosa sala d’estar amb cuina americana totalment equipada. Des d’aquí s’accedeix directament a un tranquil pati interior de 13 m², ideal per gaudir de moments de relax o sopars a l’aire lliure amb total privacitat. La zona de descans compta amb una àmplia habitació matrimonial amb armaris encastats i finestral al carrer, aportant llum natural a tot l’espai. A més, el bany complet està perfectament integrat en la distribució, mantenint comoditat i estil. Un detall únic d’aquesta propietat és la seva bodega de 13 m², amb volta d’obra ceràmica i parets de pedra, accessible des del pati. Sens dubte, un espai amb molt encant que pot convertir-se en una interessant zona d’oci. Els sostres amb bigues de fusta vista, les parets de maó ceràmic i els terres de parquet natural afegeixen un toc càlid i elegant. A més del seu atractiu indiscutible, aquesta propietat representa una excel·lent oportunitat d’inversió. Gràcies a la seva ubicació privilegiada, en una de les zones més demandades de Barcelona, el pis s’alquila fàcilment i amb gran rendibilitat. Una opció excel·lent tant per a qui busqui una llar única com per a aquells interessats en un negoci de lloguer temporal residencial. No deixis escapar aquesta oportunitat! Contacta’ns per visitar aquesta propietat de somni al centre de Barcelona. T’encantarà!
Superfície 112 m2
Dormitori 1
Bany 1
299.000 €
Loft en venda
Nou
VB2511047
580.000 €

Pis en venda al Passeig de Mas de Roda

El Poblenou, Barcelona ciutat
Descobreix aquest espectacular loft de 89m² construïts en una finca d’estil industrial construïda l’any 2008! Situat al Poblenou, un dels barris més vibrants i de moda de Barcelona, aquest espai modern i lluminós et sorprendrà. Característiques destacades: Espai diàfan: loft obert, ideal per personalitzar al teu gust. Cuina totalment equipada amb electrodomèstics de gamma alta. Bany amb dutxa de disseny modern. Grans finestrals Climalit, que aporten llum natural i bon aïllament acústic. Aire condicionat amb bomba de fred/calor, perfecte per mantenir la temperatura ideal tot l’any. Armaris encastats per aprofitar al màxim l’espai. Plaça d’aparcament de 22 m², inclosa en el preu, en un pàrquing amb vigilància les 24 hores. Aparcament per a bicicletes, un extra pensat per als amants del transport sostenible! Ubicació privilegiada: A només 10 minuts caminant de la platja, ideal per gaudir del mar i del sol. Transport públic a l’abast: a menys de 5 minuts a peu de l’estació de metro i de diverses parades d’autobús. Despeses: IBI: 744 €/any Comunitat: 72 €/mes Pàrquing vigilat: 79 €/mes Aquest loft de segona mà es troba en perfecte estat i ofereix l’oportunitat de viure en una zona moderna i molt ben comunicada. A més, l’edifici disposa d’ascensor, orientació nord-oest i certificat energètic que garanteix una bona eficiència. No deixis escapar l’oportunitat de visitar-lo. Sol·licita la teva visita avui mateix!  
Superfície 89 m2
Dormitori 1
Bany 1
580.000 €
x

DATOS DEL PROPIETARIO DE LA WEB

  • RAZÓN SOCIAL: APROPERTIES REAL ESTATE ASSETS SL
  • NIF: B66207879
  • DIRECCIÓN  POSTAL: PASSEIG DE GRACIA 85 PLANTA 8 08008, BARCELONA
  • DIRECCIÓN ELECTRÓNICA: [email protected] 
  • OBJETO PRINCIPAL: PLATAFORMA INMOBILIARIA

De conformidad con la normativa vigente y aplicable en protección de datos de carácter personal, le informamos  que sus datos serán incorporados al sistema de tratamiento titularidad de APROPERTIES REAL ESTATE  ASSETS SL. con NIF B66207879 y domicilio social sito en PASSEIG DE GRACIA 85 PLANTA 8 08008,  BARCELONA, y que a continuación se relacionan sus respectivas finalidades, plazos de conservación y bases  legitimadoras. Para aquellos tratamientos que lo requieran, se informa también de la posible elaboración de  perfiles y decisiones automatizadas, así como las posibles cesiones y las transferencias internacionales que  APROPERTIES REAL ESTATE ASSETS S.L. tiene previsto realizar: 

TRATAMIENTOS REALIZADOS

Gestión de la página web

  • Finalidad: Tratamiento y gestión de los datos necesarios para la funcionalidad de la página  web 
  • Plazo de conservación: mientras perdure el consentimiento prestado  
  • Base legítima: El consentimiento del interesado 
  • Tipología de Datos: Datos meramente identificativos 
  • Cesiones: No se prevén 
  • Transferencias internacionales: No se prevén 
  • Elaboraciones de perfiles: No se prevén

Formulario contacto y cotización

  • Finalidad: Atender sus consultas y/o solicitudes 
  • Plazo de conservación: mientras se mantenga el consentimiento prestado. Base legítima: El consentimiento del interesado 
  • Tipología de Datos: Datos meramente identificativos 
  • Cesiones: Ninguna 
  • Transferencias internacionales: No se prevén 
  • Elaboraciones de perfiles: No se prevén

Gestión del cumplimiento normativo

  • Finalidad: Gestión y tramitación de las obligaciones y deberes que se deriven del  cumplimiento de la normativa a la cual está sujeta la entidad 
  • Plazo de conservación: conservación de las copias de los documentos hasta que  prescriban las acciones para reclamarle una posible responsabilidad 
  • Base legítima: El cumplimiento de una ley 
  • Tipología de Datos: Datos meramente identificativos 
  • Cesiones: sus datos serán comunicados en caso de ser necesario a Organismos y/o  administración pública con competencia en la materia con la finalidad de cumplir con las  obligaciones establecidas en la normativa aplicable. Además, se informa que la base  legitimadora de la cesión es cumplir con las obligaciones establecidas en la normativa  aplicable 
  • Transferencias internacionales: No se prevén 
  • Elaboraciones de perfiles: No se prevén

Acciones Comerciales

  • Finalidad: Captación, registro y tratamiento de datos con finalidades de publicidad y  prospección comercial de nuestros productos y/o servicios 
  • Plazo de conservación: mientras se mantenga el consentimiento prestado Base legítima: El consentimiento del interesado 
  • Tipología de Datos: Datos meramente identificativos 
  • Cesiones: Ninguna 
  • Transferencias internacionales: No se prevén 
  • Elaboraciones de perfiles: No se prevén

Gestión Bolsa de empleo

  • Finalidad: Registro y tratamiento de datos de candidatos para finalidades de selección de  personal referentes a puestos de trabajo vacantes de las entidades colaboradoras y gestión  de la bolsa de empleo 
  • Plazo de conservación: mientras perdure el consentimiento prestado 
  • Base legítima: El consentimiento del interesado 
  • Tipología de Datos: Datos meramente identificativos 
  • Cesiones: sus datos serán comunicados en caso de ser necesario a Entidades  Colaboradoras con la finalidad de gestionar la bolsa de empleo y trasladar la candidatura a  la empresa colaboradora. Además, se informa que la base legitimadora de la cesión es su  consentimiento 
  • Transferencias internacionales: No se prevén 
  • Elaboraciones de perfiles: No se prevén

GESTIÓN DE DATOS

De acuerdo con lo establecido por el Reglamento (UE) 2016/679 del Parlamento Europeo y del Consejo, de 27 de abril de 2016, relativo a la protección de las personas físicas en lo que respecta al tratamiento de datos personales y a la libre circulación de estos datos y por el que se deroga la Directiva 95/46/CE, APROPERTIES REAL ESTATE ASSETS SL informa al Usuario en relación a los sitios web www.aproperties.es y derivados (en adelante, sitios web), que la información que se pueda recabar en los sitios web se incorporará en los sistemas de tratamiento responsabilidad de APROPERTIES REAL ESTATE ASSETS SL, con las finalidades de realizar la gestión y el mantenimiento de la relación con el Usuario con los sitios web, así como las labores de información, estadística, y comercialización de los servicios y de las actividades relacionadas con los mismos.

APROPERTIES REAL ESTATE ASSETS SL informa de que la base legítima que ampara los tratamientos indicados es la existencia de un interés legítimo, asimismo en cuanto a la instalación de cookies se encuentran legitimados en la existencia del consentimiento prestado por parte de los interesados o, en su caso, de los representantes legales de los mismos.

  • APROPERTIES REAL ESTATE ASSETS SL informa de que los datos serán conservados mientras perdure el consentimiento prestado por el Usuario, exceptuando aquellos casos en los que estemos obligados legalmente a su conservación.
  • De acuerdo con los derechos que le confiere la normativa vigente en protección de datos, el Usuario podrá dirigirse a la Autoridad de Control competente para presentar la reclamación que considere oportuna, así como también podrá ejercer los derechos de acceso, rectificación, limitación de tratamiento, supresión, portabilidad y oposición al tratamiento de sus datos de carácter personal, así como a la retirada del consentimiento prestado para el tratamiento de los mismos.

De acuerdo con lo establecido por el artículo 32 del Reglamento (UE) 2016/679 del Parlamento Europeo y del Consejo, de 27 de abril de 2016, relativo a la protección de las personas físicas en lo que respecta al tratamiento de datos personales y a la libre circulación de estos datos y por el que se deroga la Directiva 95/46/CE, APROPERTIES REAL ESTATE ASSETS SL se compromete a adoptar las medidas técnicas y organizativas necesarias, acorde al nivel de riesgos que acompañan los tratamientos realizados por éstas e indicados en el apartado de los términos y condiciones de uso, de forma que garanticen su integridad, confidencialidad y disponibilidad.
 
Asimismo, APROPERTIES REAL ESTATE ASSETS SL informa que en el caso que el Usuario introduzca datos en los formularios de los sitios web de terceros, serán estos últimos los responsables de los datos de carácter personal, y quienes deberán adoptar las medidas técnicas descritas en el siguiente apartado.

DERECHOS DE LOS INTERESADOS

APROPERTIES REAL ESTATE ASSETS S.L. informa a los Usuarios que, podrá ejercer los derechos  de acceso, rectificación, limitación, supresión, portabilidad y oposición al tratamiento de sus datos de carácter personal ante el Responsable del Tratamiento, así como a la retirada del consentimiento prestado. 

  • Derecho de Acceso: Es el derecho del usuario a obtener información sobre sus datos concretos de carácter personal y del tratamiento que se haya realizado o realice, así como de la información disponible sobre el origen de dichos datos y las comunicaciones realizadas o previstas de los mismos. 
  • Derecho de Rectificación: Es el derecho del afectado a que se modifiquen los datos que resulten ser inexactos o incompletos. Sólo podrá satisfacerse en relación a aquella información que se encuentre bajo el control de la APP, por ejemplo, eliminar comentarios publicados en la propia página, imágenes o contenidos web donde consten datos de carácter personal del usuario. 
  • Derecho a la Limitación de tratamiento: Es el derecho a que se limiten los fines del tratamiento previstos de forma original por el responsable del tratamiento. 
  • Derecho de Supresión: Es el derecho a suprimir los datos de carácter personal del usuario, a excepción de lo previsto en el propio RGPD o en otras normativas aplicables que determinen la obligatoriedad de la conservación de los mismos, en tiempo y forma. 
  • Derecho de portabilidad: El derecho a recibir los datos personales que el usuario, haya facilitado, en un formato estructurado, de uso común y lectura mecánica, y a transmitirlos a otro responsable. 
  • Derecho de Oposición: Es el derecho del usuario a que no se lleve a cabo el tratamiento de sus datos de carácter personal o se cese el tratamiento de los mismos por parte de la APP. 

Para poder ejercer cualquiera de los derechos descritos anteriormente deberá cumplir con los siguientes requisitos: 

- Presentación de un escrito a la dirección indicada en la parte superior de esta (a la atención de APROPERTIES REAL ESTATE ASSETS S.L.) o bien a través de correo electrónico a [email protected]

- El escrito remitido por el titular de los datos que solicite el ejercicio deberá de cumplir los siguientes requisitos legales:

  • Nombre, apellidos del interesado y copia del DNI/NIE o cualquier documento identificativo. En los excepcionales casos en que se admita la representación, será también necesaria la identificación por el mismo medio de la persona que le representa, así como el documento acreditativo de la representación. La fotocopia del DNI podrá ser sustituida siempre que se acredite la identidad por cualquier otro medio válido en derecho. 
  • Petición en que se concreta la solicitud. (Ejercicio en el que se solicita la información a la que se quiere acceder). Si no hace referencia a un fichero concreto se le facilitará toda la información que se tenga con sus datos de carácter personal. Si solicita información de un fichero en concreto, sólo la información de este fichero. Si solicita información relativa a un tercero nunca se podrá facilitar. Si lo solicita por teléfono se le indicará que lo haga por escrito y se le informará de cómo lo puede hacer y la dirección a la que tiene que enviarlo. Nunca se le dará información por teléfono. 
  • Domicilio a efectos de notificaciones. 
  • Fecha y firma del solicitante. 
  • Documentos acreditativos de la petición que formula. 
  • El interesado debe utilizar cualquier medio que permita acreditar el envío y la recepción de la solicitud. 

Por último, le informamos que Usted tiene derecho a presentar una reclamación ante la Agencia Española de  Protección de Datos en caso de que tenga conocimiento o considere que un hecho pueda suponer un  incumplimiento de la normativa aplicable en materia de protección de datos.

APROPERTIES REAL ESTATE ASSETS S.L. se compromete a adoptar las medidas técnicas y organizativas  necesarias, acorde al nivel de riesgos que acompañan los tratamientos realizados por éstas e indicados en el  apartado de los términos y condiciones de uso, de forma que garanticen su integridad, confidencialidad y disponibilidad.

POLÍTICA DE REDES SOCIALES

De conformidad con lo establecido en la normativa vigente y aplicable de protección de datos de carácter  personal y la Ley 34/2002, de 11 de julio, de Servicios de la Sociedad de la Información y de Comercio  Electrónico (LSSI-CE), APROPERTIES REAL ESTATE ASSETS S.L. informa a los usuarios, que ha procedido a  crear un perfil en la/s Red/es Social/es Facebook, Instagram, Linkedin y YouTube, con la finalidad principal de  publicitar sus productos y servicios. 

El usuario dispone de un perfil en la misma Red Social y ha decidido unirse a la página creada por  APROPERTIES REAL ESTATE ASSETS S.L., mostrando así interés en la información que se publicite en la  Red. Al unirse a nuestra página, nos facilita su consentimiento para el tratamiento de aquellos datos personales  publicados en su perfil. 

El usuario puede acceder en todo momento a las políticas de privacidad de la propia Red Social, así como  configurar su perfil para garantizar su privacidad. 

APROPERTIES REAL ESTATE ASSETS S.L. tiene acceso y trata aquella información pública del usuario, en  especial, su nombre de contacto. Estos datos, sólo son utilizados dentro de la propia Red Social. No son  incorporados a ningún sistema de tratamiento. 

Derechos de los interesados 

En relación a los acceso, rectificación, limitación de tratamiento, supresión, portabilidad y oposición al tratamiento  de sus datos de carácter personal, de los que usted dispone y que pueden ser ejercitados ante APROPERTIES  REAL ESTATE ASSETS S.L., de acuerdo con la RGPD, debe tener en cuenta los siguientes matices: 

  • Derecho de Acceso: Es el derecho del usuario a obtener información sobre sus datos concretos de carácter personal y del tratamiento que se haya realizado o realice, así como de la información disponible sobre el origen de dichos datos y las comunicaciones realizadas o previstas de los mismos. 
  • Derecho de Rectificación: Es el derecho del afectado a que se modifiquen los datos que resulten ser inexactos o incompletos. Sólo podrá satisfacerse en relación a aquella información que se encuentre bajo el control de APROPERTIES REAL ESTATE ASSETS S.L., por ejemplo, eliminar comentarios publicados en la propia página, imágenes o contenidos web donde consten datos de carácter personal del usuario. 
  • Derecho a la Limitación de tratamiento: Es el derecho a que se limiten los fines del tratamiento previstos de forma original por el responsable del tratamiento. 
  • Derecho de Supresión: Es el derecho a suprimir los datos de carácter personal del usuario, a excepción de lo previsto en el propio RGPD o en otras normativas aplicables que determinen la obligatoriedad de la conservación de los mismos, en tiempo y forma. 
  • Derecho de portabilidad: El derecho a recibir los datos personales que el usuario, haya facilitado, en un formato estructurado, de uso común y lectura mecánica, y a transmitirlos a otro responsable. 
  • Derecho de Oposición: Es el derecho del usuario a que no se lleve a cabo el tratamiento de sus datos de carácter personal o se cese el tratamiento de los mismos por parte de APROPERTIES REAL ESTATE ASSETS S.L.. 

APROPERTIES REAL ESTATE ASSETS S.L. realizará las siguientes actuaciones: 

  • Acceso a la información pública del perfil. 
  • Publicación en el perfil del usuario de toda aquella información ya publicada en la página de APROPERTIES REAL ESTATE ASSETS S.L..
  • Enviar mensajes personales e individuales a través de los canales de la Red Social. 
  • Actualizaciones del estado de la página que se publicarán en el perfil del usuario. 

El usuario siempre puede controlar sus conexiones, eliminar los contenidos que dejen de interesarle y restringir  con quién comparte sus conexiones, para ello deberá acceder a su configuración de privacidad. 

Publicaciones 

El usuario, una vez unido a la página de APROPERTIES REAL ESTATE ASSETS S.L., podrá publicar en ésta  última comentarios, enlaces, imágenes o fotografías o cualquier otro tipo de contenido multimedia soportado por  la Red Social. El usuario, en todos los casos, debe ser el titular de los mismos, gozar de los derechos de autor y  de propiedad intelectual o contar con el consentimiento de los terceros afectados. Se prohíbe expresamente  cualquier publicación en la página, ya sean textos, gráficos, fotografías, vídeos, etc. que atenten o sean  susceptibles de atentar contra la moral, la ética, el buen gusto o el decoro, y/o que infrinjan, violen o quebranten  los derechos de propiedad intelectual o industrial, el derecho a la imagen o la Ley. En estos casos,  APROPERTIES REAL ESTATE ASSETS S.L. se reserva el derecho a retirar de inmediato el contenido,  pudiendo solicitar el bloqueo permanente del usuario. 

APROPERTIES REAL ESTATE ASSETS S.L. no se hará responsable de los contenidos que libremente ha  publicado un usuario. 

El usuario debe tener presente que sus publicaciones serán conocidas por los otros usuarios, por lo que él  mismo es el principal responsable de su privacidad. 

Las imágenes que puedan publicarse en la página no serán almacenadas en ningún sistema de tratamiento por  parte de APROPERTIES REAL ESTATE ASSETS S.L., pero sí que permanecerán en la Red Social. 

Concursos y promociones 

APROPERTIES REAL ESTATE ASSETS S.L. se reserva el derecho a realizar concursos y promociones, en los  que podrá participar el usuario unido a su página. Las bases de cada uno de ellos, cuando se utilice para ello la  plataforma de la Red Social, serán publicadas en la misma. Cumpliendo siempre con la LSSI-CE y con cualquier  otra norma que le sea de aplicación. 

La Red Social no patrocina, avala ni administra, de modo alguno, ninguna de nuestras promociones, ni está  asociada a ninguna de ellas.

Publicidad 

APROPERTIES REAL ESTATE ASSETS S.L. utilizará la Red Social para publicitar sus productos y servicios, en  todo caso, si decide tratar sus datos de contacto para realizar acciones directas de prospección comercial, será  siempre, cumpliendo con las exigencias legales del RGPD y de la LSSI-CE. 

No se considerará publicidad el hecho de recomendar a otros usuarios la página de APROPERTIES REAL  ESTATE ASSETS S.L. para que también ellos puedan disfrutar de las promociones o estar informados de su  actividad. 

A continuación detallamos el enlace a la política de privacidad de la Red Social: 

ÚLTIMA ACTUALIZACIÓN: 21 de enero de 2022.

Utilitzem cookies pròpies y de tercers per fer funcionar de manera segura la nostra pàgina web i personalitzar el seu contingut. Igualment, fem servir cookies per mesurar i obtenir dades de la navegació que realitza i per ajustar la publicitat als seus gustos i preferències. Premi el botó "Acceptar totes" per confirmar que ha llegit i acceptat l'informació presentada. Per administrar o deshabilitar aquestes cookies faci clic a "Configuració". Pot obtenir més informació a la nostra política de cookies.
Modificar cookies
Tècniques i funcionals Sempre activades
Aquest lloc web utilitza cookies pròpies per recopilar informació amb la finalitat de millorar els nostres serveis. Si continua navegant, suposa l'acceptació de la instal·lació de les mateixes. L'usuari té la possibilitat de configurar el navegador podent, si així ho desitja, impedir que siguin instal·lades al disc dur, encara que haurà de tenir en compte que aquesta acció podrà ocasionar dificultats de navegació de la pàgina web.
Analítiques i personalització
Permeten fer el seguiment i l'anàlisi del comportament dels usuaris d'aquest lloc web. La informació recollida mitjançant aquest tipus de cookies s'utilitza en el mesurament de l'activitat del web per a l'elaboració de perfils de navegació dels usuaris per introduir millores en funció de l'anàlisi de les dades d'ús que fan els usuaris del servei. Permeten desar la informació de preferència de l'usuari per millorar la qualitat dels nostres serveis i oferir una millor experiència a través de productes recomanats.
Marketing i publicitat
Aquestes cookies són utilitzades per emmagatzemar informació sobre les preferències i les eleccions personals de l'usuari a través de l'observació continuada dels seus hàbits de navegació. Gràcies a elles, podem conèixer els hàbits de navegació al lloc web i mostrar publicitat relacionada amb el perfil de navegació de l'usuari.