Àtic en venda al carrer de Sardenya

Superfície
67 m²
Dormitoris
2
Bany
1
Atic en venda
750.000 €
Venuda
Play icon Veure video de la propietat

ÀTIC AMB TERRASSA PRIVADA, PISCINA I VISTES A LA SAGRADA FAMÍLIA

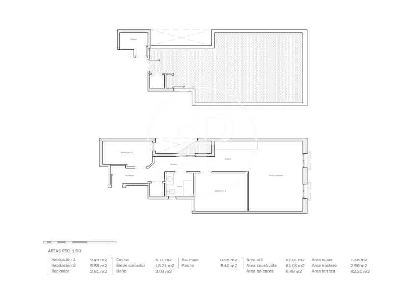
Presentem aquest exclusiu àtic totalment exterior, reformat íntegrament l’any 2019, ubicat en una setena planta real amb ascensor panoràmic de vidre i terrassa d’ús privatiu.

Només entrar ens adonem que és un pis amb molta personalitat i molt lluminós. Es distribueix en 2 habitacions dobles (una àmplia i una altra més petita), un bany complet amb dutxa, saló-menjador amb sortida a un balcó orientat al sud-oest, cuina oberta totalment equipada i un balcó interior de 2 m² destinat a zona d’aigües.

El terra de parquet natural i els sostres amb volta catalana aporten una calidesa especial a tot el pis. Tots els mobles, tant interiors com els de la terrassa, estan inclosos. A més, disposa d’un traster privat. El clima, tant fred com calor, és per conductes.

A més de l’ascensor panoràmic a la finca, l’àtic gaudeix d’un ascensor privat per accedir a la terrassa d’ús privatiu de 44 m² a la planta superior, accessible també per l’escala de l’edifici.

Tot el mobiliari de la terrassa és de la marca Arboletum i inclou dues hamaques, taula de menjador, pèrgola amb tendal elèctric, zona de chillout i sistema de reg automàtic. Les vistes des d’aquesta terrassa són espectaculars i, a més, podem gaudir d’una piscina de 2x2 per refrescar-nos durant els mesos més calorosos.

El pis disposa d’una plaça d’aparcament petita inclosa en el preu, en una finca propera.

Si busques un àtic atractiu, totalment exterior i amb tot el confort, no dubtis a sol·licitar una visita. No esperis més, programarem la visita segons la teva disponibilitat.

  • Característiques
  • Vistes
  • Calefacció
  • Moblat
  • Traster
  • Aacc
  • Terrassa
  • Té parking
  • Piscina
  • Ascensor

Sobre Eixample Dreta

Es tracta d'una de les zones més cèntriques de la ciutat, considerada per molts, el cor de Barcelona amb una gran col·lecció d'edificis modernistes. Una zona molt cotitzada amb exclusius àtics i fabulosos apartaments en finques règies. Molts dels edificis de l'Eixample són obra d'arquitectes modernistes que conserven elements originals fantàstics; sostres alts, sòls enrajolats amb mosaics, sostres amb cornisa i molta llum natural. L'Avinguda Diagonal, el Passeig de Gracia i la Rambla Catalunya, amb les seves selectes boutiques internacionals, prestigiosos despatxos i alguns dels millors restaurants de Barcelona, culminen l'oferta d'aquest districte, excel·lentment enllaçat amb el transport públic i envoltada d'una àmplia oferta turística.

Propietats vistes recentment

Pis en lloguer
APM2511003
3.900 €

Pis en Lloguer a Portals Nous

Portals nous - Bendinat, Mallorca
EXCLUSIU HABITATGE AMB VISTES AL MAR A PORTALS NOUS AMB PÀRQUING INCLÒS Descobreix l'equilibri perfecte entre comoditat i estil en aquesta lluminosa vivenda ubicada a la cobejada zona de Portals Nous. Aquest exclusiu apartament, situat a la primera planta amb fàcil accés mitjançant ascensor, ofereix un ampli espai de 3 habitacions i 2 banys complets més un lavabo de cortesia, ideal per a famílies o professionals que busquen una llar de llarga estada sense moblar. 2 habitacions grans i una mitjana, sent una de les habitacions en suite. En entrar, seràs rebut per un ampli saló obert connectat amb la cuina amb material d´última qualitat que connecta amb una terrassa de 20m² que promet ser el teu oasi personal, on podràs gaudir d´impressionants vistes al mar i capvespres de somni, convertint-se al´escenari perfecte per relaxar-se o entretenir els convidats. La cuina, un veritable cor de la llar, està totalment equipada amb moderns electrodomèstics i ofereix abundant espai d'emmagatzematge, cosa que facilita la preparació de deliciosos menjars en un ambient elegant. L´habitatge es beneficia a més de calefacció per radiadors i aire condicionat central per garantir el teu confort en qualsevol època de l´any. Amb plaça de pàrquing per a 2 cotxes, mai t'hauràs de preocupar per l'estacionament. A més, podràs gaudir de les instal·lacions de la comunitat, que inclouen una piscina envoltada de zones verdes, ideal per a aquells dies en què prefereixes quedar-te a prop de casa. Ubicada a Portals Nous a la Urbanització Real Golf de Bendinat a 300 mts del camp de golf ia 1,5 km del Port Portals, aquesta propietat no només t'ofereix una vida tranquil·la amb pocs veïns i exclusiva prop del mar, sinó també fàcil accés a totes les comoditats necessàries, incloent botigues, restaurants i llocs d'oci, sense esmentar la proximitat a algunes de les platges més boniques de l'illa. No deixeu passar l'oportunitat de viure en aquesta joia de propietat, on la qualitat de vida s'eleva i els records esperen ser creats.
Superfície 160 m2
Dormitoris 3
Banys 3
3.900 €
Casa en venda
Nou
VSC2511011
2.550.000 €

Casa en venda a Arxius

Arxiu - Estació, Vallès Occidental
Des d’Aproperties tenim el plaer de presentar aquesta completa casa en una de les zones més exclusives de Sant Cugat del Vallès. Comencem el nostre recorregut pel majestuós rebedor que dona pas al ampli i lluminós saló amb un menjador independent, tots dos amb sortida directa al gran jardí amb la imprescindible piscina d’una casa d’aquesta magnitud. Tornem a l’interior, que ofereix també a la planta baixa una suite, un gran despatx, una supercuina menjador de dimensions més que generoses i el lavabo de cortesia. La primera planta, totalment simètrica i equilibrada. Al centre, la màster suite i, a cada costat, dues habitacions dobles amb un bany per a cada parell d’habitacions. Totes les habitacions, a excepció de la màster, són idèntiques, exteriors i lluminoses. Sumem, doncs, en aquesta planta cinc habitacions dobles i tres banys complets. La casa es completa amb un pàrquing de 180 m², on poder aparcar 6/7 cotxes; zona de servei (habitació doble i bany complet, més un safareig) i un altre espai polivalent, on poder organitzar una sala de cinema, un gimnàs o allò que imagini el futur propietari. Privacitat màxima. Perfecte estat de manteniment. Totes les plantes estan connectades per ascensor. Acabats premium, qualitats duradores, exterior d’obra vista, paviments de marbre i fusta massissa. Finestres d’alumini amb trencament de pont tèrmic i persianes mecanitzades de seguretat tipus Gradermetic. A Aproperties estarem encantats de concertar una visita.
Superfície 673 m2
Dormitoris 7
Banys 7
2.550.000 €
Atic en venda
VB2510030
890.000 €

Àtic en venda al Passatge Mariner

Camp d'en Grassot - Gràcia nova, Barcelona ciutat
Situat en una finca íntegrament reformada el 2024, que ha sabut conservar amb cura la seva essència arquitectònica original, aquest àtic-dúplex combina encant històric amb comoditat contemporània. Ubicat en un passatge discret i tranquil, a pocs passos del centre neuràlgic de Barcelona, l’immoble destaca per la seva atmòsfera serena i l’abundant llum natural que inunda cada estança. A la planta inferior es troba la zona de dia, amb una distribució oberta que integra saló, menjador i cuina, tot amb sortida directa a una terrassa assolellada de 14 m². En aquest nivell també s’ubica una elegant suite principal i una segona habitació doble amb bany complet. La planta superior —no reflectida en escriptura però aprofitada al màxim— ofereix una segona suite amb bany privat, una habitació versàtil ideal com a despatx o vestidor, i una zona de bugaderia. Des d’aquest nivell es poden gaudir de vistes clares a la Sagrada Família. L’escala interior, de disseny minimalista, es completarà amb una barana de vidre, aportant continuïtat i lleugeresa visual a tot el conjunt. En una finca amb només quatre veïns, aquesta propietat garanteix una tranquil·litat poc habitual al centre urbà. A més, hi ha la possibilitat de lloguer de plaça d’aparcament a la zona. Un àtic amb ànima, ideal per a aquells que valoren disseny, llum i ubicació a parts iguals. Per a més informació o per concertar una visita, contacta amb Aproperties Real Estate. Estarem encantats d’atendre’t i ajudar-te a descobrir aquesta propietat única a Barcelona. Característiques principals 141 m² construïts 4 habitacions 3 banys Terrassa de 14 m² A estrenar Armaris encastats Orientació sud i oest Edifici 1a planta exterior Amb ascensor Reformat al 2024
Superfície 127 m2
Dormitoris 4
Banys 3
890.000 €
Pis en venda
Nou
VPM2511027
1.100.000 €

Casa en venda a Port d’Alcúdia

Port d’Alcúdia - Platja d'Alcúdia, Mallorca
Casa guardonada amb 6 prestigiosos premis internacionals de disseny (Iconic Awards 2025, German Design Award 2025, IF Design Award 2025, French Design Award 2024, Kyoto Global Design Awards 2024 i Rethinking The Future Awards). Una autèntica obra d’art habitable situada a l’exclusiva zona nord de Mallorca, a Port d’Alcúdia, dins d’un carreró tranquil amb vistes directes al mar. Amb una geometria triangular i un disseny vertical excepcional, aquest habitatge de 122 m² construïts combina minimalisme, avantguarda i una experiència de vida única on l’arquitectura dialoga constantment amb l’entorn marí. La seva façana combina metall i formigó, creant un estil contemporani que evoca l’atmosfera d’un loft modern i vertical. Compta amb garatge privat de disseny industrial, amb terres de formigó polit, parets d’acer inoxidable i accés directe mitjançant escala metàl·lica lacada o ascensor interior. Dos dormitoris en suite, cuina triangular en acer inoxidable dissenyada amb precisió geomètrica, connecta amb la zona d’accés i combina superfícies de formigó amb polits metàl·lics fets a mà. La sala d’estar de 4 metres d’alçada és un espai diàfan amb finestrals panoràmics que il·luminen l’estança amb llum natural durant tot el dia. A més, compta amb persianes de disseny que filtren la llum mantenint total privacitat. Finalment, aquest habitatge compta amb una terrassa privada amb vistes al mar, un racó perfecte per gaudir de l’horitzó i experimentar la tranquil·litat de l’entorn. Aquest habitatge és per a qui cerca disseny, exclusivitat i una connexió contínua amb el mar. Cada detall ha estat curosament pensat per oferir comoditat, estètica i una sensació única de viure dins d’una peça arquitectònica premiada. Vols viure en una obra d’art davant del mar? Contacta’ns avui mateix i agenda la teva visita.
Superfície 122 m2
Dormitoris 2
Banys 2
1.100.000 €
x

DATOS DEL PROPIETARIO DE LA WEB

  • RAZÓN SOCIAL: APROPERTIES REAL ESTATE ASSETS SL
  • NIF: B66207879
  • DIRECCIÓN  POSTAL: PASSEIG DE GRACIA 85 PLANTA 8 08008, BARCELONA
  • DIRECCIÓN ELECTRÓNICA: [email protected] 
  • OBJETO PRINCIPAL: PLATAFORMA INMOBILIARIA

De conformidad con la normativa vigente y aplicable en protección de datos de carácter personal, le informamos  que sus datos serán incorporados al sistema de tratamiento titularidad de APROPERTIES REAL ESTATE  ASSETS SL. con NIF B66207879 y domicilio social sito en PASSEIG DE GRACIA 85 PLANTA 8 08008,  BARCELONA, y que a continuación se relacionan sus respectivas finalidades, plazos de conservación y bases  legitimadoras. Para aquellos tratamientos que lo requieran, se informa también de la posible elaboración de  perfiles y decisiones automatizadas, así como las posibles cesiones y las transferencias internacionales que  APROPERTIES REAL ESTATE ASSETS S.L. tiene previsto realizar: 

TRATAMIENTOS REALIZADOS

Gestión de la página web

  • Finalidad: Tratamiento y gestión de los datos necesarios para la funcionalidad de la página  web 
  • Plazo de conservación: mientras perdure el consentimiento prestado  
  • Base legítima: El consentimiento del interesado 
  • Tipología de Datos: Datos meramente identificativos 
  • Cesiones: No se prevén 
  • Transferencias internacionales: No se prevén 
  • Elaboraciones de perfiles: No se prevén

Formulario contacto y cotización

  • Finalidad: Atender sus consultas y/o solicitudes 
  • Plazo de conservación: mientras se mantenga el consentimiento prestado. Base legítima: El consentimiento del interesado 
  • Tipología de Datos: Datos meramente identificativos 
  • Cesiones: Ninguna 
  • Transferencias internacionales: No se prevén 
  • Elaboraciones de perfiles: No se prevén

Gestión del cumplimiento normativo

  • Finalidad: Gestión y tramitación de las obligaciones y deberes que se deriven del  cumplimiento de la normativa a la cual está sujeta la entidad 
  • Plazo de conservación: conservación de las copias de los documentos hasta que  prescriban las acciones para reclamarle una posible responsabilidad 
  • Base legítima: El cumplimiento de una ley 
  • Tipología de Datos: Datos meramente identificativos 
  • Cesiones: sus datos serán comunicados en caso de ser necesario a Organismos y/o  administración pública con competencia en la materia con la finalidad de cumplir con las  obligaciones establecidas en la normativa aplicable. Además, se informa que la base  legitimadora de la cesión es cumplir con las obligaciones establecidas en la normativa  aplicable 
  • Transferencias internacionales: No se prevén 
  • Elaboraciones de perfiles: No se prevén

Acciones Comerciales

  • Finalidad: Captación, registro y tratamiento de datos con finalidades de publicidad y  prospección comercial de nuestros productos y/o servicios 
  • Plazo de conservación: mientras se mantenga el consentimiento prestado Base legítima: El consentimiento del interesado 
  • Tipología de Datos: Datos meramente identificativos 
  • Cesiones: Ninguna 
  • Transferencias internacionales: No se prevén 
  • Elaboraciones de perfiles: No se prevén

Gestión Bolsa de empleo

  • Finalidad: Registro y tratamiento de datos de candidatos para finalidades de selección de  personal referentes a puestos de trabajo vacantes de las entidades colaboradoras y gestión  de la bolsa de empleo 
  • Plazo de conservación: mientras perdure el consentimiento prestado 
  • Base legítima: El consentimiento del interesado 
  • Tipología de Datos: Datos meramente identificativos 
  • Cesiones: sus datos serán comunicados en caso de ser necesario a Entidades  Colaboradoras con la finalidad de gestionar la bolsa de empleo y trasladar la candidatura a  la empresa colaboradora. Además, se informa que la base legitimadora de la cesión es su  consentimiento 
  • Transferencias internacionales: No se prevén 
  • Elaboraciones de perfiles: No se prevén

GESTIÓN DE DATOS

De acuerdo con lo establecido por el Reglamento (UE) 2016/679 del Parlamento Europeo y del Consejo, de 27 de abril de 2016, relativo a la protección de las personas físicas en lo que respecta al tratamiento de datos personales y a la libre circulación de estos datos y por el que se deroga la Directiva 95/46/CE, APROPERTIES REAL ESTATE ASSETS SL informa al Usuario en relación a los sitios web www.aproperties.es y derivados (en adelante, sitios web), que la información que se pueda recabar en los sitios web se incorporará en los sistemas de tratamiento responsabilidad de APROPERTIES REAL ESTATE ASSETS SL, con las finalidades de realizar la gestión y el mantenimiento de la relación con el Usuario con los sitios web, así como las labores de información, estadística, y comercialización de los servicios y de las actividades relacionadas con los mismos.

APROPERTIES REAL ESTATE ASSETS SL informa de que la base legítima que ampara los tratamientos indicados es la existencia de un interés legítimo, asimismo en cuanto a la instalación de cookies se encuentran legitimados en la existencia del consentimiento prestado por parte de los interesados o, en su caso, de los representantes legales de los mismos.

  • APROPERTIES REAL ESTATE ASSETS SL informa de que los datos serán conservados mientras perdure el consentimiento prestado por el Usuario, exceptuando aquellos casos en los que estemos obligados legalmente a su conservación.
  • De acuerdo con los derechos que le confiere la normativa vigente en protección de datos, el Usuario podrá dirigirse a la Autoridad de Control competente para presentar la reclamación que considere oportuna, así como también podrá ejercer los derechos de acceso, rectificación, limitación de tratamiento, supresión, portabilidad y oposición al tratamiento de sus datos de carácter personal, así como a la retirada del consentimiento prestado para el tratamiento de los mismos.

De acuerdo con lo establecido por el artículo 32 del Reglamento (UE) 2016/679 del Parlamento Europeo y del Consejo, de 27 de abril de 2016, relativo a la protección de las personas físicas en lo que respecta al tratamiento de datos personales y a la libre circulación de estos datos y por el que se deroga la Directiva 95/46/CE, APROPERTIES REAL ESTATE ASSETS SL se compromete a adoptar las medidas técnicas y organizativas necesarias, acorde al nivel de riesgos que acompañan los tratamientos realizados por éstas e indicados en el apartado de los términos y condiciones de uso, de forma que garanticen su integridad, confidencialidad y disponibilidad.
 
Asimismo, APROPERTIES REAL ESTATE ASSETS SL informa que en el caso que el Usuario introduzca datos en los formularios de los sitios web de terceros, serán estos últimos los responsables de los datos de carácter personal, y quienes deberán adoptar las medidas técnicas descritas en el siguiente apartado.

DERECHOS DE LOS INTERESADOS

APROPERTIES REAL ESTATE ASSETS S.L. informa a los Usuarios que, podrá ejercer los derechos  de acceso, rectificación, limitación, supresión, portabilidad y oposición al tratamiento de sus datos de carácter personal ante el Responsable del Tratamiento, así como a la retirada del consentimiento prestado. 

  • Derecho de Acceso: Es el derecho del usuario a obtener información sobre sus datos concretos de carácter personal y del tratamiento que se haya realizado o realice, así como de la información disponible sobre el origen de dichos datos y las comunicaciones realizadas o previstas de los mismos. 
  • Derecho de Rectificación: Es el derecho del afectado a que se modifiquen los datos que resulten ser inexactos o incompletos. Sólo podrá satisfacerse en relación a aquella información que se encuentre bajo el control de la APP, por ejemplo, eliminar comentarios publicados en la propia página, imágenes o contenidos web donde consten datos de carácter personal del usuario. 
  • Derecho a la Limitación de tratamiento: Es el derecho a que se limiten los fines del tratamiento previstos de forma original por el responsable del tratamiento. 
  • Derecho de Supresión: Es el derecho a suprimir los datos de carácter personal del usuario, a excepción de lo previsto en el propio RGPD o en otras normativas aplicables que determinen la obligatoriedad de la conservación de los mismos, en tiempo y forma. 
  • Derecho de portabilidad: El derecho a recibir los datos personales que el usuario, haya facilitado, en un formato estructurado, de uso común y lectura mecánica, y a transmitirlos a otro responsable. 
  • Derecho de Oposición: Es el derecho del usuario a que no se lleve a cabo el tratamiento de sus datos de carácter personal o se cese el tratamiento de los mismos por parte de la APP. 

Para poder ejercer cualquiera de los derechos descritos anteriormente deberá cumplir con los siguientes requisitos: 

- Presentación de un escrito a la dirección indicada en la parte superior de esta (a la atención de APROPERTIES REAL ESTATE ASSETS S.L.) o bien a través de correo electrónico a [email protected]

- El escrito remitido por el titular de los datos que solicite el ejercicio deberá de cumplir los siguientes requisitos legales:

  • Nombre, apellidos del interesado y copia del DNI/NIE o cualquier documento identificativo. En los excepcionales casos en que se admita la representación, será también necesaria la identificación por el mismo medio de la persona que le representa, así como el documento acreditativo de la representación. La fotocopia del DNI podrá ser sustituida siempre que se acredite la identidad por cualquier otro medio válido en derecho. 
  • Petición en que se concreta la solicitud. (Ejercicio en el que se solicita la información a la que se quiere acceder). Si no hace referencia a un fichero concreto se le facilitará toda la información que se tenga con sus datos de carácter personal. Si solicita información de un fichero en concreto, sólo la información de este fichero. Si solicita información relativa a un tercero nunca se podrá facilitar. Si lo solicita por teléfono se le indicará que lo haga por escrito y se le informará de cómo lo puede hacer y la dirección a la que tiene que enviarlo. Nunca se le dará información por teléfono. 
  • Domicilio a efectos de notificaciones. 
  • Fecha y firma del solicitante. 
  • Documentos acreditativos de la petición que formula. 
  • El interesado debe utilizar cualquier medio que permita acreditar el envío y la recepción de la solicitud. 

Por último, le informamos que Usted tiene derecho a presentar una reclamación ante la Agencia Española de  Protección de Datos en caso de que tenga conocimiento o considere que un hecho pueda suponer un  incumplimiento de la normativa aplicable en materia de protección de datos.

APROPERTIES REAL ESTATE ASSETS S.L. se compromete a adoptar las medidas técnicas y organizativas  necesarias, acorde al nivel de riesgos que acompañan los tratamientos realizados por éstas e indicados en el  apartado de los términos y condiciones de uso, de forma que garanticen su integridad, confidencialidad y disponibilidad.

POLÍTICA DE REDES SOCIALES

De conformidad con lo establecido en la normativa vigente y aplicable de protección de datos de carácter  personal y la Ley 34/2002, de 11 de julio, de Servicios de la Sociedad de la Información y de Comercio  Electrónico (LSSI-CE), APROPERTIES REAL ESTATE ASSETS S.L. informa a los usuarios, que ha procedido a  crear un perfil en la/s Red/es Social/es Facebook, Instagram, Linkedin y YouTube, con la finalidad principal de  publicitar sus productos y servicios. 

El usuario dispone de un perfil en la misma Red Social y ha decidido unirse a la página creada por  APROPERTIES REAL ESTATE ASSETS S.L., mostrando así interés en la información que se publicite en la  Red. Al unirse a nuestra página, nos facilita su consentimiento para el tratamiento de aquellos datos personales  publicados en su perfil. 

El usuario puede acceder en todo momento a las políticas de privacidad de la propia Red Social, así como  configurar su perfil para garantizar su privacidad. 

APROPERTIES REAL ESTATE ASSETS S.L. tiene acceso y trata aquella información pública del usuario, en  especial, su nombre de contacto. Estos datos, sólo son utilizados dentro de la propia Red Social. No son  incorporados a ningún sistema de tratamiento. 

Derechos de los interesados 

En relación a los acceso, rectificación, limitación de tratamiento, supresión, portabilidad y oposición al tratamiento  de sus datos de carácter personal, de los que usted dispone y que pueden ser ejercitados ante APROPERTIES  REAL ESTATE ASSETS S.L., de acuerdo con la RGPD, debe tener en cuenta los siguientes matices: 

  • Derecho de Acceso: Es el derecho del usuario a obtener información sobre sus datos concretos de carácter personal y del tratamiento que se haya realizado o realice, así como de la información disponible sobre el origen de dichos datos y las comunicaciones realizadas o previstas de los mismos. 
  • Derecho de Rectificación: Es el derecho del afectado a que se modifiquen los datos que resulten ser inexactos o incompletos. Sólo podrá satisfacerse en relación a aquella información que se encuentre bajo el control de APROPERTIES REAL ESTATE ASSETS S.L., por ejemplo, eliminar comentarios publicados en la propia página, imágenes o contenidos web donde consten datos de carácter personal del usuario. 
  • Derecho a la Limitación de tratamiento: Es el derecho a que se limiten los fines del tratamiento previstos de forma original por el responsable del tratamiento. 
  • Derecho de Supresión: Es el derecho a suprimir los datos de carácter personal del usuario, a excepción de lo previsto en el propio RGPD o en otras normativas aplicables que determinen la obligatoriedad de la conservación de los mismos, en tiempo y forma. 
  • Derecho de portabilidad: El derecho a recibir los datos personales que el usuario, haya facilitado, en un formato estructurado, de uso común y lectura mecánica, y a transmitirlos a otro responsable. 
  • Derecho de Oposición: Es el derecho del usuario a que no se lleve a cabo el tratamiento de sus datos de carácter personal o se cese el tratamiento de los mismos por parte de APROPERTIES REAL ESTATE ASSETS S.L.. 

APROPERTIES REAL ESTATE ASSETS S.L. realizará las siguientes actuaciones: 

  • Acceso a la información pública del perfil. 
  • Publicación en el perfil del usuario de toda aquella información ya publicada en la página de APROPERTIES REAL ESTATE ASSETS S.L..
  • Enviar mensajes personales e individuales a través de los canales de la Red Social. 
  • Actualizaciones del estado de la página que se publicarán en el perfil del usuario. 

El usuario siempre puede controlar sus conexiones, eliminar los contenidos que dejen de interesarle y restringir  con quién comparte sus conexiones, para ello deberá acceder a su configuración de privacidad. 

Publicaciones 

El usuario, una vez unido a la página de APROPERTIES REAL ESTATE ASSETS S.L., podrá publicar en ésta  última comentarios, enlaces, imágenes o fotografías o cualquier otro tipo de contenido multimedia soportado por  la Red Social. El usuario, en todos los casos, debe ser el titular de los mismos, gozar de los derechos de autor y  de propiedad intelectual o contar con el consentimiento de los terceros afectados. Se prohíbe expresamente  cualquier publicación en la página, ya sean textos, gráficos, fotografías, vídeos, etc. que atenten o sean  susceptibles de atentar contra la moral, la ética, el buen gusto o el decoro, y/o que infrinjan, violen o quebranten  los derechos de propiedad intelectual o industrial, el derecho a la imagen o la Ley. En estos casos,  APROPERTIES REAL ESTATE ASSETS S.L. se reserva el derecho a retirar de inmediato el contenido,  pudiendo solicitar el bloqueo permanente del usuario. 

APROPERTIES REAL ESTATE ASSETS S.L. no se hará responsable de los contenidos que libremente ha  publicado un usuario. 

El usuario debe tener presente que sus publicaciones serán conocidas por los otros usuarios, por lo que él  mismo es el principal responsable de su privacidad. 

Las imágenes que puedan publicarse en la página no serán almacenadas en ningún sistema de tratamiento por  parte de APROPERTIES REAL ESTATE ASSETS S.L., pero sí que permanecerán en la Red Social. 

Concursos y promociones 

APROPERTIES REAL ESTATE ASSETS S.L. se reserva el derecho a realizar concursos y promociones, en los  que podrá participar el usuario unido a su página. Las bases de cada uno de ellos, cuando se utilice para ello la  plataforma de la Red Social, serán publicadas en la misma. Cumpliendo siempre con la LSSI-CE y con cualquier  otra norma que le sea de aplicación. 

La Red Social no patrocina, avala ni administra, de modo alguno, ninguna de nuestras promociones, ni está  asociada a ninguna de ellas.

Publicidad 

APROPERTIES REAL ESTATE ASSETS S.L. utilizará la Red Social para publicitar sus productos y servicios, en  todo caso, si decide tratar sus datos de contacto para realizar acciones directas de prospección comercial, será  siempre, cumpliendo con las exigencias legales del RGPD y de la LSSI-CE. 

No se considerará publicidad el hecho de recomendar a otros usuarios la página de APROPERTIES REAL  ESTATE ASSETS S.L. para que también ellos puedan disfrutar de las promociones o estar informados de su  actividad. 

A continuación detallamos el enlace a la política de privacidad de la Red Social: 

ÚLTIMA ACTUALIZACIÓN: 21 de enero de 2022.

Utilitzem cookies pròpies y de tercers per fer funcionar de manera segura la nostra pàgina web i personalitzar el seu contingut. Igualment, fem servir cookies per mesurar i obtenir dades de la navegació que realitza i per ajustar la publicitat als seus gustos i preferències. Premi el botó "Acceptar totes" per confirmar que ha llegit i acceptat l'informació presentada. Per administrar o deshabilitar aquestes cookies faci clic a "Configuració". Pot obtenir més informació a la nostra política de cookies.
Modificar cookies
Tècniques i funcionals Sempre activades
Aquest lloc web utilitza cookies pròpies per recopilar informació amb la finalitat de millorar els nostres serveis. Si continua navegant, suposa l'acceptació de la instal·lació de les mateixes. L'usuari té la possibilitat de configurar el navegador podent, si així ho desitja, impedir que siguin instal·lades al disc dur, encara que haurà de tenir en compte que aquesta acció podrà ocasionar dificultats de navegació de la pàgina web.
Analítiques i personalització
Permeten fer el seguiment i l'anàlisi del comportament dels usuaris d'aquest lloc web. La informació recollida mitjançant aquest tipus de cookies s'utilitza en el mesurament de l'activitat del web per a l'elaboració de perfils de navegació dels usuaris per introduir millores en funció de l'anàlisi de les dades d'ús que fan els usuaris del servei. Permeten desar la informació de preferència de l'usuari per millorar la qualitat dels nostres serveis i oferir una millor experiència a través de productes recomanats.
Marketing i publicitat
Aquestes cookies són utilitzades per emmagatzemar informació sobre les preferències i les eleccions personals de l'usuari a través de l'observació continuada dels seus hàbits de navegació. Gràcies a elles, podem conèixer els hàbits de navegació al lloc web i mostrar publicitat relacionada amb el perfil de navegació de l'usuari.