Obra nova a Galvany

PROMOCIÓ DE LUXE EXCLUSIVA AL CARRER SANTALÓ

Superfície
201m2
Finalització
Q2 2025
Obra nova
Preu a consultar

T'agrada? Contacta amb nosaltres

  • He llegit i accepto la condicions d'us

Unitats en aquesta promoció
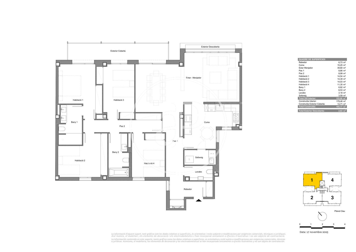
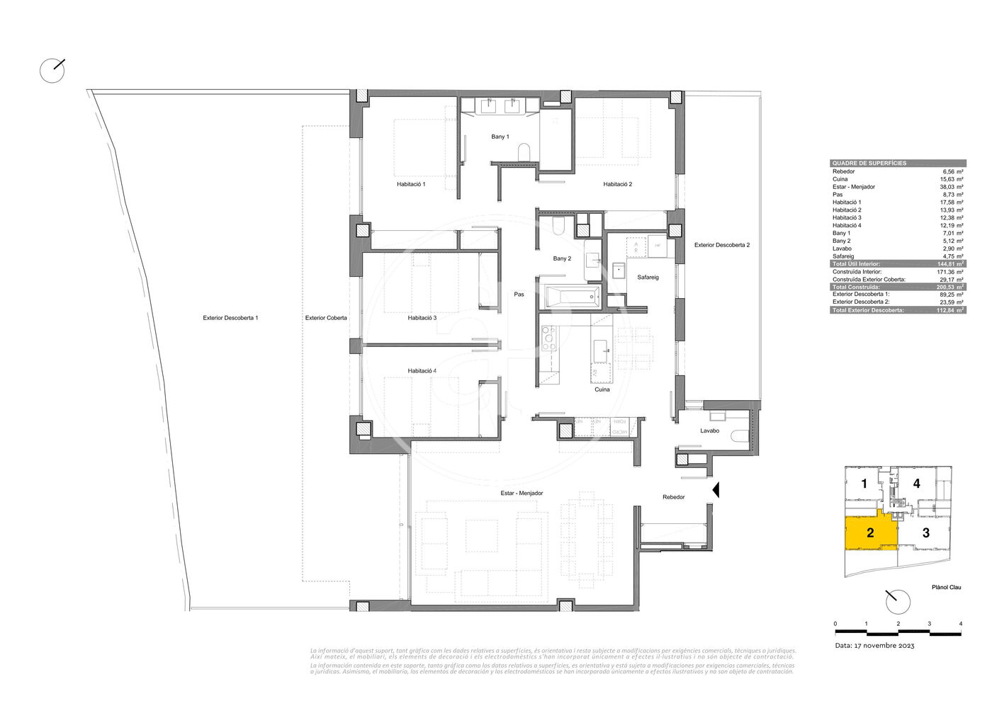
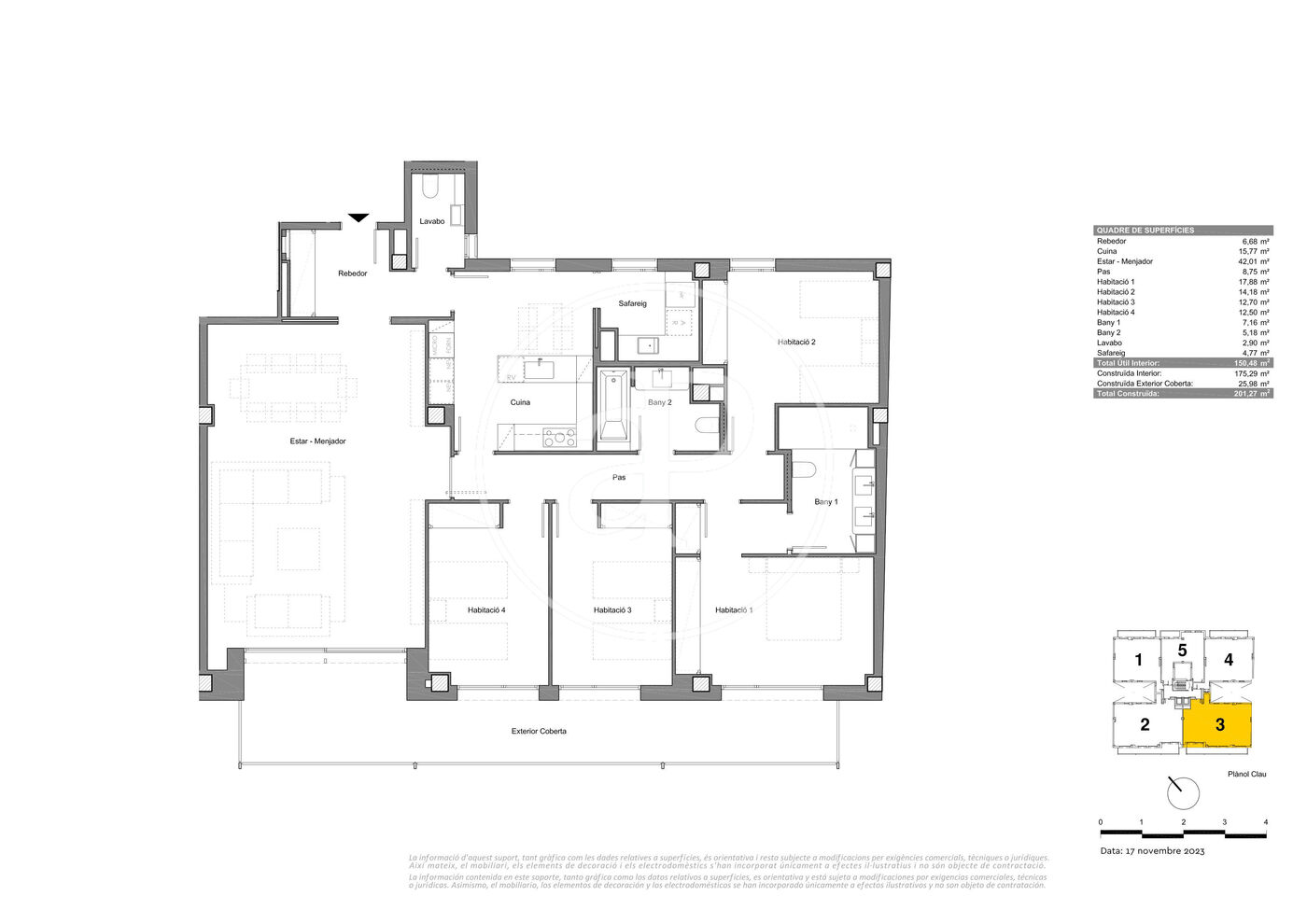
TipusUnitatSuperfícieTerrassaDormitorisBanysPreuEstatPlànolsPDF
Pis1° 3201 m21 (25,98 m2)431.726.000 €DisponibleVeure plànolDownload PDF

Nova promoció de luxe en l'exclusiva zona de Sant Gervasi-Galvany. Situada estratègicament en un dels barris amb major qualitat de vida de la ciutat, compta amb tots els serveis a pocs passos, així com excel·lents connexions tant en vehicle privat com en transport públic.

La promoció està formada per 23 habitatges de 3 i 4 dormitoris. Compta amb garatges disponibles així com zones comunes amb piscines en la coberta.

Els pisos de plantes baixes tenen àmplies terrasses privades, que ompliran de llum cada racó de la teva nova llar. L'interior dels habitatges, combina a la perfecció un disseny funcional i sofisticat, amb una cuidada distribució que aporta una lluminositat inigualable. Totes les estades han estat dissenyades per a aprofitar al màxim l'espai i la llum natural. La cuina inclou un acollidor office. La climatització és per aerotèrmia, una energia neta, ecològica i respectuosa amb el medi ambient, que aporta refrigeració a l'estiu, calefacció a l'hivern i aigua calenta sanitària durant tot l'any a un cost molt més reduït per als seus futurs propietaris.

Els habitatges de 4 dormitoris, situades en l'última planta, inclouen dos banys, lavabo, cuina independent amb office i un gran saló diàfan. Des d'allí podràs accedir a l'àmplia terrassa.

Les plantes primeres a tercera t'ofereixen àmplies i acollidors habitatges en tres dormitoris amb cuina semioberta al lluminosos saló. Tots els habitatges compten amb el dormitori principal en suite.

El residencial també compta amb una zona comuna amb piscina, un espai ideal per a compartir moments de qualitat.

Sobre Sant Gervasi - Galvany

És la zona residencial per excel·lència, està perfectament comunicada, abunden els espais verds i una àmplia oferta d'exclusius restaurants, gimnasos i comerços.

Sant Gervasi conforma una de les zones residencials més selectes de Barcelona. Aquest barri ofereix un ampli ventall de restaurants amb l'avantatge de disposar d'una excel·lent connexió amb el centre de la ciutat. 

Es tracta d'un districte tranquil i familiar, que gaudeix de la proximitat dels més prestigiosos centres sanitaris, consolats i exclusius col·legis internacionals. En aquesta selecta zona de Barcelona oferim palauets, àmplies i luxoses cases de disseny amb bells jardins i piscines, en agradables veïnats i amb privilegiades vistes al mar, pisos d'alt standing, amplis dúplex amb els seus exclusius i pisos amb vistes al parc.

 

Propietats vistes recentment

Casa en venda
VSC2512007
1.800.000 €

Casa en venda a Sant Domènec

Sant Domènec, Vallès Occidental
aProperties té el plaer de presentar en exclusiva aquest extraordinari habitatge dissenyat pel prestigiós arquitecte Ramón Andreu. Aquesta propietat és una peça única d’arquitectura contemporània, que destaca per la seva elegància, per l’amplitud dels seus espais i per la cuidada selecció de materials d’alta qualitat. L’habitatge es troba en perfecte estat de conservació, fruit d’un manteniment continu i meticulós. Va ser reformat íntegrament l’any 2000 i compta amb una última reforma realitzada el 2021. Situada en una zona residencial tranquil·la i consolidada, la propietat gaudeix d’una ubicació excepcional, a tocar del centre de Sant Cugat i a només 10 minuts caminant de l’estació dels FGC – Centre, oferint un equilibri perfecte entre privacitat i vida urbana. L’habitatge consta de 436 m² construïts segons cadastre, que inclouen dos porxos exteriors i tres terrasses. Ubicada en una parcel·la de 470 m², compta amb un jardí privat que ofereix gran intimitat i una piscina salina de 24 m². A la planta baixa, el rebedor dona pas a un ampli i lluminós saló-menjador, amb sortida a un porxo davanter i connectat mitjançant una sofisticada porta corredissa de vidre amb la cuina office, des d’on es gaudeixen agradables vistes al jardí. Des d’aquesta zona s’accedeix directament al porxo exterior, equipat amb espai per a menjador a l’aire lliure, ideal per gaudir del jardí i la piscina. En aquesta planta també hi trobem un lavabo de cortesia, una àmplia zona d’aigües i l’accés directe al pàrquing. La primera planta acull la zona de descans, composta per cinc dormitoris, dels quals quatre són dormitoris dobles amb armaris encastats, i un d’ells amb sortida a una terrassa privada. Aquesta planta inclou també dos banys de marbre, un amb banyera i un altre amb dutxa. A més, s’hi troba la suite principal, que disposa de dos vestidors i un espectacular bany en suite amb banyera i dutxa independent, concebut com un autèntic espai de benestar. A la planta superior, l’habitatge ofereix una magnífica sala polivalent, equipada amb armaris a mida i amb sortida a dues terrasses, perfecta com a sala d’estar, despatx o zona d’oci. Disposa també d’un sistema elèctric de tancament de l’escala, que permet sectoritzar la planta i optimitzar el confort. L’habitatge disposa de sistema de climatització per conductes de fred i calor, fusteria exterior de fusta amb doble envidrament i finestres amb sistema abatible i oscil·lobatent, terres interiors de parquet de fusta Doussié que aporten calidesa, així com tarima exterior de fusta d’Iroko, ideal per als espais a l’aire lliure. L’escala interior i els pilars exteriors, realitzats en acer Corten, reforcen el caràcter contemporani i arquitectònic de la vivenda. La cuina office de disseny N2 està equipada amb electrodomèstics Miele i sistema d’osmosi. Banys en marbre blanc Macael d’alta qualitat, amb armaris i tovallolers elèctrics. L’habitatge disposa de muntacàrregues i compta amb rampa d’accés al jardí per a persones amb mobilitat reduïda. Una llar a punt per viure, que combina disseny, exclusivitat i benestar. A aProperties comptem amb els millors agents immobiliaris per oferir-li una atenció professional, personalitzada i eficient, i estem a la seva disposició per proporcionar-li, si així ho desitja, un estudi de finançament sense cap cost. No dubti a posar-se en contacte amb nosaltres!
Superfície 412 m2
Parcela 450 m2
Dormitoris 5
Banys 4
1.800.000 €
Casa en venda
VV2507026
335.000 €

Casa en venda amb terrassa a San Miguel (Chiva)

San Miguel, Hoya de Buñol
aProperties presenta en exclusiva este elegant xalet independent amb piscina infantil i plaques solars, situat a la prestigiosa Urbanització Calicanto, zona Sant Miquel. Construït el 2010 i en perfecte estat, aquest xalet de 192 m² combina un disseny modern, amplitud, llum natural i confort, en un entorn tranquil i segur, ideal per a famílies que busquen qualitat de vida sense renunciar a la proximitat de València. La propietat es distribueix en dues plantes i compta amb preinstal·lació per ascensor, la qual cosa ofereix una gran comoditat i adaptabilitat per a persones de totes les edats. A la planta baixa, trobem un garatge tancat amb capacitat per a dos vehicles, accés directe des del carrer i espai addicional d'emmagatzematge, aportant seguretat i pràctica en el dia a dia. A la planta principal, un ampli i lluminós saló-menjador s'obre a una gran terrassa coberta amb vistes despejades, creant l'ambient perfecte per gaudir de reunions familiars o moments de relax a l'aire lliure durant tot l'any. La cuina és independent, moderna i totalment funcional, separada del saló per una elegant paret de vidre que maximitza la sensació d'amplitud i es connecta amb una terrassa auxiliar, ideal per a rentadores i emmagatzematge. També en aquesta planta es troba un lavabo de cortesia i un pràctic armari encastat a l'entrada, que contribueix a mantenir l'organització. La planta superior està destinada al descans i compta amb tres dormitoris amb armaris encastats de gran capacitat. El dormitori principal, tipus suite, disposa de bany privat, un ampli vestidor i accés a una terrassa privada des de la qual gaudir de les vistes i la tranquil·litat. Una altra de les habitacions també té sortida a una segona terrassa, mentre que les habitacions secundàries tenen accés directe a un porxo posterior, on es troba una acollidora piscina infantil, dissenyada especialment per a la seguretat i gaudi dels més petits. Un bany complet addicional dona servei a la resta de les habitacions, aportant funcionalitat i confort. Aquest xalet destaca per la seva eficiència energètica gràcies a les plaques solars instal·lades, que permeten un estalvi considerable en la factura de llum, fomentant al mateix temps un estil de vida més sostenible. A més, disposa d'aire condicionat per conductes fred/calor independents per planta, terrasses amb vistes en diverses estances, armaris encastats en passadissos i habitacions, i una excel·lent distribució que assegura lluminositat i confort en cada racó de la casa. Situat a la urbanització Calicanto, una de les zones més consolidades i exclusives, aquest xalet t'ofereix viure envoltat de natura i tranquil·litat, amb vistes panoràmiques a la vall i àmplies zones verdes que conviden a gaudir d'activitats a l'aire lliure. A només 20 minuts de València, amb accés còmode a través de l'autovia A-3, gaudiràs de la proximitat de la ciutat sense renunciar a la pau d'un entorn residencial. La vivenda està a prop del Col·legi Internacional de Levante, així com de comerços, serveis de salut i zones esportives, la qual cosa aporta una gran comoditat per a les famílies amb fills en edat escolar. Aquesta propietat està llesta per entrar a viure, oferint l'equilibri perfecte entre amplitud, llum natural, eficiència energètica, confort i una ubicació immillorable, convertint-la en una opció ideal per a aquells que busquen una llar amb tot el necessari per gaudir d'un estil de vida tranquil i de qualitat a Calicanto. No deixes passar aquesta oportunitat única d'adquirir un xalet on l'amplitud, el confort i la funcionalitat es fusionen amb l'entorn natural i la proximitat a València. Contacta'ns, estarem encantats d'agendar la teua visita i mostrar-te el teu proper habitatge.
Superfície 192 m2
Dormitoris 3
Banys 3
335.000 €
Casa en venda
ONPM2511002
2.640.000 €

Casa en venda a Son Gual

Son Gual, Mallorca
Vistes impressionants, un disseny arquitectònic únic i una ubicació immillorable. Situada en un ampli terreny de 2.000 m², aquesta exclusiva vila de luxe de 400 m² combina elegància, confort i vistes panoràmiques inigualables. La propietat es distribueix en diverses plantes, cadascuna dissenyada per maximitzar l’experiència de viure en un entorn privilegiat. A la planta baixa hi trobem espais oberts i lluminosos, com un ampli saló-menjador que connecta directament amb la cuina totalment equipada, amb electrodomèstics d’alta gamma Miele. Els grans finestrals permeten que la llum natural inundi cada racó, oferint vistes espectaculars al jardí, a la piscina i a la impressionant Serra de Tramuntana. Des d’aquí s’accedeix a un encantador jardí amb una piscina de disseny, perfecta per gaudir del clima mediterrani. La planta superior acull tres habitacions en suite, cadascuna amb sortida a una espaiosa terrassa que ofereix un ambient tranquil i privat. La suite principal destaca per la seva amplitud, amb vestidor, bany en suite i accés directe a una terrassa privada. A la coberta, es poden gaudir de vistes panoràmiques de 360 graus que abracen la badia de Palma i la majestuosa Serra de Tramuntana, creant un ambient ideal per relaxar-se i contemplar el paisatge. La planta soterrani és un espai polivalent que s’adapta a diverses necessitats. A més de comptar amb un celler sofisticat, disposa d’una bugaderia equipada amb rentadora i assecadora Miele. L’espai també permet la creació d’un gimnàs, sala de cinema o qualsevol altra estança a mida, segons les preferències del propietari. Les tres plantes estan connectades per un ascensor d’última generació, que facilita l’accés a tots els nivells. Un lloc on es respira tranquil·litat, envoltat de la natura més autèntica, però amb la comoditat d’estar a només 15 minuts del bullici i la vida vibrant de Palma. Ideal per als amants del golf, la propietat es troba a pocs metres del prestigiós camp de golf de Son Gual, fet que converteix aquest indret en un refugi perfecte per a aquells que busquen una vida relaxada sense renunciar a la proximitat de la ciutat. La casa es lliura totalment moblada i amb el disseny paisatgístic acabat. T’imagines vivint aquí? Una vila que ofereix l’equilibri perfecte entre luxe, confort i serenor, en una de les zones més exclusives de l’illa.
Superfície 396 m2
Dormitoris 6
Banys 4
2.640.000 €
x

DATOS DEL PROPIETARIO DE LA WEB

  • RAZÓN SOCIAL: APROPERTIES REAL ESTATE ASSETS SL
  • NIF: B66207879
  • DIRECCIÓN  POSTAL: PASSEIG DE GRACIA 85 PLANTA 8 08008, BARCELONA
  • DIRECCIÓN ELECTRÓNICA: [email protected] 
  • OBJETO PRINCIPAL: PLATAFORMA INMOBILIARIA

De conformidad con la normativa vigente y aplicable en protección de datos de carácter personal, le informamos  que sus datos serán incorporados al sistema de tratamiento titularidad de APROPERTIES REAL ESTATE  ASSETS SL. con NIF B66207879 y domicilio social sito en PASSEIG DE GRACIA 85 PLANTA 8 08008,  BARCELONA, y que a continuación se relacionan sus respectivas finalidades, plazos de conservación y bases  legitimadoras. Para aquellos tratamientos que lo requieran, se informa también de la posible elaboración de  perfiles y decisiones automatizadas, así como las posibles cesiones y las transferencias internacionales que  APROPERTIES REAL ESTATE ASSETS S.L. tiene previsto realizar: 

TRATAMIENTOS REALIZADOS

Gestión de la página web

  • Finalidad: Tratamiento y gestión de los datos necesarios para la funcionalidad de la página  web 
  • Plazo de conservación: mientras perdure el consentimiento prestado  
  • Base legítima: El consentimiento del interesado 
  • Tipología de Datos: Datos meramente identificativos 
  • Cesiones: No se prevén 
  • Transferencias internacionales: No se prevén 
  • Elaboraciones de perfiles: No se prevén

Formulario contacto y cotización

  • Finalidad: Atender sus consultas y/o solicitudes 
  • Plazo de conservación: mientras se mantenga el consentimiento prestado. Base legítima: El consentimiento del interesado 
  • Tipología de Datos: Datos meramente identificativos 
  • Cesiones: Ninguna 
  • Transferencias internacionales: No se prevén 
  • Elaboraciones de perfiles: No se prevén

Gestión del cumplimiento normativo

  • Finalidad: Gestión y tramitación de las obligaciones y deberes que se deriven del  cumplimiento de la normativa a la cual está sujeta la entidad 
  • Plazo de conservación: conservación de las copias de los documentos hasta que  prescriban las acciones para reclamarle una posible responsabilidad 
  • Base legítima: El cumplimiento de una ley 
  • Tipología de Datos: Datos meramente identificativos 
  • Cesiones: sus datos serán comunicados en caso de ser necesario a Organismos y/o  administración pública con competencia en la materia con la finalidad de cumplir con las  obligaciones establecidas en la normativa aplicable. Además, se informa que la base  legitimadora de la cesión es cumplir con las obligaciones establecidas en la normativa  aplicable 
  • Transferencias internacionales: No se prevén 
  • Elaboraciones de perfiles: No se prevén

Acciones Comerciales

  • Finalidad: Captación, registro y tratamiento de datos con finalidades de publicidad y  prospección comercial de nuestros productos y/o servicios 
  • Plazo de conservación: mientras se mantenga el consentimiento prestado Base legítima: El consentimiento del interesado 
  • Tipología de Datos: Datos meramente identificativos 
  • Cesiones: Ninguna 
  • Transferencias internacionales: No se prevén 
  • Elaboraciones de perfiles: No se prevén

Gestión Bolsa de empleo

  • Finalidad: Registro y tratamiento de datos de candidatos para finalidades de selección de  personal referentes a puestos de trabajo vacantes de las entidades colaboradoras y gestión  de la bolsa de empleo 
  • Plazo de conservación: mientras perdure el consentimiento prestado 
  • Base legítima: El consentimiento del interesado 
  • Tipología de Datos: Datos meramente identificativos 
  • Cesiones: sus datos serán comunicados en caso de ser necesario a Entidades  Colaboradoras con la finalidad de gestionar la bolsa de empleo y trasladar la candidatura a  la empresa colaboradora. Además, se informa que la base legitimadora de la cesión es su  consentimiento 
  • Transferencias internacionales: No se prevén 
  • Elaboraciones de perfiles: No se prevén

GESTIÓN DE DATOS

De acuerdo con lo establecido por el Reglamento (UE) 2016/679 del Parlamento Europeo y del Consejo, de 27 de abril de 2016, relativo a la protección de las personas físicas en lo que respecta al tratamiento de datos personales y a la libre circulación de estos datos y por el que se deroga la Directiva 95/46/CE, APROPERTIES REAL ESTATE ASSETS SL informa al Usuario en relación a los sitios web www.aproperties.es y derivados (en adelante, sitios web), que la información que se pueda recabar en los sitios web se incorporará en los sistemas de tratamiento responsabilidad de APROPERTIES REAL ESTATE ASSETS SL, con las finalidades de realizar la gestión y el mantenimiento de la relación con el Usuario con los sitios web, así como las labores de información, estadística, y comercialización de los servicios y de las actividades relacionadas con los mismos.

APROPERTIES REAL ESTATE ASSETS SL informa de que la base legítima que ampara los tratamientos indicados es la existencia de un interés legítimo, asimismo en cuanto a la instalación de cookies se encuentran legitimados en la existencia del consentimiento prestado por parte de los interesados o, en su caso, de los representantes legales de los mismos.

  • APROPERTIES REAL ESTATE ASSETS SL informa de que los datos serán conservados mientras perdure el consentimiento prestado por el Usuario, exceptuando aquellos casos en los que estemos obligados legalmente a su conservación.
  • De acuerdo con los derechos que le confiere la normativa vigente en protección de datos, el Usuario podrá dirigirse a la Autoridad de Control competente para presentar la reclamación que considere oportuna, así como también podrá ejercer los derechos de acceso, rectificación, limitación de tratamiento, supresión, portabilidad y oposición al tratamiento de sus datos de carácter personal, así como a la retirada del consentimiento prestado para el tratamiento de los mismos.

De acuerdo con lo establecido por el artículo 32 del Reglamento (UE) 2016/679 del Parlamento Europeo y del Consejo, de 27 de abril de 2016, relativo a la protección de las personas físicas en lo que respecta al tratamiento de datos personales y a la libre circulación de estos datos y por el que se deroga la Directiva 95/46/CE, APROPERTIES REAL ESTATE ASSETS SL se compromete a adoptar las medidas técnicas y organizativas necesarias, acorde al nivel de riesgos que acompañan los tratamientos realizados por éstas e indicados en el apartado de los términos y condiciones de uso, de forma que garanticen su integridad, confidencialidad y disponibilidad.
 
Asimismo, APROPERTIES REAL ESTATE ASSETS SL informa que en el caso que el Usuario introduzca datos en los formularios de los sitios web de terceros, serán estos últimos los responsables de los datos de carácter personal, y quienes deberán adoptar las medidas técnicas descritas en el siguiente apartado.

DERECHOS DE LOS INTERESADOS

APROPERTIES REAL ESTATE ASSETS S.L. informa a los Usuarios que, podrá ejercer los derechos  de acceso, rectificación, limitación, supresión, portabilidad y oposición al tratamiento de sus datos de carácter personal ante el Responsable del Tratamiento, así como a la retirada del consentimiento prestado. 

  • Derecho de Acceso: Es el derecho del usuario a obtener información sobre sus datos concretos de carácter personal y del tratamiento que se haya realizado o realice, así como de la información disponible sobre el origen de dichos datos y las comunicaciones realizadas o previstas de los mismos. 
  • Derecho de Rectificación: Es el derecho del afectado a que se modifiquen los datos que resulten ser inexactos o incompletos. Sólo podrá satisfacerse en relación a aquella información que se encuentre bajo el control de la APP, por ejemplo, eliminar comentarios publicados en la propia página, imágenes o contenidos web donde consten datos de carácter personal del usuario. 
  • Derecho a la Limitación de tratamiento: Es el derecho a que se limiten los fines del tratamiento previstos de forma original por el responsable del tratamiento. 
  • Derecho de Supresión: Es el derecho a suprimir los datos de carácter personal del usuario, a excepción de lo previsto en el propio RGPD o en otras normativas aplicables que determinen la obligatoriedad de la conservación de los mismos, en tiempo y forma. 
  • Derecho de portabilidad: El derecho a recibir los datos personales que el usuario, haya facilitado, en un formato estructurado, de uso común y lectura mecánica, y a transmitirlos a otro responsable. 
  • Derecho de Oposición: Es el derecho del usuario a que no se lleve a cabo el tratamiento de sus datos de carácter personal o se cese el tratamiento de los mismos por parte de la APP. 

Para poder ejercer cualquiera de los derechos descritos anteriormente deberá cumplir con los siguientes requisitos: 

- Presentación de un escrito a la dirección indicada en la parte superior de esta (a la atención de APROPERTIES REAL ESTATE ASSETS S.L.) o bien a través de correo electrónico a [email protected]

- El escrito remitido por el titular de los datos que solicite el ejercicio deberá de cumplir los siguientes requisitos legales:

  • Nombre, apellidos del interesado y copia del DNI/NIE o cualquier documento identificativo. En los excepcionales casos en que se admita la representación, será también necesaria la identificación por el mismo medio de la persona que le representa, así como el documento acreditativo de la representación. La fotocopia del DNI podrá ser sustituida siempre que se acredite la identidad por cualquier otro medio válido en derecho. 
  • Petición en que se concreta la solicitud. (Ejercicio en el que se solicita la información a la que se quiere acceder). Si no hace referencia a un fichero concreto se le facilitará toda la información que se tenga con sus datos de carácter personal. Si solicita información de un fichero en concreto, sólo la información de este fichero. Si solicita información relativa a un tercero nunca se podrá facilitar. Si lo solicita por teléfono se le indicará que lo haga por escrito y se le informará de cómo lo puede hacer y la dirección a la que tiene que enviarlo. Nunca se le dará información por teléfono. 
  • Domicilio a efectos de notificaciones. 
  • Fecha y firma del solicitante. 
  • Documentos acreditativos de la petición que formula. 
  • El interesado debe utilizar cualquier medio que permita acreditar el envío y la recepción de la solicitud. 

Por último, le informamos que Usted tiene derecho a presentar una reclamación ante la Agencia Española de  Protección de Datos en caso de que tenga conocimiento o considere que un hecho pueda suponer un  incumplimiento de la normativa aplicable en materia de protección de datos.

APROPERTIES REAL ESTATE ASSETS S.L. se compromete a adoptar las medidas técnicas y organizativas  necesarias, acorde al nivel de riesgos que acompañan los tratamientos realizados por éstas e indicados en el  apartado de los términos y condiciones de uso, de forma que garanticen su integridad, confidencialidad y disponibilidad.

POLÍTICA DE REDES SOCIALES

De conformidad con lo establecido en la normativa vigente y aplicable de protección de datos de carácter  personal y la Ley 34/2002, de 11 de julio, de Servicios de la Sociedad de la Información y de Comercio  Electrónico (LSSI-CE), APROPERTIES REAL ESTATE ASSETS S.L. informa a los usuarios, que ha procedido a  crear un perfil en la/s Red/es Social/es Facebook, Instagram, Linkedin y YouTube, con la finalidad principal de  publicitar sus productos y servicios. 

El usuario dispone de un perfil en la misma Red Social y ha decidido unirse a la página creada por  APROPERTIES REAL ESTATE ASSETS S.L., mostrando así interés en la información que se publicite en la  Red. Al unirse a nuestra página, nos facilita su consentimiento para el tratamiento de aquellos datos personales  publicados en su perfil. 

El usuario puede acceder en todo momento a las políticas de privacidad de la propia Red Social, así como  configurar su perfil para garantizar su privacidad. 

APROPERTIES REAL ESTATE ASSETS S.L. tiene acceso y trata aquella información pública del usuario, en  especial, su nombre de contacto. Estos datos, sólo son utilizados dentro de la propia Red Social. No son  incorporados a ningún sistema de tratamiento. 

Derechos de los interesados 

En relación a los acceso, rectificación, limitación de tratamiento, supresión, portabilidad y oposición al tratamiento  de sus datos de carácter personal, de los que usted dispone y que pueden ser ejercitados ante APROPERTIES  REAL ESTATE ASSETS S.L., de acuerdo con la RGPD, debe tener en cuenta los siguientes matices: 

  • Derecho de Acceso: Es el derecho del usuario a obtener información sobre sus datos concretos de carácter personal y del tratamiento que se haya realizado o realice, así como de la información disponible sobre el origen de dichos datos y las comunicaciones realizadas o previstas de los mismos. 
  • Derecho de Rectificación: Es el derecho del afectado a que se modifiquen los datos que resulten ser inexactos o incompletos. Sólo podrá satisfacerse en relación a aquella información que se encuentre bajo el control de APROPERTIES REAL ESTATE ASSETS S.L., por ejemplo, eliminar comentarios publicados en la propia página, imágenes o contenidos web donde consten datos de carácter personal del usuario. 
  • Derecho a la Limitación de tratamiento: Es el derecho a que se limiten los fines del tratamiento previstos de forma original por el responsable del tratamiento. 
  • Derecho de Supresión: Es el derecho a suprimir los datos de carácter personal del usuario, a excepción de lo previsto en el propio RGPD o en otras normativas aplicables que determinen la obligatoriedad de la conservación de los mismos, en tiempo y forma. 
  • Derecho de portabilidad: El derecho a recibir los datos personales que el usuario, haya facilitado, en un formato estructurado, de uso común y lectura mecánica, y a transmitirlos a otro responsable. 
  • Derecho de Oposición: Es el derecho del usuario a que no se lleve a cabo el tratamiento de sus datos de carácter personal o se cese el tratamiento de los mismos por parte de APROPERTIES REAL ESTATE ASSETS S.L.. 

APROPERTIES REAL ESTATE ASSETS S.L. realizará las siguientes actuaciones: 

  • Acceso a la información pública del perfil. 
  • Publicación en el perfil del usuario de toda aquella información ya publicada en la página de APROPERTIES REAL ESTATE ASSETS S.L..
  • Enviar mensajes personales e individuales a través de los canales de la Red Social. 
  • Actualizaciones del estado de la página que se publicarán en el perfil del usuario. 

El usuario siempre puede controlar sus conexiones, eliminar los contenidos que dejen de interesarle y restringir  con quién comparte sus conexiones, para ello deberá acceder a su configuración de privacidad. 

Publicaciones 

El usuario, una vez unido a la página de APROPERTIES REAL ESTATE ASSETS S.L., podrá publicar en ésta  última comentarios, enlaces, imágenes o fotografías o cualquier otro tipo de contenido multimedia soportado por  la Red Social. El usuario, en todos los casos, debe ser el titular de los mismos, gozar de los derechos de autor y  de propiedad intelectual o contar con el consentimiento de los terceros afectados. Se prohíbe expresamente  cualquier publicación en la página, ya sean textos, gráficos, fotografías, vídeos, etc. que atenten o sean  susceptibles de atentar contra la moral, la ética, el buen gusto o el decoro, y/o que infrinjan, violen o quebranten  los derechos de propiedad intelectual o industrial, el derecho a la imagen o la Ley. En estos casos,  APROPERTIES REAL ESTATE ASSETS S.L. se reserva el derecho a retirar de inmediato el contenido,  pudiendo solicitar el bloqueo permanente del usuario. 

APROPERTIES REAL ESTATE ASSETS S.L. no se hará responsable de los contenidos que libremente ha  publicado un usuario. 

El usuario debe tener presente que sus publicaciones serán conocidas por los otros usuarios, por lo que él  mismo es el principal responsable de su privacidad. 

Las imágenes que puedan publicarse en la página no serán almacenadas en ningún sistema de tratamiento por  parte de APROPERTIES REAL ESTATE ASSETS S.L., pero sí que permanecerán en la Red Social. 

Concursos y promociones 

APROPERTIES REAL ESTATE ASSETS S.L. se reserva el derecho a realizar concursos y promociones, en los  que podrá participar el usuario unido a su página. Las bases de cada uno de ellos, cuando se utilice para ello la  plataforma de la Red Social, serán publicadas en la misma. Cumpliendo siempre con la LSSI-CE y con cualquier  otra norma que le sea de aplicación. 

La Red Social no patrocina, avala ni administra, de modo alguno, ninguna de nuestras promociones, ni está  asociada a ninguna de ellas.

Publicidad 

APROPERTIES REAL ESTATE ASSETS S.L. utilizará la Red Social para publicitar sus productos y servicios, en  todo caso, si decide tratar sus datos de contacto para realizar acciones directas de prospección comercial, será  siempre, cumpliendo con las exigencias legales del RGPD y de la LSSI-CE. 

No se considerará publicidad el hecho de recomendar a otros usuarios la página de APROPERTIES REAL  ESTATE ASSETS S.L. para que también ellos puedan disfrutar de las promociones o estar informados de su  actividad. 

A continuación detallamos el enlace a la política de privacidad de la Red Social: 

ÚLTIMA ACTUALIZACIÓN: 21 de enero de 2022.

Utilitzem cookies pròpies y de tercers per fer funcionar de manera segura la nostra pàgina web i personalitzar el seu contingut. Igualment, fem servir cookies per mesurar i obtenir dades de la navegació que realitza i per ajustar la publicitat als seus gustos i preferències. Premi el botó "Acceptar totes" per confirmar que ha llegit i acceptat l'informació presentada. Per administrar o deshabilitar aquestes cookies faci clic a "Configuració". Pot obtenir més informació a la nostra política de cookies.
Modificar cookies
Tècniques i funcionals Sempre activades
Aquest lloc web utilitza cookies pròpies per recopilar informació amb la finalitat de millorar els nostres serveis. Si continua navegant, suposa l'acceptació de la instal·lació de les mateixes. L'usuari té la possibilitat de configurar el navegador podent, si així ho desitja, impedir que siguin instal·lades al disc dur, encara que haurà de tenir en compte que aquesta acció podrà ocasionar dificultats de navegació de la pàgina web.
Analítiques i personalització
Permeten fer el seguiment i l'anàlisi del comportament dels usuaris d'aquest lloc web. La informació recollida mitjançant aquest tipus de cookies s'utilitza en el mesurament de l'activitat del web per a l'elaboració de perfils de navegació dels usuaris per introduir millores en funció de l'anàlisi de les dades d'ús que fan els usuaris del servei. Permeten desar la informació de preferència de l'usuari per millorar la qualitat dels nostres serveis i oferir una millor experiència a través de productes recomanats.
Marketing i publicitat
Aquestes cookies són utilitzades per emmagatzemar informació sobre les preferències i les eleccions personals de l'usuari a través de l'observació continuada dels seus hàbits de navegació. Gràcies a elles, podem conèixer els hàbits de navegació al lloc web i mostrar publicitat relacionada amb el perfil de navegació de l'usuari.