Piso reformado en venta en Poblesec

Superficie
53 m²
Dormitorios
2
Baño
1
Piso en venta
255.000 €
Vendida

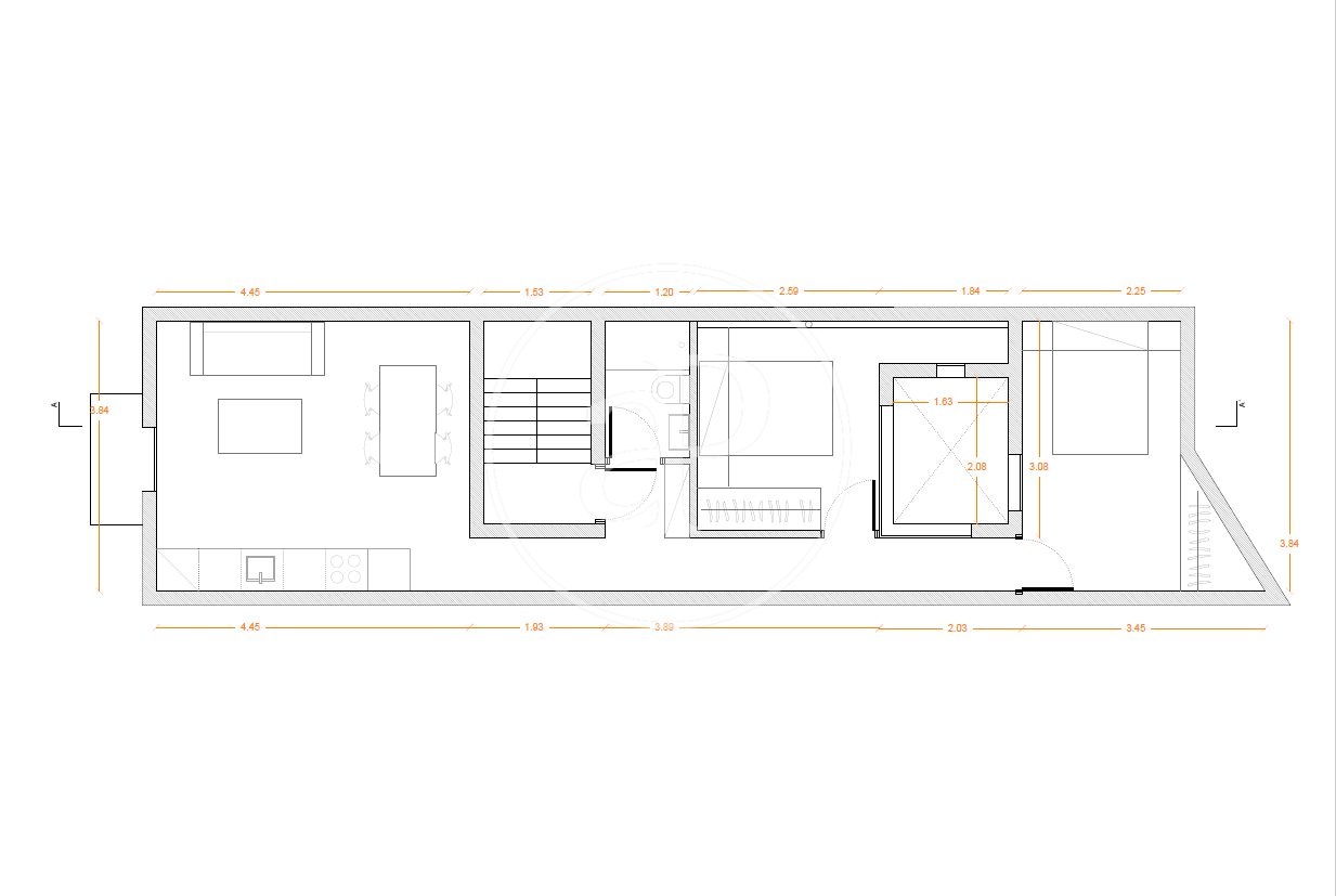
En la Calle Elkano, precioso piso para estrenar

Ubicado en el corazón del emblemático barrio del Poble Sec, el piso se encuentra en una finca clásica de tan solo cuatro vecinos.

La vivienda está reformada integralmente de manera funcional y con mucha atención a todos los detalles. La superficie de 53m2, según catastro, se distribuye en una agradable sala de estar exterior con salida al balcón y cocina vista, un pasillo de distribución, dos habitaciones dobles, un baño completo y una zona de agua.

Entre las muchísimas cualidades de este piso destacan los techos con bóvedas catalanas y vigas de madera vistas que dan un carácter de especial calidez a toda la vivienda.

¡Sin duda un piso precioso!

¡No pierda la oportunidad de visitarlo y llámenos para concertar visita!

  • Características
  • Vistas

Acerca de El Poble Sec

El Poble Sec es uno de los barrios que componen el distrito de Sants-Montjuïc. El barrio constituyó el primer ensanche (eixample) de Barcelona, con el derribo de las antiguas murallas de la ciudad, anteriormente incluso al plan de Cerdà. Ha sido el barrio de personajes ilustres como el cantautor Joan Manuel Serrat, el cantante de rumba catalana Peret o la periodista Julia Otero. Dada su situación al lado de la Ronda del Litoral, el barrio es fácilmente accesible en coche. Otras opciones de transporte son el autobús o el metro (Poble Sec y Paral·lel).

Propiedades vistas recientemente

Piso en alquiler
Alquilada
AB2409031
2.950 €

Piso en alquiler en el Paseo Colón (El Gótico)

El Gòtic, Barcelona ciudad
¡¡¡DISPONIBILIDAD INMEDIATA!!!  Situado en una ubicación envidiable, frente del Port de Barcelona y al lado de Via Laietana, La Rambla y del barrio de El Born, se encuentra este precioso piso amueblado de 104 m2 construidos.   El apartamento está amueblado con mucho gusto y decorado con tonos suaves y acabados de madera, que le dan un toque actual. Es de nueva construcción, con elementos modernos, pero conservando el encanto de la época, como los techos artesonados con molduras originales y recuperadas y los suelos hidráulicos que le dan una calidez excepcional.  La zona de día cuenta con un hermoso y amplio comedor - sala de estar y una elegante cocina totalmente equipada con electrodomésticos de alta gama como nevera / congelador, horno, microondas y lavavajillas. Además, cuenta con suficiente área de almacenamiento y armarios para guardar todo lo que necesitas.  Como complemento, el edificio dispone de una zona chill-out en el roof top con vistas al mar, camas balinesas y una piscina muy disfrutable que hará que tu estancia sea más agradable si cabe.  La zona de descanso dispone de 1 espacioso dormitorio en suite y 2 baños, y otro baño completo con ducha.  Este maravilloso apartamento está equipado con aire acondicionado y calefacción por Aerotermia y ventanas de doble acristalamiento para garantizar el confort en cualquier época del año.   Ubicado en uno de los barrios con más vida de Barcelona, cerca de los mayores puntos de interés del barrio, que cuenta con una impresionante arquitectura y gran cantidad de tiendas y mercados con encanto, a pocos minutos de Plaza Catalunya, el Soho House, Teatro de El Liceu y muy bien comunicado con cualquier punto de la ciudad es la vivienda perfecta para una pareja o ejecutivo que quiera vivir la esencia de la ciudad Condal frente al mar.  ¿Te imaginas vivir aquí? La realidad del mobiliario puede no corresponder exactamente con las fotografías mostradas en este anuncio.* En cumplimiento de la Ley 12/2023 y la Llei 18/2007 informamos que:Índice de R.P.LL: 11,27 € / m2 Respecto a la presente propiedad no existe certificado informativo estatal de referencia de precios de alquiler
Superficie 104 m2
Dormitorio 1
Baños 2
2.950 €
Piso en alquiler
Alquilada
AV2505012
1.600 €

Piso en alquiler en Ruzafa

Ruzafa, Valencia ciudad
aProperties se complace en presentar esta encantadora vivienda, que cuenta con una superficie útil de 94 m², distribuidos en tres habitaciones con armarios empotrados y dos baños completos. Además, dispone de una cómoda y funcional cocina independiente, completamente equipada a excepción de la nevera. Su amplio salón comedor y su generosa terraza son, sin duda, los espacios más destacados de esta propiedad. Todo el inmueble está decorado con exquisitos detalles que, en combinación con su gran amplitud, le permitirán disfrutar de agradables momentos junto a familiares o amigos, o simplemente relajarse tras un largo día de trabajo. La vivienda cuenta con suelos y un baño de mármol, bañera de hidromasaje, puertas de madera y ventanas de climalit. Se alquila sin muebles. Ubicada en una zona inmejorable: el barrio de moda en Valencia, Ruzafa. Una zona emergente, llena de vida, pero al mismo tiempo familiar y tranquila. A tan solo cinco minutos del Ayuntamiento, la Plaza de Toros y la emblemática calle Colón, y perfectamente comunicada mediante paradas de autobús EMT. Además, cuenta con proximidad a colegios, supermercados y farmacias. Plaza de garaje opcional por 150 € adicionales al mes. Los gastos de comunidad e IBI están incluidos. Se requieren dos meses de fianza y solvencia demostrable. Déjese conquistar por este exclusivo piso. Contáctenos, estaremos encantados de atenderle.
Superficie 94 m2
Dormitorios 3
Baños 2
1.600 €
Piso en venta
Vendida
VB2302077
650.000 €

Piso reformado en venta en Calle Sicília

El Fort Pienc, Barcelona ciudad
En una ubicación privilegiada en la Calle Sicilia entre Paseo San Juan y Calle Marina encontramos este acogedor piso ubicado en unos de los mejores barrios de Barcelona. Totalmente reformado para entrar a vivir, el edificio dispone de ascensor. Piso de 91m2 se distribuye de la siguiente manera: tres habitaciones (una doble y dos individuales) en una tercera planta, cuarto real. Al entrar al recibidor a la derecha nos encontramos con las tres habitaciones todas ellas con armarios empotrados y a la izquierda dos baños completos, si seguimos recto llegamos al salón-comedor con la cocina abierta totalmente equipada con acceso a un pequeño balcón que da a la calle y la estancia también dispone de una ventana. Recién reformado íntegramente con acabados de calidad, techos con bóveda catalana y luces led, podemos encontrar un piso con todo lujo de detalles. Dispone de un trastero en el terrado comunitario con grandes vistas sobre la ciudad. Un piso ideal para familias o parejas que quieran disponer de una ubicación inmejorable en un piso tranquilo. Cuenta con suelo de parquet, carpintería de aluminio, calefacción de gas y aire acondicionado por conductos. Está ubicado cerca de los lugares más emblemáticos de la ciudad como el Parque de la Ciudadela, la Vila Olímpica, el Arco del Triunfo…con buenos servicios, zonas verdes, todo tipo de equipamientos deportivos y escolares, muy bien comunicado cerca de la Estación del Norte por metro, bus, tren y autocar. Llámanos y concertamos una visita.
Superficie 96 m2
Dormitorios 3
Baños 2
650.000 €
Piso en venta
Vendida
VB1802044
1.250.000 €

Exclusivo ático en una de las zonas más tranquilas y con encanto del barrio Gótico de Barcelona

El Gòtic, Barcelona ciudad
Este exclusivo ático está ubicado en el Passatge de la Pau, resultado de una intervención urbanística de la segunda mitad del siglo XIX en el barrio gótico de Ciutat Vella de Barcelona y una calle protegida como bien cultural de interés local.Se encuentra en un edificio del 1875 que fue rehabilitado por completo conservando elementos originales que destaca por su majestuosa entrada. El ático tiene un espacio abierto de 160m². La zona de día es diáfana, se compone de tres espacios, una cocina abierta totalmente equipada con electrodomésticos de alta gama, integrando la zona de aguas, un amplio salón-comedor que tiene acceso a  la preciosa terraza de estilo chill out a pie del salón de 52m² y zona de lectura. La zona de noche está abierta al patio de manzana aportando mucha luz, intimidad y tranquilidad. Consta de una master suite con vestidor, baño completo de ducha y bañera, otra habitación doble en suite con baño completo con armario empotrado  dos aseos de cortesía. El proyecto de reforma fue pensado para conservar elementos originales de la vivienda tales como techo de volta catalana, ventanas originales. Calefacción individual de suelo radiante, aire acondicionado por conducto, ascensor y trastero.La vivienda es ideal para toda aquella persona que desee y aprecie vivir en un entorno histórico, rodeado de lugares culturales y gastronómicos.  
Superficie 160 m2
Dormitorios 2
Baños 3
1.250.000 €
x

DATOS DEL PROPIETARIO DE LA WEB

  • RAZÓN SOCIAL: APROPERTIES REAL ESTATE ASSETS SL
  • NIF: B66207879
  • DIRECCIÓN  POSTAL: PASSEIG DE GRACIA 85 PLANTA 8 08008, BARCELONA
  • DIRECCIÓN ELECTRÓNICA: [email protected] 
  • OBJETO PRINCIPAL: PLATAFORMA INMOBILIARIA

De conformidad con la normativa vigente y aplicable en protección de datos de carácter personal, le informamos  que sus datos serán incorporados al sistema de tratamiento titularidad de APROPERTIES REAL ESTATE  ASSETS SL. con NIF B66207879 y domicilio social sito en PASSEIG DE GRACIA 85 PLANTA 8 08008,  BARCELONA, y que a continuación se relacionan sus respectivas finalidades, plazos de conservación y bases  legitimadoras. Para aquellos tratamientos que lo requieran, se informa también de la posible elaboración de  perfiles y decisiones automatizadas, así como las posibles cesiones y las transferencias internacionales que  APROPERTIES REAL ESTATE ASSETS S.L. tiene previsto realizar: 

TRATAMIENTOS REALIZADOS

Gestión de la página web

  • Finalidad: Tratamiento y gestión de los datos necesarios para la funcionalidad de la página  web 
  • Plazo de conservación: mientras perdure el consentimiento prestado  
  • Base legítima: El consentimiento del interesado 
  • Tipología de Datos: Datos meramente identificativos 
  • Cesiones: No se prevén 
  • Transferencias internacionales: No se prevén 
  • Elaboraciones de perfiles: No se prevén

Formulario contacto y cotización

  • Finalidad: Atender sus consultas y/o solicitudes 
  • Plazo de conservación: mientras se mantenga el consentimiento prestado. Base legítima: El consentimiento del interesado 
  • Tipología de Datos: Datos meramente identificativos 
  • Cesiones: Ninguna 
  • Transferencias internacionales: No se prevén 
  • Elaboraciones de perfiles: No se prevén

Gestión del cumplimiento normativo

  • Finalidad: Gestión y tramitación de las obligaciones y deberes que se deriven del  cumplimiento de la normativa a la cual está sujeta la entidad 
  • Plazo de conservación: conservación de las copias de los documentos hasta que  prescriban las acciones para reclamarle una posible responsabilidad 
  • Base legítima: El cumplimiento de una ley 
  • Tipología de Datos: Datos meramente identificativos 
  • Cesiones: sus datos serán comunicados en caso de ser necesario a Organismos y/o  administración pública con competencia en la materia con la finalidad de cumplir con las  obligaciones establecidas en la normativa aplicable. Además, se informa que la base  legitimadora de la cesión es cumplir con las obligaciones establecidas en la normativa  aplicable 
  • Transferencias internacionales: No se prevén 
  • Elaboraciones de perfiles: No se prevén

Acciones Comerciales

  • Finalidad: Captación, registro y tratamiento de datos con finalidades de publicidad y  prospección comercial de nuestros productos y/o servicios 
  • Plazo de conservación: mientras se mantenga el consentimiento prestado Base legítima: El consentimiento del interesado 
  • Tipología de Datos: Datos meramente identificativos 
  • Cesiones: Ninguna 
  • Transferencias internacionales: No se prevén 
  • Elaboraciones de perfiles: No se prevén

Gestión Bolsa de empleo

  • Finalidad: Registro y tratamiento de datos de candidatos para finalidades de selección de  personal referentes a puestos de trabajo vacantes de las entidades colaboradoras y gestión  de la bolsa de empleo 
  • Plazo de conservación: mientras perdure el consentimiento prestado 
  • Base legítima: El consentimiento del interesado 
  • Tipología de Datos: Datos meramente identificativos 
  • Cesiones: sus datos serán comunicados en caso de ser necesario a Entidades  Colaboradoras con la finalidad de gestionar la bolsa de empleo y trasladar la candidatura a  la empresa colaboradora. Además, se informa que la base legitimadora de la cesión es su  consentimiento 
  • Transferencias internacionales: No se prevén 
  • Elaboraciones de perfiles: No se prevén

GESTIÓN DE DATOS

De acuerdo con lo establecido por el Reglamento (UE) 2016/679 del Parlamento Europeo y del Consejo, de 27 de abril de 2016, relativo a la protección de las personas físicas en lo que respecta al tratamiento de datos personales y a la libre circulación de estos datos y por el que se deroga la Directiva 95/46/CE, APROPERTIES REAL ESTATE ASSETS SL informa al Usuario en relación a los sitios web www.aproperties.es y derivados (en adelante, sitios web), que la información que se pueda recabar en los sitios web se incorporará en los sistemas de tratamiento responsabilidad de APROPERTIES REAL ESTATE ASSETS SL, con las finalidades de realizar la gestión y el mantenimiento de la relación con el Usuario con los sitios web, así como las labores de información, estadística, y comercialización de los servicios y de las actividades relacionadas con los mismos.

APROPERTIES REAL ESTATE ASSETS SL informa de que la base legítima que ampara los tratamientos indicados es la existencia de un interés legítimo, asimismo en cuanto a la instalación de cookies se encuentran legitimados en la existencia del consentimiento prestado por parte de los interesados o, en su caso, de los representantes legales de los mismos.

  • APROPERTIES REAL ESTATE ASSETS SL informa de que los datos serán conservados mientras perdure el consentimiento prestado por el Usuario, exceptuando aquellos casos en los que estemos obligados legalmente a su conservación.
  • De acuerdo con los derechos que le confiere la normativa vigente en protección de datos, el Usuario podrá dirigirse a la Autoridad de Control competente para presentar la reclamación que considere oportuna, así como también podrá ejercer los derechos de acceso, rectificación, limitación de tratamiento, supresión, portabilidad y oposición al tratamiento de sus datos de carácter personal, así como a la retirada del consentimiento prestado para el tratamiento de los mismos.

De acuerdo con lo establecido por el artículo 32 del Reglamento (UE) 2016/679 del Parlamento Europeo y del Consejo, de 27 de abril de 2016, relativo a la protección de las personas físicas en lo que respecta al tratamiento de datos personales y a la libre circulación de estos datos y por el que se deroga la Directiva 95/46/CE, APROPERTIES REAL ESTATE ASSETS SL se compromete a adoptar las medidas técnicas y organizativas necesarias, acorde al nivel de riesgos que acompañan los tratamientos realizados por éstas e indicados en el apartado de los términos y condiciones de uso, de forma que garanticen su integridad, confidencialidad y disponibilidad.
 
Asimismo, APROPERTIES REAL ESTATE ASSETS SL informa que en el caso que el Usuario introduzca datos en los formularios de los sitios web de terceros, serán estos últimos los responsables de los datos de carácter personal, y quienes deberán adoptar las medidas técnicas descritas en el siguiente apartado.

DERECHOS DE LOS INTERESADOS

APROPERTIES REAL ESTATE ASSETS S.L. informa a los Usuarios que, podrá ejercer los derechos  de acceso, rectificación, limitación, supresión, portabilidad y oposición al tratamiento de sus datos de carácter personal ante el Responsable del Tratamiento, así como a la retirada del consentimiento prestado. 

  • Derecho de Acceso: Es el derecho del usuario a obtener información sobre sus datos concretos de carácter personal y del tratamiento que se haya realizado o realice, así como de la información disponible sobre el origen de dichos datos y las comunicaciones realizadas o previstas de los mismos. 
  • Derecho de Rectificación: Es el derecho del afectado a que se modifiquen los datos que resulten ser inexactos o incompletos. Sólo podrá satisfacerse en relación a aquella información que se encuentre bajo el control de la APP, por ejemplo, eliminar comentarios publicados en la propia página, imágenes o contenidos web donde consten datos de carácter personal del usuario. 
  • Derecho a la Limitación de tratamiento: Es el derecho a que se limiten los fines del tratamiento previstos de forma original por el responsable del tratamiento. 
  • Derecho de Supresión: Es el derecho a suprimir los datos de carácter personal del usuario, a excepción de lo previsto en el propio RGPD o en otras normativas aplicables que determinen la obligatoriedad de la conservación de los mismos, en tiempo y forma. 
  • Derecho de portabilidad: El derecho a recibir los datos personales que el usuario, haya facilitado, en un formato estructurado, de uso común y lectura mecánica, y a transmitirlos a otro responsable. 
  • Derecho de Oposición: Es el derecho del usuario a que no se lleve a cabo el tratamiento de sus datos de carácter personal o se cese el tratamiento de los mismos por parte de la APP. 

Para poder ejercer cualquiera de los derechos descritos anteriormente deberá cumplir con los siguientes requisitos: 

- Presentación de un escrito a la dirección indicada en la parte superior de esta (a la atención de APROPERTIES REAL ESTATE ASSETS S.L.) o bien a través de correo electrónico a [email protected]

- El escrito remitido por el titular de los datos que solicite el ejercicio deberá de cumplir los siguientes requisitos legales:

  • Nombre, apellidos del interesado y copia del DNI/NIE o cualquier documento identificativo. En los excepcionales casos en que se admita la representación, será también necesaria la identificación por el mismo medio de la persona que le representa, así como el documento acreditativo de la representación. La fotocopia del DNI podrá ser sustituida siempre que se acredite la identidad por cualquier otro medio válido en derecho. 
  • Petición en que se concreta la solicitud. (Ejercicio en el que se solicita la información a la que se quiere acceder). Si no hace referencia a un fichero concreto se le facilitará toda la información que se tenga con sus datos de carácter personal. Si solicita información de un fichero en concreto, sólo la información de este fichero. Si solicita información relativa a un tercero nunca se podrá facilitar. Si lo solicita por teléfono se le indicará que lo haga por escrito y se le informará de cómo lo puede hacer y la dirección a la que tiene que enviarlo. Nunca se le dará información por teléfono. 
  • Domicilio a efectos de notificaciones. 
  • Fecha y firma del solicitante. 
  • Documentos acreditativos de la petición que formula. 
  • El interesado debe utilizar cualquier medio que permita acreditar el envío y la recepción de la solicitud. 

Por último, le informamos que Usted tiene derecho a presentar una reclamación ante la Agencia Española de  Protección de Datos en caso de que tenga conocimiento o considere que un hecho pueda suponer un  incumplimiento de la normativa aplicable en materia de protección de datos.

APROPERTIES REAL ESTATE ASSETS S.L. se compromete a adoptar las medidas técnicas y organizativas  necesarias, acorde al nivel de riesgos que acompañan los tratamientos realizados por éstas e indicados en el  apartado de los términos y condiciones de uso, de forma que garanticen su integridad, confidencialidad y disponibilidad.

POLÍTICA DE REDES SOCIALES

De conformidad con lo establecido en la normativa vigente y aplicable de protección de datos de carácter  personal y la Ley 34/2002, de 11 de julio, de Servicios de la Sociedad de la Información y de Comercio  Electrónico (LSSI-CE), APROPERTIES REAL ESTATE ASSETS S.L. informa a los usuarios, que ha procedido a  crear un perfil en la/s Red/es Social/es Facebook, Instagram, Linkedin y YouTube, con la finalidad principal de  publicitar sus productos y servicios. 

El usuario dispone de un perfil en la misma Red Social y ha decidido unirse a la página creada por  APROPERTIES REAL ESTATE ASSETS S.L., mostrando así interés en la información que se publicite en la  Red. Al unirse a nuestra página, nos facilita su consentimiento para el tratamiento de aquellos datos personales  publicados en su perfil. 

El usuario puede acceder en todo momento a las políticas de privacidad de la propia Red Social, así como  configurar su perfil para garantizar su privacidad. 

APROPERTIES REAL ESTATE ASSETS S.L. tiene acceso y trata aquella información pública del usuario, en  especial, su nombre de contacto. Estos datos, sólo son utilizados dentro de la propia Red Social. No son  incorporados a ningún sistema de tratamiento. 

Derechos de los interesados 

En relación a los acceso, rectificación, limitación de tratamiento, supresión, portabilidad y oposición al tratamiento  de sus datos de carácter personal, de los que usted dispone y que pueden ser ejercitados ante APROPERTIES  REAL ESTATE ASSETS S.L., de acuerdo con la RGPD, debe tener en cuenta los siguientes matices: 

  • Derecho de Acceso: Es el derecho del usuario a obtener información sobre sus datos concretos de carácter personal y del tratamiento que se haya realizado o realice, así como de la información disponible sobre el origen de dichos datos y las comunicaciones realizadas o previstas de los mismos. 
  • Derecho de Rectificación: Es el derecho del afectado a que se modifiquen los datos que resulten ser inexactos o incompletos. Sólo podrá satisfacerse en relación a aquella información que se encuentre bajo el control de APROPERTIES REAL ESTATE ASSETS S.L., por ejemplo, eliminar comentarios publicados en la propia página, imágenes o contenidos web donde consten datos de carácter personal del usuario. 
  • Derecho a la Limitación de tratamiento: Es el derecho a que se limiten los fines del tratamiento previstos de forma original por el responsable del tratamiento. 
  • Derecho de Supresión: Es el derecho a suprimir los datos de carácter personal del usuario, a excepción de lo previsto en el propio RGPD o en otras normativas aplicables que determinen la obligatoriedad de la conservación de los mismos, en tiempo y forma. 
  • Derecho de portabilidad: El derecho a recibir los datos personales que el usuario, haya facilitado, en un formato estructurado, de uso común y lectura mecánica, y a transmitirlos a otro responsable. 
  • Derecho de Oposición: Es el derecho del usuario a que no se lleve a cabo el tratamiento de sus datos de carácter personal o se cese el tratamiento de los mismos por parte de APROPERTIES REAL ESTATE ASSETS S.L.. 

APROPERTIES REAL ESTATE ASSETS S.L. realizará las siguientes actuaciones: 

  • Acceso a la información pública del perfil. 
  • Publicación en el perfil del usuario de toda aquella información ya publicada en la página de APROPERTIES REAL ESTATE ASSETS S.L..
  • Enviar mensajes personales e individuales a través de los canales de la Red Social. 
  • Actualizaciones del estado de la página que se publicarán en el perfil del usuario. 

El usuario siempre puede controlar sus conexiones, eliminar los contenidos que dejen de interesarle y restringir  con quién comparte sus conexiones, para ello deberá acceder a su configuración de privacidad. 

Publicaciones 

El usuario, una vez unido a la página de APROPERTIES REAL ESTATE ASSETS S.L., podrá publicar en ésta  última comentarios, enlaces, imágenes o fotografías o cualquier otro tipo de contenido multimedia soportado por  la Red Social. El usuario, en todos los casos, debe ser el titular de los mismos, gozar de los derechos de autor y  de propiedad intelectual o contar con el consentimiento de los terceros afectados. Se prohíbe expresamente  cualquier publicación en la página, ya sean textos, gráficos, fotografías, vídeos, etc. que atenten o sean  susceptibles de atentar contra la moral, la ética, el buen gusto o el decoro, y/o que infrinjan, violen o quebranten  los derechos de propiedad intelectual o industrial, el derecho a la imagen o la Ley. En estos casos,  APROPERTIES REAL ESTATE ASSETS S.L. se reserva el derecho a retirar de inmediato el contenido,  pudiendo solicitar el bloqueo permanente del usuario. 

APROPERTIES REAL ESTATE ASSETS S.L. no se hará responsable de los contenidos que libremente ha  publicado un usuario. 

El usuario debe tener presente que sus publicaciones serán conocidas por los otros usuarios, por lo que él  mismo es el principal responsable de su privacidad. 

Las imágenes que puedan publicarse en la página no serán almacenadas en ningún sistema de tratamiento por  parte de APROPERTIES REAL ESTATE ASSETS S.L., pero sí que permanecerán en la Red Social. 

Concursos y promociones 

APROPERTIES REAL ESTATE ASSETS S.L. se reserva el derecho a realizar concursos y promociones, en los  que podrá participar el usuario unido a su página. Las bases de cada uno de ellos, cuando se utilice para ello la  plataforma de la Red Social, serán publicadas en la misma. Cumpliendo siempre con la LSSI-CE y con cualquier  otra norma que le sea de aplicación. 

La Red Social no patrocina, avala ni administra, de modo alguno, ninguna de nuestras promociones, ni está  asociada a ninguna de ellas.

Publicidad 

APROPERTIES REAL ESTATE ASSETS S.L. utilizará la Red Social para publicitar sus productos y servicios, en  todo caso, si decide tratar sus datos de contacto para realizar acciones directas de prospección comercial, será  siempre, cumpliendo con las exigencias legales del RGPD y de la LSSI-CE. 

No se considerará publicidad el hecho de recomendar a otros usuarios la página de APROPERTIES REAL  ESTATE ASSETS S.L. para que también ellos puedan disfrutar de las promociones o estar informados de su  actividad. 

A continuación detallamos el enlace a la política de privacidad de la Red Social: 

ÚLTIMA ACTUALIZACIÓN: 21 de enero de 2022.

Utilizamos cookies propias y de terceros para hacer funcionar de manera segura nuestra página web y personalizar su contenido. Igualmente, utilizamos cookies para medir y obtener datos de la navegación que realiza y para ajustar la publicidad a sus gustos y preferencias. Pulse el botón "Aceptar todas" para confirmar que ha leído y aceptado la información presentada. Para administrar o deshabilitar estas cookies haga click en "Configuración". Puede obtener más información en nuestra política de cookies.
Modificar cookies
Técnicas y funcionales Siempre activas
Este sitio web utiliza Cookies propias para recopilar información con la finalidad de mejorar nuestros servicios. Si continua navegando, supone la aceptación de la instalación de las mismas. El usuario tiene la posibilidad de configurar su navegador pudiendo, si así lo desea, impedir que sean instaladas en su disco duro, aunque deberá tener en cuenta que dicha acción podrá ocasionar dificultades de navegación de la página web.
Analíticas y personalización
Permiten realizar el seguimiento y análisis del comportamiento de los usuarios de este sitio web. La información recogida mediante este tipo de cookies se utiliza en la medición de la actividad de la web para la elaboración de perfiles de navegación de los usuarios con el fin de introducir mejoras en función del análisis de los datos de uso que hacen los usuarios del servicio. Permiten guardar la información de preferencia del usuario para mejorar la calidad de nuestros servicios y para ofrecer una mejor experiencia a través de productos recomendados.
Marketing y publicidad
Estas cookies son utilizadas para almacenar información sobre las preferencias y elecciones personales del usuario a través de la observación continuada de sus hábitos de navegación. Gracias a ellas, podemos conocer los hábitos de navegación en el sitio web y mostrar publicidad relacionada con el perfil de navegación del usuario.