Terreny en venda a Valldoreix

Superfície
2.048 m²
Terreny en venda
1.700.000 €

T'agrada? Contacta amb nosaltres

  • He llegit i accepto la condicions d'us

Play icon Veure video de la propietat

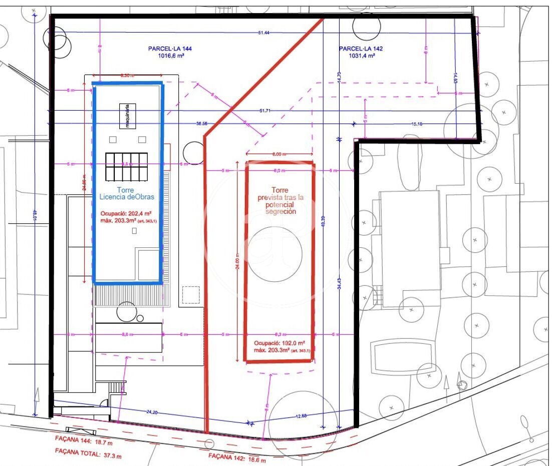
TERRENY PLÀ EN VENDA A VALLDOREIX AMB LLICÈNCIA CONCEDIDA

Rodejat de les millors vistes, pau i tranquil·litat, pins i l’aire més net i pur de la zona, sense perdre per això el seu excel·lent accés a Barcelona, a cinc minuts de l’estació de tren i amb transport públic a pocs metres. Zona residencial en un entorn de cases amb una situació absolutament privilegiada i orientació sud-est.

Parcel·la plana de 2.048 m², classificació 20A11. Possibilitat de ser segregada. Edificació màxima de 572 m², edificabilitat del 50 %, ocupació en planta del 20 %. Construcció: planta baixa + 2 pisos fins a un màxim de 9,15 m d’alçada. Es pot afegir una construcció auxiliar del 3 %.

S’inclou en la venda el projecte bàsic i la llicència d’obres —sempre modificable pel comprador— per a la construcció d’una casa unifamiliar aïllada, evitant així el temps de gestió característic de l’Ajuntament de Valldoreix.

Característiques del projecte realitzat per a una família tipus:
200 m² en planta baixa, 173 m² a la primera planta i soterrani de 200 m². Consta de saló menjador, cuina, 4 dormitoris, 4 banys, sala polivalent, safareig, traster i pàrquing per a 3 cotxes. Exterior de 1.800 m² i piscina.

Sant Cugat del Vallès, situat al Vallès Occidental, és una població propera a Barcelona que conserva l’essència d’un poble tranquil, però a només 12 km de la ciutat. És l’escollida per moltes famílies que volen guanyar en qualitat de vida gràcies a la seva situació estratègica, la gran quantitat de zones verdes, parcs, jardins i l’excel·lent comunicació —mitjançant autopista, Túnels de Vallvidrera o carretera— amb la capital catalana.

La majoria de famílies hi tenen la seva residència habitual i treballen a Barcelona, gaudint de les avantatges de viure en un municipi que manté tradicions, una àmplia oferta cultural i gastronòmica, festes populars i alhora compta amb escoles i universitats internacionals de prestigi.

No dubti a contactar amb l’equip expert d’aProperties Real Estate per a la recerca del seu nou habitatge, sempre eficaços, propers i professionals!
No dubti a posar-se en contacte amb nosaltres per rebre informació més detallada sobre aquest immoble!

  • Característiques

Sobre Valldoreix

Valldoreix és un dels barris més grans de Sant Cugat en tant a àrea ocupada. Està situat a la part oest de la ciutat, a peu de parc natural de Collserola. És un barri de cases unifamiliars, moltes d'elles de luxe. A principis de segle passat Valldoreix era un poble de segona residència als voltants del que avui és el parc de Collserola. Avui dia és un barri residencial per a la classe alta que vol viure en tranquil·litat, però seguir estant a prop de Barcelona. Té bones comunicacions amb cotxe per les autopistes AP-7 i C-16. Pel que fa a transport públic, hi ha autobusos interurbans que connecten les diferents parts de barri. Les connexions amb altres parts de la ciutat no són tan bones. L'estació de tren Valldoreix, d'FGC, està situada a la part est de barri i queda bastant lluny per als que viuen a la resta de la zona.

Propietats vistes recentment

Terreny en venda
VSC2511001
1.375.000 €

Dos terrenys en venda a Valldoreix

Valldoreix, Vallès Occidental
aProperties té el plaer d’oferir dos excel·lents terrenys cantoners que es venen junts, amb un total de 1.677 m², oferint la possibilitat de construir dues cases aïllades en parcel·les contigües o edificar en un dels solars, aprofitant l’avantatge d’unir l’edificabilitat de tots dos i aconseguir així la comoditat de viure en una sola planta, un bé summament exclusiu a Sant Cugat a causa de les normatives actuals. El primer solar, totalment pla, té 816 m², i l’altre, 861 m², segons cadastre. La ubicació dels terrenys és immillorable, ja que, tot i estar molt ben comunicats, es troben a una distància prudencial que els allunya del soroll i del trànsit. El seu potencial de desenvolupament és extraordinari. La classificació urbanística dels terrenys és 20a/11, cosa que permet la construcció d’una casa aïllada en cadascun d’ells, d’uns 370 m² distribuïts en planta baixa més un pis. Sumant ambdós solars, es podria arribar a construir fins a 740 m². L’ocupació en planta és d’uns 170 m² aproximadament per solar, amb una alçada màxima de 9,15 m (planta baixa més dues plantes) i la possibilitat d’un soterrani. També es pot construir una edificació auxiliar del 3%. Situats en una zona residencial de Sant Cugat composta principalment per cases unifamiliars, aquests terrenys es troben en un entorn privilegiat amb molta intimitat. Al mateix temps, estan molt a prop de tota mena de serveis: a dos minuts amb cotxe i uns deu minuts caminant de l’estació de Ferrocarrils Catalans de Valldoreix, a poca distància d’una parada d’autobús, un centre mèdic, una farmàcia, restaurants, un supermercat i el club de tennis de Valldoreix. A més, compten amb un fàcil accés a la carretera que connecta directament amb Barcelona en pocs minuts. No dubti a contactar amb l’equip expert d’aProperties Real Estate per trobar el seu nou habitatge. Sempre propers, eficaços i professionals en tot el procés.
Superfície 1.677 m2
1.375.000 €
Atic en venda
VV2509070
399.000 €

àtic en venda amb terrassa a Canet d'En Berenguer

Canet d'En Berenguer
aProperties té el plaer de presentar aquest magnífic àtic, situat en un bloc residencial amb una àmplia gamma de serveis, en un entorn natural privilegiat a pocs metres de la platja de Canet d’en Berenguer. L’habitatge compta amb un ampli saló que es connecta directament amb una meravellosa terrassa, ideal per a descansar i relaxar-se. Les finestres de climalit asseguren una agradable entrada de llum natural i una ventilació òptima. La cuina, independent i equipada, inclou una espaiosa galeria. Tres habitacions dobles, totes amb armaris encastats, ofereixen comoditat i espai d’emmagatzematge. La fusteria interior de faig aporta un toc càlid i acollidor. Un bany complet amb dutxa completa les comoditats d’aquest encantador apartament. En el preu s’inclouen una plaça de garatge i dos trasters. El bloc residencial ofereix una àmplia varietat de serveis per al gaudi de tota la família, com ara piscina amb zones diferenciades per a adults i xiquets, dues pistes de pàdel, parc infantil i àmplies zones enjardinades i recreatives. L’entorn es caracteritza per una platja de tres quilòmetres i mig de longitud, guardonada amb la bandera blava, i un preciós passeig marítim de fusta amb diversos xiringuitos. La zona també compta amb una via verda que recorre el marjal d’Almenara, perfecta per a passejades amb bicicleta o a peu. A prop es troba el paratge natural dels Estanys, amb llacunes naturals i observatoris d’ocells, així com pistes de kàrting per als amants de la velocitat. Tots els serveis essencials per a viure còmodament durant tot l’any estan disponibles a la zona: farmàcies, supermercats, una variada oferta gastronòmica, forns, centre de salut i un hospital comarcal amb urgències 24 hores. Els diumenges se celebra un animat mercat ambulant al passeig marítim. Si sempre ha somiat amb viure en un entorn residencial i prop de la platja, no dubte a telefonar-nos i programar una visita.
Superfície 150 m2
Dormitoris 3
Banys 2
399.000 €
Pis en lloguer
APM2511003
3.900 €

Pis en Lloguer a Portals Nous

Portals nous - Bendinat, Mallorca
EXCLUSIU HABITATGE AMB VISTES AL MAR A PORTALS NOUS AMB PÀRQUING INCLÒS Descobreix l'equilibri perfecte entre comoditat i estil en aquesta lluminosa vivenda ubicada a la cobejada zona de Portals Nous. Aquest exclusiu apartament, situat a la primera planta amb fàcil accés mitjançant ascensor, ofereix un ampli espai de 3 habitacions i 2 banys complets més un lavabo de cortesia, ideal per a famílies o professionals que busquen una llar de llarga estada sense moblar. 2 habitacions grans i una mitjana, sent una de les habitacions en suite. En entrar, seràs rebut per un ampli saló obert connectat amb la cuina amb material d´última qualitat que connecta amb una terrassa de 20m² que promet ser el teu oasi personal, on podràs gaudir d´impressionants vistes al mar i capvespres de somni, convertint-se al´escenari perfecte per relaxar-se o entretenir els convidats. La cuina, un veritable cor de la llar, està totalment equipada amb moderns electrodomèstics i ofereix abundant espai d'emmagatzematge, cosa que facilita la preparació de deliciosos menjars en un ambient elegant. L´habitatge es beneficia a més de calefacció per radiadors i aire condicionat central per garantir el teu confort en qualsevol època de l´any. Amb plaça de pàrquing per a 2 cotxes, mai t'hauràs de preocupar per l'estacionament. A més, podràs gaudir de les instal·lacions de la comunitat, que inclouen una piscina envoltada de zones verdes, ideal per a aquells dies en què prefereixes quedar-te a prop de casa. Ubicada a Portals Nous a la Urbanització Real Golf de Bendinat a 300 mts del camp de golf ia 1,5 km del Port Portals, aquesta propietat no només t'ofereix una vida tranquil·la amb pocs veïns i exclusiva prop del mar, sinó també fàcil accés a totes les comoditats necessàries, incloent botigues, restaurants i llocs d'oci, sense esmentar la proximitat a algunes de les platges més boniques de l'illa. No deixeu passar l'oportunitat de viure en aquesta joia de propietat, on la qualitat de vida s'eleva i els records esperen ser creats.
Superfície 160 m2
Dormitoris 3
Banys 3
3.900 €
x

DATOS DEL PROPIETARIO DE LA WEB

  • RAZÓN SOCIAL: APROPERTIES REAL ESTATE ASSETS SL
  • NIF: B66207879
  • DIRECCIÓN  POSTAL: PASSEIG DE GRACIA 85 PLANTA 8 08008, BARCELONA
  • DIRECCIÓN ELECTRÓNICA: [email protected] 
  • OBJETO PRINCIPAL: PLATAFORMA INMOBILIARIA

De conformidad con la normativa vigente y aplicable en protección de datos de carácter personal, le informamos  que sus datos serán incorporados al sistema de tratamiento titularidad de APROPERTIES REAL ESTATE  ASSETS SL. con NIF B66207879 y domicilio social sito en PASSEIG DE GRACIA 85 PLANTA 8 08008,  BARCELONA, y que a continuación se relacionan sus respectivas finalidades, plazos de conservación y bases  legitimadoras. Para aquellos tratamientos que lo requieran, se informa también de la posible elaboración de  perfiles y decisiones automatizadas, así como las posibles cesiones y las transferencias internacionales que  APROPERTIES REAL ESTATE ASSETS S.L. tiene previsto realizar: 

TRATAMIENTOS REALIZADOS

Gestión de la página web

  • Finalidad: Tratamiento y gestión de los datos necesarios para la funcionalidad de la página  web 
  • Plazo de conservación: mientras perdure el consentimiento prestado  
  • Base legítima: El consentimiento del interesado 
  • Tipología de Datos: Datos meramente identificativos 
  • Cesiones: No se prevén 
  • Transferencias internacionales: No se prevén 
  • Elaboraciones de perfiles: No se prevén

Formulario contacto y cotización

  • Finalidad: Atender sus consultas y/o solicitudes 
  • Plazo de conservación: mientras se mantenga el consentimiento prestado. Base legítima: El consentimiento del interesado 
  • Tipología de Datos: Datos meramente identificativos 
  • Cesiones: Ninguna 
  • Transferencias internacionales: No se prevén 
  • Elaboraciones de perfiles: No se prevén

Gestión del cumplimiento normativo

  • Finalidad: Gestión y tramitación de las obligaciones y deberes que se deriven del  cumplimiento de la normativa a la cual está sujeta la entidad 
  • Plazo de conservación: conservación de las copias de los documentos hasta que  prescriban las acciones para reclamarle una posible responsabilidad 
  • Base legítima: El cumplimiento de una ley 
  • Tipología de Datos: Datos meramente identificativos 
  • Cesiones: sus datos serán comunicados en caso de ser necesario a Organismos y/o  administración pública con competencia en la materia con la finalidad de cumplir con las  obligaciones establecidas en la normativa aplicable. Además, se informa que la base  legitimadora de la cesión es cumplir con las obligaciones establecidas en la normativa  aplicable 
  • Transferencias internacionales: No se prevén 
  • Elaboraciones de perfiles: No se prevén

Acciones Comerciales

  • Finalidad: Captación, registro y tratamiento de datos con finalidades de publicidad y  prospección comercial de nuestros productos y/o servicios 
  • Plazo de conservación: mientras se mantenga el consentimiento prestado Base legítima: El consentimiento del interesado 
  • Tipología de Datos: Datos meramente identificativos 
  • Cesiones: Ninguna 
  • Transferencias internacionales: No se prevén 
  • Elaboraciones de perfiles: No se prevén

Gestión Bolsa de empleo

  • Finalidad: Registro y tratamiento de datos de candidatos para finalidades de selección de  personal referentes a puestos de trabajo vacantes de las entidades colaboradoras y gestión  de la bolsa de empleo 
  • Plazo de conservación: mientras perdure el consentimiento prestado 
  • Base legítima: El consentimiento del interesado 
  • Tipología de Datos: Datos meramente identificativos 
  • Cesiones: sus datos serán comunicados en caso de ser necesario a Entidades  Colaboradoras con la finalidad de gestionar la bolsa de empleo y trasladar la candidatura a  la empresa colaboradora. Además, se informa que la base legitimadora de la cesión es su  consentimiento 
  • Transferencias internacionales: No se prevén 
  • Elaboraciones de perfiles: No se prevén

GESTIÓN DE DATOS

De acuerdo con lo establecido por el Reglamento (UE) 2016/679 del Parlamento Europeo y del Consejo, de 27 de abril de 2016, relativo a la protección de las personas físicas en lo que respecta al tratamiento de datos personales y a la libre circulación de estos datos y por el que se deroga la Directiva 95/46/CE, APROPERTIES REAL ESTATE ASSETS SL informa al Usuario en relación a los sitios web www.aproperties.es y derivados (en adelante, sitios web), que la información que se pueda recabar en los sitios web se incorporará en los sistemas de tratamiento responsabilidad de APROPERTIES REAL ESTATE ASSETS SL, con las finalidades de realizar la gestión y el mantenimiento de la relación con el Usuario con los sitios web, así como las labores de información, estadística, y comercialización de los servicios y de las actividades relacionadas con los mismos.

APROPERTIES REAL ESTATE ASSETS SL informa de que la base legítima que ampara los tratamientos indicados es la existencia de un interés legítimo, asimismo en cuanto a la instalación de cookies se encuentran legitimados en la existencia del consentimiento prestado por parte de los interesados o, en su caso, de los representantes legales de los mismos.

  • APROPERTIES REAL ESTATE ASSETS SL informa de que los datos serán conservados mientras perdure el consentimiento prestado por el Usuario, exceptuando aquellos casos en los que estemos obligados legalmente a su conservación.
  • De acuerdo con los derechos que le confiere la normativa vigente en protección de datos, el Usuario podrá dirigirse a la Autoridad de Control competente para presentar la reclamación que considere oportuna, así como también podrá ejercer los derechos de acceso, rectificación, limitación de tratamiento, supresión, portabilidad y oposición al tratamiento de sus datos de carácter personal, así como a la retirada del consentimiento prestado para el tratamiento de los mismos.

De acuerdo con lo establecido por el artículo 32 del Reglamento (UE) 2016/679 del Parlamento Europeo y del Consejo, de 27 de abril de 2016, relativo a la protección de las personas físicas en lo que respecta al tratamiento de datos personales y a la libre circulación de estos datos y por el que se deroga la Directiva 95/46/CE, APROPERTIES REAL ESTATE ASSETS SL se compromete a adoptar las medidas técnicas y organizativas necesarias, acorde al nivel de riesgos que acompañan los tratamientos realizados por éstas e indicados en el apartado de los términos y condiciones de uso, de forma que garanticen su integridad, confidencialidad y disponibilidad.
 
Asimismo, APROPERTIES REAL ESTATE ASSETS SL informa que en el caso que el Usuario introduzca datos en los formularios de los sitios web de terceros, serán estos últimos los responsables de los datos de carácter personal, y quienes deberán adoptar las medidas técnicas descritas en el siguiente apartado.

DERECHOS DE LOS INTERESADOS

APROPERTIES REAL ESTATE ASSETS S.L. informa a los Usuarios que, podrá ejercer los derechos  de acceso, rectificación, limitación, supresión, portabilidad y oposición al tratamiento de sus datos de carácter personal ante el Responsable del Tratamiento, así como a la retirada del consentimiento prestado. 

  • Derecho de Acceso: Es el derecho del usuario a obtener información sobre sus datos concretos de carácter personal y del tratamiento que se haya realizado o realice, así como de la información disponible sobre el origen de dichos datos y las comunicaciones realizadas o previstas de los mismos. 
  • Derecho de Rectificación: Es el derecho del afectado a que se modifiquen los datos que resulten ser inexactos o incompletos. Sólo podrá satisfacerse en relación a aquella información que se encuentre bajo el control de la APP, por ejemplo, eliminar comentarios publicados en la propia página, imágenes o contenidos web donde consten datos de carácter personal del usuario. 
  • Derecho a la Limitación de tratamiento: Es el derecho a que se limiten los fines del tratamiento previstos de forma original por el responsable del tratamiento. 
  • Derecho de Supresión: Es el derecho a suprimir los datos de carácter personal del usuario, a excepción de lo previsto en el propio RGPD o en otras normativas aplicables que determinen la obligatoriedad de la conservación de los mismos, en tiempo y forma. 
  • Derecho de portabilidad: El derecho a recibir los datos personales que el usuario, haya facilitado, en un formato estructurado, de uso común y lectura mecánica, y a transmitirlos a otro responsable. 
  • Derecho de Oposición: Es el derecho del usuario a que no se lleve a cabo el tratamiento de sus datos de carácter personal o se cese el tratamiento de los mismos por parte de la APP. 

Para poder ejercer cualquiera de los derechos descritos anteriormente deberá cumplir con los siguientes requisitos: 

- Presentación de un escrito a la dirección indicada en la parte superior de esta (a la atención de APROPERTIES REAL ESTATE ASSETS S.L.) o bien a través de correo electrónico a [email protected]

- El escrito remitido por el titular de los datos que solicite el ejercicio deberá de cumplir los siguientes requisitos legales:

  • Nombre, apellidos del interesado y copia del DNI/NIE o cualquier documento identificativo. En los excepcionales casos en que se admita la representación, será también necesaria la identificación por el mismo medio de la persona que le representa, así como el documento acreditativo de la representación. La fotocopia del DNI podrá ser sustituida siempre que se acredite la identidad por cualquier otro medio válido en derecho. 
  • Petición en que se concreta la solicitud. (Ejercicio en el que se solicita la información a la que se quiere acceder). Si no hace referencia a un fichero concreto se le facilitará toda la información que se tenga con sus datos de carácter personal. Si solicita información de un fichero en concreto, sólo la información de este fichero. Si solicita información relativa a un tercero nunca se podrá facilitar. Si lo solicita por teléfono se le indicará que lo haga por escrito y se le informará de cómo lo puede hacer y la dirección a la que tiene que enviarlo. Nunca se le dará información por teléfono. 
  • Domicilio a efectos de notificaciones. 
  • Fecha y firma del solicitante. 
  • Documentos acreditativos de la petición que formula. 
  • El interesado debe utilizar cualquier medio que permita acreditar el envío y la recepción de la solicitud. 

Por último, le informamos que Usted tiene derecho a presentar una reclamación ante la Agencia Española de  Protección de Datos en caso de que tenga conocimiento o considere que un hecho pueda suponer un  incumplimiento de la normativa aplicable en materia de protección de datos.

APROPERTIES REAL ESTATE ASSETS S.L. se compromete a adoptar las medidas técnicas y organizativas  necesarias, acorde al nivel de riesgos que acompañan los tratamientos realizados por éstas e indicados en el  apartado de los términos y condiciones de uso, de forma que garanticen su integridad, confidencialidad y disponibilidad.

POLÍTICA DE REDES SOCIALES

De conformidad con lo establecido en la normativa vigente y aplicable de protección de datos de carácter  personal y la Ley 34/2002, de 11 de julio, de Servicios de la Sociedad de la Información y de Comercio  Electrónico (LSSI-CE), APROPERTIES REAL ESTATE ASSETS S.L. informa a los usuarios, que ha procedido a  crear un perfil en la/s Red/es Social/es Facebook, Instagram, Linkedin y YouTube, con la finalidad principal de  publicitar sus productos y servicios. 

El usuario dispone de un perfil en la misma Red Social y ha decidido unirse a la página creada por  APROPERTIES REAL ESTATE ASSETS S.L., mostrando así interés en la información que se publicite en la  Red. Al unirse a nuestra página, nos facilita su consentimiento para el tratamiento de aquellos datos personales  publicados en su perfil. 

El usuario puede acceder en todo momento a las políticas de privacidad de la propia Red Social, así como  configurar su perfil para garantizar su privacidad. 

APROPERTIES REAL ESTATE ASSETS S.L. tiene acceso y trata aquella información pública del usuario, en  especial, su nombre de contacto. Estos datos, sólo son utilizados dentro de la propia Red Social. No son  incorporados a ningún sistema de tratamiento. 

Derechos de los interesados 

En relación a los acceso, rectificación, limitación de tratamiento, supresión, portabilidad y oposición al tratamiento  de sus datos de carácter personal, de los que usted dispone y que pueden ser ejercitados ante APROPERTIES  REAL ESTATE ASSETS S.L., de acuerdo con la RGPD, debe tener en cuenta los siguientes matices: 

  • Derecho de Acceso: Es el derecho del usuario a obtener información sobre sus datos concretos de carácter personal y del tratamiento que se haya realizado o realice, así como de la información disponible sobre el origen de dichos datos y las comunicaciones realizadas o previstas de los mismos. 
  • Derecho de Rectificación: Es el derecho del afectado a que se modifiquen los datos que resulten ser inexactos o incompletos. Sólo podrá satisfacerse en relación a aquella información que se encuentre bajo el control de APROPERTIES REAL ESTATE ASSETS S.L., por ejemplo, eliminar comentarios publicados en la propia página, imágenes o contenidos web donde consten datos de carácter personal del usuario. 
  • Derecho a la Limitación de tratamiento: Es el derecho a que se limiten los fines del tratamiento previstos de forma original por el responsable del tratamiento. 
  • Derecho de Supresión: Es el derecho a suprimir los datos de carácter personal del usuario, a excepción de lo previsto en el propio RGPD o en otras normativas aplicables que determinen la obligatoriedad de la conservación de los mismos, en tiempo y forma. 
  • Derecho de portabilidad: El derecho a recibir los datos personales que el usuario, haya facilitado, en un formato estructurado, de uso común y lectura mecánica, y a transmitirlos a otro responsable. 
  • Derecho de Oposición: Es el derecho del usuario a que no se lleve a cabo el tratamiento de sus datos de carácter personal o se cese el tratamiento de los mismos por parte de APROPERTIES REAL ESTATE ASSETS S.L.. 

APROPERTIES REAL ESTATE ASSETS S.L. realizará las siguientes actuaciones: 

  • Acceso a la información pública del perfil. 
  • Publicación en el perfil del usuario de toda aquella información ya publicada en la página de APROPERTIES REAL ESTATE ASSETS S.L..
  • Enviar mensajes personales e individuales a través de los canales de la Red Social. 
  • Actualizaciones del estado de la página que se publicarán en el perfil del usuario. 

El usuario siempre puede controlar sus conexiones, eliminar los contenidos que dejen de interesarle y restringir  con quién comparte sus conexiones, para ello deberá acceder a su configuración de privacidad. 

Publicaciones 

El usuario, una vez unido a la página de APROPERTIES REAL ESTATE ASSETS S.L., podrá publicar en ésta  última comentarios, enlaces, imágenes o fotografías o cualquier otro tipo de contenido multimedia soportado por  la Red Social. El usuario, en todos los casos, debe ser el titular de los mismos, gozar de los derechos de autor y  de propiedad intelectual o contar con el consentimiento de los terceros afectados. Se prohíbe expresamente  cualquier publicación en la página, ya sean textos, gráficos, fotografías, vídeos, etc. que atenten o sean  susceptibles de atentar contra la moral, la ética, el buen gusto o el decoro, y/o que infrinjan, violen o quebranten  los derechos de propiedad intelectual o industrial, el derecho a la imagen o la Ley. En estos casos,  APROPERTIES REAL ESTATE ASSETS S.L. se reserva el derecho a retirar de inmediato el contenido,  pudiendo solicitar el bloqueo permanente del usuario. 

APROPERTIES REAL ESTATE ASSETS S.L. no se hará responsable de los contenidos que libremente ha  publicado un usuario. 

El usuario debe tener presente que sus publicaciones serán conocidas por los otros usuarios, por lo que él  mismo es el principal responsable de su privacidad. 

Las imágenes que puedan publicarse en la página no serán almacenadas en ningún sistema de tratamiento por  parte de APROPERTIES REAL ESTATE ASSETS S.L., pero sí que permanecerán en la Red Social. 

Concursos y promociones 

APROPERTIES REAL ESTATE ASSETS S.L. se reserva el derecho a realizar concursos y promociones, en los  que podrá participar el usuario unido a su página. Las bases de cada uno de ellos, cuando se utilice para ello la  plataforma de la Red Social, serán publicadas en la misma. Cumpliendo siempre con la LSSI-CE y con cualquier  otra norma que le sea de aplicación. 

La Red Social no patrocina, avala ni administra, de modo alguno, ninguna de nuestras promociones, ni está  asociada a ninguna de ellas.

Publicidad 

APROPERTIES REAL ESTATE ASSETS S.L. utilizará la Red Social para publicitar sus productos y servicios, en  todo caso, si decide tratar sus datos de contacto para realizar acciones directas de prospección comercial, será  siempre, cumpliendo con las exigencias legales del RGPD y de la LSSI-CE. 

No se considerará publicidad el hecho de recomendar a otros usuarios la página de APROPERTIES REAL  ESTATE ASSETS S.L. para que también ellos puedan disfrutar de las promociones o estar informados de su  actividad. 

A continuación detallamos el enlace a la política de privacidad de la Red Social: 

ÚLTIMA ACTUALIZACIÓN: 21 de enero de 2022.

Utilitzem cookies pròpies y de tercers per fer funcionar de manera segura la nostra pàgina web i personalitzar el seu contingut. Igualment, fem servir cookies per mesurar i obtenir dades de la navegació que realitza i per ajustar la publicitat als seus gustos i preferències. Premi el botó "Acceptar totes" per confirmar que ha llegit i acceptat l'informació presentada. Per administrar o deshabilitar aquestes cookies faci clic a "Configuració". Pot obtenir més informació a la nostra política de cookies.
Modificar cookies
Tècniques i funcionals Sempre activades
Aquest lloc web utilitza cookies pròpies per recopilar informació amb la finalitat de millorar els nostres serveis. Si continua navegant, suposa l'acceptació de la instal·lació de les mateixes. L'usuari té la possibilitat de configurar el navegador podent, si així ho desitja, impedir que siguin instal·lades al disc dur, encara que haurà de tenir en compte que aquesta acció podrà ocasionar dificultats de navegació de la pàgina web.
Analítiques i personalització
Permeten fer el seguiment i l'anàlisi del comportament dels usuaris d'aquest lloc web. La informació recollida mitjançant aquest tipus de cookies s'utilitza en el mesurament de l'activitat del web per a l'elaboració de perfils de navegació dels usuaris per introduir millores en funció de l'anàlisi de les dades d'ús que fan els usuaris del servei. Permeten desar la informació de preferència de l'usuari per millorar la qualitat dels nostres serveis i oferir una millor experiència a través de productes recomanats.
Marketing i publicitat
Aquestes cookies són utilitzades per emmagatzemar informació sobre les preferències i les eleccions personals de l'usuari a través de l'observació continuada dels seus hàbits de navegació. Gràcies a elles, podem conèixer els hàbits de navegació al lloc web i mostrar publicitat relacionada amb el perfil de navegació de l'usuari.