Casa en venda a Can Cortès

Superfície
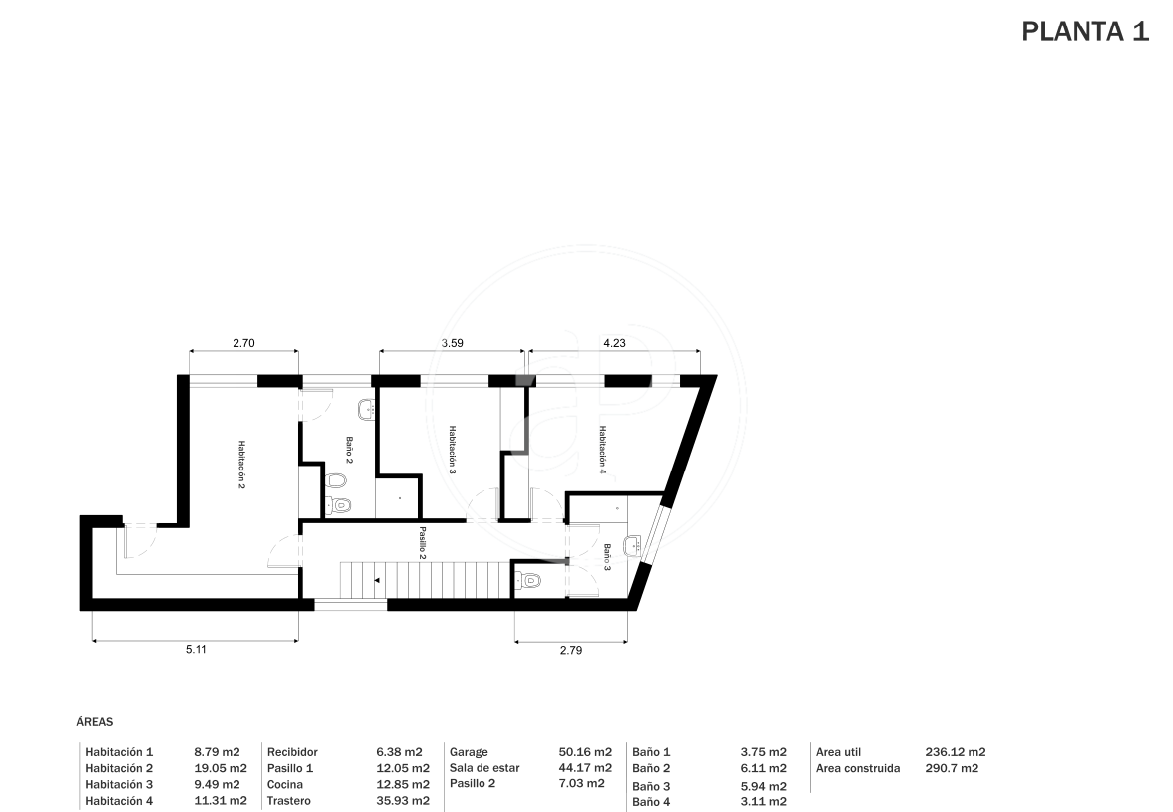
338 m²
Dormitoris
5
Banys
4
Casa en venda
1.100.000 €

T'agrada? Contacta amb nosaltres

  • He llegit i accepto la condicions d'us

Play icon Veure video de la propietat

HABITATGE DE DISSENY INTEGRAT A LA NATURA AL BARRI DE CAN CORTÉS (SANT CUGAT DEL VALLÈS)

Moblat | Piscina privada | Llicència turística | Disseny funcional i contemporani

Situada al barri de Can Cortés, dins del Parc Natural de Collserola, aquest habitatge combina arquitectura moderna, privacitat i connexió urbana.

Una propietat singular que destaca pel seu disseny, el seu entorn natural privilegiat i la seva funcionalitat.

Espais pensats per viure

Amb una distribució en tres bandes paral·leles, la casa s’adapta amb naturalitat a la topografia inclinada del terreny, potenciant la llum natural, la privacitat i la integració visual amb el paisatge.

Distribució

· 5 habitacions | 4 banys complets
· Sala polivalent a la planta soterrani (zona fitness, jocs, estudi o habitatge independent)
· Moblada completament
· Armaris encastats fets a mida a totes les estances
· Piscina privada i jardí amb zona de descans
· Climatització per bomba de calor + terra radiant
· Amplis finestrals amb llum natural a totes les plantes

Ubicació i entorn

· Entorn natural a la Serra de Collserola, a només 15 minuts de Barcelona
· Barri consolidat
· A 8 minuts dels FGC Les Planes o FGC Baixador de Vallvidrera
· Accés ràpid pels Túnels de Vallvidrera i carretera de l’Arrabassada
· Servei de bus a demanda

Oportunitat d’inversió

L’habitatge disposa de llicència turística activa, cosa que permet obtenir rendiment des del primer dia, tant com a residència vacacional com a segona residència amb gran atractiu per a públic nacional i internacional.

Ideal per a…

· Qui cerca un habitatge amb caràcter i disseny, ben connectat però envoltat de natura
· Famílies que valoren espai, intimitat i funcionalitat
· Inversors o compradors internacionals a la recerca d’un actiu especial

Contacta per organitzar la teva visita privada.

  • Característiques
  • Vistes
  • Calefacció
  • Moblat
  • Aacc
  • Terrassa
  • Pati
  • Té parking
  • Piscina

Sobre Les Planes

Les Planes és un barri dividit entre dos municipis: Sant Cugat de Vallès i Barcelona. Si alguna cosa caracteritza el barri de les Planes és el seu entorn natural privilegiat ja que és el barri de Barcelona integrat dins el Parc de Collserola.

Propietats vistes recentment

Casa en venda
VPM2405011
950.000 €

Casa en venda a Alcúdia

Alcúdia ciudad, Mallorca
Descobreix el teu oasi al costat del port Cocodril amb aquest impressionant xalet de dues plantes més soterrani i garatge! Aquesta casa està en un indret incomparable amb vistes al mar, té un estil de vida únic i privilegiat. En entrar-hi, et rebrà un ampli i lluminós saló menjador, perfecte per gaudir de moments inoblidables en família o amb amics. La cuina, amb sostres alts i una amplitud excepcional, compta amb accés directe a la piscina, convertint-la al cor de la vivenda. A la planta principal, trobaràs dos acollidors dormitoris i un bany complet, proporcionant comoditat i funcionalitat. Però la veritable joia de la casa es troba a la planta superior, on esperen dues majestuoses habitacions en suite amb vistes al mar, oferint un espai de tranquil·litat i confort incomparables. El soterrani, amb capacitat per a dos cotxes, també acull una versàtil sala que es pot adaptar a les teves necessitats, ja sigui com a gimnàs, despatx o qualsevol altre ús que vulguis donar-li. El jardí, amb una parcel·la còmoda i cuidada, us permet passar els millors moments amb la família o els amics mentre gaudiu de la piscina o d'una barbacoa. La parcel·la conjuga de forma excepcional l'espai amb el mínim manteniment amb més de 600 m². La casa es completa amb finestres climalit, portes de fusta d'iroko i calefacció per gasoil. T'imagines viure aquí? Esperem la teva trucada!
Superfície 295 m2
Parcela 612 m2
Dormitoris 4
Banys 3
950.000 €
Pis en lloguer
APM2506009
5.200 €

Pis en lloguer al Passeig Mallorca

Es Fortí, Mallorca
En una de les zones més cobejades de Palma, al Passeig Mallorca, es troba aquest exclusiu habitatge d’obra nova que destaca pel seu disseny contemporani, materials nobles i una gran lluminositat. L’edifici on s’ubica aquest habitatge té la façana revestida amb una cel·losia de panells corredissos amb lames de fusta. Amb 152 m², l’habitatge es distribueix en un ampli i lluminós saló-menjador amb cuina integrada, equipada amb electrodomèstics d’alta gamma de la marca Miele, mobles panellats de fusta natural i una pràctica illa de pedra natural de Binissalem que crea un ambient càlid i sofisticat. Disposa també d’una zona de bugaderia independent i un lavabo de cortesia. L’espai rep una llum meravellosa gràcies als grans finestrals de terra a sostre amb vistes clares a la zona verda del passeig. La zona de nit compta amb tres habitacions dobles, armaris encastats amb portes de fusta massissa de noguera francesa i interiors de fusta de cedre, i dos banys complets amb plat de dutxa, un d’ells en suite. L’habitació principal disposa d’un ampli vestidor. Els acabats són de màxima qualitat, combinant disseny, funcionalitat i confort: terres de parquet de roure, aixetes de la reconeguda firma Dornbracht, fusteria exterior de primer nivell, calefacció per terra radiant, climatització centralitzada amb control individual i un sistema d’estalvi energètic mitjançant renovació d’aire (aerotèrmia), així com sistema de domòtica. Per completar aquesta experiència de luxe, l’edifici disposa d’instal·lacions com un gimnàs completament equipat, piscina interior climatitzada, bany turc, una cuidada zona enjardinada a l’entrada principal, plaça d’aparcament i traster opcional, oferint comoditat i benestar en un entorn exclusiu. Les despeses de comunitat i l’IBI estan inclosos en el preu del lloguer; la resta de subministraments aniran a càrrec de l’arrendatari. Ubicació excel·lent, a només 5 minuts a peu del cobejat carrer comercial Jaume III, envoltat de restaurants, centres comercials, centres de salut i amb molt bona comunicació amb l’aeroport, escoles i diverses platges de la zona. Mascotes a consultar. T’imagines viure aquí? Esperem la teva trucada.
Superfície 151 m2
Dormitoris 3
Banys 3
5.200 €
Pis en venda
Venuda
VB2411065
649.000 €

Pis en venda al costat de la Via Laietana

El Born, Barcelona ciutat
Al Born, una de les zones més emblemàtiques de Barcelona, a pocs metres de la Via Laietana i del Palau de la Música, trobem aquest magnífic habitatge reformat a estrenar de 98 m² amb una gran terrassa de 40 m², situat en un edifici en bon estat sense ascensor. El pis ha estat totalment reformat utilitzant acabats i materials de primera qualitat amb gran atenció als detalls. Ofereix un disseny modern i funcional en perfecta harmonia amb els elements originals de l’època, com els seus sostres alts amb volta catalana i bigues de fusta, així com les parets de maó vist. Destaca especialment la seva gran terrassa, accessible tant des de la zona de dia com des de l’habitació principal, que inunda l’habitatge de llum natural, creant un espai molt lluminós i acollidor. Aquesta terrassa, equipada amb zona de menjador i chill-out, és perfecta per gaudir del temps a l’aire lliure, ja sigui per sopar, relaxar-se o compartir moments en bona companyia. L’habitatge consta d’un rebedor que dóna accés a una primera habitació doble amb armaris encastats i a un bany complet. A continuació, trobem la zona de dia amb un ampli saló menjador i una cuina oberta totalment equipada, amb un gran finestral que comunica amb la terrassa. El pis es completa amb l’habitació principal, que disposa d’armaris encastats i bany en suite. Per a més confort, el pis compta amb terres de parquet en espiga de roure natural, calefacció i aire condicionat per conductes, i finestres amb doble vidre que asseguren un alt aïllament tèrmic. El pis està ubicat a la primera planta real d’una finca en bon estat sense ascensor. Una gran oportunitat d’adquirir un habitatge preciós en una de les zones més demandades de la ciutat.
Superfície 98 m2
Dormitoris 2
Banys 3
649.000 €
x

DATOS DEL PROPIETARIO DE LA WEB

  • RAZÓN SOCIAL: APROPERTIES REAL ESTATE ASSETS SL
  • NIF: B66207879
  • DIRECCIÓN  POSTAL: PASSEIG DE GRACIA 85 PLANTA 8 08008, BARCELONA
  • DIRECCIÓN ELECTRÓNICA: [email protected] 
  • OBJETO PRINCIPAL: PLATAFORMA INMOBILIARIA

De conformidad con la normativa vigente y aplicable en protección de datos de carácter personal, le informamos  que sus datos serán incorporados al sistema de tratamiento titularidad de APROPERTIES REAL ESTATE  ASSETS SL. con NIF B66207879 y domicilio social sito en PASSEIG DE GRACIA 85 PLANTA 8 08008,  BARCELONA, y que a continuación se relacionan sus respectivas finalidades, plazos de conservación y bases  legitimadoras. Para aquellos tratamientos que lo requieran, se informa también de la posible elaboración de  perfiles y decisiones automatizadas, así como las posibles cesiones y las transferencias internacionales que  APROPERTIES REAL ESTATE ASSETS S.L. tiene previsto realizar: 

TRATAMIENTOS REALIZADOS

Gestión de la página web

  • Finalidad: Tratamiento y gestión de los datos necesarios para la funcionalidad de la página  web 
  • Plazo de conservación: mientras perdure el consentimiento prestado  
  • Base legítima: El consentimiento del interesado 
  • Tipología de Datos: Datos meramente identificativos 
  • Cesiones: No se prevén 
  • Transferencias internacionales: No se prevén 
  • Elaboraciones de perfiles: No se prevén

Formulario contacto y cotización

  • Finalidad: Atender sus consultas y/o solicitudes 
  • Plazo de conservación: mientras se mantenga el consentimiento prestado. Base legítima: El consentimiento del interesado 
  • Tipología de Datos: Datos meramente identificativos 
  • Cesiones: Ninguna 
  • Transferencias internacionales: No se prevén 
  • Elaboraciones de perfiles: No se prevén

Gestión del cumplimiento normativo

  • Finalidad: Gestión y tramitación de las obligaciones y deberes que se deriven del  cumplimiento de la normativa a la cual está sujeta la entidad 
  • Plazo de conservación: conservación de las copias de los documentos hasta que  prescriban las acciones para reclamarle una posible responsabilidad 
  • Base legítima: El cumplimiento de una ley 
  • Tipología de Datos: Datos meramente identificativos 
  • Cesiones: sus datos serán comunicados en caso de ser necesario a Organismos y/o  administración pública con competencia en la materia con la finalidad de cumplir con las  obligaciones establecidas en la normativa aplicable. Además, se informa que la base  legitimadora de la cesión es cumplir con las obligaciones establecidas en la normativa  aplicable 
  • Transferencias internacionales: No se prevén 
  • Elaboraciones de perfiles: No se prevén

Acciones Comerciales

  • Finalidad: Captación, registro y tratamiento de datos con finalidades de publicidad y  prospección comercial de nuestros productos y/o servicios 
  • Plazo de conservación: mientras se mantenga el consentimiento prestado Base legítima: El consentimiento del interesado 
  • Tipología de Datos: Datos meramente identificativos 
  • Cesiones: Ninguna 
  • Transferencias internacionales: No se prevén 
  • Elaboraciones de perfiles: No se prevén

Gestión Bolsa de empleo

  • Finalidad: Registro y tratamiento de datos de candidatos para finalidades de selección de  personal referentes a puestos de trabajo vacantes de las entidades colaboradoras y gestión  de la bolsa de empleo 
  • Plazo de conservación: mientras perdure el consentimiento prestado 
  • Base legítima: El consentimiento del interesado 
  • Tipología de Datos: Datos meramente identificativos 
  • Cesiones: sus datos serán comunicados en caso de ser necesario a Entidades  Colaboradoras con la finalidad de gestionar la bolsa de empleo y trasladar la candidatura a  la empresa colaboradora. Además, se informa que la base legitimadora de la cesión es su  consentimiento 
  • Transferencias internacionales: No se prevén 
  • Elaboraciones de perfiles: No se prevén

GESTIÓN DE DATOS

De acuerdo con lo establecido por el Reglamento (UE) 2016/679 del Parlamento Europeo y del Consejo, de 27 de abril de 2016, relativo a la protección de las personas físicas en lo que respecta al tratamiento de datos personales y a la libre circulación de estos datos y por el que se deroga la Directiva 95/46/CE, APROPERTIES REAL ESTATE ASSETS SL informa al Usuario en relación a los sitios web www.aproperties.es y derivados (en adelante, sitios web), que la información que se pueda recabar en los sitios web se incorporará en los sistemas de tratamiento responsabilidad de APROPERTIES REAL ESTATE ASSETS SL, con las finalidades de realizar la gestión y el mantenimiento de la relación con el Usuario con los sitios web, así como las labores de información, estadística, y comercialización de los servicios y de las actividades relacionadas con los mismos.

APROPERTIES REAL ESTATE ASSETS SL informa de que la base legítima que ampara los tratamientos indicados es la existencia de un interés legítimo, asimismo en cuanto a la instalación de cookies se encuentran legitimados en la existencia del consentimiento prestado por parte de los interesados o, en su caso, de los representantes legales de los mismos.

  • APROPERTIES REAL ESTATE ASSETS SL informa de que los datos serán conservados mientras perdure el consentimiento prestado por el Usuario, exceptuando aquellos casos en los que estemos obligados legalmente a su conservación.
  • De acuerdo con los derechos que le confiere la normativa vigente en protección de datos, el Usuario podrá dirigirse a la Autoridad de Control competente para presentar la reclamación que considere oportuna, así como también podrá ejercer los derechos de acceso, rectificación, limitación de tratamiento, supresión, portabilidad y oposición al tratamiento de sus datos de carácter personal, así como a la retirada del consentimiento prestado para el tratamiento de los mismos.

De acuerdo con lo establecido por el artículo 32 del Reglamento (UE) 2016/679 del Parlamento Europeo y del Consejo, de 27 de abril de 2016, relativo a la protección de las personas físicas en lo que respecta al tratamiento de datos personales y a la libre circulación de estos datos y por el que se deroga la Directiva 95/46/CE, APROPERTIES REAL ESTATE ASSETS SL se compromete a adoptar las medidas técnicas y organizativas necesarias, acorde al nivel de riesgos que acompañan los tratamientos realizados por éstas e indicados en el apartado de los términos y condiciones de uso, de forma que garanticen su integridad, confidencialidad y disponibilidad.
 
Asimismo, APROPERTIES REAL ESTATE ASSETS SL informa que en el caso que el Usuario introduzca datos en los formularios de los sitios web de terceros, serán estos últimos los responsables de los datos de carácter personal, y quienes deberán adoptar las medidas técnicas descritas en el siguiente apartado.

DERECHOS DE LOS INTERESADOS

APROPERTIES REAL ESTATE ASSETS S.L. informa a los Usuarios que, podrá ejercer los derechos  de acceso, rectificación, limitación, supresión, portabilidad y oposición al tratamiento de sus datos de carácter personal ante el Responsable del Tratamiento, así como a la retirada del consentimiento prestado. 

  • Derecho de Acceso: Es el derecho del usuario a obtener información sobre sus datos concretos de carácter personal y del tratamiento que se haya realizado o realice, así como de la información disponible sobre el origen de dichos datos y las comunicaciones realizadas o previstas de los mismos. 
  • Derecho de Rectificación: Es el derecho del afectado a que se modifiquen los datos que resulten ser inexactos o incompletos. Sólo podrá satisfacerse en relación a aquella información que se encuentre bajo el control de la APP, por ejemplo, eliminar comentarios publicados en la propia página, imágenes o contenidos web donde consten datos de carácter personal del usuario. 
  • Derecho a la Limitación de tratamiento: Es el derecho a que se limiten los fines del tratamiento previstos de forma original por el responsable del tratamiento. 
  • Derecho de Supresión: Es el derecho a suprimir los datos de carácter personal del usuario, a excepción de lo previsto en el propio RGPD o en otras normativas aplicables que determinen la obligatoriedad de la conservación de los mismos, en tiempo y forma. 
  • Derecho de portabilidad: El derecho a recibir los datos personales que el usuario, haya facilitado, en un formato estructurado, de uso común y lectura mecánica, y a transmitirlos a otro responsable. 
  • Derecho de Oposición: Es el derecho del usuario a que no se lleve a cabo el tratamiento de sus datos de carácter personal o se cese el tratamiento de los mismos por parte de la APP. 

Para poder ejercer cualquiera de los derechos descritos anteriormente deberá cumplir con los siguientes requisitos: 

- Presentación de un escrito a la dirección indicada en la parte superior de esta (a la atención de APROPERTIES REAL ESTATE ASSETS S.L.) o bien a través de correo electrónico a [email protected]

- El escrito remitido por el titular de los datos que solicite el ejercicio deberá de cumplir los siguientes requisitos legales:

  • Nombre, apellidos del interesado y copia del DNI/NIE o cualquier documento identificativo. En los excepcionales casos en que se admita la representación, será también necesaria la identificación por el mismo medio de la persona que le representa, así como el documento acreditativo de la representación. La fotocopia del DNI podrá ser sustituida siempre que se acredite la identidad por cualquier otro medio válido en derecho. 
  • Petición en que se concreta la solicitud. (Ejercicio en el que se solicita la información a la que se quiere acceder). Si no hace referencia a un fichero concreto se le facilitará toda la información que se tenga con sus datos de carácter personal. Si solicita información de un fichero en concreto, sólo la información de este fichero. Si solicita información relativa a un tercero nunca se podrá facilitar. Si lo solicita por teléfono se le indicará que lo haga por escrito y se le informará de cómo lo puede hacer y la dirección a la que tiene que enviarlo. Nunca se le dará información por teléfono. 
  • Domicilio a efectos de notificaciones. 
  • Fecha y firma del solicitante. 
  • Documentos acreditativos de la petición que formula. 
  • El interesado debe utilizar cualquier medio que permita acreditar el envío y la recepción de la solicitud. 

Por último, le informamos que Usted tiene derecho a presentar una reclamación ante la Agencia Española de  Protección de Datos en caso de que tenga conocimiento o considere que un hecho pueda suponer un  incumplimiento de la normativa aplicable en materia de protección de datos.

APROPERTIES REAL ESTATE ASSETS S.L. se compromete a adoptar las medidas técnicas y organizativas  necesarias, acorde al nivel de riesgos que acompañan los tratamientos realizados por éstas e indicados en el  apartado de los términos y condiciones de uso, de forma que garanticen su integridad, confidencialidad y disponibilidad.

POLÍTICA DE REDES SOCIALES

De conformidad con lo establecido en la normativa vigente y aplicable de protección de datos de carácter  personal y la Ley 34/2002, de 11 de julio, de Servicios de la Sociedad de la Información y de Comercio  Electrónico (LSSI-CE), APROPERTIES REAL ESTATE ASSETS S.L. informa a los usuarios, que ha procedido a  crear un perfil en la/s Red/es Social/es Facebook, Instagram, Linkedin y YouTube, con la finalidad principal de  publicitar sus productos y servicios. 

El usuario dispone de un perfil en la misma Red Social y ha decidido unirse a la página creada por  APROPERTIES REAL ESTATE ASSETS S.L., mostrando así interés en la información que se publicite en la  Red. Al unirse a nuestra página, nos facilita su consentimiento para el tratamiento de aquellos datos personales  publicados en su perfil. 

El usuario puede acceder en todo momento a las políticas de privacidad de la propia Red Social, así como  configurar su perfil para garantizar su privacidad. 

APROPERTIES REAL ESTATE ASSETS S.L. tiene acceso y trata aquella información pública del usuario, en  especial, su nombre de contacto. Estos datos, sólo son utilizados dentro de la propia Red Social. No son  incorporados a ningún sistema de tratamiento. 

Derechos de los interesados 

En relación a los acceso, rectificación, limitación de tratamiento, supresión, portabilidad y oposición al tratamiento  de sus datos de carácter personal, de los que usted dispone y que pueden ser ejercitados ante APROPERTIES  REAL ESTATE ASSETS S.L., de acuerdo con la RGPD, debe tener en cuenta los siguientes matices: 

  • Derecho de Acceso: Es el derecho del usuario a obtener información sobre sus datos concretos de carácter personal y del tratamiento que se haya realizado o realice, así como de la información disponible sobre el origen de dichos datos y las comunicaciones realizadas o previstas de los mismos. 
  • Derecho de Rectificación: Es el derecho del afectado a que se modifiquen los datos que resulten ser inexactos o incompletos. Sólo podrá satisfacerse en relación a aquella información que se encuentre bajo el control de APROPERTIES REAL ESTATE ASSETS S.L., por ejemplo, eliminar comentarios publicados en la propia página, imágenes o contenidos web donde consten datos de carácter personal del usuario. 
  • Derecho a la Limitación de tratamiento: Es el derecho a que se limiten los fines del tratamiento previstos de forma original por el responsable del tratamiento. 
  • Derecho de Supresión: Es el derecho a suprimir los datos de carácter personal del usuario, a excepción de lo previsto en el propio RGPD o en otras normativas aplicables que determinen la obligatoriedad de la conservación de los mismos, en tiempo y forma. 
  • Derecho de portabilidad: El derecho a recibir los datos personales que el usuario, haya facilitado, en un formato estructurado, de uso común y lectura mecánica, y a transmitirlos a otro responsable. 
  • Derecho de Oposición: Es el derecho del usuario a que no se lleve a cabo el tratamiento de sus datos de carácter personal o se cese el tratamiento de los mismos por parte de APROPERTIES REAL ESTATE ASSETS S.L.. 

APROPERTIES REAL ESTATE ASSETS S.L. realizará las siguientes actuaciones: 

  • Acceso a la información pública del perfil. 
  • Publicación en el perfil del usuario de toda aquella información ya publicada en la página de APROPERTIES REAL ESTATE ASSETS S.L..
  • Enviar mensajes personales e individuales a través de los canales de la Red Social. 
  • Actualizaciones del estado de la página que se publicarán en el perfil del usuario. 

El usuario siempre puede controlar sus conexiones, eliminar los contenidos que dejen de interesarle y restringir  con quién comparte sus conexiones, para ello deberá acceder a su configuración de privacidad. 

Publicaciones 

El usuario, una vez unido a la página de APROPERTIES REAL ESTATE ASSETS S.L., podrá publicar en ésta  última comentarios, enlaces, imágenes o fotografías o cualquier otro tipo de contenido multimedia soportado por  la Red Social. El usuario, en todos los casos, debe ser el titular de los mismos, gozar de los derechos de autor y  de propiedad intelectual o contar con el consentimiento de los terceros afectados. Se prohíbe expresamente  cualquier publicación en la página, ya sean textos, gráficos, fotografías, vídeos, etc. que atenten o sean  susceptibles de atentar contra la moral, la ética, el buen gusto o el decoro, y/o que infrinjan, violen o quebranten  los derechos de propiedad intelectual o industrial, el derecho a la imagen o la Ley. En estos casos,  APROPERTIES REAL ESTATE ASSETS S.L. se reserva el derecho a retirar de inmediato el contenido,  pudiendo solicitar el bloqueo permanente del usuario. 

APROPERTIES REAL ESTATE ASSETS S.L. no se hará responsable de los contenidos que libremente ha  publicado un usuario. 

El usuario debe tener presente que sus publicaciones serán conocidas por los otros usuarios, por lo que él  mismo es el principal responsable de su privacidad. 

Las imágenes que puedan publicarse en la página no serán almacenadas en ningún sistema de tratamiento por  parte de APROPERTIES REAL ESTATE ASSETS S.L., pero sí que permanecerán en la Red Social. 

Concursos y promociones 

APROPERTIES REAL ESTATE ASSETS S.L. se reserva el derecho a realizar concursos y promociones, en los  que podrá participar el usuario unido a su página. Las bases de cada uno de ellos, cuando se utilice para ello la  plataforma de la Red Social, serán publicadas en la misma. Cumpliendo siempre con la LSSI-CE y con cualquier  otra norma que le sea de aplicación. 

La Red Social no patrocina, avala ni administra, de modo alguno, ninguna de nuestras promociones, ni está  asociada a ninguna de ellas.

Publicidad 

APROPERTIES REAL ESTATE ASSETS S.L. utilizará la Red Social para publicitar sus productos y servicios, en  todo caso, si decide tratar sus datos de contacto para realizar acciones directas de prospección comercial, será  siempre, cumpliendo con las exigencias legales del RGPD y de la LSSI-CE. 

No se considerará publicidad el hecho de recomendar a otros usuarios la página de APROPERTIES REAL  ESTATE ASSETS S.L. para que también ellos puedan disfrutar de las promociones o estar informados de su  actividad. 

A continuación detallamos el enlace a la política de privacidad de la Red Social: 

ÚLTIMA ACTUALIZACIÓN: 21 de enero de 2022.

Utilitzem cookies pròpies y de tercers per fer funcionar de manera segura la nostra pàgina web i personalitzar el seu contingut. Igualment, fem servir cookies per mesurar i obtenir dades de la navegació que realitza i per ajustar la publicitat als seus gustos i preferències. Premi el botó "Acceptar totes" per confirmar que ha llegit i acceptat l'informació presentada. Per administrar o deshabilitar aquestes cookies faci clic a "Configuració". Pot obtenir més informació a la nostra política de cookies.
Modificar cookies
Tècniques i funcionals Sempre activades
Aquest lloc web utilitza cookies pròpies per recopilar informació amb la finalitat de millorar els nostres serveis. Si continua navegant, suposa l'acceptació de la instal·lació de les mateixes. L'usuari té la possibilitat de configurar el navegador podent, si així ho desitja, impedir que siguin instal·lades al disc dur, encara que haurà de tenir en compte que aquesta acció podrà ocasionar dificultats de navegació de la pàgina web.
Analítiques i personalització
Permeten fer el seguiment i l'anàlisi del comportament dels usuaris d'aquest lloc web. La informació recollida mitjançant aquest tipus de cookies s'utilitza en el mesurament de l'activitat del web per a l'elaboració de perfils de navegació dels usuaris per introduir millores en funció de l'anàlisi de les dades d'ús que fan els usuaris del servei. Permeten desar la informació de preferència de l'usuari per millorar la qualitat dels nostres serveis i oferir una millor experiència a través de productes recomanats.
Marketing i publicitat
Aquestes cookies són utilitzades per emmagatzemar informació sobre les preferències i les eleccions personals de l'usuari a través de l'observació continuada dels seus hàbits de navegació. Gràcies a elles, podem conèixer els hàbits de navegació al lloc web i mostrar publicitat relacionada amb el perfil de navegació de l'usuari.