Àtic en lloguer a Finestrelles

Superfície
125 m²
Dormitoris
3
Banys
2
Atic en lloguer
3.500 €
Reservada
Play icon Veure video de la propietat

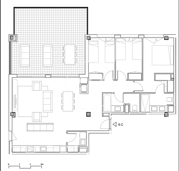
ÀTIC EN LLOGUER DE 3 HABITACIONS AMB ZONA COMUNITÀRIA, PISCINA I 3 PLACES D’APARCAMENT AMB TRASTER

Àtic d’obra nova amb aparcament, zona comunitària i piscina a la zona de Finestrelles, Esplugues de Llobregat.

La propietat disposa de 100 m² útils distribuïts en 3 dormitoris exteriors dobles amb armaris encastats, 2 banys complets i saló amb sortida a una terrassa de 40 m². Un dels banys, amb dutxa, es troba a l’estança suite, i l’altre, amb banyera, és per compartir entre les altres dues habitacions.

Al costat del saló-menjador trobem una àmplia cuina tancada, amb llum natural directa i sense electrodomèstics. L’espai d’aquesta estança és molt lluminós gràcies a l’ús de finestrals disposats en forma de L i la seva orientació sud-oest. Contigua a la cuina hi ha també la sala de bugaderia per a la instal·lació de rentadora i assecadora, no incloses.

Pel que fa a l’equipament, disposa de fusteria d’alumini amb doble vidre, calefacció per terra radiant i aerotèrmia, així com aire condicionat independent per conductes, també d’aerotèrmia. Gràcies al seu disseny i orientació, és un habitatge amb llum natural a gairebé totes les seves estances.

També inclou 3 àmplies places d’aparcament amb traster de 8 m². Consergeria en horari de 09:00 a 13:30 i de 16:00 a 20:00 de dilluns a divendres, videovigilància i vigilància nocturna.
El pis forma part d’un conjunt residencial exclusiu amb control d’accés, piscina, zones comunitàries i parc infantil.


La ubicació és ideal, en un tranquil districte residencial de la zona alta de Barcelona, connectat amb un dels pulmons verds de la ciutat, el Parc de Collserola. A prop d’escoles internacionals (Col·legi Alemany, American School of Barcelona, St. Peter’s, etc.), del centre comercial Finestrelles i de l’Hospital Sant Joan de Déu. A 5 minuts del Parc de Cervantes, a 10 minuts de l’estadi del Futbol Club Barcelona i a 15 minuts de l’aeroport internacional del Prat.

És una oportunitat única per a famílies, parelles o persones que vulguin gaudir d’un pis amb infraestructures de qualitat i la proximitat a totes les comoditats i a la natura.
T’imagines viure aquí?

SENSE COMISSIÓ D’AGÈNCIA.


* En compliment de la Llei 12/2023 i la Llei 18/2007 informem que:
Índex de R.P.LL: 24,70 € / m2
Respecte a la present propietat no existeix certificat informatiu estatal de referència dels preus de lloguer.
No consta cap contracte d'arrendament d'habitatge en els darrers 5 anys.
Aquest propietari ostenta la condició de gran tenidor.
  • Característiques
  • Vistes
  • Calefacció
  • Traster
  • Aacc
  • Terrassa
  • Té parking
  • Ascensor
  • Vigilància
  • Conserge
Certificat energètic
Consum energia:
A
19.00 Kw h/m² any
    Emissions:
    A
    3.00 Co/m² any
Més eficient Menys eficient Qualificació energètica Consum energia Kw h/m² any Emissions Co/m² any 19.00 3.00

Sobre Finestrelles

Delimitat per l'autopista B-23, pels termes municipals de Barcelona i pel barri de Ciutat Diagonal, al barri de Finestrelles ha viscut notables transformacions últimament: el soterrament de línies d'alta tensió ha permès iniciar un projecte anomenat Porta Barcelona, que suposarà unes millores notables en la xarxa viària, l'execució de 125 habitatges de promoció municipal, l'increment de zones verdes a 19 hectàrees i l'increment de el teixit empresarial. També, s'ha reordenat la zona compresa entre les avingudes de Jacint Esteve i Traginers, creant nous espais verds. Els habitatges, majoritàriament plantes baixes o cases de poques plantes, defineixen els seus carrers. Aquí es troben alguns equipaments privats com el col·legi Isabel de Villena o el CTC Diagonal, a Sant Pere Màrtir. Un dels elements de referència inqüestionable és l'Hospital Infantil de Sant Joan de Déu, juntament amb el seu edifici docent, seu de l'Escola Universitària d'Infermeria.

Propietats vistes recentment

Pis en lloguer
AB2502043
4.950 €

Pis de lloguer al carrer Ràfols

Sarrià, Barcelona ciutat
Situat en una de les zones més exclusives de Barcelona, a la part alta de Sarrià, trobem aquest espectacular pis de lloguer. Es tracta d’una propietat moderna que forma part d’un dels desenvolupaments urbanístics més destacats de la zona en els darrers anys. Aquest elegant conjunt residencial ofereix una sèrie de serveis d’alta gamma, com una zona comunitària amb piscina, amplis jardins i gimnàs privat, garantint comoditat i benestar per als seus residents. L’habitatge té una superfície útil de 106m² i es distribueix en 3 habitacions lluminoses i 2 banys de disseny contemporani. La cuina, oberta al saló, està equipada amb electrodomèstics de la marca Gaggenau. A més, compta amb una terrassa de 8m², perfecta per gaudir de l’aire lliure i de les vistes. El pis disposa d’aïllament tèrmic i acústic i acabats de la més alta qualitat. També inclou un sistema de domòtica personalitzable, terra radiant i calefacció i aire condicionat per aerotèrmia, un sistema energètic altament eficient i de molt baix consum. El lloguer inclou 2 places d’aparcament per a cotxe, un carregador elèctric, un garatge per a moto i un traster, aportant un gran valor en termes de comoditat i funcionalitat. La ubicació és ideal, amb accés proper als millors serveis i equipaments de la ciutat, incloent escoles prestigioses, col·legis internacionals i clíniques de renom, fet que converteix aquest immoble en una opció immillorable per a aquells que busquen qualitat de vida en un entorn sofisticat i ben comunicat. Honoraris d’agència a càrrec del propietari.* En compliment de la Llei 12/2023 i la Llei 18/2007 informem que:Índex de R.P.LL: 19,31 € / m2 Respecte a la present propietat no existeix certificat informatiu estatal de referència dels preus de lloguer.No consta cap contracte d'arrendament d'habitatge en els darrers 5 anys.Aquest propietari ostenta la condició de gran tenidor.
Superfície 122 m2
Dormitoris 3
Banys 2
4.950 €
Pis en lloguer
Reservada
AB2502040
3.057 €

Pis en lloguer al Carrer Modolell

Sant Gervasi - Galvany, Barcelona ciutat
Situat a la zona residencial de Sant Gervasi-Tres Torres, envoltat de comerços, molt ben comunicat amb transport públic i a pocs passos de la Via Augusta, trobem aquest magnífic pis reformat de 207 m² amb quatre dormitoris dobles més una habitació de servei, tres banys complets, terrassa i plaça d’aparcament. El gran rebedor connecta la zona de dia i la zona de nit, i dona accés al ampli saló-menjador d’uns 40 m² amb sortida a una agradable terrassa orientada al sol del matí i migdia. La cuina està equipada amb forn, extractor de fums, vitroceràmica i microones, i disposa d’una àmplia zona d’office, un safareig independent amb un petit balcó, una habitació de servei amb bany i entrada de servei independent. La zona de nit consta de: Una gran habitació doble principal amb diversos armaris encastats, un petit rebedor i un bany complet amb dutxa. Tres habitacions exteriors dobles amb armaris encastats i un bany complet amb banyera. L’habitatge compta amb sòls de parquet, aire condicionat i calefacció per conductes a totes les estances, persianes elèctriques, una plaça d’aparcament gran, servei de consergeria al matí i dos ascensors. Disponibilitat immediata. Contracte de llarga durada.* En compliment de la Llei 12/2023 i la Llei 18/2007 informem que:Índex de R.P.LL: 18,15 € / m2 Respecto a la presente propiedad no existe certificado informativo estatal de referencia de precios de alquilerLloguer de l'últim contracte d'arrendament: 2.850,00 €Este propietario ostenta la condición de gran tenedor.
Superfície 184 m2
Dormitoris 5
Banys 3
3.057 €
Casa en lloguer
AB2511068-1
10.000 €

Casa de lloguer a Can Caralleu

Sarrià, Barcelona ciutat
Casa d’autor a Sarrià En una de les zones més distingides i residencials de Barcelona, es troba aquesta exclusiva casa unifamiliar de 380 m², dissenyada i construïda pel reconegut arquitecte Enric Espinet, figura clau de l’arquitectura contemporània catalana. L’habitatge, distribuït en diverses plantes, combina línies modernes, llum natural i una funcionalitat impecable. Les seves cinc àmplies habitacions i quatre banys ofereixen l’equilibri perfecte entre espais de convivència i privacitat, pensats per a una vida familiar o professional d’alt nivell. Cada detall reflecteix la sensibilitat arquitectònica característica d’Espinet: una relació fluida entre interior i exterior, materials nobles seleccionats amb criteri i una distribució que prioritza la comoditat, la lluminositat i l’harmonia amb l’entorn. La sala principal, àmplia i diàfana, connecta amb les terrasses assolellades i el jardí privat, creant una continuïtat visual que multiplica la sensació d’espai i serenitat. La cuina, moderna i perfectament equipada, és el centre funcional de l’habitatge; un espai pensat tant per a l’ús diari com per a la gastronomia més exigent. Situada en un carrer tranquil i amb un accés excel·lent a escoles internacionals, parcs naturals i serveis exclusius, aquesta casa ofereix un estil de vida únic, on el disseny, el confort i la ubicació es combinen amb mestria. El segell d’Enric Espinet confereix a aquesta propietat un valor arquitectònic diferencial: un habitatge concebut no només per ser habitat, sinó per ser experimentat. La finalitat del contracte és temporal.LA INFORMACIÓ CONTINGUDA EN AQUESTA PUBLICACIÓ POT SER OBJECTE DE MODIFICACIÓ EN APLICACIÓ DE LA LLEI 11/2025, DE 29 DE DESEMBRE, DE MESURES EN MATÈRIA D’HABITATGE I URBANISME. Honoraris d’agència a càrrec del propietari.* En compliment de la Llei 12/2023 i la Llei 18/2007 informem que:Índex de R.P.LL: 22,41 € / m2 Respecte a la present propietat no existeix certificat informatiu estatal de referència dels preus de lloguer.No consta cap contracte d'arrendament d'habitatge en els darrers 5 anys.Aquest propietari ostenta la condició de gran tenidor.La present propietat té la consideració de suntuària per raó de superfície i/o renda i, de conformitat amb la LAU, no és aplicable l'índex estatal de referència dels preus de lloguer.
Superfície 381 m2
Dormitoris 5
Banys 6
10.000 €
Casa en lloguer
AB2405026
24.000 €

Casa en lloguer, amb jardí i piscina a Pedralbes

Pedralbes, Barcelona ciutat
Disponible 01/08/2024 Situada en un lloc privilegiat amb vista a tota la ciutat, trobem aquesta espectacular casa de 730m2 construïts sobre una parcel·la en un sol nivell de 2015 m² i amb possibilitat de construir 300 m² més o segregar. Dissenyada per l'arquitecte F. Mitjans, està envoltada d'un ampli jardí amb piscina climatitzada, solàrium, porxo i aparcament cobert. En la planta principal, en tres ambients i amb accés al jardí trobem un gran saló, menjador i biblioteca. També hi ha sala de música, zona de convidats amb saló annex i dues grans habitacions amb un bany. En la mateixa planta, es disposa la cuina office, zona de servei amb accés des de l'exterior i garatge per a dos/tres cotxes. En la planta superior, que accedim a través d'una escala de disseny, trobem tres habitacions amb accés directe a la terrassa, una Màster Suite amb dues vestidores i saló privat, una segona suite, habitació doble i un bany. En la planta soterrani, amb accés des de l'exterior, hi ha habitació de servei amb bany, zona d'aigües, magatzem i diferents sales de màquines. T'imagines viure aquí? Honoraris d’agència a càrrec del propietari.* En compliment de la Llei 12/2023 i la Llei 18/2007 informem que:Índex de R.P.LL: 21,00 € / m2 Respecte a la present propietat no existeix certificat informatiu estatal de referència dels preus de lloguer.Lloguer de l'últim contracte d'arrendament: 22.000,00 €Aquest propietari no ostenta la condició de gran tenidor.La present propietat té la consideració de suntuària per raó de superfície i/o renda i, de conformitat amb la LAU, no és aplicable l'índex estatal de referència dels preus de lloguer.
Superfície 730 m2
Dormitoris 7
Banys 7
24.000 €
Casa en lloguer
Llogada
AB2509060
2.950 €

Casa en lloguer al Baix Guinardó

Horta-Guinardó, Barcelona ciutat
Descobreix aquesta espectacular casa recentment reformada, amb un encantador jardí que t'invita a gaudir de la tranquil·litat i el confort. La propietat ofereix un ampli saló menjador amb xemeneia, que s'obre directament al jardí, creant un espai perfecte per relaxar-te i gaudir de la natura. La cuina és independent, amb una pràctica zona office, i està completament equipada amb electrodomèstics d'alta qualitat, ideal per als amants de la cuina. A més, a la mateixa planta es troba un bany de cortesia. La casa compta amb quatre habitacions, totes exteriors, la qual cosa garanteix una excel·lent il·luminació natural. La suite principal es troba a la segona planta de la casa i disposa d’un bany privat amb banyera i accés a una terrassa solàrium, on podràs gaudir de moments de relax i vistes privilegiades. Els altres dormitoris també són amplis i lluminosos, situats a la primera planta de la casa, amb un d'ells oferint accés a un balcó amb vistes al jardí. Les habitacions comparteixen un bany complet, un d'ells amb dutxa. Amb més de 150 m2 d'espai habitable, aquesta vivenda és ideal per a famílies que busquen comoditat i amplitud. Compten amb calefacció de gas i aire condicionat a la suite. Disponible des de l'1 de novembre i es lloga semi-moblat amb contracte de llarga durada. Es troba en una excel·lent ubicació, en una zona residencial tranquil·la, envoltada de zones verdes com el Parc de les Aigües i els Jardins del Doctor Pla i Armengol. La casa està molt ben comunicada, amb fàcil accés al metro i autobusos, i propera a l'Hospital de Sant Pau. Una oportunitat única de viure en un entorn privilegiat i ben connectat. No deixis passar aquesta oportunitat!* En compliment de la Llei 12/2023 i la Llei 18/2007 informem que:Índex de R.P.LL: 19,27 € / m2 Respecte a la present propietat no existeix certificat informatiu estatal de referència dels preus de lloguer.Lloguer de l'últim contracte d'arrendament: 3.100,00 €Aquest propietari no ostenta la condició de gran tenidor.
Superfície 153 m2
Dormitoris 4
Banys 3
2.950 €
x

DATOS DEL PROPIETARIO DE LA WEB

  • RAZÓN SOCIAL: APROPERTIES REAL ESTATE ASSETS SL
  • NIF: B66207879
  • DIRECCIÓN  POSTAL: PASSEIG DE GRACIA 85 PLANTA 8 08008, BARCELONA
  • DIRECCIÓN ELECTRÓNICA: [email protected] 
  • OBJETO PRINCIPAL: PLATAFORMA INMOBILIARIA

De conformidad con la normativa vigente y aplicable en protección de datos de carácter personal, le informamos  que sus datos serán incorporados al sistema de tratamiento titularidad de APROPERTIES REAL ESTATE  ASSETS SL. con NIF B66207879 y domicilio social sito en PASSEIG DE GRACIA 85 PLANTA 8 08008,  BARCELONA, y que a continuación se relacionan sus respectivas finalidades, plazos de conservación y bases  legitimadoras. Para aquellos tratamientos que lo requieran, se informa también de la posible elaboración de  perfiles y decisiones automatizadas, así como las posibles cesiones y las transferencias internacionales que  APROPERTIES REAL ESTATE ASSETS S.L. tiene previsto realizar: 

TRATAMIENTOS REALIZADOS

Gestión de la página web

  • Finalidad: Tratamiento y gestión de los datos necesarios para la funcionalidad de la página  web 
  • Plazo de conservación: mientras perdure el consentimiento prestado  
  • Base legítima: El consentimiento del interesado 
  • Tipología de Datos: Datos meramente identificativos 
  • Cesiones: No se prevén 
  • Transferencias internacionales: No se prevén 
  • Elaboraciones de perfiles: No se prevén

Formulario contacto y cotización

  • Finalidad: Atender sus consultas y/o solicitudes 
  • Plazo de conservación: mientras se mantenga el consentimiento prestado. Base legítima: El consentimiento del interesado 
  • Tipología de Datos: Datos meramente identificativos 
  • Cesiones: Ninguna 
  • Transferencias internacionales: No se prevén 
  • Elaboraciones de perfiles: No se prevén

Gestión del cumplimiento normativo

  • Finalidad: Gestión y tramitación de las obligaciones y deberes que se deriven del  cumplimiento de la normativa a la cual está sujeta la entidad 
  • Plazo de conservación: conservación de las copias de los documentos hasta que  prescriban las acciones para reclamarle una posible responsabilidad 
  • Base legítima: El cumplimiento de una ley 
  • Tipología de Datos: Datos meramente identificativos 
  • Cesiones: sus datos serán comunicados en caso de ser necesario a Organismos y/o  administración pública con competencia en la materia con la finalidad de cumplir con las  obligaciones establecidas en la normativa aplicable. Además, se informa que la base  legitimadora de la cesión es cumplir con las obligaciones establecidas en la normativa  aplicable 
  • Transferencias internacionales: No se prevén 
  • Elaboraciones de perfiles: No se prevén

Acciones Comerciales

  • Finalidad: Captación, registro y tratamiento de datos con finalidades de publicidad y  prospección comercial de nuestros productos y/o servicios 
  • Plazo de conservación: mientras se mantenga el consentimiento prestado Base legítima: El consentimiento del interesado 
  • Tipología de Datos: Datos meramente identificativos 
  • Cesiones: Ninguna 
  • Transferencias internacionales: No se prevén 
  • Elaboraciones de perfiles: No se prevén

Gestión Bolsa de empleo

  • Finalidad: Registro y tratamiento de datos de candidatos para finalidades de selección de  personal referentes a puestos de trabajo vacantes de las entidades colaboradoras y gestión  de la bolsa de empleo 
  • Plazo de conservación: mientras perdure el consentimiento prestado 
  • Base legítima: El consentimiento del interesado 
  • Tipología de Datos: Datos meramente identificativos 
  • Cesiones: sus datos serán comunicados en caso de ser necesario a Entidades  Colaboradoras con la finalidad de gestionar la bolsa de empleo y trasladar la candidatura a  la empresa colaboradora. Además, se informa que la base legitimadora de la cesión es su  consentimiento 
  • Transferencias internacionales: No se prevén 
  • Elaboraciones de perfiles: No se prevén

GESTIÓN DE DATOS

De acuerdo con lo establecido por el Reglamento (UE) 2016/679 del Parlamento Europeo y del Consejo, de 27 de abril de 2016, relativo a la protección de las personas físicas en lo que respecta al tratamiento de datos personales y a la libre circulación de estos datos y por el que se deroga la Directiva 95/46/CE, APROPERTIES REAL ESTATE ASSETS SL informa al Usuario en relación a los sitios web www.aproperties.es y derivados (en adelante, sitios web), que la información que se pueda recabar en los sitios web se incorporará en los sistemas de tratamiento responsabilidad de APROPERTIES REAL ESTATE ASSETS SL, con las finalidades de realizar la gestión y el mantenimiento de la relación con el Usuario con los sitios web, así como las labores de información, estadística, y comercialización de los servicios y de las actividades relacionadas con los mismos.

APROPERTIES REAL ESTATE ASSETS SL informa de que la base legítima que ampara los tratamientos indicados es la existencia de un interés legítimo, asimismo en cuanto a la instalación de cookies se encuentran legitimados en la existencia del consentimiento prestado por parte de los interesados o, en su caso, de los representantes legales de los mismos.

  • APROPERTIES REAL ESTATE ASSETS SL informa de que los datos serán conservados mientras perdure el consentimiento prestado por el Usuario, exceptuando aquellos casos en los que estemos obligados legalmente a su conservación.
  • De acuerdo con los derechos que le confiere la normativa vigente en protección de datos, el Usuario podrá dirigirse a la Autoridad de Control competente para presentar la reclamación que considere oportuna, así como también podrá ejercer los derechos de acceso, rectificación, limitación de tratamiento, supresión, portabilidad y oposición al tratamiento de sus datos de carácter personal, así como a la retirada del consentimiento prestado para el tratamiento de los mismos.

De acuerdo con lo establecido por el artículo 32 del Reglamento (UE) 2016/679 del Parlamento Europeo y del Consejo, de 27 de abril de 2016, relativo a la protección de las personas físicas en lo que respecta al tratamiento de datos personales y a la libre circulación de estos datos y por el que se deroga la Directiva 95/46/CE, APROPERTIES REAL ESTATE ASSETS SL se compromete a adoptar las medidas técnicas y organizativas necesarias, acorde al nivel de riesgos que acompañan los tratamientos realizados por éstas e indicados en el apartado de los términos y condiciones de uso, de forma que garanticen su integridad, confidencialidad y disponibilidad.
 
Asimismo, APROPERTIES REAL ESTATE ASSETS SL informa que en el caso que el Usuario introduzca datos en los formularios de los sitios web de terceros, serán estos últimos los responsables de los datos de carácter personal, y quienes deberán adoptar las medidas técnicas descritas en el siguiente apartado.

DERECHOS DE LOS INTERESADOS

APROPERTIES REAL ESTATE ASSETS S.L. informa a los Usuarios que, podrá ejercer los derechos  de acceso, rectificación, limitación, supresión, portabilidad y oposición al tratamiento de sus datos de carácter personal ante el Responsable del Tratamiento, así como a la retirada del consentimiento prestado. 

  • Derecho de Acceso: Es el derecho del usuario a obtener información sobre sus datos concretos de carácter personal y del tratamiento que se haya realizado o realice, así como de la información disponible sobre el origen de dichos datos y las comunicaciones realizadas o previstas de los mismos. 
  • Derecho de Rectificación: Es el derecho del afectado a que se modifiquen los datos que resulten ser inexactos o incompletos. Sólo podrá satisfacerse en relación a aquella información que se encuentre bajo el control de la APP, por ejemplo, eliminar comentarios publicados en la propia página, imágenes o contenidos web donde consten datos de carácter personal del usuario. 
  • Derecho a la Limitación de tratamiento: Es el derecho a que se limiten los fines del tratamiento previstos de forma original por el responsable del tratamiento. 
  • Derecho de Supresión: Es el derecho a suprimir los datos de carácter personal del usuario, a excepción de lo previsto en el propio RGPD o en otras normativas aplicables que determinen la obligatoriedad de la conservación de los mismos, en tiempo y forma. 
  • Derecho de portabilidad: El derecho a recibir los datos personales que el usuario, haya facilitado, en un formato estructurado, de uso común y lectura mecánica, y a transmitirlos a otro responsable. 
  • Derecho de Oposición: Es el derecho del usuario a que no se lleve a cabo el tratamiento de sus datos de carácter personal o se cese el tratamiento de los mismos por parte de la APP. 

Para poder ejercer cualquiera de los derechos descritos anteriormente deberá cumplir con los siguientes requisitos: 

- Presentación de un escrito a la dirección indicada en la parte superior de esta (a la atención de APROPERTIES REAL ESTATE ASSETS S.L.) o bien a través de correo electrónico a [email protected]

- El escrito remitido por el titular de los datos que solicite el ejercicio deberá de cumplir los siguientes requisitos legales:

  • Nombre, apellidos del interesado y copia del DNI/NIE o cualquier documento identificativo. En los excepcionales casos en que se admita la representación, será también necesaria la identificación por el mismo medio de la persona que le representa, así como el documento acreditativo de la representación. La fotocopia del DNI podrá ser sustituida siempre que se acredite la identidad por cualquier otro medio válido en derecho. 
  • Petición en que se concreta la solicitud. (Ejercicio en el que se solicita la información a la que se quiere acceder). Si no hace referencia a un fichero concreto se le facilitará toda la información que se tenga con sus datos de carácter personal. Si solicita información de un fichero en concreto, sólo la información de este fichero. Si solicita información relativa a un tercero nunca se podrá facilitar. Si lo solicita por teléfono se le indicará que lo haga por escrito y se le informará de cómo lo puede hacer y la dirección a la que tiene que enviarlo. Nunca se le dará información por teléfono. 
  • Domicilio a efectos de notificaciones. 
  • Fecha y firma del solicitante. 
  • Documentos acreditativos de la petición que formula. 
  • El interesado debe utilizar cualquier medio que permita acreditar el envío y la recepción de la solicitud. 

Por último, le informamos que Usted tiene derecho a presentar una reclamación ante la Agencia Española de  Protección de Datos en caso de que tenga conocimiento o considere que un hecho pueda suponer un  incumplimiento de la normativa aplicable en materia de protección de datos.

APROPERTIES REAL ESTATE ASSETS S.L. se compromete a adoptar las medidas técnicas y organizativas  necesarias, acorde al nivel de riesgos que acompañan los tratamientos realizados por éstas e indicados en el  apartado de los términos y condiciones de uso, de forma que garanticen su integridad, confidencialidad y disponibilidad.

POLÍTICA DE REDES SOCIALES

De conformidad con lo establecido en la normativa vigente y aplicable de protección de datos de carácter  personal y la Ley 34/2002, de 11 de julio, de Servicios de la Sociedad de la Información y de Comercio  Electrónico (LSSI-CE), APROPERTIES REAL ESTATE ASSETS S.L. informa a los usuarios, que ha procedido a  crear un perfil en la/s Red/es Social/es Facebook, Instagram, Linkedin y YouTube, con la finalidad principal de  publicitar sus productos y servicios. 

El usuario dispone de un perfil en la misma Red Social y ha decidido unirse a la página creada por  APROPERTIES REAL ESTATE ASSETS S.L., mostrando así interés en la información que se publicite en la  Red. Al unirse a nuestra página, nos facilita su consentimiento para el tratamiento de aquellos datos personales  publicados en su perfil. 

El usuario puede acceder en todo momento a las políticas de privacidad de la propia Red Social, así como  configurar su perfil para garantizar su privacidad. 

APROPERTIES REAL ESTATE ASSETS S.L. tiene acceso y trata aquella información pública del usuario, en  especial, su nombre de contacto. Estos datos, sólo son utilizados dentro de la propia Red Social. No son  incorporados a ningún sistema de tratamiento. 

Derechos de los interesados 

En relación a los acceso, rectificación, limitación de tratamiento, supresión, portabilidad y oposición al tratamiento  de sus datos de carácter personal, de los que usted dispone y que pueden ser ejercitados ante APROPERTIES  REAL ESTATE ASSETS S.L., de acuerdo con la RGPD, debe tener en cuenta los siguientes matices: 

  • Derecho de Acceso: Es el derecho del usuario a obtener información sobre sus datos concretos de carácter personal y del tratamiento que se haya realizado o realice, así como de la información disponible sobre el origen de dichos datos y las comunicaciones realizadas o previstas de los mismos. 
  • Derecho de Rectificación: Es el derecho del afectado a que se modifiquen los datos que resulten ser inexactos o incompletos. Sólo podrá satisfacerse en relación a aquella información que se encuentre bajo el control de APROPERTIES REAL ESTATE ASSETS S.L., por ejemplo, eliminar comentarios publicados en la propia página, imágenes o contenidos web donde consten datos de carácter personal del usuario. 
  • Derecho a la Limitación de tratamiento: Es el derecho a que se limiten los fines del tratamiento previstos de forma original por el responsable del tratamiento. 
  • Derecho de Supresión: Es el derecho a suprimir los datos de carácter personal del usuario, a excepción de lo previsto en el propio RGPD o en otras normativas aplicables que determinen la obligatoriedad de la conservación de los mismos, en tiempo y forma. 
  • Derecho de portabilidad: El derecho a recibir los datos personales que el usuario, haya facilitado, en un formato estructurado, de uso común y lectura mecánica, y a transmitirlos a otro responsable. 
  • Derecho de Oposición: Es el derecho del usuario a que no se lleve a cabo el tratamiento de sus datos de carácter personal o se cese el tratamiento de los mismos por parte de APROPERTIES REAL ESTATE ASSETS S.L.. 

APROPERTIES REAL ESTATE ASSETS S.L. realizará las siguientes actuaciones: 

  • Acceso a la información pública del perfil. 
  • Publicación en el perfil del usuario de toda aquella información ya publicada en la página de APROPERTIES REAL ESTATE ASSETS S.L..
  • Enviar mensajes personales e individuales a través de los canales de la Red Social. 
  • Actualizaciones del estado de la página que se publicarán en el perfil del usuario. 

El usuario siempre puede controlar sus conexiones, eliminar los contenidos que dejen de interesarle y restringir  con quién comparte sus conexiones, para ello deberá acceder a su configuración de privacidad. 

Publicaciones 

El usuario, una vez unido a la página de APROPERTIES REAL ESTATE ASSETS S.L., podrá publicar en ésta  última comentarios, enlaces, imágenes o fotografías o cualquier otro tipo de contenido multimedia soportado por  la Red Social. El usuario, en todos los casos, debe ser el titular de los mismos, gozar de los derechos de autor y  de propiedad intelectual o contar con el consentimiento de los terceros afectados. Se prohíbe expresamente  cualquier publicación en la página, ya sean textos, gráficos, fotografías, vídeos, etc. que atenten o sean  susceptibles de atentar contra la moral, la ética, el buen gusto o el decoro, y/o que infrinjan, violen o quebranten  los derechos de propiedad intelectual o industrial, el derecho a la imagen o la Ley. En estos casos,  APROPERTIES REAL ESTATE ASSETS S.L. se reserva el derecho a retirar de inmediato el contenido,  pudiendo solicitar el bloqueo permanente del usuario. 

APROPERTIES REAL ESTATE ASSETS S.L. no se hará responsable de los contenidos que libremente ha  publicado un usuario. 

El usuario debe tener presente que sus publicaciones serán conocidas por los otros usuarios, por lo que él  mismo es el principal responsable de su privacidad. 

Las imágenes que puedan publicarse en la página no serán almacenadas en ningún sistema de tratamiento por  parte de APROPERTIES REAL ESTATE ASSETS S.L., pero sí que permanecerán en la Red Social. 

Concursos y promociones 

APROPERTIES REAL ESTATE ASSETS S.L. se reserva el derecho a realizar concursos y promociones, en los  que podrá participar el usuario unido a su página. Las bases de cada uno de ellos, cuando se utilice para ello la  plataforma de la Red Social, serán publicadas en la misma. Cumpliendo siempre con la LSSI-CE y con cualquier  otra norma que le sea de aplicación. 

La Red Social no patrocina, avala ni administra, de modo alguno, ninguna de nuestras promociones, ni está  asociada a ninguna de ellas.

Publicidad 

APROPERTIES REAL ESTATE ASSETS S.L. utilizará la Red Social para publicitar sus productos y servicios, en  todo caso, si decide tratar sus datos de contacto para realizar acciones directas de prospección comercial, será  siempre, cumpliendo con las exigencias legales del RGPD y de la LSSI-CE. 

No se considerará publicidad el hecho de recomendar a otros usuarios la página de APROPERTIES REAL  ESTATE ASSETS S.L. para que también ellos puedan disfrutar de las promociones o estar informados de su  actividad. 

A continuación detallamos el enlace a la política de privacidad de la Red Social: 

ÚLTIMA ACTUALIZACIÓN: 21 de enero de 2022.

Utilitzem cookies pròpies y de tercers per fer funcionar de manera segura la nostra pàgina web i personalitzar el seu contingut. Igualment, fem servir cookies per mesurar i obtenir dades de la navegació que realitza i per ajustar la publicitat als seus gustos i preferències. Premi el botó "Acceptar totes" per confirmar que ha llegit i acceptat l'informació presentada. Per administrar o deshabilitar aquestes cookies faci clic a "Configuració". Pot obtenir més informació a la nostra política de cookies.
Modificar cookies
Tècniques i funcionals Sempre activades
Aquest lloc web utilitza cookies pròpies per recopilar informació amb la finalitat de millorar els nostres serveis. Si continua navegant, suposa l'acceptació de la instal·lació de les mateixes. L'usuari té la possibilitat de configurar el navegador podent, si així ho desitja, impedir que siguin instal·lades al disc dur, encara que haurà de tenir en compte que aquesta acció podrà ocasionar dificultats de navegació de la pàgina web.
Analítiques i personalització
Permeten fer el seguiment i l'anàlisi del comportament dels usuaris d'aquest lloc web. La informació recollida mitjançant aquest tipus de cookies s'utilitza en el mesurament de l'activitat del web per a l'elaboració de perfils de navegació dels usuaris per introduir millores en funció de l'anàlisi de les dades d'ús que fan els usuaris del servei. Permeten desar la informació de preferència de l'usuari per millorar la qualitat dels nostres serveis i oferir una millor experiència a través de productes recomanats.
Marketing i publicitat
Aquestes cookies són utilitzades per emmagatzemar informació sobre les preferències i les eleccions personals de l'usuari a través de l'observació continuada dels seus hàbits de navegació. Gràcies a elles, podem conèixer els hàbits de navegació al lloc web i mostrar publicitat relacionada amb el perfil de navegació de l'usuari.