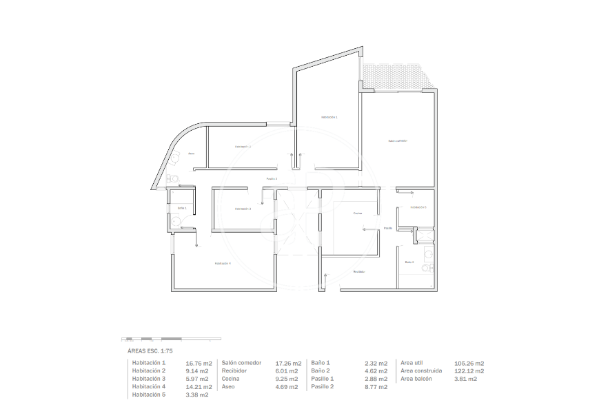
Piso en venta en Nou Barris

Superficie
106 m²
Dormitorios
4
Baños
2
Piso en venta
365.000 €
Vendida
Play icon Ver video de la propiedad

AMPLIO PISO DE 106 M² CON BALCÓN EN FINCA TRANQUILA CON ASCENSOR – CANYELLES

aPproperties vende amplio y luminoso piso de 106 m² ubicado en el tranquilo barrio residencial de Canyelles, ideal para familias que buscan espacio, comodidad y una vivienda bien conservada lista para entrar a vivir.

La vivienda se encuentra en una finca tranquila con pocos vecinos y ascensor, lo que proporciona un ambiente agradable y familiar.

El piso destaca por su excelente distribución y amplitud en todas sus estancias. Dispone de un gran salón comedor muy luminoso, equipado con aire acondicionado, con salida a un balcón exterior de 5 m², perfecto para disfrutar del aire libre.

La cocina es amplia y totalmente equipada, con espacio suficiente para colocar una mesa y zona de comedor diario. Además, cuenta con zona de aguas y lavandería independiente, muy práctica para el día a día.

La zona de descanso se compone de 4 habitaciones exteriores, distribuidas en 2 dormitorios dobles muy amplios y 2 habitaciones individuales también de buen tamaño, ideales como dormitorios infantiles, despacho o habitación de invitados.

La vivienda dispone de 2 baños completos y cuenta con calefacción, lo que garantiza confort durante todo el año.

Características destacadas:

106 m² construidos

Balcón exterior de 5 m²

4 habitaciones (2 dobles y 2 individuales amplias)

2 baños completos

Amplia cocina equipada con espacio para mesa

Lavandería independiente / zona de aguas

Aire acondicionado en salón

Calefacción

Finca tranquila con pocos vecinos

Edificio con ascensor

Ubicado en una zona residencial muy tranquila, con buen ambiente vecinal y cercano a servicios, comercios, transporte y zonas verdes.

Una excelente oportunidad para familias que buscan amplitud, tranquilidad y una vivienda bien ubicada.

Contáctanos para más información o para concertar una visita.

  • Características
  • Calefacción
  • Ascensor
Certificado energético
Consumo energía:
E
100.00 Kw h/m² año
    Emisiones:
    E
    10.00 Co/m² año
Más eficiente Menos eficie Calificación energética Consumo energía Kw h/m² año Emisiones Co/m² año 100.00 10.00

Acerca de Nou Barris

Nou Barris es un distrito situado en el extremo norte de la ciudad, entre la sierra de Collserola y el distrito de Sant Andreu. El extremo superior del distrito lo ocupan los barrios de Ciutat Meridiana, Torre Baró y Vallbona, con unas estructuras urbanas muy marcadas por la orografía montañesa y las grandes barreras artificiales (autopistas y vías del tren).

Propiedades vistas recientemente

Casa en venta
VV2205030
1.975.000 €

Chalet independiente con parcela grande en Urbanización Cruz de Gracia

Godella
Exclusivo chalet de diseño y gran parcela en la privada y lujosa urbanización de "LA CRUZ DE GRACIA". Tiene una superficie total construida de 1.271 m², de los cuales 724 m² corresponden sólo a vivienda y el resto a un sótano donde hay 8 plazas de garaje y mucho más. Todo ello en una magnífica parcela cuadrada de 2.357 m², donde se ha cuidado hasta el más mínimo detalle. En la planta baja la vivienda cuenta con un amplio hall de entrada que confiere a la propiedad gran elegancia. Toda la casa gira en torno a un gran patio cubierto con una preciosa cúpula de cristal digna de las grandes mansiones del siglo XVI, lo que da como resultado una casa donde la luz es la protagonista. El vestíbulo está flanqueado por todas las estancias que componen la planta baja: un enorme despacho, un práctico comedor de más de 40 m² para 22 comensales, que también puede dar paso a un gran salón. A continuación, encontramos la parte más familiar de la casa; una enorme cocina-comedor con dos grandes ventanales, completamente acristalada por un lado a otro gran salón de unos 70 m². En la primera planta, es posible acceder por una bonita escalera o por un cómodo ascensor acristalado, donde encontramos 5 dormitorios, todos ellos dobles y con su propio y amplio baño. Además, el dormitorio principal cuenta con un hall de entrada, un enorme vestidor, acceso a una terraza con preciosas vistas despejadas y un grandioso cuarto de baño con una preciosa bañera de diseño y ducha a ras de suelo, además de un espectacular tocador.   La planta sótano alberga un enorme garaje para 8 coches, una sala de billar y juegos, un gimnasio, una sala de masajes con sauna y ducha, una enorme sala de lavandería, una sala de máquinas para calderas y varias estancias utilizadas actualmente como trasteros, pero con usos muy diversos.   La propiedad también cuenta con una enorme terraza cubierta de unos 120 m², una piscina de 10×4 m, anexa a la terraza, cubierta y climatizada (para disfrutarla incluso en invierno), con un jacuzzi independiente y un paellero cubierto con dos neveras, junto a un baño con ducha. En cuanto a los acabados, los suelos son exclusivos de mármol en toda la casa, excepto en los dormitorios, donde encontramos la calidez del suelo de madera natural, las puertas interiores de nogal macizo de diseño exclusivo, armarios empotrados en vestidores y dormitorios. La carpintería exterior es de aluminio gris mate, mayoritariamente corredera, con cristal "Climalit" de 32 mm laminado por ambas caras, lo que proporciona un inmejorable aislamiento térmico y acústico. Dispone de un sistema de calefacción con radiadores de gas natural en toda la vivienda mediante tres calderas asistidas por tres placas solares situadas en la cubierta y un sistema de climatización frío/calor mediante "splits" en todas las estancias habitables. Además, encontramos alarma perimetral, fibra óptica, descalcificador, iluminación exterior, rejas, mosquiteras y puerta de acceso a la vivienda motorizada. La vivienda, dispone también de precioso jardín de diseño consolidado, una zona de juegos para niños con columpios y balancín bajo un refrescante pinar, un precioso paellero con cocina, nevera y aseo con ducha. La vivienda se encuentra dentro de la exclusiva urbanización "La Cruz de Gracia", con seguridad y control de acceso 24 horas, con zonas ajardinadas comunes, calles perfectamente urbanizadas y un centro deportivo (frontón, pistas de tenis y baloncesto, parque infantil, etc.) de uso exclusivo para los residentes de la urbanización. La urbanización está situada justo enfrente del Centro Comercial Heron City de Paterna y a tan sólo 300 metros de la CV-35 que te lleva en coche a Valencia en menos de 5 minutos. La Urbanización se encuentra emplazada en Godella, una ubicación ideal por tratarse de una de las poblaciones más cercanas a Valencia. Destaca por su proximidad y buena accesibilidad a la capital, al aeropuerto, a las playas y a las autopistas y cuenta con colegios internacionales, centros deportivos y de ocio, campos de golf, clubes sociales y centros comerciales en sus alrededores. Un lugar perfecto para vivir disfrutando de los amplios espacios abiertos junto a la naturaleza.
Superficie 724 m2
Dormitorios 7
Baños 7
1.975.000 €
Atico en venta
VM2603022
3.490.000 €

Ático en venta en Goya

Goya, Madrid ciudad
Aproperties presenta exclusivo ático exterior a estrenar de 250 m² construidos situado en el codiciado barrio de Goya, en pleno distrito de Salamanca, a escasos pasos de El Corte Inglés y a pocos minutos andando del Parque del Retiro, una de las zonas más demandadas y valoradas de Madrid. La vivienda se ubica en un EDIFICIO HISTÓRICO y EMBLEMÁTICO de Madrid, de principios del siglo XX, por su gran valor arquitectónico. Nos encontramos ante una propiedad verdaderamente única y difícil de encontrar en la zona, ya que se trata de un ático completamente exterior en chaflán, con triple orientación, vistas totalmente despejadas y balcones, lo que proporciona una extraordinaria luminosidad durante todo el día. La zona de día está compuesta por un amplísimo salón comedor distribuido en diferentes ambientes. La cocina, íntegramente equipada, destaca por su diseño funcional y sus excelentes calidades. La zona de noche ofrece cuatro dormitorios dobles, todos ellos con cuarto de baño en suite, además de un aseo de cortesía y una práctica zona de lavandería independiente. El cuarto dormitorio, situado en el altillo de la vivienda, ha sido concebido como un espacio polivalente, pudiendo funcionar como dormitorio adicional, sala de televisión o family room, adaptándose así a las distintas necesidades de la vivienda. La propiedad ha sido objeto de una reforma integral de altísimo nivel, en la que se ha prestado especial atención a los detalles y acabados. Se han empleado materiales nobles como maderas de gran calidad y piedras naturales, logrando una vivienda elegante, cálida y muy sofisticada. Se vende completamente amueblada y dispone de calefacción por suelo radiante y aire acondicionado por conductos, garantizando el máximo confort durante todo el año. La finca, representativa y muy cuidada, dispone además de servicio de conserjería. Una oportunidad excepcional para disfrutar de un ático singular, luminoso y con carácter en una de las ubicaciones más prestigiosas del distrito de Salamanca. ¿Te imaginas vivir aquí?
Superficie 250 m2
Dormitorios 4
Baños 5
3.490.000 €
Piso en venta
VM2601080
769.000 €

Piso en venta en Chamberí

Gaztambide, Madrid ciudad
Situado en la codiciada calle Hilarión Eslava, este elegante piso interior de 79 m² combina diseño contemporáneo, funcionalidad y una ubicación privilegiada en uno de los barrios más demandados de la capital. La propiedad se ubica en una primera planta con ascensor y ha sido objeto de un cuidado proyecto de arquitectura y diseño, ofreciendo espacios equilibrados y una atmósfera sofisticada. Dispone de dos amplios dormitorios dobles y dos baños completos, pensados para maximizar el confort y la privacidad. La cocina, totalmente equipada, se integra de forma armónica con la zona de estar y comedor, creando un espacio ideal tanto para el día a día como para el entretenimiento. Cuenta con calefacción comunitaria, aire acondicionado por split y servicio de portería, garantizando comodidad durante todo el año. Su orientación interior aporta tranquilidad y silencio, un valor diferencial en pleno Chamberí. Ubicada en el barrio de Gaztambide, esta vivienda disfruta de una excelente conexión con el centro de Madrid, Ciudad Universitaria y principales ejes de transporte. A escasos minutos del Parque del Oeste, del Mercado de Chamberí y rodeada de comercios, restaurantes y servicios, ofrece un estilo de vida urbano, cómodo y dinámico. Una oportunidad única para quienes buscan un piso de lujo en Chamberí, ya sea como residencia habitual o como inversión inmobiliaria de alto valor en Madrid. ¿Te imaginas vivir aquí?
Superficie 79 m2
Dormitorios 2
Baños 2
769.000 €
x

DATOS DEL PROPIETARIO DE LA WEB

  • RAZÓN SOCIAL: APROPERTIES REAL ESTATE ASSETS SL
  • NIF: B66207879
  • DIRECCIÓN  POSTAL: PASSEIG DE GRACIA 85 PLANTA 8 08008, BARCELONA
  • DIRECCIÓN ELECTRÓNICA: [email protected] 
  • OBJETO PRINCIPAL: PLATAFORMA INMOBILIARIA

De conformidad con la normativa vigente y aplicable en protección de datos de carácter personal, le informamos  que sus datos serán incorporados al sistema de tratamiento titularidad de APROPERTIES REAL ESTATE  ASSETS SL. con NIF B66207879 y domicilio social sito en PASSEIG DE GRACIA 85 PLANTA 8 08008,  BARCELONA, y que a continuación se relacionan sus respectivas finalidades, plazos de conservación y bases  legitimadoras. Para aquellos tratamientos que lo requieran, se informa también de la posible elaboración de  perfiles y decisiones automatizadas, así como las posibles cesiones y las transferencias internacionales que  APROPERTIES REAL ESTATE ASSETS S.L. tiene previsto realizar: 

TRATAMIENTOS REALIZADOS

Gestión de la página web

  • Finalidad: Tratamiento y gestión de los datos necesarios para la funcionalidad de la página  web 
  • Plazo de conservación: mientras perdure el consentimiento prestado  
  • Base legítima: El consentimiento del interesado 
  • Tipología de Datos: Datos meramente identificativos 
  • Cesiones: No se prevén 
  • Transferencias internacionales: No se prevén 
  • Elaboraciones de perfiles: No se prevén

Formulario contacto y cotización

  • Finalidad: Atender sus consultas y/o solicitudes 
  • Plazo de conservación: mientras se mantenga el consentimiento prestado. Base legítima: El consentimiento del interesado 
  • Tipología de Datos: Datos meramente identificativos 
  • Cesiones: Ninguna 
  • Transferencias internacionales: No se prevén 
  • Elaboraciones de perfiles: No se prevén

Gestión del cumplimiento normativo

  • Finalidad: Gestión y tramitación de las obligaciones y deberes que se deriven del  cumplimiento de la normativa a la cual está sujeta la entidad 
  • Plazo de conservación: conservación de las copias de los documentos hasta que  prescriban las acciones para reclamarle una posible responsabilidad 
  • Base legítima: El cumplimiento de una ley 
  • Tipología de Datos: Datos meramente identificativos 
  • Cesiones: sus datos serán comunicados en caso de ser necesario a Organismos y/o  administración pública con competencia en la materia con la finalidad de cumplir con las  obligaciones establecidas en la normativa aplicable. Además, se informa que la base  legitimadora de la cesión es cumplir con las obligaciones establecidas en la normativa  aplicable 
  • Transferencias internacionales: No se prevén 
  • Elaboraciones de perfiles: No se prevén

Acciones Comerciales

  • Finalidad: Captación, registro y tratamiento de datos con finalidades de publicidad y  prospección comercial de nuestros productos y/o servicios 
  • Plazo de conservación: mientras se mantenga el consentimiento prestado Base legítima: El consentimiento del interesado 
  • Tipología de Datos: Datos meramente identificativos 
  • Cesiones: Ninguna 
  • Transferencias internacionales: No se prevén 
  • Elaboraciones de perfiles: No se prevén

Gestión Bolsa de empleo

  • Finalidad: Registro y tratamiento de datos de candidatos para finalidades de selección de  personal referentes a puestos de trabajo vacantes de las entidades colaboradoras y gestión  de la bolsa de empleo 
  • Plazo de conservación: mientras perdure el consentimiento prestado 
  • Base legítima: El consentimiento del interesado 
  • Tipología de Datos: Datos meramente identificativos 
  • Cesiones: sus datos serán comunicados en caso de ser necesario a Entidades  Colaboradoras con la finalidad de gestionar la bolsa de empleo y trasladar la candidatura a  la empresa colaboradora. Además, se informa que la base legitimadora de la cesión es su  consentimiento 
  • Transferencias internacionales: No se prevén 
  • Elaboraciones de perfiles: No se prevén

GESTIÓN DE DATOS

De acuerdo con lo establecido por el Reglamento (UE) 2016/679 del Parlamento Europeo y del Consejo, de 27 de abril de 2016, relativo a la protección de las personas físicas en lo que respecta al tratamiento de datos personales y a la libre circulación de estos datos y por el que se deroga la Directiva 95/46/CE, APROPERTIES REAL ESTATE ASSETS SL informa al Usuario en relación a los sitios web www.aproperties.es y derivados (en adelante, sitios web), que la información que se pueda recabar en los sitios web se incorporará en los sistemas de tratamiento responsabilidad de APROPERTIES REAL ESTATE ASSETS SL, con las finalidades de realizar la gestión y el mantenimiento de la relación con el Usuario con los sitios web, así como las labores de información, estadística, y comercialización de los servicios y de las actividades relacionadas con los mismos.

APROPERTIES REAL ESTATE ASSETS SL informa de que la base legítima que ampara los tratamientos indicados es la existencia de un interés legítimo, asimismo en cuanto a la instalación de cookies se encuentran legitimados en la existencia del consentimiento prestado por parte de los interesados o, en su caso, de los representantes legales de los mismos.

  • APROPERTIES REAL ESTATE ASSETS SL informa de que los datos serán conservados mientras perdure el consentimiento prestado por el Usuario, exceptuando aquellos casos en los que estemos obligados legalmente a su conservación.
  • De acuerdo con los derechos que le confiere la normativa vigente en protección de datos, el Usuario podrá dirigirse a la Autoridad de Control competente para presentar la reclamación que considere oportuna, así como también podrá ejercer los derechos de acceso, rectificación, limitación de tratamiento, supresión, portabilidad y oposición al tratamiento de sus datos de carácter personal, así como a la retirada del consentimiento prestado para el tratamiento de los mismos.

De acuerdo con lo establecido por el artículo 32 del Reglamento (UE) 2016/679 del Parlamento Europeo y del Consejo, de 27 de abril de 2016, relativo a la protección de las personas físicas en lo que respecta al tratamiento de datos personales y a la libre circulación de estos datos y por el que se deroga la Directiva 95/46/CE, APROPERTIES REAL ESTATE ASSETS SL se compromete a adoptar las medidas técnicas y organizativas necesarias, acorde al nivel de riesgos que acompañan los tratamientos realizados por éstas e indicados en el apartado de los términos y condiciones de uso, de forma que garanticen su integridad, confidencialidad y disponibilidad.
 
Asimismo, APROPERTIES REAL ESTATE ASSETS SL informa que en el caso que el Usuario introduzca datos en los formularios de los sitios web de terceros, serán estos últimos los responsables de los datos de carácter personal, y quienes deberán adoptar las medidas técnicas descritas en el siguiente apartado.

DERECHOS DE LOS INTERESADOS

APROPERTIES REAL ESTATE ASSETS S.L. informa a los Usuarios que, podrá ejercer los derechos  de acceso, rectificación, limitación, supresión, portabilidad y oposición al tratamiento de sus datos de carácter personal ante el Responsable del Tratamiento, así como a la retirada del consentimiento prestado. 

  • Derecho de Acceso: Es el derecho del usuario a obtener información sobre sus datos concretos de carácter personal y del tratamiento que se haya realizado o realice, así como de la información disponible sobre el origen de dichos datos y las comunicaciones realizadas o previstas de los mismos. 
  • Derecho de Rectificación: Es el derecho del afectado a que se modifiquen los datos que resulten ser inexactos o incompletos. Sólo podrá satisfacerse en relación a aquella información que se encuentre bajo el control de la APP, por ejemplo, eliminar comentarios publicados en la propia página, imágenes o contenidos web donde consten datos de carácter personal del usuario. 
  • Derecho a la Limitación de tratamiento: Es el derecho a que se limiten los fines del tratamiento previstos de forma original por el responsable del tratamiento. 
  • Derecho de Supresión: Es el derecho a suprimir los datos de carácter personal del usuario, a excepción de lo previsto en el propio RGPD o en otras normativas aplicables que determinen la obligatoriedad de la conservación de los mismos, en tiempo y forma. 
  • Derecho de portabilidad: El derecho a recibir los datos personales que el usuario, haya facilitado, en un formato estructurado, de uso común y lectura mecánica, y a transmitirlos a otro responsable. 
  • Derecho de Oposición: Es el derecho del usuario a que no se lleve a cabo el tratamiento de sus datos de carácter personal o se cese el tratamiento de los mismos por parte de la APP. 

Para poder ejercer cualquiera de los derechos descritos anteriormente deberá cumplir con los siguientes requisitos: 

- Presentación de un escrito a la dirección indicada en la parte superior de esta (a la atención de APROPERTIES REAL ESTATE ASSETS S.L.) o bien a través de correo electrónico a [email protected]

- El escrito remitido por el titular de los datos que solicite el ejercicio deberá de cumplir los siguientes requisitos legales:

  • Nombre, apellidos del interesado y copia del DNI/NIE o cualquier documento identificativo. En los excepcionales casos en que se admita la representación, será también necesaria la identificación por el mismo medio de la persona que le representa, así como el documento acreditativo de la representación. La fotocopia del DNI podrá ser sustituida siempre que se acredite la identidad por cualquier otro medio válido en derecho. 
  • Petición en que se concreta la solicitud. (Ejercicio en el que se solicita la información a la que se quiere acceder). Si no hace referencia a un fichero concreto se le facilitará toda la información que se tenga con sus datos de carácter personal. Si solicita información de un fichero en concreto, sólo la información de este fichero. Si solicita información relativa a un tercero nunca se podrá facilitar. Si lo solicita por teléfono se le indicará que lo haga por escrito y se le informará de cómo lo puede hacer y la dirección a la que tiene que enviarlo. Nunca se le dará información por teléfono. 
  • Domicilio a efectos de notificaciones. 
  • Fecha y firma del solicitante. 
  • Documentos acreditativos de la petición que formula. 
  • El interesado debe utilizar cualquier medio que permita acreditar el envío y la recepción de la solicitud. 

Por último, le informamos que Usted tiene derecho a presentar una reclamación ante la Agencia Española de  Protección de Datos en caso de que tenga conocimiento o considere que un hecho pueda suponer un  incumplimiento de la normativa aplicable en materia de protección de datos.

APROPERTIES REAL ESTATE ASSETS S.L. se compromete a adoptar las medidas técnicas y organizativas  necesarias, acorde al nivel de riesgos que acompañan los tratamientos realizados por éstas e indicados en el  apartado de los términos y condiciones de uso, de forma que garanticen su integridad, confidencialidad y disponibilidad.

POLÍTICA DE REDES SOCIALES

De conformidad con lo establecido en la normativa vigente y aplicable de protección de datos de carácter  personal y la Ley 34/2002, de 11 de julio, de Servicios de la Sociedad de la Información y de Comercio  Electrónico (LSSI-CE), APROPERTIES REAL ESTATE ASSETS S.L. informa a los usuarios, que ha procedido a  crear un perfil en la/s Red/es Social/es Facebook, Instagram, Linkedin y YouTube, con la finalidad principal de  publicitar sus productos y servicios. 

El usuario dispone de un perfil en la misma Red Social y ha decidido unirse a la página creada por  APROPERTIES REAL ESTATE ASSETS S.L., mostrando así interés en la información que se publicite en la  Red. Al unirse a nuestra página, nos facilita su consentimiento para el tratamiento de aquellos datos personales  publicados en su perfil. 

El usuario puede acceder en todo momento a las políticas de privacidad de la propia Red Social, así como  configurar su perfil para garantizar su privacidad. 

APROPERTIES REAL ESTATE ASSETS S.L. tiene acceso y trata aquella información pública del usuario, en  especial, su nombre de contacto. Estos datos, sólo son utilizados dentro de la propia Red Social. No son  incorporados a ningún sistema de tratamiento. 

Derechos de los interesados 

En relación a los acceso, rectificación, limitación de tratamiento, supresión, portabilidad y oposición al tratamiento  de sus datos de carácter personal, de los que usted dispone y que pueden ser ejercitados ante APROPERTIES  REAL ESTATE ASSETS S.L., de acuerdo con la RGPD, debe tener en cuenta los siguientes matices: 

  • Derecho de Acceso: Es el derecho del usuario a obtener información sobre sus datos concretos de carácter personal y del tratamiento que se haya realizado o realice, así como de la información disponible sobre el origen de dichos datos y las comunicaciones realizadas o previstas de los mismos. 
  • Derecho de Rectificación: Es el derecho del afectado a que se modifiquen los datos que resulten ser inexactos o incompletos. Sólo podrá satisfacerse en relación a aquella información que se encuentre bajo el control de APROPERTIES REAL ESTATE ASSETS S.L., por ejemplo, eliminar comentarios publicados en la propia página, imágenes o contenidos web donde consten datos de carácter personal del usuario. 
  • Derecho a la Limitación de tratamiento: Es el derecho a que se limiten los fines del tratamiento previstos de forma original por el responsable del tratamiento. 
  • Derecho de Supresión: Es el derecho a suprimir los datos de carácter personal del usuario, a excepción de lo previsto en el propio RGPD o en otras normativas aplicables que determinen la obligatoriedad de la conservación de los mismos, en tiempo y forma. 
  • Derecho de portabilidad: El derecho a recibir los datos personales que el usuario, haya facilitado, en un formato estructurado, de uso común y lectura mecánica, y a transmitirlos a otro responsable. 
  • Derecho de Oposición: Es el derecho del usuario a que no se lleve a cabo el tratamiento de sus datos de carácter personal o se cese el tratamiento de los mismos por parte de APROPERTIES REAL ESTATE ASSETS S.L.. 

APROPERTIES REAL ESTATE ASSETS S.L. realizará las siguientes actuaciones: 

  • Acceso a la información pública del perfil. 
  • Publicación en el perfil del usuario de toda aquella información ya publicada en la página de APROPERTIES REAL ESTATE ASSETS S.L..
  • Enviar mensajes personales e individuales a través de los canales de la Red Social. 
  • Actualizaciones del estado de la página que se publicarán en el perfil del usuario. 

El usuario siempre puede controlar sus conexiones, eliminar los contenidos que dejen de interesarle y restringir  con quién comparte sus conexiones, para ello deberá acceder a su configuración de privacidad. 

Publicaciones 

El usuario, una vez unido a la página de APROPERTIES REAL ESTATE ASSETS S.L., podrá publicar en ésta  última comentarios, enlaces, imágenes o fotografías o cualquier otro tipo de contenido multimedia soportado por  la Red Social. El usuario, en todos los casos, debe ser el titular de los mismos, gozar de los derechos de autor y  de propiedad intelectual o contar con el consentimiento de los terceros afectados. Se prohíbe expresamente  cualquier publicación en la página, ya sean textos, gráficos, fotografías, vídeos, etc. que atenten o sean  susceptibles de atentar contra la moral, la ética, el buen gusto o el decoro, y/o que infrinjan, violen o quebranten  los derechos de propiedad intelectual o industrial, el derecho a la imagen o la Ley. En estos casos,  APROPERTIES REAL ESTATE ASSETS S.L. se reserva el derecho a retirar de inmediato el contenido,  pudiendo solicitar el bloqueo permanente del usuario. 

APROPERTIES REAL ESTATE ASSETS S.L. no se hará responsable de los contenidos que libremente ha  publicado un usuario. 

El usuario debe tener presente que sus publicaciones serán conocidas por los otros usuarios, por lo que él  mismo es el principal responsable de su privacidad. 

Las imágenes que puedan publicarse en la página no serán almacenadas en ningún sistema de tratamiento por  parte de APROPERTIES REAL ESTATE ASSETS S.L., pero sí que permanecerán en la Red Social. 

Concursos y promociones 

APROPERTIES REAL ESTATE ASSETS S.L. se reserva el derecho a realizar concursos y promociones, en los  que podrá participar el usuario unido a su página. Las bases de cada uno de ellos, cuando se utilice para ello la  plataforma de la Red Social, serán publicadas en la misma. Cumpliendo siempre con la LSSI-CE y con cualquier  otra norma que le sea de aplicación. 

La Red Social no patrocina, avala ni administra, de modo alguno, ninguna de nuestras promociones, ni está  asociada a ninguna de ellas.

Publicidad 

APROPERTIES REAL ESTATE ASSETS S.L. utilizará la Red Social para publicitar sus productos y servicios, en  todo caso, si decide tratar sus datos de contacto para realizar acciones directas de prospección comercial, será  siempre, cumpliendo con las exigencias legales del RGPD y de la LSSI-CE. 

No se considerará publicidad el hecho de recomendar a otros usuarios la página de APROPERTIES REAL  ESTATE ASSETS S.L. para que también ellos puedan disfrutar de las promociones o estar informados de su  actividad. 

A continuación detallamos el enlace a la política de privacidad de la Red Social: 

ÚLTIMA ACTUALIZACIÓN: 21 de enero de 2022.

Utilizamos cookies propias y de terceros para hacer funcionar de manera segura nuestra página web y personalizar su contenido. Igualmente, utilizamos cookies para medir y obtener datos de la navegación que realiza y para ajustar la publicidad a sus gustos y preferencias. Pulse el botón "Aceptar todas" para confirmar que ha leído y aceptado la información presentada. Para administrar o deshabilitar estas cookies haga click en "Configuración". Puede obtener más información en nuestra política de cookies.
Modificar cookies
Técnicas y funcionales Siempre activas
Este sitio web utiliza Cookies propias para recopilar información con la finalidad de mejorar nuestros servicios. Si continua navegando, supone la aceptación de la instalación de las mismas. El usuario tiene la posibilidad de configurar su navegador pudiendo, si así lo desea, impedir que sean instaladas en su disco duro, aunque deberá tener en cuenta que dicha acción podrá ocasionar dificultades de navegación de la página web.
Permiten realizar el seguimiento y análisis del comportamiento de los usuarios de este sitio web. La información recogida mediante este tipo de cookies se utiliza en la medición de la actividad de la web para la elaboración de perfiles de navegación de los usuarios con el fin de introducir mejoras en función del análisis de los datos de uso que hacen los usuarios del servicio. Permiten guardar la información de preferencia del usuario para mejorar la calidad de nuestros servicios y para ofrecer una mejor experiencia a través de productos recomendados.
Estas cookies son utilizadas para almacenar información sobre las preferencias y elecciones personales del usuario a través de la observación continuada de sus hábitos de navegación. Gracias a ellas, podemos conocer los hábitos de navegación en el sitio web y mostrar publicidad relacionada con el perfil de navegación del usuario.