Piso en venta en Les Corts

Superficie
93 m²
Dormitorios
3
Baños
2
Piso en venta
750.000 €
Reservada
Play icon Ver video de la propiedad

EXCLUSIVO PISO CON BALCÓN 3 HABITACIONES REFORMADO

Un loft de revista en el corazón de Les Corts: diseño, luz y exclusividad

Nada más cruzar la puerta, lo primero que te atrapa es la sensación de amplitud. Techos de más de 5 metros, vigas de hierro vistas, madera, acero y vidrio que se mezclan en perfecta armonía. Es como entrar en un auténtico loft neoyorquino, pero en plena Barcelona.

Este piso es único, y no lo decimos por decir. El diseño industrial, los acabados de alta gama y la distribución pensada al milímetro lo convierten en una pieza muy exclusiva. Todo está cuidado, desde el gran ventanal de doble altura que inunda el espacio de luz natural, hasta ese altillo chill-out máster room que invita a desconectar.

Ubicado en una finca moderna construida en 2019, con ascensor y a tan solo 10 minutos andando de L’Illa Diagonal, este piso combina la tranquilidad de Les Corts con una ubicación privilegiada, rodeada de comercios, parques, colegios y una excelente conexión con transporte público.

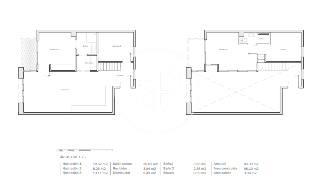
La vivienda cuenta con 95 m² construidos, perfectamente distribuidos en espacios abiertos y funcionales. En la planta baja encontrarás dos habitaciones dobles, una de ellas con salida directa al balcón privado de 5 m², y dos baños completos con un diseño actual y elegante uno arriba y otro abajo en la parte del altillo. La cocina, completamente equipada, está integrada en el salón-comedor creando un espacio amplio, moderno y muy luminoso. En la planta superior, el altillo abierto ofrece una tercera habitación perfecta como zona de relax, despacho o rincón de lectura. Además, dispone de una zona de lavandería independiente, armarios empotrados y muchísimo espacio de almacenaje.

La climatización por conductos y radiadores garantiza confort durante todo el año. Y para que no te falte de nada, incluye plaza de parking y trastero en la misma finca.

Es un piso con alma, con carácter, pensado para quienes valoran los detalles, el diseño y buscan un espacio que hable por sí solo. Con orientación sur, es muy luminoso, silencioso y acogedor… ideal para disfrutarlo cada día.

¿Te imaginas viviendo aquí? Llámame y ven a verlo. Porque las fotos impresionan, pero vivirlo en persona… te va a conquistar.

  • Características
  • Calefacción
  • Trastero
  • Aacc
  • Tiene parking
  • Ascensor

Acerca de Les Corts

El distrito de les Corts se sitúa al oeste de la ciudad. Es el tercer distrito más pequeño y el menos poblado. Situado entre la Avenida Diagonal, llena de comercios, y el bullicio del Camp Nou, se despliega como una Barcelona ajardinada para descubrir y perderse por ella, a medio camino entre el pasado rural y la elegancia y tranquilidad de un barrio residencial. En el corazón del antiguo núcleo se encuentran las plazas de Can Rosés, de Comas y de la Concòrdia.

Propiedades vistas recientemente

Piso en venta
Nuevo
VV2512012
1.650.000 €

Piso de 4 habitaciones en calle La Paz

La Xerea, Valencia ciudad
¡Bienvenidos a esta oportunidad única! Les presentamos una espectacular vivienda en venta en el corazón del histórico barrio La Xerea. Este majestuoso piso de 4 habitaciones y 3 baños ofrece un espacio de vida excepcional en una ubicación privilegiada sobre la mismísima calle La Paz. Con una impresionante superficie de 308 metros cuadrados (según catastro), este piso representa una combinación perfecta de historia y modernidad. Situado en un emblemático edificio construido en 1935 en la reconocida calle La Paz, este hogar ofrece un toque de autenticidad en cada rincón. La propiedad se distingue por su amplitud y luminosidad, techos altos, suelos mosaicos de estilo Noia de alto valor, maderas de mobila conservadas de época, aberturas de madera laminada de primerisima calidad con doble cristal de 6mm hermetico lo que asegura un aislamiento perfecto y un sin fin de detalles que le dan una impronta de exclusividad. El salon cuenta con una chimenea italiana marca Safretti de bioalcohol la cual no produce humos ni olores y un alto poder calorifico. El edificio cuenta con pocos vecinos, lo que garantiza un ambiente tranquilo y exclusivo. Cada rincón de este piso ha sido diseñado pensando en la comodidad y el lujo, brindando un espacio perfecto para relajarse y disfrutar del estilo de vida que mereces. Ingresamos y encontramos una recepción que hace de distribuidor hacia un gran salón, con distintos espacios para lectura o encuentros sociales. La amplia cocina dispone de acceso a un lavadero con zona de almacenaje y acceso a una terraza interna. Dispone de 3 habitaciones y 3 baños, uno de ellos en suite. además, tiene otra terraza donde actualmente funciona un pequeño gimnasio. La casa dispone de doble sistema de aire acondicionado de bajo consumo y sistema de deshumificador de ultima tecnologia. El mismo aire acondicionado es frio/calor, por lo que se puede elegir con que sistema calefaccionar, con el sistema a gas con radiadores de agua o el sistema de aire por conductos con bomba de calor. La finca tiene un grupo de presion de agua con sistema de filtrado antical para asegurar el buen funcionamiento de las tuberias asi como de los electrodomesticos. El portero automatico de la finca tiene conexion por internet por lo que podra atender a las visitas desde cualquier lugar del mundo como si estuviera alli. Toda la casa tiene enrejado movil para poder dejar la vivienda blindada durante largas ausencias, incluida la puerta de ingreso principal que es acorazada blindada por Fichet.  Disfruta de momentos inolvidables en la terraza interna, un oasis de paz en medio de la ciudad. Además, dispone de un trastero que proporciona espacio adicional para almacenamiento, manteniendo tu hogar organizado y despejado. Plaza de garage incluida en el precio. La Xerea es un barrio histórico que combina la esencia de la antigua Valencia con la modernidad de hoy en día. Rodeado de encanto y cultura, tendrás acceso a una amplia gama de servicios, tiendas y restaurantes de alta calidad a poca distancia. Esta vivienda representa una oportunidad única para aquellos que buscan una experiencia de vida excepcional en un entorno inigualable. No pierdas la oportunidad de ser el dueño de este tesoro arquitectónico en una de las ubicaciones más deseables de la ciudad. ¡Contáctanos hoy mismo para programar una visita y enamorarte de tu nuevo hogar en La Xerea!
Superficie 308 m2
Dormitorios 4
Baños 3
1.650.000 €
Casa en venta
VMO2508004
1.450.000 €

Chalet independiente en venta en Pozuelo de Alarcón

Zona Pueblo, Madrid Noroeste
Chalet independiente situado en la zona más alta de la Urbanización Fuente de la Salud, calle con poco tráfico, solo de los vecinos, la parte trasera da a un parque público sin ruidos, 6 m. de distancia al vecino de un lateral y unos 25 m, a los vecinos del otro lateral. Desde el salón y los dormitorios se disfruta de las vistas del parque público. Es una buena oportunidad para los que quieran sentirse como en el campo, pero en la ciudad, A 10 minutos andando de todos los servicios del pueblo de Pozuelo, a la estación en 20 minutos o al teatro Mira y colegios en 10 minutos. Distribución. Todas las estancias son amplias y con mucha luz, por ser exteriores y sin edificaciones próximas. Planta semisótano: Salón de unos 50 m², garaje para coche mediano y pequeño y cuarto de caldera y trastero. Planta Baja: Salón principal con salida a jardín sin escaleras, salón secundario, cocina con office y baño completo. El salón secundario podría utilizarse como dormitorio muy amplio. Primera planta: 2 amplios dormitorios con armarios empotrados, una habitación despacho y dormitorio principal en suite, muy amplio, con baño y armarios empotrados.  Dispone de un segundo baño que da apoyo a los demás dormitorios. Segunda planta: 2 habitaciones y terraza con muy buenas vistas. En el lateral de la vivienda se pueden aparcar hasta 3 coches más. Parcela de 525 m². 424 m² construidos según catastro, tres plantas de unos 110 m² cada una y una cuarta planta abuhardillada. Calefacción por gasóleo con depósito de 5.000 litros. Se podría sustituir la calefacción de gasóleo por aerotermia o gas natural. Carpintería interior y exterior en madera pino Oregón en perfectas condiciones.  Piscina de hormigón proyectado revestida de fibra de vidrio. Le da el sol todo el día. Muros exteriores de carga de 40 cm en semisótano y el resto de las plantas de 25 cm, más aislante y tabique interior, consiguiendo un buen aislamiento. Buena orientación del tejado para poner placas solares. El chalet está en buenas condiciones para entrar a vivir con mínimo gasto. En caso de una reforma más amplia, en el interior hay solo 2 pilares de hierro que permite tirar todos los tabiques interiores. ¿Te imaginas vivir aquí?
Superficie 424 m2
Dormitorios 6
Baños 3
1.450.000 €
Casa en venta
ONPM2511007
2.420.000 €

Casa en venta en Son Gual

Son Gual, Mallorca
Exclusiva Villa de Lujo en Son Gual Diseño contemporáneo, vistas panorámicas y una ubicación inmejorable En un amplio solar de 2.007 m², se alza esta impresionante villa de lujo de 400 m², donde la elegancia moderna se combina con el confort más exclusivo y unas vistas espectaculares a la Sierra de Tramuntana La propiedad se distribuye en planta baja, primera planta, sótano polivalente y un espectacular rooftop, todos ellos conectados mediante ascensor para ofrecer la máxima comodidad. En la planta baja, encontramos una amplia habitación con acceso directo al jardín, un elegante salón-comedor y una cocina de diseño totalmente equipada con electrodomésticos Miele. Los grandes ventanales inundan el espacio de luz natural y permiten disfrutar de una conexión perfecta con el exterior, donde destaca un magnífico jardín con piscina y vistas abiertas a la naturaleza. La primera planta alberga tres dormitorios en suite, todos con salida a una espaciosa terraza. La suite principal ofrece una estancia amplia y luminosa, baño privado y acceso a su propia terraza privada, ideal para disfrutar del amanecer o el atardecer con total privacidad. Desde el rooftop, se pueden contemplar vistas panorámicas de 360° que abarcan la bahía de Palma y la Sierra de Tramuntana, un lugar perfecto para relajarse y disfrutar del entorno. En la planta sótano, se encuentra un espacio polivalente que incluye una elegante bodega, una coladuría equipada con lavadora y secadora Miele, y un área versátil ideal para una sala de cine, gimnasio o zona de ocio. Además, la vivienda cuenta con un garaje con capacidad para varios vehículos. Esta villa está situada en una zona donde se respira tranquilidad, rodeada de naturaleza y con la comodidad de estar a tan solo 15 minutos de Palma. Es el lugar perfecto para los amantes del golf, ya que se encuentra junto al prestigioso campo de Golf de Son Gual. La promoción se entrega totalmente amueblada y con el diseño paisajístico del jardín finalizado, ofreciendo una residencia lista para disfrutar desde el primer día. Un hogar donde cada detalle ha sido pensado para ofrecer un estilo de vida excepcional, combinando lujo, confort y serenidad en un entorno incomparable. ¿Te imaginas viviendo aquí?  
Superficie 419 m2
Dormitorios 4
Baños 4
2.420.000 €
Casa en venta
VV2511017
1.980.000 €

Chalet de lujo en venta en Cumbres de Calicanto (Torrent)

Cumbres de Calicanto, Hoya de Buñol
aProperties se complace en presentar este espectacular chalet en Cumbres de Calicanto (Torrent), con vistas abiertas a la Sierra Perenxisa, a solo 20 minutos del aeropuerto y 9 minutos del Colegio Internacional Levante. La vivienda, muy luminosa y orientada al sur, se distribuye en tres plantas más sótano, todas conectadas por ascensor. Dispone de salón-comedor con vistas panorámicas, amplia cocina con lavandería y salida al jardín, así como una zona independiente ideal para invitados o servicio, con dos dormitorios, baño y salón con cocina. En la planta superior se encuentra la suite principal, equipada con gimnasio, sauna, vestidor y baño con jacuzzi, además de dos dormitorios dobles con baño y vestidor. En la planta ático, un espacio diáfano con baño y terraza-solárium. El sótano incluye garaje para más de diez coches, zona de gimnasio y oficinas, trasteros y espacios polivalentes. En el exterior, un entorno perfecto para disfrutar en familia: piscina infinity de agua salada con sistema sin cloro, pista de frontón, barbacoa, cenador y amplias zonas ajardinadas. Equipada con calefacción por conductos y aire acondicionado por splits en toda la casa. Todas las habitaciones son dobles y cuentan con armarios empotrados, escritorio y televisión. Una vivienda exclusiva, con todas las comodidades y las mejores vistas de Calicanto. Para más información o concertar una visita, contáctenos. Estaremos encantados de atenderle.
Superficie 1.447 m2
Dormitorios 10
Baños 9
1.980.000 €
x

DATOS DEL PROPIETARIO DE LA WEB

  • RAZÓN SOCIAL: APROPERTIES REAL ESTATE ASSETS SL
  • NIF: B66207879
  • DIRECCIÓN  POSTAL: PASSEIG DE GRACIA 85 PLANTA 8 08008, BARCELONA
  • DIRECCIÓN ELECTRÓNICA: [email protected] 
  • OBJETO PRINCIPAL: PLATAFORMA INMOBILIARIA

De conformidad con la normativa vigente y aplicable en protección de datos de carácter personal, le informamos  que sus datos serán incorporados al sistema de tratamiento titularidad de APROPERTIES REAL ESTATE  ASSETS SL. con NIF B66207879 y domicilio social sito en PASSEIG DE GRACIA 85 PLANTA 8 08008,  BARCELONA, y que a continuación se relacionan sus respectivas finalidades, plazos de conservación y bases  legitimadoras. Para aquellos tratamientos que lo requieran, se informa también de la posible elaboración de  perfiles y decisiones automatizadas, así como las posibles cesiones y las transferencias internacionales que  APROPERTIES REAL ESTATE ASSETS S.L. tiene previsto realizar: 

TRATAMIENTOS REALIZADOS

Gestión de la página web

  • Finalidad: Tratamiento y gestión de los datos necesarios para la funcionalidad de la página  web 
  • Plazo de conservación: mientras perdure el consentimiento prestado  
  • Base legítima: El consentimiento del interesado 
  • Tipología de Datos: Datos meramente identificativos 
  • Cesiones: No se prevén 
  • Transferencias internacionales: No se prevén 
  • Elaboraciones de perfiles: No se prevén

Formulario contacto y cotización

  • Finalidad: Atender sus consultas y/o solicitudes 
  • Plazo de conservación: mientras se mantenga el consentimiento prestado. Base legítima: El consentimiento del interesado 
  • Tipología de Datos: Datos meramente identificativos 
  • Cesiones: Ninguna 
  • Transferencias internacionales: No se prevén 
  • Elaboraciones de perfiles: No se prevén

Gestión del cumplimiento normativo

  • Finalidad: Gestión y tramitación de las obligaciones y deberes que se deriven del  cumplimiento de la normativa a la cual está sujeta la entidad 
  • Plazo de conservación: conservación de las copias de los documentos hasta que  prescriban las acciones para reclamarle una posible responsabilidad 
  • Base legítima: El cumplimiento de una ley 
  • Tipología de Datos: Datos meramente identificativos 
  • Cesiones: sus datos serán comunicados en caso de ser necesario a Organismos y/o  administración pública con competencia en la materia con la finalidad de cumplir con las  obligaciones establecidas en la normativa aplicable. Además, se informa que la base  legitimadora de la cesión es cumplir con las obligaciones establecidas en la normativa  aplicable 
  • Transferencias internacionales: No se prevén 
  • Elaboraciones de perfiles: No se prevén

Acciones Comerciales

  • Finalidad: Captación, registro y tratamiento de datos con finalidades de publicidad y  prospección comercial de nuestros productos y/o servicios 
  • Plazo de conservación: mientras se mantenga el consentimiento prestado Base legítima: El consentimiento del interesado 
  • Tipología de Datos: Datos meramente identificativos 
  • Cesiones: Ninguna 
  • Transferencias internacionales: No se prevén 
  • Elaboraciones de perfiles: No se prevén

Gestión Bolsa de empleo

  • Finalidad: Registro y tratamiento de datos de candidatos para finalidades de selección de  personal referentes a puestos de trabajo vacantes de las entidades colaboradoras y gestión  de la bolsa de empleo 
  • Plazo de conservación: mientras perdure el consentimiento prestado 
  • Base legítima: El consentimiento del interesado 
  • Tipología de Datos: Datos meramente identificativos 
  • Cesiones: sus datos serán comunicados en caso de ser necesario a Entidades  Colaboradoras con la finalidad de gestionar la bolsa de empleo y trasladar la candidatura a  la empresa colaboradora. Además, se informa que la base legitimadora de la cesión es su  consentimiento 
  • Transferencias internacionales: No se prevén 
  • Elaboraciones de perfiles: No se prevén

GESTIÓN DE DATOS

De acuerdo con lo establecido por el Reglamento (UE) 2016/679 del Parlamento Europeo y del Consejo, de 27 de abril de 2016, relativo a la protección de las personas físicas en lo que respecta al tratamiento de datos personales y a la libre circulación de estos datos y por el que se deroga la Directiva 95/46/CE, APROPERTIES REAL ESTATE ASSETS SL informa al Usuario en relación a los sitios web www.aproperties.es y derivados (en adelante, sitios web), que la información que se pueda recabar en los sitios web se incorporará en los sistemas de tratamiento responsabilidad de APROPERTIES REAL ESTATE ASSETS SL, con las finalidades de realizar la gestión y el mantenimiento de la relación con el Usuario con los sitios web, así como las labores de información, estadística, y comercialización de los servicios y de las actividades relacionadas con los mismos.

APROPERTIES REAL ESTATE ASSETS SL informa de que la base legítima que ampara los tratamientos indicados es la existencia de un interés legítimo, asimismo en cuanto a la instalación de cookies se encuentran legitimados en la existencia del consentimiento prestado por parte de los interesados o, en su caso, de los representantes legales de los mismos.

  • APROPERTIES REAL ESTATE ASSETS SL informa de que los datos serán conservados mientras perdure el consentimiento prestado por el Usuario, exceptuando aquellos casos en los que estemos obligados legalmente a su conservación.
  • De acuerdo con los derechos que le confiere la normativa vigente en protección de datos, el Usuario podrá dirigirse a la Autoridad de Control competente para presentar la reclamación que considere oportuna, así como también podrá ejercer los derechos de acceso, rectificación, limitación de tratamiento, supresión, portabilidad y oposición al tratamiento de sus datos de carácter personal, así como a la retirada del consentimiento prestado para el tratamiento de los mismos.

De acuerdo con lo establecido por el artículo 32 del Reglamento (UE) 2016/679 del Parlamento Europeo y del Consejo, de 27 de abril de 2016, relativo a la protección de las personas físicas en lo que respecta al tratamiento de datos personales y a la libre circulación de estos datos y por el que se deroga la Directiva 95/46/CE, APROPERTIES REAL ESTATE ASSETS SL se compromete a adoptar las medidas técnicas y organizativas necesarias, acorde al nivel de riesgos que acompañan los tratamientos realizados por éstas e indicados en el apartado de los términos y condiciones de uso, de forma que garanticen su integridad, confidencialidad y disponibilidad.
 
Asimismo, APROPERTIES REAL ESTATE ASSETS SL informa que en el caso que el Usuario introduzca datos en los formularios de los sitios web de terceros, serán estos últimos los responsables de los datos de carácter personal, y quienes deberán adoptar las medidas técnicas descritas en el siguiente apartado.

DERECHOS DE LOS INTERESADOS

APROPERTIES REAL ESTATE ASSETS S.L. informa a los Usuarios que, podrá ejercer los derechos  de acceso, rectificación, limitación, supresión, portabilidad y oposición al tratamiento de sus datos de carácter personal ante el Responsable del Tratamiento, así como a la retirada del consentimiento prestado. 

  • Derecho de Acceso: Es el derecho del usuario a obtener información sobre sus datos concretos de carácter personal y del tratamiento que se haya realizado o realice, así como de la información disponible sobre el origen de dichos datos y las comunicaciones realizadas o previstas de los mismos. 
  • Derecho de Rectificación: Es el derecho del afectado a que se modifiquen los datos que resulten ser inexactos o incompletos. Sólo podrá satisfacerse en relación a aquella información que se encuentre bajo el control de la APP, por ejemplo, eliminar comentarios publicados en la propia página, imágenes o contenidos web donde consten datos de carácter personal del usuario. 
  • Derecho a la Limitación de tratamiento: Es el derecho a que se limiten los fines del tratamiento previstos de forma original por el responsable del tratamiento. 
  • Derecho de Supresión: Es el derecho a suprimir los datos de carácter personal del usuario, a excepción de lo previsto en el propio RGPD o en otras normativas aplicables que determinen la obligatoriedad de la conservación de los mismos, en tiempo y forma. 
  • Derecho de portabilidad: El derecho a recibir los datos personales que el usuario, haya facilitado, en un formato estructurado, de uso común y lectura mecánica, y a transmitirlos a otro responsable. 
  • Derecho de Oposición: Es el derecho del usuario a que no se lleve a cabo el tratamiento de sus datos de carácter personal o se cese el tratamiento de los mismos por parte de la APP. 

Para poder ejercer cualquiera de los derechos descritos anteriormente deberá cumplir con los siguientes requisitos: 

- Presentación de un escrito a la dirección indicada en la parte superior de esta (a la atención de APROPERTIES REAL ESTATE ASSETS S.L.) o bien a través de correo electrónico a [email protected]

- El escrito remitido por el titular de los datos que solicite el ejercicio deberá de cumplir los siguientes requisitos legales:

  • Nombre, apellidos del interesado y copia del DNI/NIE o cualquier documento identificativo. En los excepcionales casos en que se admita la representación, será también necesaria la identificación por el mismo medio de la persona que le representa, así como el documento acreditativo de la representación. La fotocopia del DNI podrá ser sustituida siempre que se acredite la identidad por cualquier otro medio válido en derecho. 
  • Petición en que se concreta la solicitud. (Ejercicio en el que se solicita la información a la que se quiere acceder). Si no hace referencia a un fichero concreto se le facilitará toda la información que se tenga con sus datos de carácter personal. Si solicita información de un fichero en concreto, sólo la información de este fichero. Si solicita información relativa a un tercero nunca se podrá facilitar. Si lo solicita por teléfono se le indicará que lo haga por escrito y se le informará de cómo lo puede hacer y la dirección a la que tiene que enviarlo. Nunca se le dará información por teléfono. 
  • Domicilio a efectos de notificaciones. 
  • Fecha y firma del solicitante. 
  • Documentos acreditativos de la petición que formula. 
  • El interesado debe utilizar cualquier medio que permita acreditar el envío y la recepción de la solicitud. 

Por último, le informamos que Usted tiene derecho a presentar una reclamación ante la Agencia Española de  Protección de Datos en caso de que tenga conocimiento o considere que un hecho pueda suponer un  incumplimiento de la normativa aplicable en materia de protección de datos.

APROPERTIES REAL ESTATE ASSETS S.L. se compromete a adoptar las medidas técnicas y organizativas  necesarias, acorde al nivel de riesgos que acompañan los tratamientos realizados por éstas e indicados en el  apartado de los términos y condiciones de uso, de forma que garanticen su integridad, confidencialidad y disponibilidad.

POLÍTICA DE REDES SOCIALES

De conformidad con lo establecido en la normativa vigente y aplicable de protección de datos de carácter  personal y la Ley 34/2002, de 11 de julio, de Servicios de la Sociedad de la Información y de Comercio  Electrónico (LSSI-CE), APROPERTIES REAL ESTATE ASSETS S.L. informa a los usuarios, que ha procedido a  crear un perfil en la/s Red/es Social/es Facebook, Instagram, Linkedin y YouTube, con la finalidad principal de  publicitar sus productos y servicios. 

El usuario dispone de un perfil en la misma Red Social y ha decidido unirse a la página creada por  APROPERTIES REAL ESTATE ASSETS S.L., mostrando así interés en la información que se publicite en la  Red. Al unirse a nuestra página, nos facilita su consentimiento para el tratamiento de aquellos datos personales  publicados en su perfil. 

El usuario puede acceder en todo momento a las políticas de privacidad de la propia Red Social, así como  configurar su perfil para garantizar su privacidad. 

APROPERTIES REAL ESTATE ASSETS S.L. tiene acceso y trata aquella información pública del usuario, en  especial, su nombre de contacto. Estos datos, sólo son utilizados dentro de la propia Red Social. No son  incorporados a ningún sistema de tratamiento. 

Derechos de los interesados 

En relación a los acceso, rectificación, limitación de tratamiento, supresión, portabilidad y oposición al tratamiento  de sus datos de carácter personal, de los que usted dispone y que pueden ser ejercitados ante APROPERTIES  REAL ESTATE ASSETS S.L., de acuerdo con la RGPD, debe tener en cuenta los siguientes matices: 

  • Derecho de Acceso: Es el derecho del usuario a obtener información sobre sus datos concretos de carácter personal y del tratamiento que se haya realizado o realice, así como de la información disponible sobre el origen de dichos datos y las comunicaciones realizadas o previstas de los mismos. 
  • Derecho de Rectificación: Es el derecho del afectado a que se modifiquen los datos que resulten ser inexactos o incompletos. Sólo podrá satisfacerse en relación a aquella información que se encuentre bajo el control de APROPERTIES REAL ESTATE ASSETS S.L., por ejemplo, eliminar comentarios publicados en la propia página, imágenes o contenidos web donde consten datos de carácter personal del usuario. 
  • Derecho a la Limitación de tratamiento: Es el derecho a que se limiten los fines del tratamiento previstos de forma original por el responsable del tratamiento. 
  • Derecho de Supresión: Es el derecho a suprimir los datos de carácter personal del usuario, a excepción de lo previsto en el propio RGPD o en otras normativas aplicables que determinen la obligatoriedad de la conservación de los mismos, en tiempo y forma. 
  • Derecho de portabilidad: El derecho a recibir los datos personales que el usuario, haya facilitado, en un formato estructurado, de uso común y lectura mecánica, y a transmitirlos a otro responsable. 
  • Derecho de Oposición: Es el derecho del usuario a que no se lleve a cabo el tratamiento de sus datos de carácter personal o se cese el tratamiento de los mismos por parte de APROPERTIES REAL ESTATE ASSETS S.L.. 

APROPERTIES REAL ESTATE ASSETS S.L. realizará las siguientes actuaciones: 

  • Acceso a la información pública del perfil. 
  • Publicación en el perfil del usuario de toda aquella información ya publicada en la página de APROPERTIES REAL ESTATE ASSETS S.L..
  • Enviar mensajes personales e individuales a través de los canales de la Red Social. 
  • Actualizaciones del estado de la página que se publicarán en el perfil del usuario. 

El usuario siempre puede controlar sus conexiones, eliminar los contenidos que dejen de interesarle y restringir  con quién comparte sus conexiones, para ello deberá acceder a su configuración de privacidad. 

Publicaciones 

El usuario, una vez unido a la página de APROPERTIES REAL ESTATE ASSETS S.L., podrá publicar en ésta  última comentarios, enlaces, imágenes o fotografías o cualquier otro tipo de contenido multimedia soportado por  la Red Social. El usuario, en todos los casos, debe ser el titular de los mismos, gozar de los derechos de autor y  de propiedad intelectual o contar con el consentimiento de los terceros afectados. Se prohíbe expresamente  cualquier publicación en la página, ya sean textos, gráficos, fotografías, vídeos, etc. que atenten o sean  susceptibles de atentar contra la moral, la ética, el buen gusto o el decoro, y/o que infrinjan, violen o quebranten  los derechos de propiedad intelectual o industrial, el derecho a la imagen o la Ley. En estos casos,  APROPERTIES REAL ESTATE ASSETS S.L. se reserva el derecho a retirar de inmediato el contenido,  pudiendo solicitar el bloqueo permanente del usuario. 

APROPERTIES REAL ESTATE ASSETS S.L. no se hará responsable de los contenidos que libremente ha  publicado un usuario. 

El usuario debe tener presente que sus publicaciones serán conocidas por los otros usuarios, por lo que él  mismo es el principal responsable de su privacidad. 

Las imágenes que puedan publicarse en la página no serán almacenadas en ningún sistema de tratamiento por  parte de APROPERTIES REAL ESTATE ASSETS S.L., pero sí que permanecerán en la Red Social. 

Concursos y promociones 

APROPERTIES REAL ESTATE ASSETS S.L. se reserva el derecho a realizar concursos y promociones, en los  que podrá participar el usuario unido a su página. Las bases de cada uno de ellos, cuando se utilice para ello la  plataforma de la Red Social, serán publicadas en la misma. Cumpliendo siempre con la LSSI-CE y con cualquier  otra norma que le sea de aplicación. 

La Red Social no patrocina, avala ni administra, de modo alguno, ninguna de nuestras promociones, ni está  asociada a ninguna de ellas.

Publicidad 

APROPERTIES REAL ESTATE ASSETS S.L. utilizará la Red Social para publicitar sus productos y servicios, en  todo caso, si decide tratar sus datos de contacto para realizar acciones directas de prospección comercial, será  siempre, cumpliendo con las exigencias legales del RGPD y de la LSSI-CE. 

No se considerará publicidad el hecho de recomendar a otros usuarios la página de APROPERTIES REAL  ESTATE ASSETS S.L. para que también ellos puedan disfrutar de las promociones o estar informados de su  actividad. 

A continuación detallamos el enlace a la política de privacidad de la Red Social: 

ÚLTIMA ACTUALIZACIÓN: 21 de enero de 2022.

Utilizamos cookies propias y de terceros para hacer funcionar de manera segura nuestra página web y personalizar su contenido. Igualmente, utilizamos cookies para medir y obtener datos de la navegación que realiza y para ajustar la publicidad a sus gustos y preferencias. Pulse el botón "Aceptar todas" para confirmar que ha leído y aceptado la información presentada. Para administrar o deshabilitar estas cookies haga click en "Configuración". Puede obtener más información en nuestra política de cookies.
Modificar cookies
Técnicas y funcionales Siempre activas
Este sitio web utiliza Cookies propias para recopilar información con la finalidad de mejorar nuestros servicios. Si continua navegando, supone la aceptación de la instalación de las mismas. El usuario tiene la posibilidad de configurar su navegador pudiendo, si así lo desea, impedir que sean instaladas en su disco duro, aunque deberá tener en cuenta que dicha acción podrá ocasionar dificultades de navegación de la página web.
Analíticas y personalización
Permiten realizar el seguimiento y análisis del comportamiento de los usuarios de este sitio web. La información recogida mediante este tipo de cookies se utiliza en la medición de la actividad de la web para la elaboración de perfiles de navegación de los usuarios con el fin de introducir mejoras en función del análisis de los datos de uso que hacen los usuarios del servicio. Permiten guardar la información de preferencia del usuario para mejorar la calidad de nuestros servicios y para ofrecer una mejor experiencia a través de productos recomendados.
Marketing y publicidad
Estas cookies son utilizadas para almacenar información sobre las preferencias y elecciones personales del usuario a través de la observación continuada de sus hábitos de navegación. Gracias a ellas, podemos conocer los hábitos de navegación en el sitio web y mostrar publicidad relacionada con el perfil de navegación del usuario.