Piso en venta en Eixample Esquerra

Superficie
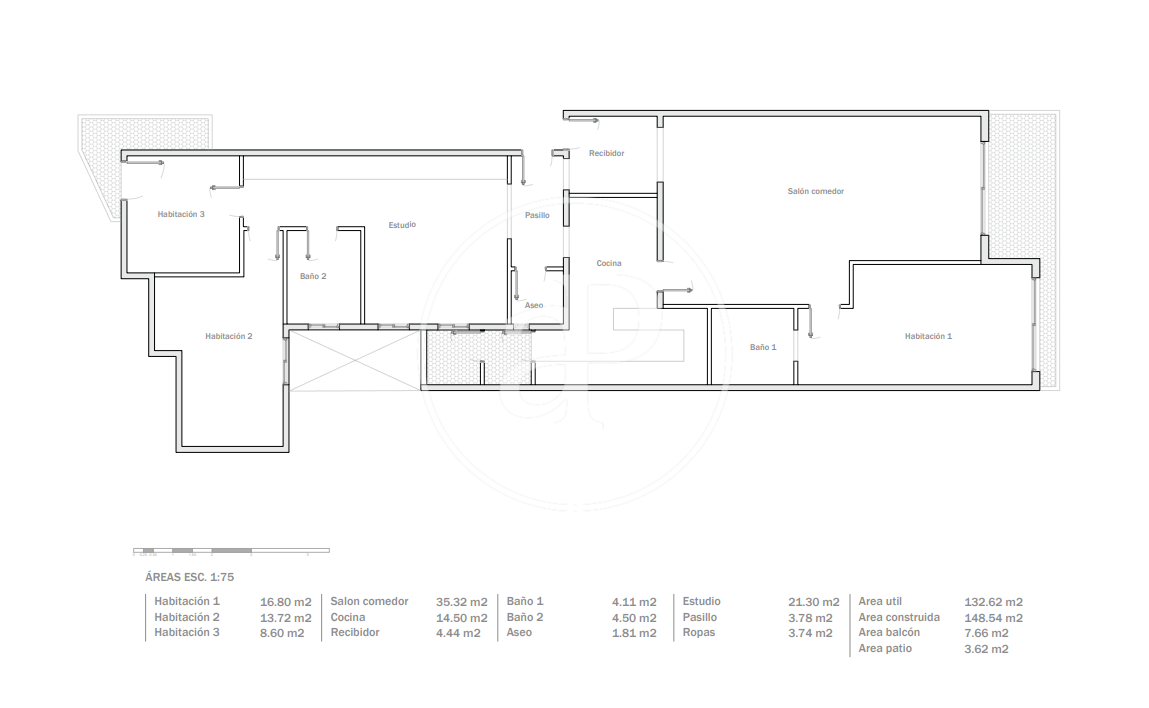
140 m²
Dormitorios
4
Baños
3
Piso en venta
630.000 €
Vendida
Play icon Ver video de la propiedad

ELEGANTE PISO DE 140 M2 CON TERRAZA , 4 HABITACIONES y 2 PLAZAS DE PARKING (opt.)

Os presentamos este Excelente piso, ubicado en la vibrante Calle Sepúlveda, a escasos metros de la parada de Rocafort y del animado barrio de Sant Antoni.

El piso que mide 140 m2 según catastro, y 127 m2 útiles, tiene un bonito recibidor y un amplio salón con terracita de 10 m2. La cocina es independiente, con office y zona de agua, además de un pequeño balcón interior.

Las habitaciones son 4: una de matrimonio muy grande, con balcón a la calle, armario empotrado, y baño privado; además otra de matrimonio y 2 individuales con balcón interno.

El piso dispone de 3 baños en total, uno en suite con ducha, uno en la zona de noche, completo con bañera, y uno de servicio.

La reforma es del 2004 y actualmente el piso se presenta muy bien cuidado y listo para entrar a vivir, con acabados de alta gama.

Dispone también da Parking en la misma finca, en venta por 20.000 euros. Además, dispone de otro parking en una finca cercana, también en venta por 20.000 euros.

¡No dudes en contactarme para visitarlo! Es una joya de Sant Antoni tocando a Eixample izquierda.

  • Características
  • Vistas
  • Calefacción
  • Aacc
  • Terraza
  • Tiene parking
  • Ascensor
  • Conserje

Acerca de Eixample Esquerra

Se trata de una de las zonas más céntricas de la ciudad, considerada por muchos, el corazón de Barcelona con una gran colección de edificios modernistas. Una zona muy cotizada con exclusivos áticos y fabulosos apartamentos en fincas regias. Muchos de los edificios del Eixample son obra de arquitectos modernistas que conservan elementos originales fantásticos; techos altos, suelos embaldosados con mosaicos, techos con cornisa y mucha luz natural. La Avenida Diagonal, el Paseo de Gracia y Rambla Cataluña, con sus selectas boutiques internacionales, prestigiosos despachos y algunos de los mejores restaurantes de Barcelona, culminan la oferta de este distrito, excelentemente enlazado con el transporte público y rodeado una amplia oferta turística.

Propiedades vistas recientemente

Piso en venta
VPM2507007
850.000 €

Piso a estrenar en venta en Colonia Sant Jordi

Còlonia de Sant Jordi, Mallorca
Imagínate despertar cada mañana con el suave murmullo del mar, en un lugar donde el tiempo se detiene y la naturaleza lo envuelve todo. Colònia de Sant Jordi es uno de los rincones más apreciados de la costa mallorquina: un antiguo pueblo pesquero convertido en destino de playa por excelencia, querido por los locales por sus dunas naturales, aguas cristalinas y el encanto relajado del Mediterráneo auténtico. En este entorno privilegiado se encuentra esta planta baja de obra nueva, parte de una promoción exclusiva de tan solo nueve viviendas con aparcamiento privado. Una propiedad que combina arquitectura moderna con un estilo de vida elegante y natural, perfecta para quienes buscan privacidad, confort y conexión con el exterior. La vivienda dispone de tres amplios dormitorios dobles con armarios empotrados. La suite principal se abre directamente a una magnífica terraza de 95 m² orientada al oeste, que también conecta con la zona de estar principal: una cocina abierta equipada con electrodomésticos Miele y un salón de doble altura que aporta luminosidad y amplitud. En el lado este, los otros dos dormitorios disfrutan de acceso a una terraza más íntima, ideal para desayunos al sol y momentos de tranquilidad. La gran terraza oeste ha sido cuidadosamente diseñada para disfrutar del estilo de vida isleño. Una plataforma elevada alberga la piscina privada y tumbonas, mientras que el nivel inferior ofrece una zona de comedor con toldo, ducha exterior y espacio adicional para barbacoas y reuniones al aire libre bajo el cielo mallorquín. Cada detalle ha sido pensado con exigencia: electrodomésticos de alta gama, dos frigoríficos integrados, aire por conductos, ventiladores de techo y ventanas de doble acristalamiento garantizan confort y calidad en cada rincón. Esta propiedad no solo ofrece un hogar, sino una forma de vivir en armonía con el mar. Una oportunidad excepcional para quienes buscan una vida serena en un enclave de belleza auténtica. Contáctanos hoy y descubre todo su potencial.
Superficie 130 m2
Dormitorios 3
Baños 2
850.000 €
Casa en venta
VSC2411008
750.000 €

Casa en venta al pie del Parque Natural en Matadepera

Matadepera
AProperties tiene el placer de presentarles esta preciosa casa de estilo rústico, al pie del Parque Natural.  A tan solo 30 minutos del bullicio de Barcelona, encontramos esta preciosa casa tipo Masía, en un remanso de paz y tranquilidad, rodeada de bosques y con unas vistas espectaculares. Se encuentra en la urbanización Els Rourets de Matadepera y está edificada sobre un extenso terreno de 3.116 m2. La construcción de estilo rústico y de gran calidad, se distribuye en dos plantas. Cabe destacar los grandes y luminosos espacios destinados a las zonas comunes como el salón comedor, la sala de televisión y lectura, o la sala de juegos. Destacan en esta construcción sus techos, paredes y suelos construidos con robustas y elegantes maderas. En la planta principal nos encontramos con la cocina, la despensa, cuarto de lavado, un aseo, las estancias comunes, más tres habitaciones dobles con un gran baño completo. En el piso de arriba, otras dos habitaciones dobles, una de ellas con su salita. Un vestidor común y un baño completo. ¡Desde estas habitaciones se ve el mar! La casa cuenta con garaje, bosque, pista asfaltada para jugar, espacio para huerto, etc.  Esta finca destaca además de sus vistas, orientación y construcción en madera y piedra, por sus acabados como suelo de gres, carpintería de madera con cristales dobles, armarios empotrados o calefacción por suelo radiante. ¡Es la casa ideal para los amantes de la naturaleza! Contacte con nosotros para más información, y recuerde que aProperties puede proporcionarle, si así lo desea, la financiación para adquirir su propiedad. 
Superficie 348 m2
Parcela 3.127 m2
Dormitorios 5
Baños 3
750.000 €
Atico en venta
Vendida
VB2009019
985.000 €

Impresionante Ático Modernista a Estrenar en Venta en Eixample

Eixample Esquerra, Barcelona ciudad
En un fantástico emplazamiento perteneciente al entorno protegido de conservación de L´Eixample Esquerra, encontramos esta magnífica vivienda modernista, reformada y a estrenar. Se encuentra ubicado en una quinta planta real de una hermosa finca modernista del año 1895 con una representativa escalera de mármol con barandilla de madera noble y con ascensor. El Ático es exterior y pasante y por la disposición de sus estancias y altura disfruta de una vibrante luz natural. Está orientado por un lado a un tranquilo patio de manzana con vistas abiertas desde sus balcones, recibiendo sol de tarde y por el otro lado, con una galería a la calle con grandes ventanas aisladas 100% acústica y térmicamente, con sol de mañana Cuenta con 155 m2 construidos, contabilizando unos 3m2 en sus dos balcones, distribuidos de la siguiente forma. La gran estancia de día, correspondiente a la fachada principal contiene una galería con espacio para generar un segundo estar o sala de lectura y se encuentra comunicado con el salón comedor principal y la cocina abierta, totalmente equipada con mobiliario de diseño y electrodomésticos de alta gama, encontrando frente a ella un aseo de cortesía muy amplio con espacio de guardado y zona de lavadero. La zona de noche es reservada a la parte interior, con un gran dormitorio doble con espacio para vestidor y baño completo y buscando la máxima tranquilidad del patio de manzana, encontramos la impresionante master suite con un muy completo espacio para vestidor, dressoire o escritorio y un espacioso baño completo, con detalle de pica doble y moderna bañera exenta con patas asemejando las de época. Dispone de un trastero de 5m2 en el terrado del edificio. El diseño es muy cuidado y plagado de detalles, recuperando todos los elementos originales modernistas como los suelos hidráulicos, cristales emplomados, volta catalana, techo de ladrillos, techos artesonados, carpintería exterior e interior, muros de obra vista, amalgamando así, la convivencia de los mismos con materiales e instalaciones nuevas de una alta calidad, con marcas reconocidas internacionalmente como Bosch, Grohe, Fujitsu. La reforma consigue devolver el carácter original tan preciado de la época, restaurando todos sus elementos antiguos y utilizando acabados y materiales que reproducen los originales, así como también su distribución, genera espacios diáfanos y amplios, aprovechando al máximo la luz natural y potenciando la transparencia entre los diferentes espacios. ¡Contacta hoy con nosotros para visitar este exclusivo piso de L’Eixample!
Superficie 155 m2
Dormitorios 2
Baños 3
985.000 €
x

DATOS DEL PROPIETARIO DE LA WEB

  • RAZÓN SOCIAL: APROPERTIES REAL ESTATE ASSETS SL
  • NIF: B66207879
  • DIRECCIÓN  POSTAL: PASSEIG DE GRACIA 85 PLANTA 8 08008, BARCELONA
  • DIRECCIÓN ELECTRÓNICA: [email protected] 
  • OBJETO PRINCIPAL: PLATAFORMA INMOBILIARIA

De conformidad con la normativa vigente y aplicable en protección de datos de carácter personal, le informamos  que sus datos serán incorporados al sistema de tratamiento titularidad de APROPERTIES REAL ESTATE  ASSETS SL. con NIF B66207879 y domicilio social sito en PASSEIG DE GRACIA 85 PLANTA 8 08008,  BARCELONA, y que a continuación se relacionan sus respectivas finalidades, plazos de conservación y bases  legitimadoras. Para aquellos tratamientos que lo requieran, se informa también de la posible elaboración de  perfiles y decisiones automatizadas, así como las posibles cesiones y las transferencias internacionales que  APROPERTIES REAL ESTATE ASSETS S.L. tiene previsto realizar: 

TRATAMIENTOS REALIZADOS

Gestión de la página web

  • Finalidad: Tratamiento y gestión de los datos necesarios para la funcionalidad de la página  web 
  • Plazo de conservación: mientras perdure el consentimiento prestado  
  • Base legítima: El consentimiento del interesado 
  • Tipología de Datos: Datos meramente identificativos 
  • Cesiones: No se prevén 
  • Transferencias internacionales: No se prevén 
  • Elaboraciones de perfiles: No se prevén

Formulario contacto y cotización

  • Finalidad: Atender sus consultas y/o solicitudes 
  • Plazo de conservación: mientras se mantenga el consentimiento prestado. Base legítima: El consentimiento del interesado 
  • Tipología de Datos: Datos meramente identificativos 
  • Cesiones: Ninguna 
  • Transferencias internacionales: No se prevén 
  • Elaboraciones de perfiles: No se prevén

Gestión del cumplimiento normativo

  • Finalidad: Gestión y tramitación de las obligaciones y deberes que se deriven del  cumplimiento de la normativa a la cual está sujeta la entidad 
  • Plazo de conservación: conservación de las copias de los documentos hasta que  prescriban las acciones para reclamarle una posible responsabilidad 
  • Base legítima: El cumplimiento de una ley 
  • Tipología de Datos: Datos meramente identificativos 
  • Cesiones: sus datos serán comunicados en caso de ser necesario a Organismos y/o  administración pública con competencia en la materia con la finalidad de cumplir con las  obligaciones establecidas en la normativa aplicable. Además, se informa que la base  legitimadora de la cesión es cumplir con las obligaciones establecidas en la normativa  aplicable 
  • Transferencias internacionales: No se prevén 
  • Elaboraciones de perfiles: No se prevén

Acciones Comerciales

  • Finalidad: Captación, registro y tratamiento de datos con finalidades de publicidad y  prospección comercial de nuestros productos y/o servicios 
  • Plazo de conservación: mientras se mantenga el consentimiento prestado Base legítima: El consentimiento del interesado 
  • Tipología de Datos: Datos meramente identificativos 
  • Cesiones: Ninguna 
  • Transferencias internacionales: No se prevén 
  • Elaboraciones de perfiles: No se prevén

Gestión Bolsa de empleo

  • Finalidad: Registro y tratamiento de datos de candidatos para finalidades de selección de  personal referentes a puestos de trabajo vacantes de las entidades colaboradoras y gestión  de la bolsa de empleo 
  • Plazo de conservación: mientras perdure el consentimiento prestado 
  • Base legítima: El consentimiento del interesado 
  • Tipología de Datos: Datos meramente identificativos 
  • Cesiones: sus datos serán comunicados en caso de ser necesario a Entidades  Colaboradoras con la finalidad de gestionar la bolsa de empleo y trasladar la candidatura a  la empresa colaboradora. Además, se informa que la base legitimadora de la cesión es su  consentimiento 
  • Transferencias internacionales: No se prevén 
  • Elaboraciones de perfiles: No se prevén

GESTIÓN DE DATOS

De acuerdo con lo establecido por el Reglamento (UE) 2016/679 del Parlamento Europeo y del Consejo, de 27 de abril de 2016, relativo a la protección de las personas físicas en lo que respecta al tratamiento de datos personales y a la libre circulación de estos datos y por el que se deroga la Directiva 95/46/CE, APROPERTIES REAL ESTATE ASSETS SL informa al Usuario en relación a los sitios web www.aproperties.es y derivados (en adelante, sitios web), que la información que se pueda recabar en los sitios web se incorporará en los sistemas de tratamiento responsabilidad de APROPERTIES REAL ESTATE ASSETS SL, con las finalidades de realizar la gestión y el mantenimiento de la relación con el Usuario con los sitios web, así como las labores de información, estadística, y comercialización de los servicios y de las actividades relacionadas con los mismos.

APROPERTIES REAL ESTATE ASSETS SL informa de que la base legítima que ampara los tratamientos indicados es la existencia de un interés legítimo, asimismo en cuanto a la instalación de cookies se encuentran legitimados en la existencia del consentimiento prestado por parte de los interesados o, en su caso, de los representantes legales de los mismos.

  • APROPERTIES REAL ESTATE ASSETS SL informa de que los datos serán conservados mientras perdure el consentimiento prestado por el Usuario, exceptuando aquellos casos en los que estemos obligados legalmente a su conservación.
  • De acuerdo con los derechos que le confiere la normativa vigente en protección de datos, el Usuario podrá dirigirse a la Autoridad de Control competente para presentar la reclamación que considere oportuna, así como también podrá ejercer los derechos de acceso, rectificación, limitación de tratamiento, supresión, portabilidad y oposición al tratamiento de sus datos de carácter personal, así como a la retirada del consentimiento prestado para el tratamiento de los mismos.

De acuerdo con lo establecido por el artículo 32 del Reglamento (UE) 2016/679 del Parlamento Europeo y del Consejo, de 27 de abril de 2016, relativo a la protección de las personas físicas en lo que respecta al tratamiento de datos personales y a la libre circulación de estos datos y por el que se deroga la Directiva 95/46/CE, APROPERTIES REAL ESTATE ASSETS SL se compromete a adoptar las medidas técnicas y organizativas necesarias, acorde al nivel de riesgos que acompañan los tratamientos realizados por éstas e indicados en el apartado de los términos y condiciones de uso, de forma que garanticen su integridad, confidencialidad y disponibilidad.
 
Asimismo, APROPERTIES REAL ESTATE ASSETS SL informa que en el caso que el Usuario introduzca datos en los formularios de los sitios web de terceros, serán estos últimos los responsables de los datos de carácter personal, y quienes deberán adoptar las medidas técnicas descritas en el siguiente apartado.

DERECHOS DE LOS INTERESADOS

APROPERTIES REAL ESTATE ASSETS S.L. informa a los Usuarios que, podrá ejercer los derechos  de acceso, rectificación, limitación, supresión, portabilidad y oposición al tratamiento de sus datos de carácter personal ante el Responsable del Tratamiento, así como a la retirada del consentimiento prestado. 

  • Derecho de Acceso: Es el derecho del usuario a obtener información sobre sus datos concretos de carácter personal y del tratamiento que se haya realizado o realice, así como de la información disponible sobre el origen de dichos datos y las comunicaciones realizadas o previstas de los mismos. 
  • Derecho de Rectificación: Es el derecho del afectado a que se modifiquen los datos que resulten ser inexactos o incompletos. Sólo podrá satisfacerse en relación a aquella información que se encuentre bajo el control de la APP, por ejemplo, eliminar comentarios publicados en la propia página, imágenes o contenidos web donde consten datos de carácter personal del usuario. 
  • Derecho a la Limitación de tratamiento: Es el derecho a que se limiten los fines del tratamiento previstos de forma original por el responsable del tratamiento. 
  • Derecho de Supresión: Es el derecho a suprimir los datos de carácter personal del usuario, a excepción de lo previsto en el propio RGPD o en otras normativas aplicables que determinen la obligatoriedad de la conservación de los mismos, en tiempo y forma. 
  • Derecho de portabilidad: El derecho a recibir los datos personales que el usuario, haya facilitado, en un formato estructurado, de uso común y lectura mecánica, y a transmitirlos a otro responsable. 
  • Derecho de Oposición: Es el derecho del usuario a que no se lleve a cabo el tratamiento de sus datos de carácter personal o se cese el tratamiento de los mismos por parte de la APP. 

Para poder ejercer cualquiera de los derechos descritos anteriormente deberá cumplir con los siguientes requisitos: 

- Presentación de un escrito a la dirección indicada en la parte superior de esta (a la atención de APROPERTIES REAL ESTATE ASSETS S.L.) o bien a través de correo electrónico a [email protected]

- El escrito remitido por el titular de los datos que solicite el ejercicio deberá de cumplir los siguientes requisitos legales:

  • Nombre, apellidos del interesado y copia del DNI/NIE o cualquier documento identificativo. En los excepcionales casos en que se admita la representación, será también necesaria la identificación por el mismo medio de la persona que le representa, así como el documento acreditativo de la representación. La fotocopia del DNI podrá ser sustituida siempre que se acredite la identidad por cualquier otro medio válido en derecho. 
  • Petición en que se concreta la solicitud. (Ejercicio en el que se solicita la información a la que se quiere acceder). Si no hace referencia a un fichero concreto se le facilitará toda la información que se tenga con sus datos de carácter personal. Si solicita información de un fichero en concreto, sólo la información de este fichero. Si solicita información relativa a un tercero nunca se podrá facilitar. Si lo solicita por teléfono se le indicará que lo haga por escrito y se le informará de cómo lo puede hacer y la dirección a la que tiene que enviarlo. Nunca se le dará información por teléfono. 
  • Domicilio a efectos de notificaciones. 
  • Fecha y firma del solicitante. 
  • Documentos acreditativos de la petición que formula. 
  • El interesado debe utilizar cualquier medio que permita acreditar el envío y la recepción de la solicitud. 

Por último, le informamos que Usted tiene derecho a presentar una reclamación ante la Agencia Española de  Protección de Datos en caso de que tenga conocimiento o considere que un hecho pueda suponer un  incumplimiento de la normativa aplicable en materia de protección de datos.

APROPERTIES REAL ESTATE ASSETS S.L. se compromete a adoptar las medidas técnicas y organizativas  necesarias, acorde al nivel de riesgos que acompañan los tratamientos realizados por éstas e indicados en el  apartado de los términos y condiciones de uso, de forma que garanticen su integridad, confidencialidad y disponibilidad.

POLÍTICA DE REDES SOCIALES

De conformidad con lo establecido en la normativa vigente y aplicable de protección de datos de carácter  personal y la Ley 34/2002, de 11 de julio, de Servicios de la Sociedad de la Información y de Comercio  Electrónico (LSSI-CE), APROPERTIES REAL ESTATE ASSETS S.L. informa a los usuarios, que ha procedido a  crear un perfil en la/s Red/es Social/es Facebook, Instagram, Linkedin y YouTube, con la finalidad principal de  publicitar sus productos y servicios. 

El usuario dispone de un perfil en la misma Red Social y ha decidido unirse a la página creada por  APROPERTIES REAL ESTATE ASSETS S.L., mostrando así interés en la información que se publicite en la  Red. Al unirse a nuestra página, nos facilita su consentimiento para el tratamiento de aquellos datos personales  publicados en su perfil. 

El usuario puede acceder en todo momento a las políticas de privacidad de la propia Red Social, así como  configurar su perfil para garantizar su privacidad. 

APROPERTIES REAL ESTATE ASSETS S.L. tiene acceso y trata aquella información pública del usuario, en  especial, su nombre de contacto. Estos datos, sólo son utilizados dentro de la propia Red Social. No son  incorporados a ningún sistema de tratamiento. 

Derechos de los interesados 

En relación a los acceso, rectificación, limitación de tratamiento, supresión, portabilidad y oposición al tratamiento  de sus datos de carácter personal, de los que usted dispone y que pueden ser ejercitados ante APROPERTIES  REAL ESTATE ASSETS S.L., de acuerdo con la RGPD, debe tener en cuenta los siguientes matices: 

  • Derecho de Acceso: Es el derecho del usuario a obtener información sobre sus datos concretos de carácter personal y del tratamiento que se haya realizado o realice, así como de la información disponible sobre el origen de dichos datos y las comunicaciones realizadas o previstas de los mismos. 
  • Derecho de Rectificación: Es el derecho del afectado a que se modifiquen los datos que resulten ser inexactos o incompletos. Sólo podrá satisfacerse en relación a aquella información que se encuentre bajo el control de APROPERTIES REAL ESTATE ASSETS S.L., por ejemplo, eliminar comentarios publicados en la propia página, imágenes o contenidos web donde consten datos de carácter personal del usuario. 
  • Derecho a la Limitación de tratamiento: Es el derecho a que se limiten los fines del tratamiento previstos de forma original por el responsable del tratamiento. 
  • Derecho de Supresión: Es el derecho a suprimir los datos de carácter personal del usuario, a excepción de lo previsto en el propio RGPD o en otras normativas aplicables que determinen la obligatoriedad de la conservación de los mismos, en tiempo y forma. 
  • Derecho de portabilidad: El derecho a recibir los datos personales que el usuario, haya facilitado, en un formato estructurado, de uso común y lectura mecánica, y a transmitirlos a otro responsable. 
  • Derecho de Oposición: Es el derecho del usuario a que no se lleve a cabo el tratamiento de sus datos de carácter personal o se cese el tratamiento de los mismos por parte de APROPERTIES REAL ESTATE ASSETS S.L.. 

APROPERTIES REAL ESTATE ASSETS S.L. realizará las siguientes actuaciones: 

  • Acceso a la información pública del perfil. 
  • Publicación en el perfil del usuario de toda aquella información ya publicada en la página de APROPERTIES REAL ESTATE ASSETS S.L..
  • Enviar mensajes personales e individuales a través de los canales de la Red Social. 
  • Actualizaciones del estado de la página que se publicarán en el perfil del usuario. 

El usuario siempre puede controlar sus conexiones, eliminar los contenidos que dejen de interesarle y restringir  con quién comparte sus conexiones, para ello deberá acceder a su configuración de privacidad. 

Publicaciones 

El usuario, una vez unido a la página de APROPERTIES REAL ESTATE ASSETS S.L., podrá publicar en ésta  última comentarios, enlaces, imágenes o fotografías o cualquier otro tipo de contenido multimedia soportado por  la Red Social. El usuario, en todos los casos, debe ser el titular de los mismos, gozar de los derechos de autor y  de propiedad intelectual o contar con el consentimiento de los terceros afectados. Se prohíbe expresamente  cualquier publicación en la página, ya sean textos, gráficos, fotografías, vídeos, etc. que atenten o sean  susceptibles de atentar contra la moral, la ética, el buen gusto o el decoro, y/o que infrinjan, violen o quebranten  los derechos de propiedad intelectual o industrial, el derecho a la imagen o la Ley. En estos casos,  APROPERTIES REAL ESTATE ASSETS S.L. se reserva el derecho a retirar de inmediato el contenido,  pudiendo solicitar el bloqueo permanente del usuario. 

APROPERTIES REAL ESTATE ASSETS S.L. no se hará responsable de los contenidos que libremente ha  publicado un usuario. 

El usuario debe tener presente que sus publicaciones serán conocidas por los otros usuarios, por lo que él  mismo es el principal responsable de su privacidad. 

Las imágenes que puedan publicarse en la página no serán almacenadas en ningún sistema de tratamiento por  parte de APROPERTIES REAL ESTATE ASSETS S.L., pero sí que permanecerán en la Red Social. 

Concursos y promociones 

APROPERTIES REAL ESTATE ASSETS S.L. se reserva el derecho a realizar concursos y promociones, en los  que podrá participar el usuario unido a su página. Las bases de cada uno de ellos, cuando se utilice para ello la  plataforma de la Red Social, serán publicadas en la misma. Cumpliendo siempre con la LSSI-CE y con cualquier  otra norma que le sea de aplicación. 

La Red Social no patrocina, avala ni administra, de modo alguno, ninguna de nuestras promociones, ni está  asociada a ninguna de ellas.

Publicidad 

APROPERTIES REAL ESTATE ASSETS S.L. utilizará la Red Social para publicitar sus productos y servicios, en  todo caso, si decide tratar sus datos de contacto para realizar acciones directas de prospección comercial, será  siempre, cumpliendo con las exigencias legales del RGPD y de la LSSI-CE. 

No se considerará publicidad el hecho de recomendar a otros usuarios la página de APROPERTIES REAL  ESTATE ASSETS S.L. para que también ellos puedan disfrutar de las promociones o estar informados de su  actividad. 

A continuación detallamos el enlace a la política de privacidad de la Red Social: 

ÚLTIMA ACTUALIZACIÓN: 21 de enero de 2022.

Utilizamos cookies propias y de terceros para hacer funcionar de manera segura nuestra página web y personalizar su contenido. Igualmente, utilizamos cookies para medir y obtener datos de la navegación que realiza y para ajustar la publicidad a sus gustos y preferencias. Pulse el botón "Aceptar todas" para confirmar que ha leído y aceptado la información presentada. Para administrar o deshabilitar estas cookies haga click en "Configuración". Puede obtener más información en nuestra política de cookies.
Modificar cookies
Técnicas y funcionales Siempre activas
Este sitio web utiliza Cookies propias para recopilar información con la finalidad de mejorar nuestros servicios. Si continua navegando, supone la aceptación de la instalación de las mismas. El usuario tiene la posibilidad de configurar su navegador pudiendo, si así lo desea, impedir que sean instaladas en su disco duro, aunque deberá tener en cuenta que dicha acción podrá ocasionar dificultades de navegación de la página web.
Analíticas y personalización
Permiten realizar el seguimiento y análisis del comportamiento de los usuarios de este sitio web. La información recogida mediante este tipo de cookies se utiliza en la medición de la actividad de la web para la elaboración de perfiles de navegación de los usuarios con el fin de introducir mejoras en función del análisis de los datos de uso que hacen los usuarios del servicio. Permiten guardar la información de preferencia del usuario para mejorar la calidad de nuestros servicios y para ofrecer una mejor experiencia a través de productos recomendados.
Marketing y publicidad
Estas cookies son utilizadas para almacenar información sobre las preferencias y elecciones personales del usuario a través de la observación continuada de sus hábitos de navegación. Gracias a ellas, podemos conocer los hábitos de navegación en el sitio web y mostrar publicidad relacionada con el perfil de navegación del usuario.