Terreno en venta en Rubí

Superficie
1.022 m²
Terreno en venta
228.000 €

¿te ha gustado? Contacta con nosotros

  • He leído y acepto la condiciones de uso

TERRENO CON LICENCIA LISTO PARA CONSTRUIR

¡Oportunidad única en Rubí! Terreno plano de 1022m2 en la zona residencial de "Les Valls de Sant Muç".

Se vende fantástico terreno urbanizable de 1022m2 ubicado en una tranquila y exclusiva zona residencial de Rubí. Una parcela plana a dos niveles, muy soleada durante todo el día y con mucha privacidad, ideal para construirla casa de tus sueños.

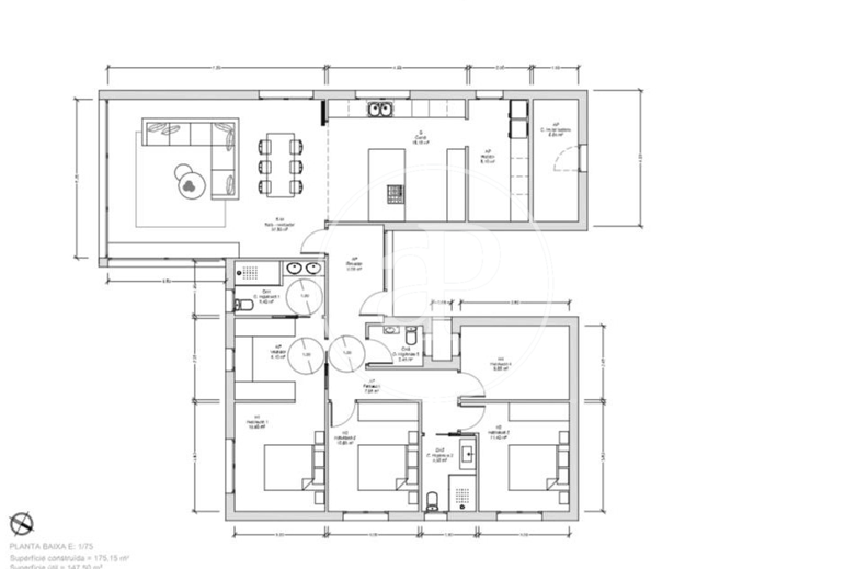
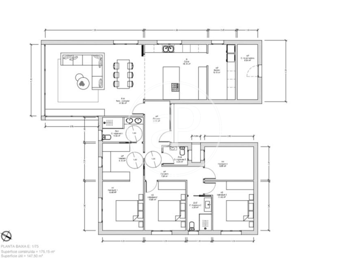
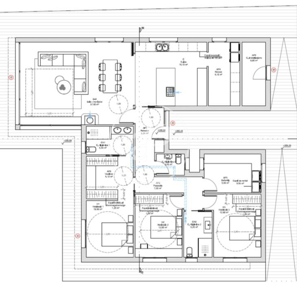
El terreno ya cuenta con licencia municipal aprobada por el ayuntamiento y proyecto realizado por un arquitecto, que contempla una espectacular vivienda unifamiliar en planta de 177m2 de construidos y con piscina privada de 28m2. La parcela está inteligentemente dividida en dos niveles: una zona destinada a la vivienda y la piscina y otra destinada a jardín o espacio verde, lo que proporciona una distribución funcional y estética. El proyecto de la vivienda en planta consta de un amplio salón comedor con salida a la piscina, cocina y despensa, dos cuartos de baño, lavadero y tres habitaciones, una de ellas con vestidor y baño privado además de una sala para la maquinaria.

El terreno ya cuenta con todas las acometidas de agua, electricidad, télefono y red de saneamiento. Además, goza de una excelente ubicación: a sólo dos minutos a pie de la parada de autobús con conexión directa al centro de Rubí y a apenas un kilómetro en coche del centro del municipio.

Una oportunidad tanto para particulares como para inversores. ¡Listos para empezar a construir!

  • Características

Propiedades vistas recientemente

Terreno en venta
VSC2504008
800.000 €

Terreno en venta en Valldoreix

Valldoreix, Vallès Occidental
Aproperties tiene el agrado de ofrecer este excelente terreno esquinero y plano de 816 m² según catastro, en la zona de Valldoreix, San Cugat del Vallés.  La ubicación de terreno es incomparable, puesto que, a pesar de estar muy bien comunicado, está a una disteancia prudencial que lo aleja del bullicio y el tránsito.  El potencial de desarrollo es extraordinario.     Existe la opción de crear una casa independiente en uno de los ya únicos terrenos bien ubicados en venta en Valldoreix. No hay ofertas comparables en la zona, lo que la convierte en una inversión única e inigualable.    La clasificación de este terreno es 20a/11, tiene la posibilidad de construcción de una casa aislada de aproximadamente 370m² distribuida en una planta baja más un piso.    Ocupación en planta de 170mts aproximadamente, con una alzada de 9.15mts, planta baja más dos y posibilidad de una planta más soterrada, se puede hacer una edificación auxiliar de un 3%.   Ubicada en una zona residencial de Sant Cugat integrada principalmente por casas unifamiliares, en un entorno privilegiado con mucha intimidad. Es de destacar que se encuentra al mismo tiempo cerca de todo tipo de servicios. A dos minutos en coche y unos diez caminando de la estación de ferrocarriles catalanes de Valldoreix, a poca distancia de una parada de autobús, cercana a un centro médico, una farmacia, restaurantes, un supermercado y al club de tenis de Valldoreix. Con fácil acceso a la carretera que lleva directamente a Barcelona en pocos minutos.   No dude en contactar con el equipo experto de Aproperties Real Estate para la búsqueda de su nuevo hogar. Siempre cercanos, eficaces y profesionales en todo el proceso. 
Superficie 816 m2
800.000 €
Casa en venta
VSC2005011-4
2.900.000 €

Casa vanguardista en venta en El Golf-Can Trabal

Golf - Can Trabal, Vallès Occidental
Espectacular unifamiliar de diseño minimalista de obra nueva, ubicada en la zona más exclusiva y tranquila de Sant Cugat, concretamente, en El Golf. Una zona residencial que goza de la máxima tranquilidad, además la vivienda se sitúa, cerca de paradas de autobús, andando de estaciones de FFCC y del centro de la ciudad. Así mismo, cercana a infinitud de clubs deportivos con transporte particular. La vivienda se alza en una parcela de 800 m2 y la construcción es de 573 m2, distribuida en 4 plantas, todas ellas intercomunicadas entre sí por un ascensor. Toda la vivienda posee grandes cristaleras y ventanales, que nos permiten la entrada de muchísima luz y nos invita a tener una sensación espectacular. En la planta principal encontramos un increíble y luminoso salón comedor con chimenea, que gracias a sus grandes ventanales podemos acceder al exterior, dotado de porche y piscina desbordante, cocina office con mucho encanto y un aseo de cortesía. En la planta superior se nos presenta el dormitorio principal con un baño completo con ducha y bañera y dos vestidores, con acceso privativo y privilegiado a un solárium / terraza con fantásticas vistas. En otra planta se encuentra la zona de noche que cuenta con 4 habitaciones (todas amplias con armarios empotrados) y 3 baños, además de una gran sala polivalente de 70 m2.. La propiedad cuenta con un garaje para cuatro vehículos, además de espacio exterior para motocicletas y bicicletas, sala de máquinas, gran zona de lavandería y habitación de servicio. ACABADOS DE CALIDAD: Suelos de cemento pulido y de madera, persianas eléctricas, domótica, calefacción por suelo radiante, placas solares, carpintería interior de roble, carpintería exterior con doble cristal (térmico y acústico) y aire acondicionado con bomba de frío y calor en toda la casa. UBICACIÓN: Ubicada en una zona privilegiada y exclusiva del Golf – Can Trabal, cuenta con excelentes comunicaciones con las principales carreteras con acceso inmejorables a Barcelona y alrededores. La zona del Golf-Can Trabal destaca por sus zonas residenciales tranquilas y caracterizadas por su proximidad a infinitud de servicios, comercios y servicios médicos a escasos minutos. En aProperties contamos con los mejores agentes inmobiliarios para brindarle una atención profesional, personalizada y eficiente, en el que usted es el protagonista. No dude en ponerse en contacto con nosotros para recibir información más detallada sobre este inmueble.
Superficie 573 m2
Dormitorios 5
Baños 5
2.900.000 €
Casa en venta
VPM2209026
2.000.000 €

Casa en venta en Puerto de Andratx

Port d’Andratx, Mallorca
 Esta propiedad, situada en una ubicación inmejorable, se encuentra a solo 5 minutos del exclusivo Puerto de Andratx, al que podrás llegar cómodamente en coche o disfrutando de un apacible paseo por un pintoresco camino interior. Una vez allí, podrás deleitarte con la variada oferta de restaurantes y locales de ocio que este destino privilegiado tiene para ofrecer. En una parcela de 4.200 m², rodeada de un entorno idílico, donde la naturaleza y la serenidad se encuentran en perfecta armonía, se alza esta encantadora casa unifamiliar de 170 m², distribuida en dos plantas. Con una impresionante terraza de 78 m², una refrescante piscina de 50 m², y un jardín salpicado de árboles frutales, esta propiedad es un lienzo en blanco que espera ser transformado según los deseos del nuevo propietario. La planta superior cuenta con tres amplias habitaciones dobles, una de ellas con baño en suite, además de una habitación adicional y un baño compartido. Un salón-comedor diáfano se abre hacia una magnífica terraza cubierta con barbacoa, ideal para disfrutar de comidas al aire libre con vistas espectaculares. En la planta baja, una galería acristalada ofrece un acogedor espacio que combina salón y cocina, complementado por una habitación con baño en suite y un cuarto de máquinas. Actualmente la casa no ha pasado el final de obra pero con la nueva ley de legalización de fincas rusticas se puede obtener la cedula de habitabilidad. La luz natural inunda cada rincón de esta vivienda, orientada al sur, lo que permite disfrutar del sol durante todo el día. Enclavada entre montañas y mar, la casa ofrece un entorno natural incomparable, con paisajes que invitan a la calma y a disfrutar de la vida rural, a solo unos pasos del mar Mediterráneo y las impresionantes playas y calas que lo rodean. ¿Te imaginas vivir aquí? ¡Esperamos tu llamada!
Superficie 318 m2
Parcela 4.200 m2
Dormitorios 5
Baños 3
2.000.000 €
Casa en venta
VSC2505002
1.395.000 €

Casa en venta en Mirasol

Mira-sol, Vallès Occidental
Os presentamos desde Aproperties una excelente propiedad que combina comodidad, diseño, funcionalidad y accesibilidad.   En una Ubicación estratégica:  a tan sólo tres minutos de la estación de tren, lo que garantiza la conectividad y la autonomía de los integrantes de la casa y sus posibles visitas.  Ideal para familias que busquen espacios amplios, ya que todos los espacios son muy generosos.  La casa se desarrolla sobre una parcela de 600 m², distribuidos en tres plantas, desarrollada en 410 m² según catastro.  En la planta de día se encuentran un gran salón comedor con salida directa al jardín, con un estupendo porche desde el cual aparte de disfrutar del exterior, se ve la piscina de sal. La planta ofrece una gran cocina comedor también con salida directa al jardín, una gran despensa y una sala de aguas, otra vez conectada con el exterior. Completamos la planta con una habitación en suite, tan generosa que podría transformarse perfectamente en dos habitaciones, ambas en suite, un lujo que pocos inmuebles pueden permitirse en todo Sant Cugat.  En la primera planta nos sorprende satisfactoriamente un segundo salón con chimenea para disfrutar ya sea en familia o para que los niños tengan un segundo espacio para su disfrute. El salón conecta tres habitaciones, una de ellas la suite y dos habitaciones dobles con un baño completo que las sirve.  Una vez más, las habitaciones de este inmueble son tan amplias, que se podrían redistribuir las dos habitaciones dobles, en el caso de necesitarlo y convertir en tres dobles. Los baños y el salón de la planta alta, renovados hace un año.  La casa se completa con un parking para tres coches, motos y bicicletas y otra gran sala, ahora gimnasio, pero que también podría ser una estupenda sala de cine. Si eres un amante de los coches y necesitas más espacio, se podría unificar el espacio para dar dos plazas más de parking a la casa.  El jardín que rodea a la casa es plano, tiene la zona de porche, piscina, barbacoa...  ¡Ven a visitarla y enamórate de tu nuevo hogar! 
Superficie 409 m2
Dormitorios 4
Baños 4
1.395.000 €
x

DATOS DEL PROPIETARIO DE LA WEB

  • RAZÓN SOCIAL: APROPERTIES REAL ESTATE ASSETS SL
  • NIF: B66207879
  • DIRECCIÓN  POSTAL: PASSEIG DE GRACIA 85 PLANTA 8 08008, BARCELONA
  • DIRECCIÓN ELECTRÓNICA: [email protected] 
  • OBJETO PRINCIPAL: PLATAFORMA INMOBILIARIA

De conformidad con la normativa vigente y aplicable en protección de datos de carácter personal, le informamos  que sus datos serán incorporados al sistema de tratamiento titularidad de APROPERTIES REAL ESTATE  ASSETS SL. con NIF B66207879 y domicilio social sito en PASSEIG DE GRACIA 85 PLANTA 8 08008,  BARCELONA, y que a continuación se relacionan sus respectivas finalidades, plazos de conservación y bases  legitimadoras. Para aquellos tratamientos que lo requieran, se informa también de la posible elaboración de  perfiles y decisiones automatizadas, así como las posibles cesiones y las transferencias internacionales que  APROPERTIES REAL ESTATE ASSETS S.L. tiene previsto realizar: 

TRATAMIENTOS REALIZADOS

Gestión de la página web

  • Finalidad: Tratamiento y gestión de los datos necesarios para la funcionalidad de la página  web 
  • Plazo de conservación: mientras perdure el consentimiento prestado  
  • Base legítima: El consentimiento del interesado 
  • Tipología de Datos: Datos meramente identificativos 
  • Cesiones: No se prevén 
  • Transferencias internacionales: No se prevén 
  • Elaboraciones de perfiles: No se prevén

Formulario contacto y cotización

  • Finalidad: Atender sus consultas y/o solicitudes 
  • Plazo de conservación: mientras se mantenga el consentimiento prestado. Base legítima: El consentimiento del interesado 
  • Tipología de Datos: Datos meramente identificativos 
  • Cesiones: Ninguna 
  • Transferencias internacionales: No se prevén 
  • Elaboraciones de perfiles: No se prevén

Gestión del cumplimiento normativo

  • Finalidad: Gestión y tramitación de las obligaciones y deberes que se deriven del  cumplimiento de la normativa a la cual está sujeta la entidad 
  • Plazo de conservación: conservación de las copias de los documentos hasta que  prescriban las acciones para reclamarle una posible responsabilidad 
  • Base legítima: El cumplimiento de una ley 
  • Tipología de Datos: Datos meramente identificativos 
  • Cesiones: sus datos serán comunicados en caso de ser necesario a Organismos y/o  administración pública con competencia en la materia con la finalidad de cumplir con las  obligaciones establecidas en la normativa aplicable. Además, se informa que la base  legitimadora de la cesión es cumplir con las obligaciones establecidas en la normativa  aplicable 
  • Transferencias internacionales: No se prevén 
  • Elaboraciones de perfiles: No se prevén

Acciones Comerciales

  • Finalidad: Captación, registro y tratamiento de datos con finalidades de publicidad y  prospección comercial de nuestros productos y/o servicios 
  • Plazo de conservación: mientras se mantenga el consentimiento prestado Base legítima: El consentimiento del interesado 
  • Tipología de Datos: Datos meramente identificativos 
  • Cesiones: Ninguna 
  • Transferencias internacionales: No se prevén 
  • Elaboraciones de perfiles: No se prevén

Gestión Bolsa de empleo

  • Finalidad: Registro y tratamiento de datos de candidatos para finalidades de selección de  personal referentes a puestos de trabajo vacantes de las entidades colaboradoras y gestión  de la bolsa de empleo 
  • Plazo de conservación: mientras perdure el consentimiento prestado 
  • Base legítima: El consentimiento del interesado 
  • Tipología de Datos: Datos meramente identificativos 
  • Cesiones: sus datos serán comunicados en caso de ser necesario a Entidades  Colaboradoras con la finalidad de gestionar la bolsa de empleo y trasladar la candidatura a  la empresa colaboradora. Además, se informa que la base legitimadora de la cesión es su  consentimiento 
  • Transferencias internacionales: No se prevén 
  • Elaboraciones de perfiles: No se prevén

GESTIÓN DE DATOS

De acuerdo con lo establecido por el Reglamento (UE) 2016/679 del Parlamento Europeo y del Consejo, de 27 de abril de 2016, relativo a la protección de las personas físicas en lo que respecta al tratamiento de datos personales y a la libre circulación de estos datos y por el que se deroga la Directiva 95/46/CE, APROPERTIES REAL ESTATE ASSETS SL informa al Usuario en relación a los sitios web www.aproperties.es y derivados (en adelante, sitios web), que la información que se pueda recabar en los sitios web se incorporará en los sistemas de tratamiento responsabilidad de APROPERTIES REAL ESTATE ASSETS SL, con las finalidades de realizar la gestión y el mantenimiento de la relación con el Usuario con los sitios web, así como las labores de información, estadística, y comercialización de los servicios y de las actividades relacionadas con los mismos.

APROPERTIES REAL ESTATE ASSETS SL informa de que la base legítima que ampara los tratamientos indicados es la existencia de un interés legítimo, asimismo en cuanto a la instalación de cookies se encuentran legitimados en la existencia del consentimiento prestado por parte de los interesados o, en su caso, de los representantes legales de los mismos.

  • APROPERTIES REAL ESTATE ASSETS SL informa de que los datos serán conservados mientras perdure el consentimiento prestado por el Usuario, exceptuando aquellos casos en los que estemos obligados legalmente a su conservación.
  • De acuerdo con los derechos que le confiere la normativa vigente en protección de datos, el Usuario podrá dirigirse a la Autoridad de Control competente para presentar la reclamación que considere oportuna, así como también podrá ejercer los derechos de acceso, rectificación, limitación de tratamiento, supresión, portabilidad y oposición al tratamiento de sus datos de carácter personal, así como a la retirada del consentimiento prestado para el tratamiento de los mismos.

De acuerdo con lo establecido por el artículo 32 del Reglamento (UE) 2016/679 del Parlamento Europeo y del Consejo, de 27 de abril de 2016, relativo a la protección de las personas físicas en lo que respecta al tratamiento de datos personales y a la libre circulación de estos datos y por el que se deroga la Directiva 95/46/CE, APROPERTIES REAL ESTATE ASSETS SL se compromete a adoptar las medidas técnicas y organizativas necesarias, acorde al nivel de riesgos que acompañan los tratamientos realizados por éstas e indicados en el apartado de los términos y condiciones de uso, de forma que garanticen su integridad, confidencialidad y disponibilidad.
 
Asimismo, APROPERTIES REAL ESTATE ASSETS SL informa que en el caso que el Usuario introduzca datos en los formularios de los sitios web de terceros, serán estos últimos los responsables de los datos de carácter personal, y quienes deberán adoptar las medidas técnicas descritas en el siguiente apartado.

DERECHOS DE LOS INTERESADOS

APROPERTIES REAL ESTATE ASSETS S.L. informa a los Usuarios que, podrá ejercer los derechos  de acceso, rectificación, limitación, supresión, portabilidad y oposición al tratamiento de sus datos de carácter personal ante el Responsable del Tratamiento, así como a la retirada del consentimiento prestado. 

  • Derecho de Acceso: Es el derecho del usuario a obtener información sobre sus datos concretos de carácter personal y del tratamiento que se haya realizado o realice, así como de la información disponible sobre el origen de dichos datos y las comunicaciones realizadas o previstas de los mismos. 
  • Derecho de Rectificación: Es el derecho del afectado a que se modifiquen los datos que resulten ser inexactos o incompletos. Sólo podrá satisfacerse en relación a aquella información que se encuentre bajo el control de la APP, por ejemplo, eliminar comentarios publicados en la propia página, imágenes o contenidos web donde consten datos de carácter personal del usuario. 
  • Derecho a la Limitación de tratamiento: Es el derecho a que se limiten los fines del tratamiento previstos de forma original por el responsable del tratamiento. 
  • Derecho de Supresión: Es el derecho a suprimir los datos de carácter personal del usuario, a excepción de lo previsto en el propio RGPD o en otras normativas aplicables que determinen la obligatoriedad de la conservación de los mismos, en tiempo y forma. 
  • Derecho de portabilidad: El derecho a recibir los datos personales que el usuario, haya facilitado, en un formato estructurado, de uso común y lectura mecánica, y a transmitirlos a otro responsable. 
  • Derecho de Oposición: Es el derecho del usuario a que no se lleve a cabo el tratamiento de sus datos de carácter personal o se cese el tratamiento de los mismos por parte de la APP. 

Para poder ejercer cualquiera de los derechos descritos anteriormente deberá cumplir con los siguientes requisitos: 

- Presentación de un escrito a la dirección indicada en la parte superior de esta (a la atención de APROPERTIES REAL ESTATE ASSETS S.L.) o bien a través de correo electrónico a [email protected]

- El escrito remitido por el titular de los datos que solicite el ejercicio deberá de cumplir los siguientes requisitos legales:

  • Nombre, apellidos del interesado y copia del DNI/NIE o cualquier documento identificativo. En los excepcionales casos en que se admita la representación, será también necesaria la identificación por el mismo medio de la persona que le representa, así como el documento acreditativo de la representación. La fotocopia del DNI podrá ser sustituida siempre que se acredite la identidad por cualquier otro medio válido en derecho. 
  • Petición en que se concreta la solicitud. (Ejercicio en el que se solicita la información a la que se quiere acceder). Si no hace referencia a un fichero concreto se le facilitará toda la información que se tenga con sus datos de carácter personal. Si solicita información de un fichero en concreto, sólo la información de este fichero. Si solicita información relativa a un tercero nunca se podrá facilitar. Si lo solicita por teléfono se le indicará que lo haga por escrito y se le informará de cómo lo puede hacer y la dirección a la que tiene que enviarlo. Nunca se le dará información por teléfono. 
  • Domicilio a efectos de notificaciones. 
  • Fecha y firma del solicitante. 
  • Documentos acreditativos de la petición que formula. 
  • El interesado debe utilizar cualquier medio que permita acreditar el envío y la recepción de la solicitud. 

Por último, le informamos que Usted tiene derecho a presentar una reclamación ante la Agencia Española de  Protección de Datos en caso de que tenga conocimiento o considere que un hecho pueda suponer un  incumplimiento de la normativa aplicable en materia de protección de datos.

APROPERTIES REAL ESTATE ASSETS S.L. se compromete a adoptar las medidas técnicas y organizativas  necesarias, acorde al nivel de riesgos que acompañan los tratamientos realizados por éstas e indicados en el  apartado de los términos y condiciones de uso, de forma que garanticen su integridad, confidencialidad y disponibilidad.

POLÍTICA DE REDES SOCIALES

De conformidad con lo establecido en la normativa vigente y aplicable de protección de datos de carácter  personal y la Ley 34/2002, de 11 de julio, de Servicios de la Sociedad de la Información y de Comercio  Electrónico (LSSI-CE), APROPERTIES REAL ESTATE ASSETS S.L. informa a los usuarios, que ha procedido a  crear un perfil en la/s Red/es Social/es Facebook, Instagram, Linkedin y YouTube, con la finalidad principal de  publicitar sus productos y servicios. 

El usuario dispone de un perfil en la misma Red Social y ha decidido unirse a la página creada por  APROPERTIES REAL ESTATE ASSETS S.L., mostrando así interés en la información que se publicite en la  Red. Al unirse a nuestra página, nos facilita su consentimiento para el tratamiento de aquellos datos personales  publicados en su perfil. 

El usuario puede acceder en todo momento a las políticas de privacidad de la propia Red Social, así como  configurar su perfil para garantizar su privacidad. 

APROPERTIES REAL ESTATE ASSETS S.L. tiene acceso y trata aquella información pública del usuario, en  especial, su nombre de contacto. Estos datos, sólo son utilizados dentro de la propia Red Social. No son  incorporados a ningún sistema de tratamiento. 

Derechos de los interesados 

En relación a los acceso, rectificación, limitación de tratamiento, supresión, portabilidad y oposición al tratamiento  de sus datos de carácter personal, de los que usted dispone y que pueden ser ejercitados ante APROPERTIES  REAL ESTATE ASSETS S.L., de acuerdo con la RGPD, debe tener en cuenta los siguientes matices: 

  • Derecho de Acceso: Es el derecho del usuario a obtener información sobre sus datos concretos de carácter personal y del tratamiento que se haya realizado o realice, así como de la información disponible sobre el origen de dichos datos y las comunicaciones realizadas o previstas de los mismos. 
  • Derecho de Rectificación: Es el derecho del afectado a que se modifiquen los datos que resulten ser inexactos o incompletos. Sólo podrá satisfacerse en relación a aquella información que se encuentre bajo el control de APROPERTIES REAL ESTATE ASSETS S.L., por ejemplo, eliminar comentarios publicados en la propia página, imágenes o contenidos web donde consten datos de carácter personal del usuario. 
  • Derecho a la Limitación de tratamiento: Es el derecho a que se limiten los fines del tratamiento previstos de forma original por el responsable del tratamiento. 
  • Derecho de Supresión: Es el derecho a suprimir los datos de carácter personal del usuario, a excepción de lo previsto en el propio RGPD o en otras normativas aplicables que determinen la obligatoriedad de la conservación de los mismos, en tiempo y forma. 
  • Derecho de portabilidad: El derecho a recibir los datos personales que el usuario, haya facilitado, en un formato estructurado, de uso común y lectura mecánica, y a transmitirlos a otro responsable. 
  • Derecho de Oposición: Es el derecho del usuario a que no se lleve a cabo el tratamiento de sus datos de carácter personal o se cese el tratamiento de los mismos por parte de APROPERTIES REAL ESTATE ASSETS S.L.. 

APROPERTIES REAL ESTATE ASSETS S.L. realizará las siguientes actuaciones: 

  • Acceso a la información pública del perfil. 
  • Publicación en el perfil del usuario de toda aquella información ya publicada en la página de APROPERTIES REAL ESTATE ASSETS S.L..
  • Enviar mensajes personales e individuales a través de los canales de la Red Social. 
  • Actualizaciones del estado de la página que se publicarán en el perfil del usuario. 

El usuario siempre puede controlar sus conexiones, eliminar los contenidos que dejen de interesarle y restringir  con quién comparte sus conexiones, para ello deberá acceder a su configuración de privacidad. 

Publicaciones 

El usuario, una vez unido a la página de APROPERTIES REAL ESTATE ASSETS S.L., podrá publicar en ésta  última comentarios, enlaces, imágenes o fotografías o cualquier otro tipo de contenido multimedia soportado por  la Red Social. El usuario, en todos los casos, debe ser el titular de los mismos, gozar de los derechos de autor y  de propiedad intelectual o contar con el consentimiento de los terceros afectados. Se prohíbe expresamente  cualquier publicación en la página, ya sean textos, gráficos, fotografías, vídeos, etc. que atenten o sean  susceptibles de atentar contra la moral, la ética, el buen gusto o el decoro, y/o que infrinjan, violen o quebranten  los derechos de propiedad intelectual o industrial, el derecho a la imagen o la Ley. En estos casos,  APROPERTIES REAL ESTATE ASSETS S.L. se reserva el derecho a retirar de inmediato el contenido,  pudiendo solicitar el bloqueo permanente del usuario. 

APROPERTIES REAL ESTATE ASSETS S.L. no se hará responsable de los contenidos que libremente ha  publicado un usuario. 

El usuario debe tener presente que sus publicaciones serán conocidas por los otros usuarios, por lo que él  mismo es el principal responsable de su privacidad. 

Las imágenes que puedan publicarse en la página no serán almacenadas en ningún sistema de tratamiento por  parte de APROPERTIES REAL ESTATE ASSETS S.L., pero sí que permanecerán en la Red Social. 

Concursos y promociones 

APROPERTIES REAL ESTATE ASSETS S.L. se reserva el derecho a realizar concursos y promociones, en los  que podrá participar el usuario unido a su página. Las bases de cada uno de ellos, cuando se utilice para ello la  plataforma de la Red Social, serán publicadas en la misma. Cumpliendo siempre con la LSSI-CE y con cualquier  otra norma que le sea de aplicación. 

La Red Social no patrocina, avala ni administra, de modo alguno, ninguna de nuestras promociones, ni está  asociada a ninguna de ellas.

Publicidad 

APROPERTIES REAL ESTATE ASSETS S.L. utilizará la Red Social para publicitar sus productos y servicios, en  todo caso, si decide tratar sus datos de contacto para realizar acciones directas de prospección comercial, será  siempre, cumpliendo con las exigencias legales del RGPD y de la LSSI-CE. 

No se considerará publicidad el hecho de recomendar a otros usuarios la página de APROPERTIES REAL  ESTATE ASSETS S.L. para que también ellos puedan disfrutar de las promociones o estar informados de su  actividad. 

A continuación detallamos el enlace a la política de privacidad de la Red Social: 

ÚLTIMA ACTUALIZACIÓN: 21 de enero de 2022.

Utilizamos cookies propias y de terceros para hacer funcionar de manera segura nuestra página web y personalizar su contenido. Igualmente, utilizamos cookies para medir y obtener datos de la navegación que realiza y para ajustar la publicidad a sus gustos y preferencias. Pulse el botón "Aceptar todas" para confirmar que ha leído y aceptado la información presentada. Para administrar o deshabilitar estas cookies haga click en "Configuración". Puede obtener más información en nuestra política de cookies.
Modificar cookies
Técnicas y funcionales Siempre activas
Este sitio web utiliza Cookies propias para recopilar información con la finalidad de mejorar nuestros servicios. Si continua navegando, supone la aceptación de la instalación de las mismas. El usuario tiene la posibilidad de configurar su navegador pudiendo, si así lo desea, impedir que sean instaladas en su disco duro, aunque deberá tener en cuenta que dicha acción podrá ocasionar dificultades de navegación de la página web.
Analíticas y personalización
Permiten realizar el seguimiento y análisis del comportamiento de los usuarios de este sitio web. La información recogida mediante este tipo de cookies se utiliza en la medición de la actividad de la web para la elaboración de perfiles de navegación de los usuarios con el fin de introducir mejoras en función del análisis de los datos de uso que hacen los usuarios del servicio. Permiten guardar la información de preferencia del usuario para mejorar la calidad de nuestros servicios y para ofrecer una mejor experiencia a través de productos recomendados.
Marketing y publicidad
Estas cookies son utilizadas para almacenar información sobre las preferencias y elecciones personales del usuario a través de la observación continuada de sus hábitos de navegación. Gracias a ellas, podemos conocer los hábitos de navegación en el sitio web y mostrar publicidad relacionada con el perfil de navegación del usuario.