Piso en venta en calle Goya

Superficie
292 m²
Dormitorios
4
Baños
3
Piso en venta
4.990.000 €

¿te ha gustado? Contacta con nosotros

  • He leído y acepto la condiciones de uso

PISO EXTERIOR EN FINCA CLÁSICA EN RECOLETOS

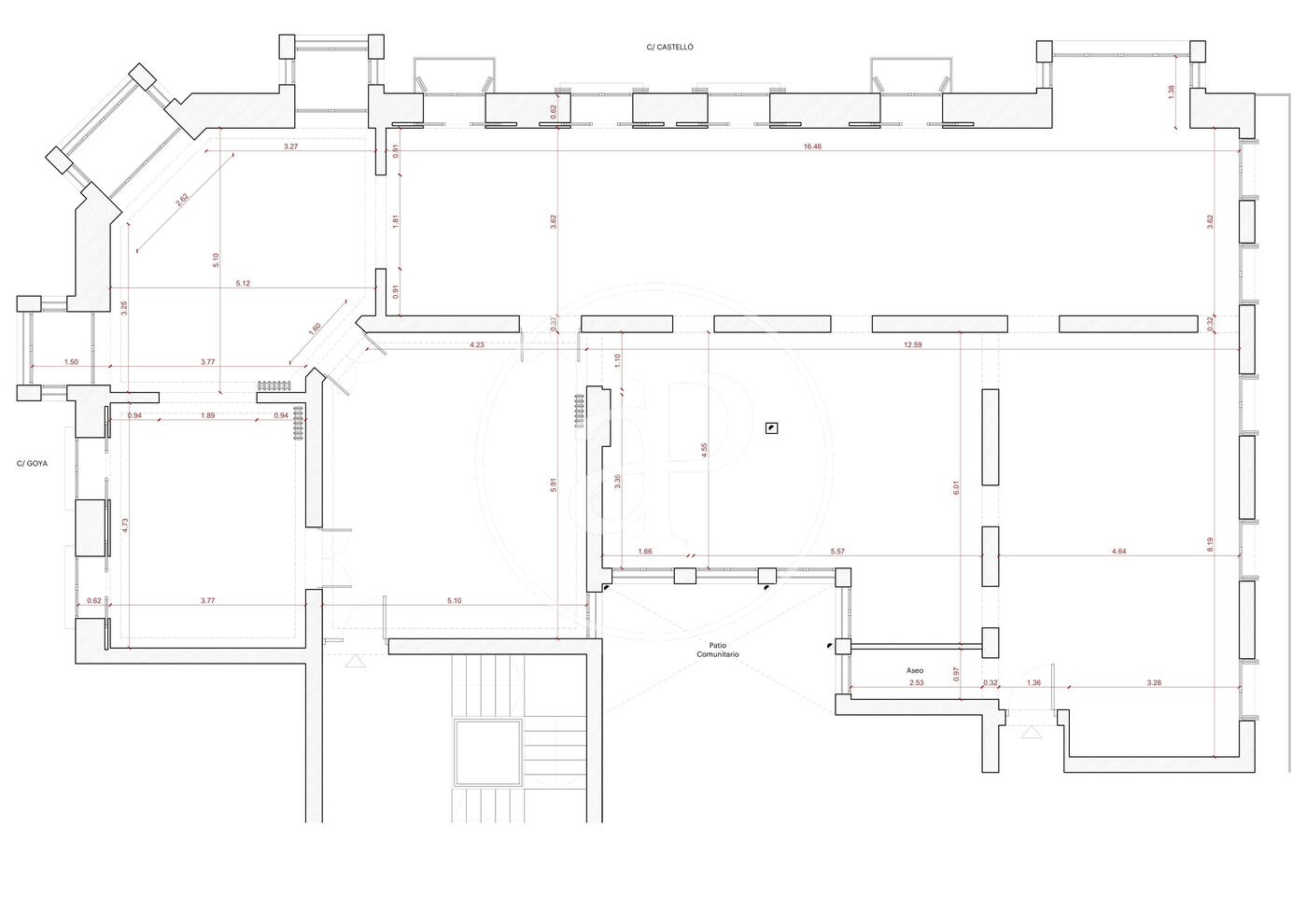
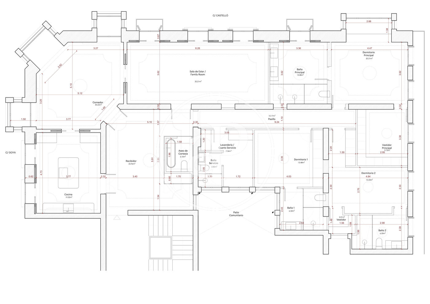
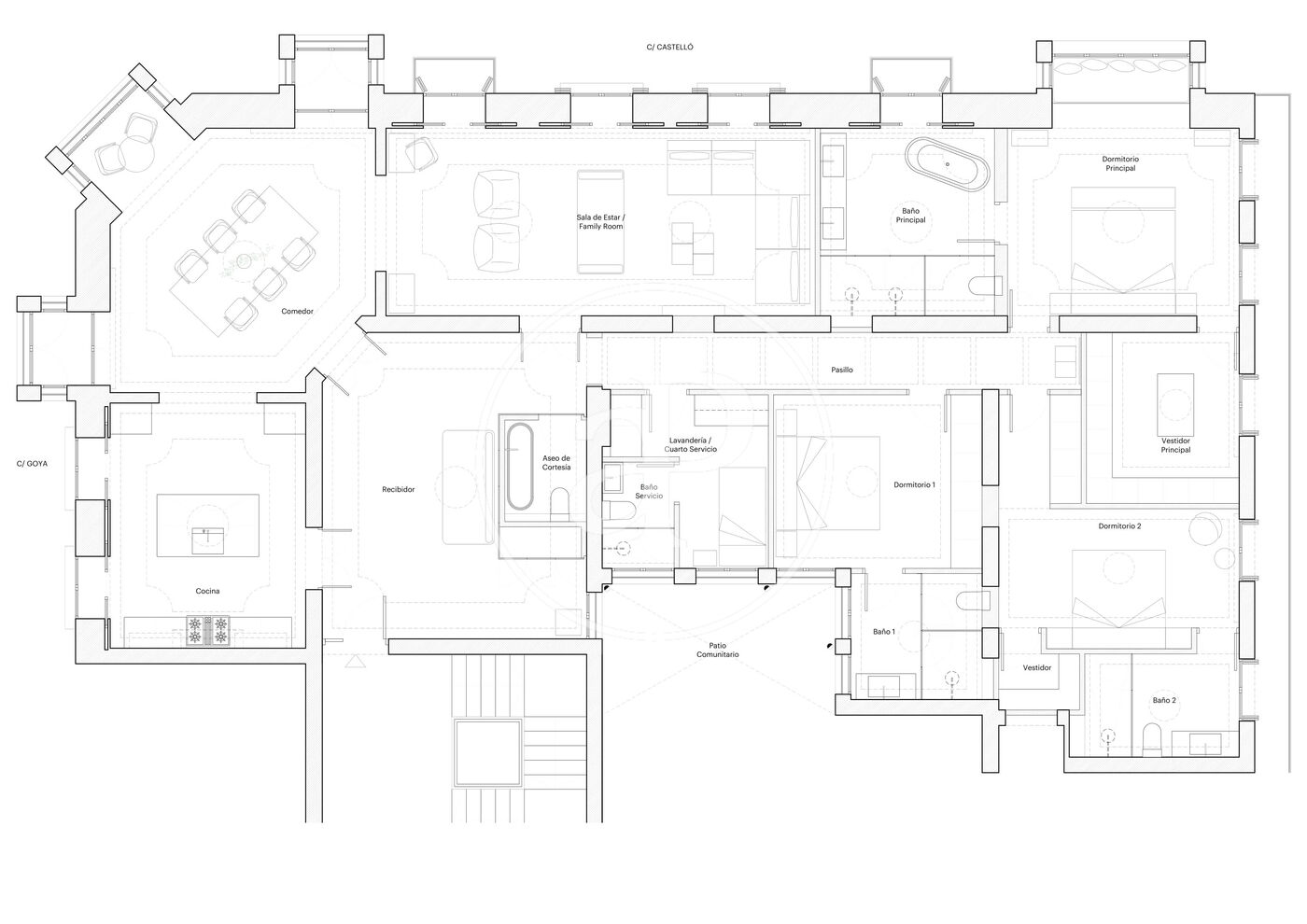
En el prestigioso Barrio de Salamanca, en una de sus calles más emblemáticas de Recoletos, aProperties ofrece a la venta esta exclusiva y magnífica vivienda totalmente exterior en preciosa y elegante finca clásica de bellísima fachada en chaflán, con un señorial portal y cuidadas zonas comunes, con tan solo dos vecinos por planta. Se trata de una Finca protegida y, por tanto, exenta de IBI. La vivienda tiene 292 m² construidos con techos de 3,40 m2 de altura y es una segunda planta con altura de tercero y se caracteriza por ser totalmente exterior en chaflán, con 15 preciosos balcones a la calle orientados y un bellísimo mirador permitiendo la entrada de una luz espectacular a todas sus estancias. La vivienda se encuentra íntegramente para reformar. Disponemos de proyecto de reforma para consulta del cliente, completamente personalizable. La propuesta de arquitectura e interiorismo para la propiedad se centra en realzar los elementos clásicos existentes, como cornisas y detalles de puertas y ventanas, integrándolos con elementos contemporáneos para crear un ambiente único. Este enfoque busca armonizar lo clásico y lo moderno, destacando el valor de cada elemento y mejorando la calidad del espacio. La distribución prioriza la conexión de los espacios de día, ubicándolos en la fachada principal. La cocina se orienta hacia la calle Goya, mientras que el comedor y zonas íntimas, como una acogedora área de desayuno, se sitúan en los miradores. Estas áreas se conectan a una amplia zona social y un family room, facilitando la interacción y disfrute de los espacios comunes. El hall de entrada es un espacio funcional y agradable, ideal para conversaciones o disfrutar de una copa con amigos, y se busca minimizar la zona de pasillo para optimizar su función como conexión entre áreas comunes y dormitorios. La distribución de los dormitorios incluye una zona de servicio y un primer dormitorio con baño en suite. El dormitorio principal, con mirador hacia la calle Castelló, dispone de baño y vestidor exteriores. El tercer dormitorio cuenta con acceso a un vestidor, baño en suite exterior y vestidor complementario. El diseño equilibra funcionalidad, estética y comodidad, reforzando la convivencia entre lo clásico y lo contemporáneo. Tiene calefacción central. La finca dispone de ascensor y conserje. El inmueble se encuentra en un entorno rodeado de servicios de lujo, incluyendo boutiques de alta gama, restaurantes exclusivos y centros comerciales y a pocos metros caminando del Parque del Retiro. Las fotos que aparecen son renders que reproducen las imágenes de la vivienda una vez reformada.

¿Te imaginas vivir aquí?

  • Características
  • Vistas
  • Calefacción
  • Aacc
  • Ascensor
  • Conserje

Acerca de Recoletos

Recoletos es uno de los 6 barrios en los que se divide el distrito de Salamanca. En este barrio se encuentran edificios con una gran importancia como la Biblioteca Nacional, el Museo Arqueológico Nacional o la Iglesia de San Manuel Bueno Mártir. También es una importante zona comercial de artículos de lujo y muy bien comunicado a tan solo 5 minutos de Atocha. 

Propiedades vistas recientemente

Casa en venta
VMN2412018
1.795.000 €

Casa en venta en zona Arturo Soria

Canillas, Madrid Norte
Encantador chalet pareado junto al metro de Arturo Soria.  Esta luminosa vivienda se encuentra en un entorno ideal para disfrutar de la tranquilidad y la privacidad.  La parcela de 252 m² cuenta con un amplio jardín de más de 100 m², una piscina de 21 m² útiles, césped, árboles y plantas naturales con años de antigüedad.  La vivienda tiene 353 m² construidos según catastro y 312 m² útiles, destacando por su luminosidad, tranquilidad y espacios abiertos.  Con una estructura de acero, sin columnas interiores, esta propiedad ofrece la posibilidad de redistribución y reforma.  Además, cuenta con un sistema de calefacción y aire acondicionado eficiente mediante una bomba de calor aire/aire Daikin con conductos.  En la planta baja, se encuentra un amplio salón, comedor, zona de estar con chimenea, aseo de invitados y una cocina dividida en dos partes, una zona de cocinado y otra singular con mirador acristalado que da al jardín.  La primera planta consta de un amplio dormitorio principal con baño en suite, dos dormitorios y otro cuarto de baño.  La segunda planta alberga una zona de teletrabajo, dos dormitorios y dos terrazas con vistas espectaculares.  El sótano de 88 m², con un patio inglés de 16 m², ofrece una amplia zona diáfana para juegos, gimnasio, fiestas, cuarto de lavado/plancha y trastero.  Este chalet pareado ofrece 5 habitaciones, 4 baños, terrazas, aire acondicionado, jardín y piscina.  Construido en 1992, se encuentra en una de las zonas más prestigiosas y lujosas de Madrid, en Arturo Soria, con una estupenda localización próxima al centro urbano y a todos los servicios. Además, está muy bien comunicado, cerca de autovías, metro, y diversas líneas de autobús. En las inmediaciones se encuentran centros educativos, centros de salud, parques, equipamientos deportivos, supermercados, farmacias, hospitales y centros comerciales.  No pierdas la oportunidad de disfrutar de esta maravillosa propiedad. Contáctanos para agendar una visita y descubrir la casa de tus sueños.  ¿Te imaginas vivir aquí?
Superficie 325 m2
Dormitorios 5
Baños 4
1.795.000 €
Piso en venta
Vendida
VV2312011
245.000 €

Apartamento Turístico en venta en Mestalla

Ciutat Universitaria, Valencia ciudad
Aproperties les presenta este apartamento turístico con excepcional que redefine la experiencia de vida urbana en el corazón de El Plá Del Real. El apartamento ofrece un diseño vanguardista y acabados de alta calidad. Con acceso directo desde la vía pública, estos espacios independientes proporcionan una experiencia de vida única. Desde el salón hasta el dormitorio, cada detalle ha sido cuidadosamente pensado para crear un ambiente de lujo y confort. La distribución incluye un amplio salón, comedor, cocina completamente equipada, dormitorio con una atención exquisita a los detalles y un baño completo. Además, el apartamento cuenta con una entrada exclusiva que se abre a una encantadora terraza a pie de calle, estableciendo un vínculo perfecto entre el interior y el entorno. La elección de electrodomésticos y mobiliario premium garantiza un estilo de vida sin concesiones, fusionando la funcionalidad con la estética para satisfacer las demandas de los residentes más exigentes. Licencias Turística concedida. Terminado, en explotación. Oportunidad Única. Escritura de propiedad individual en trámite. Proyecto en ejecución con licencia de obras. Exención de IVA sujeto pasivo. ¡No se pierda la oportunidad de ser parte de Mestalla Flats! Invierte en un entorno exclusivo, con todas las comodidades y la vibrante energía de Valencia a tu alcance. Contáctanos para más detalles y descubre el estilo de vida único que te espera en Mestalla Flats.
Superficie 55 m2
Dormitorio 1
Baño 1
245.000 €
Casa en venta
VBM2503005
3.200.000 €

Casa en venta en Vilassar de Mar

Vilassar de Mar
Ubicada en una de las zonas más exclusivas de la costa catalana, esta magnífica propiedad de 700 m² construidos y una parcela de aproximadamente 1000 m² ofrece una experiencia de vida única, con espectaculares vistas al mar y una ubicación privilegiada frente a la playa. Distribución y características principales: La casa, distribuida en tres niveles, ha sido diseñada con un enfoque en el lujo, la comodidad y la funcionalidad. En su interior, cuenta con amplios espacios llenos de luz natural, ofreciendo una sensación de amplitud y elegancia en cada rincón. Máster Suite: Un verdadero santuario privado, con una espaciosa zona de descanso, un jacuzzi de lujo y una ducha de diseño moderno. La suite cuenta además con vistas directas al mar y acceso a una terraza privada, creando el lugar perfecto para relajarse. Suites adicionales: Todas las suites están equipadas con terrazas privadas y baños de alta gama. Además, cada una ofrece un ambiente íntimo y relajante, con vistas al paisaje marítimo y total privacidad. Cocina gourmet: La cocina es un sueño para los amantes de la gastronomía, con una moderna media isla que facilita tanto el espacio de trabajo como el de socialización. Los electrodomésticos de última generación y los acabados de alta calidad aseguran una experiencia culinaria excepcional. Salas polivalentes: La propiedad cuenta con dos amplias salas polivalentes que pueden adaptarse a diversas necesidades, ya sea como oficinas, zonas de entretenimiento o espacios de relax. Comodidades excepcionales: Piscina privada: La propiedad está equipada con una impresionante piscina, acompañada de vestuarios para mayor comodidad. Perfecta para disfrutar del sol mediterráneo mientras contemplas las vistas al mar. Gimnasio privado: Para los entusiastas del deporte, el gimnasio ofrece el espacio ideal para mantenerse en forma, con vistas relajantes al exterior. Placas solares: Para una mayor eficiencia energética y sostenibilidad, la propiedad dispone de placas solares, lo que permite un considerable ahorro de energía y contribuye al respeto por el medio ambiente. Sistema de climatización: El aire acondicionado con temperatura ajustable en cada habitación asegura que el confort sea absoluto en cualquier época del año. Seguridad y confort: Las persianas eléctricas y los cristales antibalas proporcionan un nivel de seguridad superior, garantizando la privacidad y la protección en todo momento. Estacionamiento: El acceso a la propiedad se ve complementado por un parking privado con capacidad para cinco coches, proporcionando un espacio cómodo y seguro para varios vehículos. Ubicación privilegiada: Vilassar de Mar es uno de los destinos más cotizados del Maresme, con un ambiente relajado y tranquilo, pero cerca de todas las comodidades que ofrece Barcelona. Esta casa no solo brinda una calidad de vida inigualable, sino también una ubicación que permite disfrutar de las impresionantes vistas al mar y la cercanía a la playa. Esta casa de lujo es la combinación perfecta entre confort, estilo y tecnología avanzada, ideal para quienes buscan un hogar único frente al mar, en una de las zonas más exclusivas del Maresme.
Superficie 700 m2
Parcela 1.000 m2
Dormitorios 6
Baños 8
3.200.000 €
Piso en venta
VPM2410007
1.675.000 €

Loft en venta a reformar en el centro de Palma

La Rambla, Mallorca
Ubicado en el corazón de Palma de Mallorca, entre las emblemáticas Ramblas, Calle Misión y Calle Sant Miquel, este exclusivo loft combina historia y modernidad con un diseño arquitectónico singular que lo convierte en una pieza única en la ciudad. Construido en 1910 y completamente restaurado, ha mantenido su esencia original con techos altos, una fachada y una cubierta rehabilitadas. Su cercanía a tiendas, restaurantes y las históricas Ramblas lo hacen ideal para quienes buscan un estilo de vida vibrante y conectado en pleno centro de Palma. El loft se caracteriza por su amplitud y luminosidad, con una impresionante altura de techos de 8 metros y grandes ventanales de 5 metros que inundan el espacio de luz natural. El diseño diáfano y los detalles como vigas de madera a la vista y claraboyas crean una sensación de amplitud única. Además, cuenta con un jardín privado de 100 metros cuadrados, perfecto para relajarse en un entorno tranquilo, así como un sótano de 30 metros cuadrados, que puede utilizarse como bodega, trastero o adaptarse a las necesidades del propietario. Este inmueble es una oportunidad excepcional tanto para uso residencial como comercial, ofreciendo infinitas posibilidades. Desde convertirlo en un espacio de co-working, estudio de arquitectura, restaurante o galería de arte, gimnasio, hasta transformarlo en un hogar lleno de estilo y carácter. Su diseño flexible lo convierte en una inversión ideal para promotores e inversores. Situado en una de las zonas más codiciadas de Palma, este loft cuenta con excelente conectividad mediante transporte público y fácil acceso al resto de la isla. Las Ramblas, con su ambiente pintoresco lleno de cafés con terrazas, tiendas tradicionales y quioscos de flores, se encuentran a solo minutos de distancia, ofreciendo un entorno encantador y lleno de vida. ¡No dejes pasar esta oportunidad única! Contáctanos hoy para obtener más información y concertar una visita.  ¿Te imaginas vivir aquí?
Superficie 555 m2
1.675.000 €
Atico en venta
VV2410058
940.000 €

Ático en venta en Ciudad de Las Artes y las Ciencias

Ciutat de les Arts i de les Ciencies, Valencia ciudad
aProperties les ofrece este impresionante ático dúplex con una gran terraza en la Ciudad de las Artes y las Ciencias, diseñado para disfrutar de un estilo de vida exclusivo y sofisticado en uno de los lugares más icónicos de la ciudad. En la primera planta, encontrarás una amplia cocina con isla central, ideal para disfrutar de momentos culinarios en familia. La cocina se abre al luminoso salón-comedor, conectado mediante elegantes puertas correderas de madera y equipado con dos vinotecas perfectamente integradas, ideales para conservar tus vinos a la temperatura adecuada. El salón cuenta con acceso a un espacioso balcón, y esta planta también incluye una zona de aguas, un dormitorio doble y un baño completo con plato de ducha. Subiendo a la segunda planta, disponemos de otro dormitorio doble adicional y un segundo baño completo. En este nivel se ubica la magnífica habitación principal, que incluye un vestidor y un baño en suite, además del acceso a una gran terraza privada equipada con ducha y con espacio suficiente para relajarse y disfrutar del aire libre.. La vivienda cuenta con persianas y toldos eléctricos, aire acondicionado por conductos y carpintería exterior de alta gama. Toda la reforma ha sido realizada con materiales de calidad superior, ofreciendo un espacio cómodo, moderno y con excelentes acabados. Incluye una plaza de garaje, con la opción de adquirir una segunda. Para más información, no dude en contactarnos; estaremos encantados de atenderle y brindarle todos los detalles que desee sobre esta espectacular propiedad.
Superficie 175 m2
Dormitorios 3
Baños 3
940.000 €
x

DATOS DEL PROPIETARIO DE LA WEB

  • RAZÓN SOCIAL: APROPERTIES REAL ESTATE ASSETS SL
  • NIF: B66207879
  • DIRECCIÓN  POSTAL: PASSEIG DE GRACIA 85 PLANTA 8 08008, BARCELONA
  • DIRECCIÓN ELECTRÓNICA: [email protected] 
  • OBJETO PRINCIPAL: PLATAFORMA INMOBILIARIA

De conformidad con la normativa vigente y aplicable en protección de datos de carácter personal, le informamos  que sus datos serán incorporados al sistema de tratamiento titularidad de APROPERTIES REAL ESTATE  ASSETS SL. con NIF B66207879 y domicilio social sito en PASSEIG DE GRACIA 85 PLANTA 8 08008,  BARCELONA, y que a continuación se relacionan sus respectivas finalidades, plazos de conservación y bases  legitimadoras. Para aquellos tratamientos que lo requieran, se informa también de la posible elaboración de  perfiles y decisiones automatizadas, así como las posibles cesiones y las transferencias internacionales que  APROPERTIES REAL ESTATE ASSETS S.L. tiene previsto realizar: 

TRATAMIENTOS REALIZADOS

Gestión de la página web

  • Finalidad: Tratamiento y gestión de los datos necesarios para la funcionalidad de la página  web 
  • Plazo de conservación: mientras perdure el consentimiento prestado  
  • Base legítima: El consentimiento del interesado 
  • Tipología de Datos: Datos meramente identificativos 
  • Cesiones: No se prevén 
  • Transferencias internacionales: No se prevén 
  • Elaboraciones de perfiles: No se prevén

Formulario contacto y cotización

  • Finalidad: Atender sus consultas y/o solicitudes 
  • Plazo de conservación: mientras se mantenga el consentimiento prestado. Base legítima: El consentimiento del interesado 
  • Tipología de Datos: Datos meramente identificativos 
  • Cesiones: Ninguna 
  • Transferencias internacionales: No se prevén 
  • Elaboraciones de perfiles: No se prevén

Gestión del cumplimiento normativo

  • Finalidad: Gestión y tramitación de las obligaciones y deberes que se deriven del  cumplimiento de la normativa a la cual está sujeta la entidad 
  • Plazo de conservación: conservación de las copias de los documentos hasta que  prescriban las acciones para reclamarle una posible responsabilidad 
  • Base legítima: El cumplimiento de una ley 
  • Tipología de Datos: Datos meramente identificativos 
  • Cesiones: sus datos serán comunicados en caso de ser necesario a Organismos y/o  administración pública con competencia en la materia con la finalidad de cumplir con las  obligaciones establecidas en la normativa aplicable. Además, se informa que la base  legitimadora de la cesión es cumplir con las obligaciones establecidas en la normativa  aplicable 
  • Transferencias internacionales: No se prevén 
  • Elaboraciones de perfiles: No se prevén

Acciones Comerciales

  • Finalidad: Captación, registro y tratamiento de datos con finalidades de publicidad y  prospección comercial de nuestros productos y/o servicios 
  • Plazo de conservación: mientras se mantenga el consentimiento prestado Base legítima: El consentimiento del interesado 
  • Tipología de Datos: Datos meramente identificativos 
  • Cesiones: Ninguna 
  • Transferencias internacionales: No se prevén 
  • Elaboraciones de perfiles: No se prevén

Gestión Bolsa de empleo

  • Finalidad: Registro y tratamiento de datos de candidatos para finalidades de selección de  personal referentes a puestos de trabajo vacantes de las entidades colaboradoras y gestión  de la bolsa de empleo 
  • Plazo de conservación: mientras perdure el consentimiento prestado 
  • Base legítima: El consentimiento del interesado 
  • Tipología de Datos: Datos meramente identificativos 
  • Cesiones: sus datos serán comunicados en caso de ser necesario a Entidades  Colaboradoras con la finalidad de gestionar la bolsa de empleo y trasladar la candidatura a  la empresa colaboradora. Además, se informa que la base legitimadora de la cesión es su  consentimiento 
  • Transferencias internacionales: No se prevén 
  • Elaboraciones de perfiles: No se prevén

GESTIÓN DE DATOS

De acuerdo con lo establecido por el Reglamento (UE) 2016/679 del Parlamento Europeo y del Consejo, de 27 de abril de 2016, relativo a la protección de las personas físicas en lo que respecta al tratamiento de datos personales y a la libre circulación de estos datos y por el que se deroga la Directiva 95/46/CE, APROPERTIES REAL ESTATE ASSETS SL informa al Usuario en relación a los sitios web www.aproperties.es y derivados (en adelante, sitios web), que la información que se pueda recabar en los sitios web se incorporará en los sistemas de tratamiento responsabilidad de APROPERTIES REAL ESTATE ASSETS SL, con las finalidades de realizar la gestión y el mantenimiento de la relación con el Usuario con los sitios web, así como las labores de información, estadística, y comercialización de los servicios y de las actividades relacionadas con los mismos.

APROPERTIES REAL ESTATE ASSETS SL informa de que la base legítima que ampara los tratamientos indicados es la existencia de un interés legítimo, asimismo en cuanto a la instalación de cookies se encuentran legitimados en la existencia del consentimiento prestado por parte de los interesados o, en su caso, de los representantes legales de los mismos.

  • APROPERTIES REAL ESTATE ASSETS SL informa de que los datos serán conservados mientras perdure el consentimiento prestado por el Usuario, exceptuando aquellos casos en los que estemos obligados legalmente a su conservación.
  • De acuerdo con los derechos que le confiere la normativa vigente en protección de datos, el Usuario podrá dirigirse a la Autoridad de Control competente para presentar la reclamación que considere oportuna, así como también podrá ejercer los derechos de acceso, rectificación, limitación de tratamiento, supresión, portabilidad y oposición al tratamiento de sus datos de carácter personal, así como a la retirada del consentimiento prestado para el tratamiento de los mismos.

De acuerdo con lo establecido por el artículo 32 del Reglamento (UE) 2016/679 del Parlamento Europeo y del Consejo, de 27 de abril de 2016, relativo a la protección de las personas físicas en lo que respecta al tratamiento de datos personales y a la libre circulación de estos datos y por el que se deroga la Directiva 95/46/CE, APROPERTIES REAL ESTATE ASSETS SL se compromete a adoptar las medidas técnicas y organizativas necesarias, acorde al nivel de riesgos que acompañan los tratamientos realizados por éstas e indicados en el apartado de los términos y condiciones de uso, de forma que garanticen su integridad, confidencialidad y disponibilidad.
 
Asimismo, APROPERTIES REAL ESTATE ASSETS SL informa que en el caso que el Usuario introduzca datos en los formularios de los sitios web de terceros, serán estos últimos los responsables de los datos de carácter personal, y quienes deberán adoptar las medidas técnicas descritas en el siguiente apartado.

DERECHOS DE LOS INTERESADOS

APROPERTIES REAL ESTATE ASSETS S.L. informa a los Usuarios que, podrá ejercer los derechos  de acceso, rectificación, limitación, supresión, portabilidad y oposición al tratamiento de sus datos de carácter personal ante el Responsable del Tratamiento, así como a la retirada del consentimiento prestado. 

  • Derecho de Acceso: Es el derecho del usuario a obtener información sobre sus datos concretos de carácter personal y del tratamiento que se haya realizado o realice, así como de la información disponible sobre el origen de dichos datos y las comunicaciones realizadas o previstas de los mismos. 
  • Derecho de Rectificación: Es el derecho del afectado a que se modifiquen los datos que resulten ser inexactos o incompletos. Sólo podrá satisfacerse en relación a aquella información que se encuentre bajo el control de la APP, por ejemplo, eliminar comentarios publicados en la propia página, imágenes o contenidos web donde consten datos de carácter personal del usuario. 
  • Derecho a la Limitación de tratamiento: Es el derecho a que se limiten los fines del tratamiento previstos de forma original por el responsable del tratamiento. 
  • Derecho de Supresión: Es el derecho a suprimir los datos de carácter personal del usuario, a excepción de lo previsto en el propio RGPD o en otras normativas aplicables que determinen la obligatoriedad de la conservación de los mismos, en tiempo y forma. 
  • Derecho de portabilidad: El derecho a recibir los datos personales que el usuario, haya facilitado, en un formato estructurado, de uso común y lectura mecánica, y a transmitirlos a otro responsable. 
  • Derecho de Oposición: Es el derecho del usuario a que no se lleve a cabo el tratamiento de sus datos de carácter personal o se cese el tratamiento de los mismos por parte de la APP. 

Para poder ejercer cualquiera de los derechos descritos anteriormente deberá cumplir con los siguientes requisitos: 

- Presentación de un escrito a la dirección indicada en la parte superior de esta (a la atención de APROPERTIES REAL ESTATE ASSETS S.L.) o bien a través de correo electrónico a [email protected]

- El escrito remitido por el titular de los datos que solicite el ejercicio deberá de cumplir los siguientes requisitos legales:

  • Nombre, apellidos del interesado y copia del DNI/NIE o cualquier documento identificativo. En los excepcionales casos en que se admita la representación, será también necesaria la identificación por el mismo medio de la persona que le representa, así como el documento acreditativo de la representación. La fotocopia del DNI podrá ser sustituida siempre que se acredite la identidad por cualquier otro medio válido en derecho. 
  • Petición en que se concreta la solicitud. (Ejercicio en el que se solicita la información a la que se quiere acceder). Si no hace referencia a un fichero concreto se le facilitará toda la información que se tenga con sus datos de carácter personal. Si solicita información de un fichero en concreto, sólo la información de este fichero. Si solicita información relativa a un tercero nunca se podrá facilitar. Si lo solicita por teléfono se le indicará que lo haga por escrito y se le informará de cómo lo puede hacer y la dirección a la que tiene que enviarlo. Nunca se le dará información por teléfono. 
  • Domicilio a efectos de notificaciones. 
  • Fecha y firma del solicitante. 
  • Documentos acreditativos de la petición que formula. 
  • El interesado debe utilizar cualquier medio que permita acreditar el envío y la recepción de la solicitud. 

Por último, le informamos que Usted tiene derecho a presentar una reclamación ante la Agencia Española de  Protección de Datos en caso de que tenga conocimiento o considere que un hecho pueda suponer un  incumplimiento de la normativa aplicable en materia de protección de datos.

APROPERTIES REAL ESTATE ASSETS S.L. se compromete a adoptar las medidas técnicas y organizativas  necesarias, acorde al nivel de riesgos que acompañan los tratamientos realizados por éstas e indicados en el  apartado de los términos y condiciones de uso, de forma que garanticen su integridad, confidencialidad y disponibilidad.

POLÍTICA DE REDES SOCIALES

De conformidad con lo establecido en la normativa vigente y aplicable de protección de datos de carácter  personal y la Ley 34/2002, de 11 de julio, de Servicios de la Sociedad de la Información y de Comercio  Electrónico (LSSI-CE), APROPERTIES REAL ESTATE ASSETS S.L. informa a los usuarios, que ha procedido a  crear un perfil en la/s Red/es Social/es Facebook, Instagram, Linkedin y YouTube, con la finalidad principal de  publicitar sus productos y servicios. 

El usuario dispone de un perfil en la misma Red Social y ha decidido unirse a la página creada por  APROPERTIES REAL ESTATE ASSETS S.L., mostrando así interés en la información que se publicite en la  Red. Al unirse a nuestra página, nos facilita su consentimiento para el tratamiento de aquellos datos personales  publicados en su perfil. 

El usuario puede acceder en todo momento a las políticas de privacidad de la propia Red Social, así como  configurar su perfil para garantizar su privacidad. 

APROPERTIES REAL ESTATE ASSETS S.L. tiene acceso y trata aquella información pública del usuario, en  especial, su nombre de contacto. Estos datos, sólo son utilizados dentro de la propia Red Social. No son  incorporados a ningún sistema de tratamiento. 

Derechos de los interesados 

En relación a los acceso, rectificación, limitación de tratamiento, supresión, portabilidad y oposición al tratamiento  de sus datos de carácter personal, de los que usted dispone y que pueden ser ejercitados ante APROPERTIES  REAL ESTATE ASSETS S.L., de acuerdo con la RGPD, debe tener en cuenta los siguientes matices: 

  • Derecho de Acceso: Es el derecho del usuario a obtener información sobre sus datos concretos de carácter personal y del tratamiento que se haya realizado o realice, así como de la información disponible sobre el origen de dichos datos y las comunicaciones realizadas o previstas de los mismos. 
  • Derecho de Rectificación: Es el derecho del afectado a que se modifiquen los datos que resulten ser inexactos o incompletos. Sólo podrá satisfacerse en relación a aquella información que se encuentre bajo el control de APROPERTIES REAL ESTATE ASSETS S.L., por ejemplo, eliminar comentarios publicados en la propia página, imágenes o contenidos web donde consten datos de carácter personal del usuario. 
  • Derecho a la Limitación de tratamiento: Es el derecho a que se limiten los fines del tratamiento previstos de forma original por el responsable del tratamiento. 
  • Derecho de Supresión: Es el derecho a suprimir los datos de carácter personal del usuario, a excepción de lo previsto en el propio RGPD o en otras normativas aplicables que determinen la obligatoriedad de la conservación de los mismos, en tiempo y forma. 
  • Derecho de portabilidad: El derecho a recibir los datos personales que el usuario, haya facilitado, en un formato estructurado, de uso común y lectura mecánica, y a transmitirlos a otro responsable. 
  • Derecho de Oposición: Es el derecho del usuario a que no se lleve a cabo el tratamiento de sus datos de carácter personal o se cese el tratamiento de los mismos por parte de APROPERTIES REAL ESTATE ASSETS S.L.. 

APROPERTIES REAL ESTATE ASSETS S.L. realizará las siguientes actuaciones: 

  • Acceso a la información pública del perfil. 
  • Publicación en el perfil del usuario de toda aquella información ya publicada en la página de APROPERTIES REAL ESTATE ASSETS S.L..
  • Enviar mensajes personales e individuales a través de los canales de la Red Social. 
  • Actualizaciones del estado de la página que se publicarán en el perfil del usuario. 

El usuario siempre puede controlar sus conexiones, eliminar los contenidos que dejen de interesarle y restringir  con quién comparte sus conexiones, para ello deberá acceder a su configuración de privacidad. 

Publicaciones 

El usuario, una vez unido a la página de APROPERTIES REAL ESTATE ASSETS S.L., podrá publicar en ésta  última comentarios, enlaces, imágenes o fotografías o cualquier otro tipo de contenido multimedia soportado por  la Red Social. El usuario, en todos los casos, debe ser el titular de los mismos, gozar de los derechos de autor y  de propiedad intelectual o contar con el consentimiento de los terceros afectados. Se prohíbe expresamente  cualquier publicación en la página, ya sean textos, gráficos, fotografías, vídeos, etc. que atenten o sean  susceptibles de atentar contra la moral, la ética, el buen gusto o el decoro, y/o que infrinjan, violen o quebranten  los derechos de propiedad intelectual o industrial, el derecho a la imagen o la Ley. En estos casos,  APROPERTIES REAL ESTATE ASSETS S.L. se reserva el derecho a retirar de inmediato el contenido,  pudiendo solicitar el bloqueo permanente del usuario. 

APROPERTIES REAL ESTATE ASSETS S.L. no se hará responsable de los contenidos que libremente ha  publicado un usuario. 

El usuario debe tener presente que sus publicaciones serán conocidas por los otros usuarios, por lo que él  mismo es el principal responsable de su privacidad. 

Las imágenes que puedan publicarse en la página no serán almacenadas en ningún sistema de tratamiento por  parte de APROPERTIES REAL ESTATE ASSETS S.L., pero sí que permanecerán en la Red Social. 

Concursos y promociones 

APROPERTIES REAL ESTATE ASSETS S.L. se reserva el derecho a realizar concursos y promociones, en los  que podrá participar el usuario unido a su página. Las bases de cada uno de ellos, cuando se utilice para ello la  plataforma de la Red Social, serán publicadas en la misma. Cumpliendo siempre con la LSSI-CE y con cualquier  otra norma que le sea de aplicación. 

La Red Social no patrocina, avala ni administra, de modo alguno, ninguna de nuestras promociones, ni está  asociada a ninguna de ellas.

Publicidad 

APROPERTIES REAL ESTATE ASSETS S.L. utilizará la Red Social para publicitar sus productos y servicios, en  todo caso, si decide tratar sus datos de contacto para realizar acciones directas de prospección comercial, será  siempre, cumpliendo con las exigencias legales del RGPD y de la LSSI-CE. 

No se considerará publicidad el hecho de recomendar a otros usuarios la página de APROPERTIES REAL  ESTATE ASSETS S.L. para que también ellos puedan disfrutar de las promociones o estar informados de su  actividad. 

A continuación detallamos el enlace a la política de privacidad de la Red Social: 

ÚLTIMA ACTUALIZACIÓN: 21 de enero de 2022.

Utilizamos cookies propias y de terceros para hacer funcionar de manera segura nuestra página web y personalizar su contenido. Igualmente, utilizamos cookies para medir y obtener datos de la navegación que realiza y para ajustar la publicidad a sus gustos y preferencias. Pulse el botón "Aceptar todas" para confirmar que ha leído y aceptado la información presentada. Para administrar o deshabilitar estas cookies haga click en "Configuración". Puede obtener más información en nuestra política de cookies.
Modificar cookies
Técnicas y funcionales Siempre activas
Este sitio web utiliza Cookies propias para recopilar información con la finalidad de mejorar nuestros servicios. Si continua navegando, supone la aceptación de la instalación de las mismas. El usuario tiene la posibilidad de configurar su navegador pudiendo, si así lo desea, impedir que sean instaladas en su disco duro, aunque deberá tener en cuenta que dicha acción podrá ocasionar dificultades de navegación de la página web.
Analíticas y personalización
Permiten realizar el seguimiento y análisis del comportamiento de los usuarios de este sitio web. La información recogida mediante este tipo de cookies se utiliza en la medición de la actividad de la web para la elaboración de perfiles de navegación de los usuarios con el fin de introducir mejoras en función del análisis de los datos de uso que hacen los usuarios del servicio. Permiten guardar la información de preferencia del usuario para mejorar la calidad de nuestros servicios y para ofrecer una mejor experiencia a través de productos recomendados.
Marketing y publicidad
Estas cookies son utilizadas para almacenar información sobre las preferencias y elecciones personales del usuario a través de la observación continuada de sus hábitos de navegación. Gracias a ellas, podemos conocer los hábitos de navegación en el sitio web y mostrar publicidad relacionada con el perfil de navegación del usuario.