Casas adosadas en venta con jardin privado en Esporles

AUTÉNTICO DISEÑO MALLORQUÍN Y AMPLIAS ZONAS COMUNES CON PISCINA

Superficie
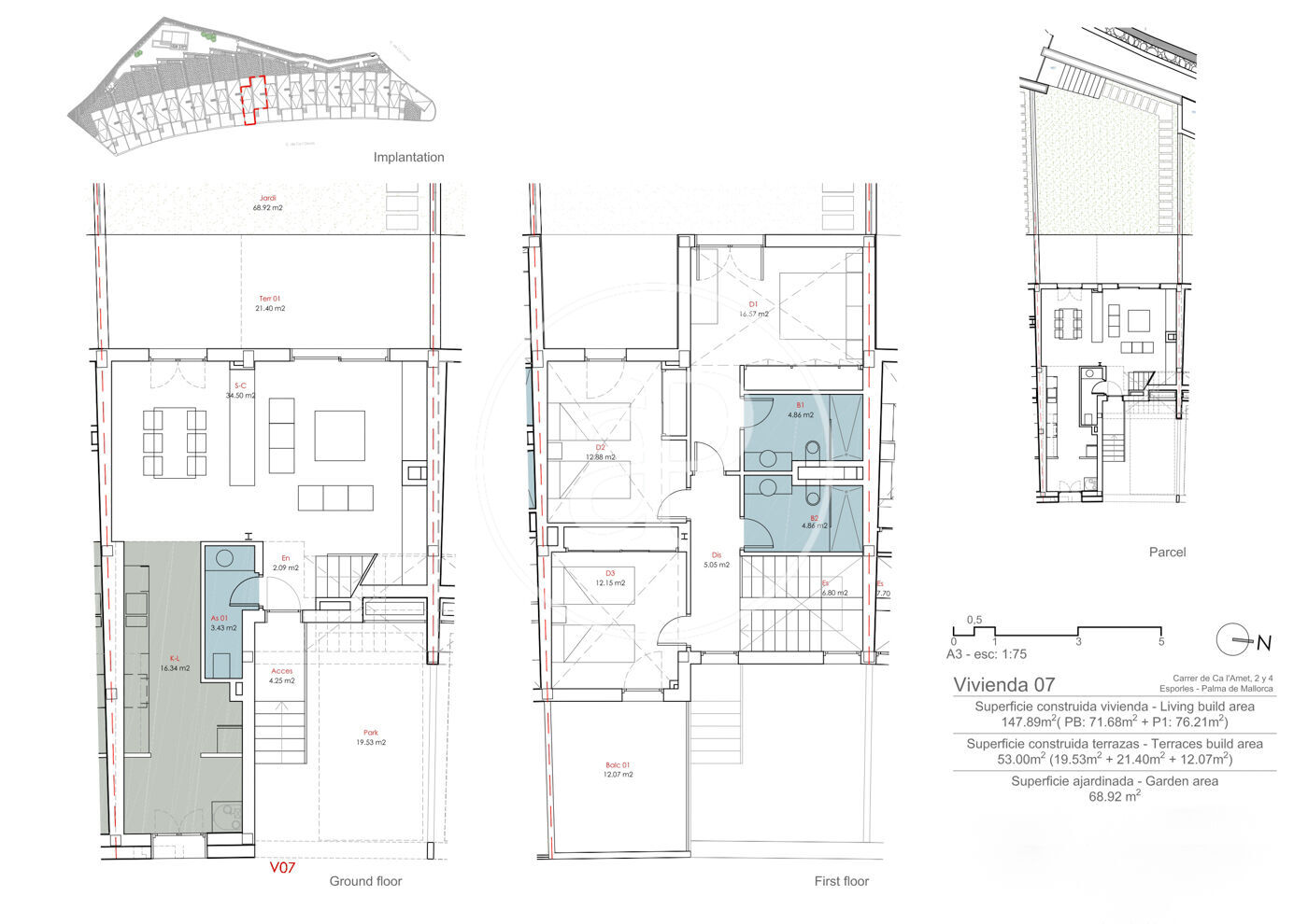
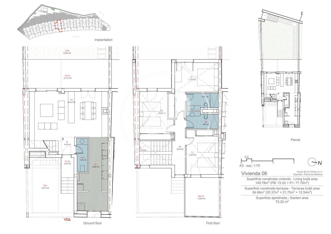
142m2 - 166m2
Unidades
3
Finalización
Q1 2026
Obra nueva
Precio desde 795.000 €

¿te ha gustado? Contacta con nosotros

  • He leído y acepto la condiciones de uso

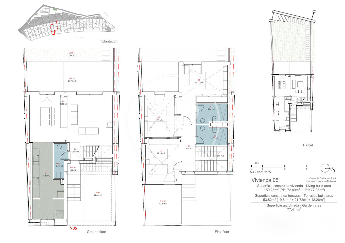
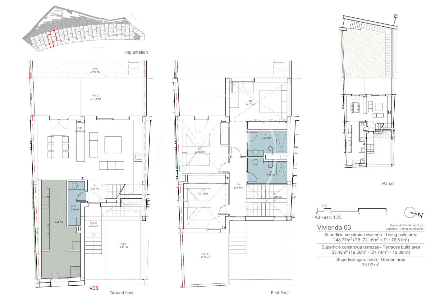
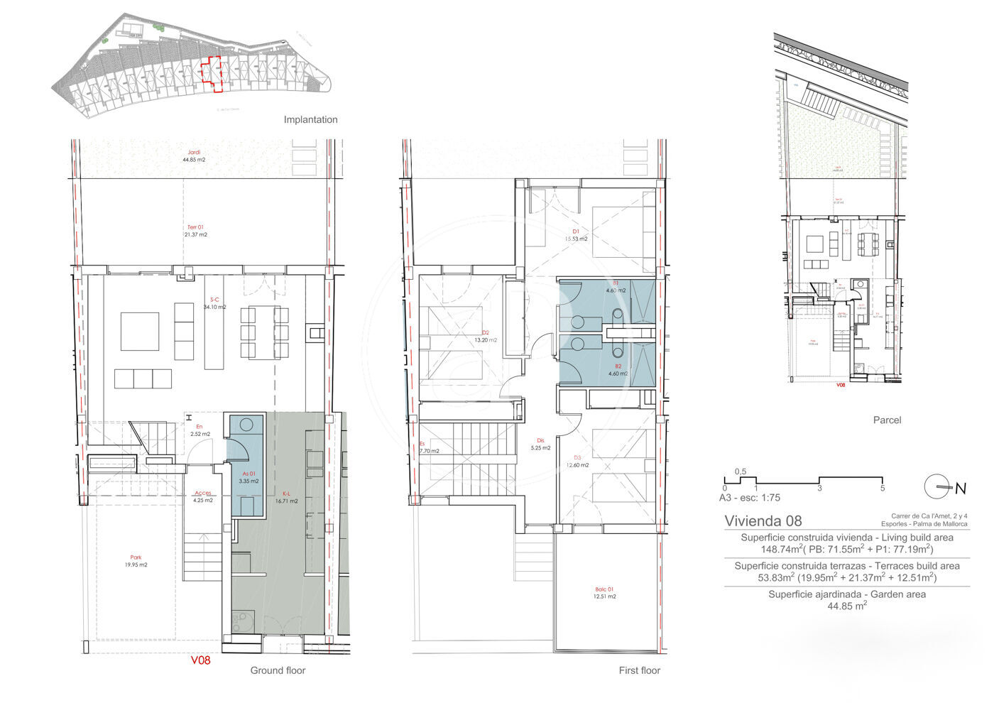
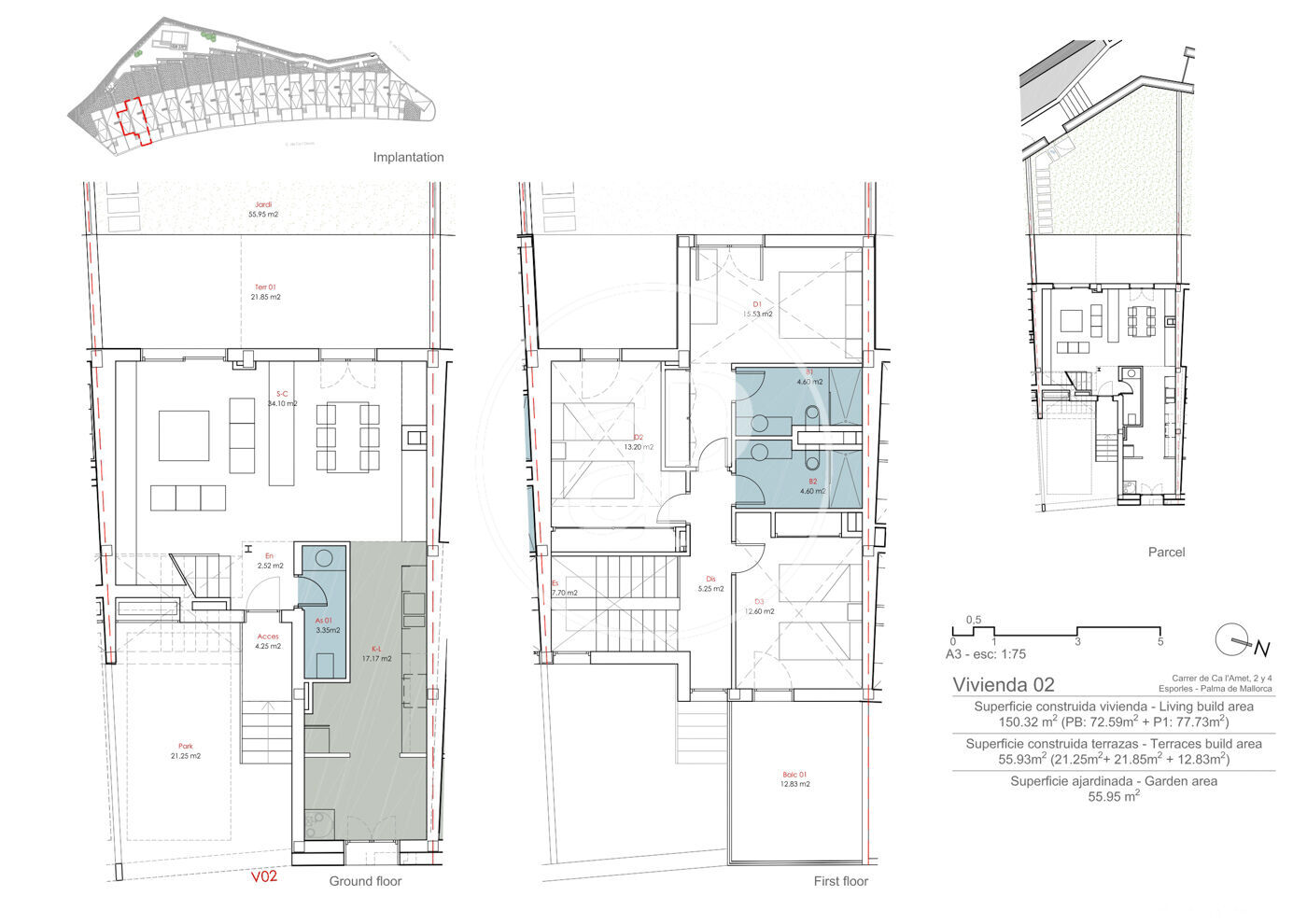
Unidades en esta promoción
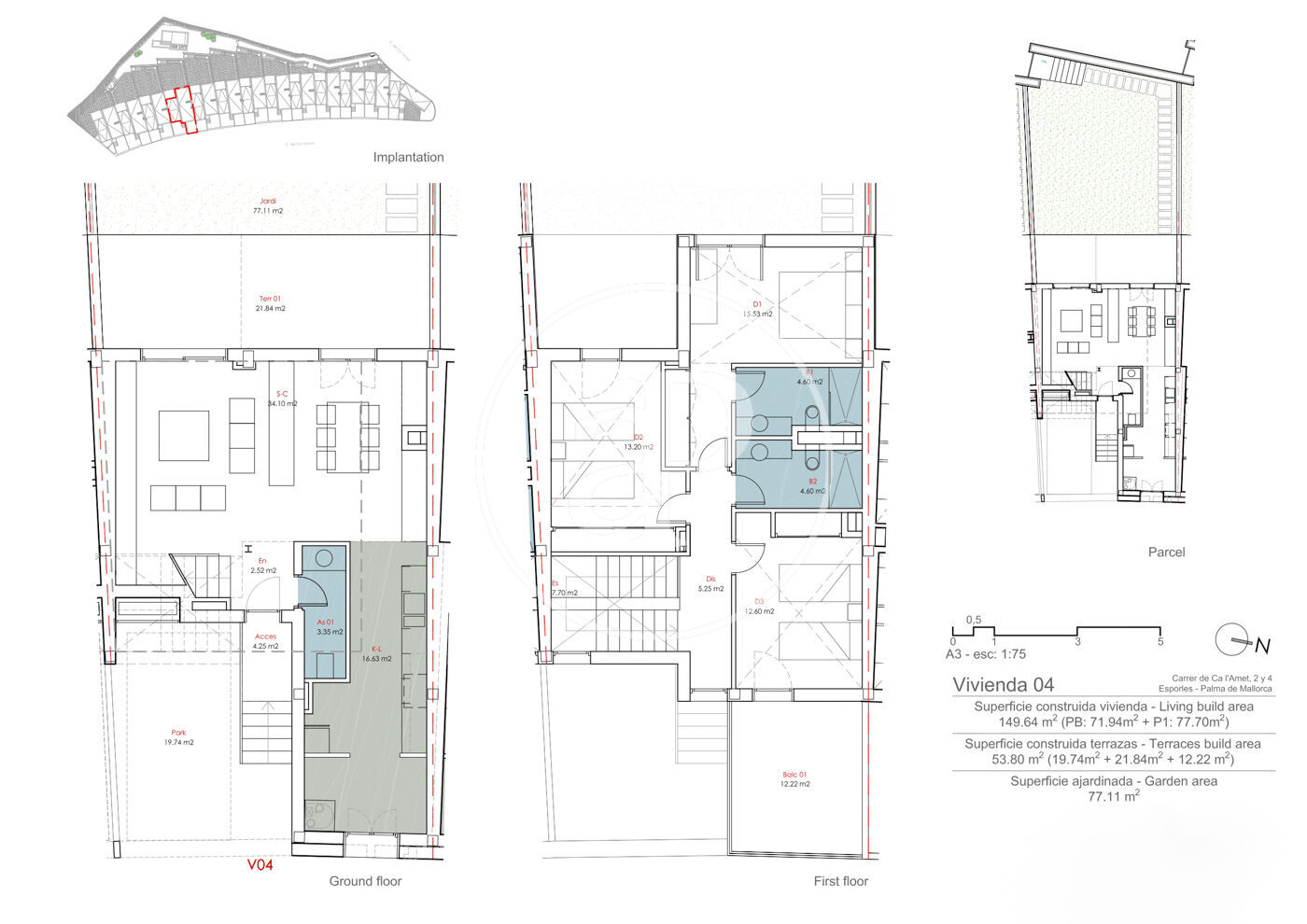
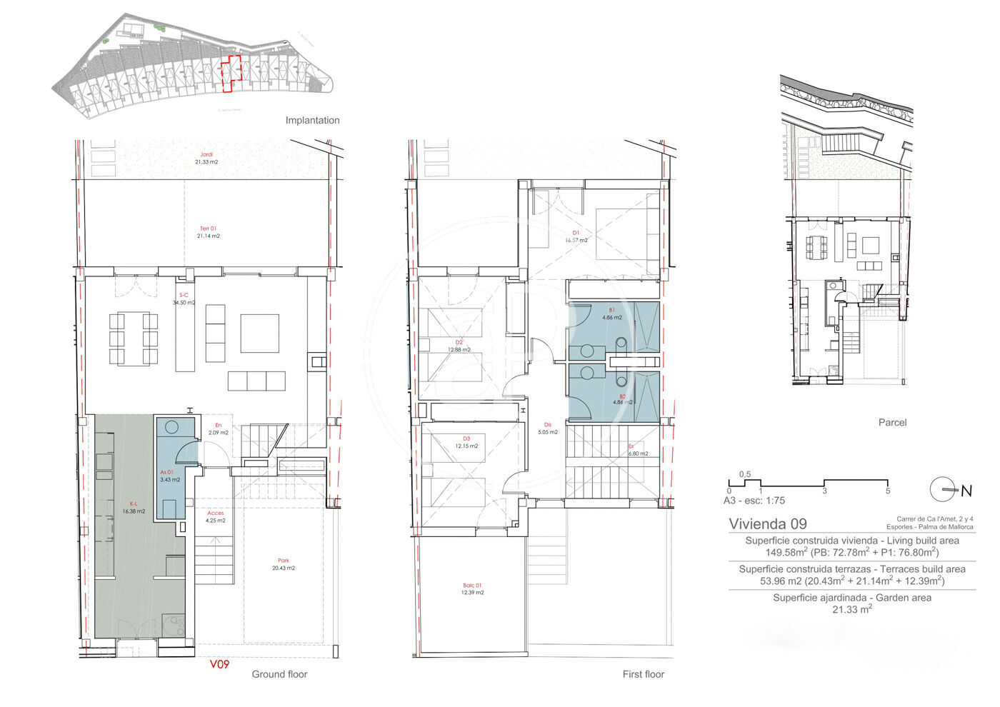
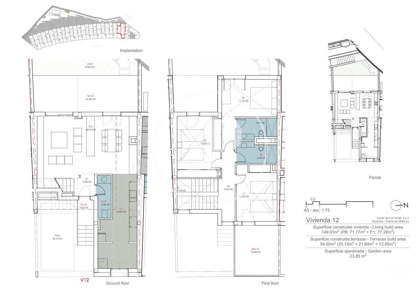
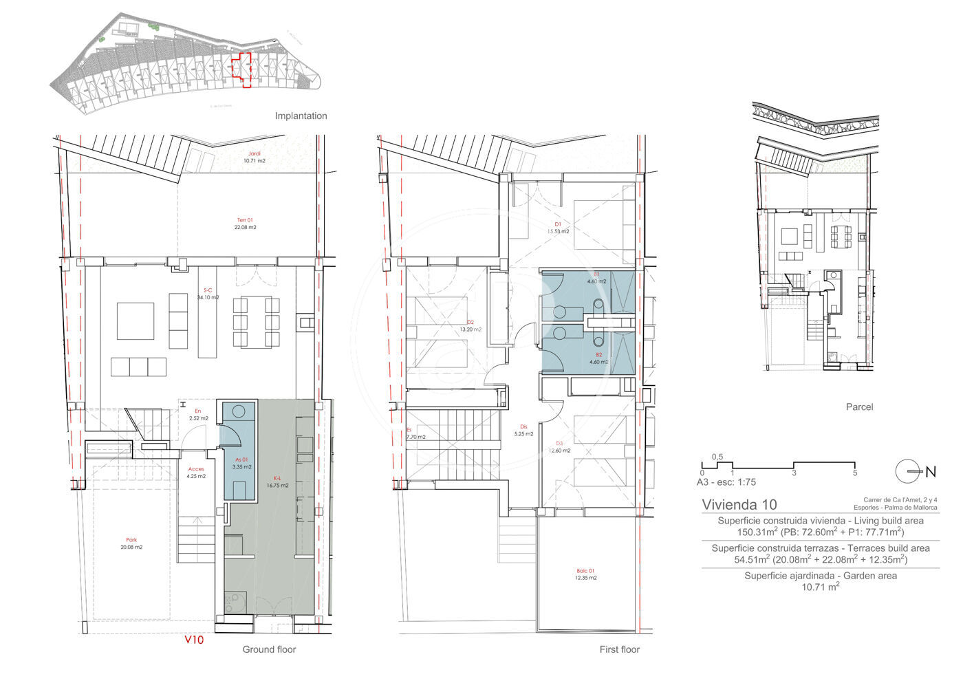
TipoSuperficieTerrazaDormitoriosBañosPrecioEstadoPDF
Casa142 m237 m233845.000 €DisponibleDownload PDF
Casa149,50 m233 m233865.000 €DisponibleDownload PDF
Casa148 m234 m233795.000 €DisponibleDownload PDF

Es Voltor es un exclusivo proyecto de 10 casas adosadas de dos plantas, diseñadas con auténtico estilo mallorquín. Cada vivienda cuenta con 3 dormitorios, 2 baños (uno en suite) y un aseo. Ofrecen amplios salones-comedor con acceso a terrazas privadas, cocinas completamente equipadas, con fecha de entrega prevista para marzo de 2026.

La zona de día destaca por su amplio salón-comedor de concepto abierto, que conecta con la terraza orientada al suroeste, creando un espacio luminoso y acogedor. Las cocinas, totalmente amuebladas, están equipadas con electrodomésticos de primera calidad de la marca Siemens o similar, incluyendo horno, placa de inducción y campana extractora.

En la zona de noche, los dormitorios están diseñados para el máximo confort. La habitación principal dispone de baño en suite con acabados de lujo, como muebles suspendidos de madera y grifería empotrada de la marca Tres. Los baños están equipados con duchas de plato a nivel, lo que aporta un diseño moderno y funcional.

Las viviendas cuentan con amplias terrazas y jardines privados, con acceso directo a la zona comunitaria, que incluye jardines y una piscina. Las terrazas exteriores están revestidas con baldosa porcelánica antideslizante de la marca Saloni. Además, todas las estancias disponen de calefacción por suelo radiante, lo que garantiza un ambiente confortable todo el año. Cada vivienda incluye una plaza de aparcamiento privada con acceso independiente.

Ubicadas en una tranquila zona residencial de Mallorca, estas casas ofrecen un entorno natural y relajado, con fácil acceso a servicios, playas y puntos de interés. El diseño de la promoción respeta la arquitectura tradicional, combinando la tranquilidad del entorno con la modernidad y el confort.

¡No dejes pasar esta oportunidad! Contacta con nosotros para más información y asegura tu nueva vivienda en Es Voltor antes de que se agoten las unidades disponibles.

¿Te imaginas vivir aquí?

Acerca de Esporles

Esporles es una localidad y municipio español de Mallorca. Compuesto por 5000 habitantes, es uno de los pueblos de montaña de la Serra Tramuntana a 20 minutos en coche del centro de Palma. Esporlas es famoso por su manantial natural y suministro de agua, por lo que la zona es muy conocida por su agricultura.

Propiedades vistas recientemente

Piso en alquiler
Alquilada
AB2504044-1
2.100 €

Piso en alquiler en El Gotic

El Gòtic, Barcelona ciudad
DISPONIBILIDAD INMEDIATA! A escasos metros de las emblemáticas plazas Sant Jaume y Sant Miquel, se encuentra este elegante piso reformado de 90 m², un hogar donde el encanto histórico se fusiona con el confort moderno. Al entrar, un acogedor recibidor nos guía hacia la luminosa zona de día, donde la cocina americana, totalmente equipada con electrodomésticos de alta gama, se integra a la perfección con el amplio salón-comedor. Desde aquí, se accede a un encantador balcón, ideal para disfrutar de la vida en el corazón de Barcelona. En la zona de noche, ubicada al otro extremo de la vivienda, encontramos tres espaciosos dormitorios dobles, todos exteriores y equipados con armarios empotrados, además de salida a un segundo balcón. La propiedad cuenta con dos baños completos con plato de ducha, uno de ellos en suite, diseñados con un estilo contemporáneo y materiales de alta calidad. La reforma ha respetado el carácter original del piso, conservando la carpintería tradicional de las ventanas, a la vez que incorpora suelos de parquet, aire acondicionado por split en todas las estancias y acabados de primer nivel. Se sitúa en la primera planta (segunda real) de un edificio con ascensor. Ubicado en el vibrante barrio Gótico, este hogar está rodeado de majestuosos edificios históricos, tiendas con encanto y mercados tradicionales. A pocos minutos de Plaza Catalunya y el Teatro del Liceu, disfruta de una excelente conexión con el resto de la ciudad. Un espacio único para vivir Barcelona con estilo y comodidad. EL PISO SE ENTREGA CON MUEBLES NUEVOS Y TOTALMENTE REFORMADO! La finalidad del contrato es temporal.* En cumplimiento de la Ley 12/2023 y la Llei 18/2007 informamos que:Índice de R.P.LL: 14,00 € / m2 Precio de referencia estatal 1.205,00 €Renta último contrato de arrendamiento: 2.300,00 €Este propietario ostenta la condición de gran tenedor.
Superficie 114 m2
Dormitorios 3
Baños 2
2.100 €
Casa en venta
VPM2307029
1.785.000 €

Casa en venta en Santa Ponça

Santa Ponsa, Mallorca
¡Bienvenidos a esta hermosa propiedad en una exclusiva zona residencial! Esta parcela esquinera elevada de aproximadamente 1.350 m² ofrece una experiencia de vida única con una superficie construida de 305 m², todo en una planta para mejor comodidad. Al ingresar a esta impresionante propiedad, serás recibido por una amplia sala de estar que te brindará una sensación de amplitud y luminosidad. Además, podrás disfrutar de un comedor y una cocina totalmente equipada, ideal para deleitarse con tus platillos favoritos… La casa cuenta con 4 dormitorios y 4 baños, siendo 3 de ellos en suite para que tú y tus invitados disfruten de privacidad e intimidad en todo momento. La terraza parcialmente cubierta te permitirá deleitarte con el entorno, disfrutando del sol y las vistas panorámicas al mar y a la montaña, ideal para pasar momentos inolvidables con familiares y amigos. Además, esta propiedad ofrece un sótano que se puede convertir en un apartamento de invitados, estudio, gimnasio o cualquier otro espacio adicional que desees. También, existe la posibilidad de ampliar la casa con una planta superior (proyecto aceptado por las autoridades). Ubicada a tan solo 5 minutos en coche del centro de Santa Ponsa, tendrás todo al alcance de tu mano, desde tiendas hasta restaurantes y comercios diversos. Los aficionados de golf estarán encantados con la proximidad de campos de renombre, mientras que los amantes de la playa disfrutarán de la cercanía a las mejores playas de la región. El aeropuerto está a solo 20 minutos en coche, lo que te permite tener destinaciones de tu elección a tu alcance. ¡Esta es una oportunidad única para adquirir tu propio paraíso mediterráneo en una ubicación privilegiada! ¡Te imaginas vivir aquí!
Superficie 305 m2
Parcela 1.370 m2
Dormitorios 4
Baños 3
1.785.000 €
Piso en venta
VB2504059
Precio a consultar

Piso en venta en Via Laietana

El Born, Barcelona ciudad
Ubicado en la emblemática Via Laietana, este espectacular piso de 143m2 construidos se presenta como una joya en el corazón de la ciudad.   El inmueble se encuentra en una finca regia, con conserje y mantenimiento disponible 24h al día.  La distribución del piso ha sido cuidadosamente diseñada para cada espacio, comenzando por un amplio salón comedor de 40m2 que crea un ambiente acogedor y lleno de elegancia.  La cocina, equipada con electrodomésticos de alta gama se integra de forma armónica con la zona social, invita a disfrutar la vida en un entorno moderno, mientras que la abertura a dos balcones permite deleitarse con la tranquilidad de una calle lateral, enmarcando el dinamismo urbano de la zona.  Cada detalle de este inmueble denota calidad y sofisticación. El piso destaca por sus cuatro habitaciones dobles cada una pensada para ofrecer confort y privacidad. La principal se distingue por contar con un vestidor y baño en suite, que se convierten en un refugio privado para el descanso y el bienestar.  El segundo baño completo, finamente acabado con mármol, complementa de manera armónica la funcionalidad de la vivienda. Las instalaciones de aire acondicionado y calefacción por conductos aseguran un clima perfecto durante todo el año, mientras que los suelos de parquet y la carpintería de doble cristal subrayan el compromiso con la excelencia y el buen gusto.  El piso se vende amueblado y está listo para entrar a vivir, ofreciendo un estilo de vida exclusivo en uno de los barrios más vibrantes de la ciudad.  Para más información y para concertar una visita no dudes en ponerte en contacto con nosotros. 
Superficie 143 m2
Dormitorios 4
Baños 2
Precio a consultar
Piso en alquiler
Alquilada
AB2504061-1
2.950 €

Piso en alquiler en Carrer Amigó

Sant Gervasi - Galvany, Barcelona ciudad
Espectacular piso con terraza, situado en Carrer Amigó, totalmente reformado y semi-amueblado, en una finca del 1965. La propiedad se distribuye en una sola planta de 106 m2 útiles que dispone entrada directa al salón-comedor muy luminoso  gracias a su orientación este y su salida directa a 14 m2 de terraza. En la zona de día, junto al salón-comedor, encontramos la cocina, amplia, totalmente equipada con nevera, lavavajillas, lavadora, secadora y microondas, así como la zona de aguas. La zona de noche, la componen cuatro dormitorios; dos dobles y dos individuales grandes. Dos habitaciones exteriores y dos interiores. La vivienda tiene dos baños completos, uno con plato de ducha y el otro con bañera. El piso dispone de aire acondicionado y calefacción de gas por radiadores, acabados de gran calidad, ventanales de aluminio con doble acristalamiento, cámara anti-sonido y variación térmica, luces led, armarios empotrados y suelos de parquet. La finca, de carácter familiar, ofrece también servicio de conserjería y ascensor. Una pieza única ubicada en uno de los mejores barrios de Barcelona, a una calle del Turó Park, Avenida Diagonal, Plaza Francesc Macià y muy cerca también del maravilloso Mercado Galvany, rodeado de innumerables comercios, restaurantes y colegios de prestigio, se ubica esta vivienda de 114m2 con terraza y semi-amueblado. Vivienda temporal. Ideal para  familias y/o parejas. No apto para compartir. ¿Te imaginas vivir aquí? La finalidad del contrato es temporal.* En cumplimiento de la Ley 12/2023 y la Llei 18/2007 informamos que:Índice de R.P.LL: 15,06 € / m2 Precio de referencia estatal 1.284,00 €Renta último contrato de arrendamiento: 2.200,00 €
Superficie 128 m2
Dormitorios 4
Baños 2
2.950 €
Casa en venta
VMN2412018
1.795.000 €

Casa en venta en zona Arturo Soria

Canillas, Madrid Norte
Encantador chalet pareado junto al metro de Arturo Soria.  Esta luminosa vivienda se encuentra en un entorno ideal para disfrutar de la tranquilidad y la privacidad.  La parcela de 252 m² cuenta con un amplio jardín de más de 100 m², una piscina de 21 m² útiles, césped, árboles y plantas naturales con años de antigüedad.  La vivienda tiene 353 m² construidos según catastro y 312 m² útiles, destacando por su luminosidad, tranquilidad y espacios abiertos.  Con una estructura de acero, sin columnas interiores, esta propiedad ofrece la posibilidad de redistribución y reforma.  Además, cuenta con un sistema de calefacción y aire acondicionado eficiente mediante una bomba de calor aire/aire Daikin con conductos.  En la planta baja, se encuentra un amplio salón, comedor, zona de estar con chimenea, aseo de invitados y una cocina dividida en dos partes, una zona de cocinado y otra singular con mirador acristalado que da al jardín.  La primera planta consta de un amplio dormitorio principal con baño en suite, dos dormitorios y otro cuarto de baño.  La segunda planta alberga una zona de teletrabajo, dos dormitorios y dos terrazas con vistas espectaculares.  El sótano de 88 m², con un patio inglés de 16 m², ofrece una amplia zona diáfana para juegos, gimnasio, fiestas, cuarto de lavado/plancha y trastero.  Este chalet pareado ofrece 5 habitaciones, 4 baños, terrazas, aire acondicionado, jardín y piscina.  Construido en 1992, se encuentra en una de las zonas más prestigiosas y lujosas de Madrid, en Arturo Soria, con una estupenda localización próxima al centro urbano y a todos los servicios. Además, está muy bien comunicado, cerca de autovías, metro, y diversas líneas de autobús. En las inmediaciones se encuentran centros educativos, centros de salud, parques, equipamientos deportivos, supermercados, farmacias, hospitales y centros comerciales.  No pierdas la oportunidad de disfrutar de esta maravillosa propiedad. Contáctanos para agendar una visita y descubrir la casa de tus sueños.  ¿Te imaginas vivir aquí?
Superficie 325 m2
Dormitorios 5
Baños 4
1.795.000 €
x

DATOS DEL PROPIETARIO DE LA WEB

  • RAZÓN SOCIAL: APROPERTIES REAL ESTATE ASSETS SL
  • NIF: B66207879
  • DIRECCIÓN  POSTAL: PASSEIG DE GRACIA 85 PLANTA 8 08008, BARCELONA
  • DIRECCIÓN ELECTRÓNICA: [email protected] 
  • OBJETO PRINCIPAL: PLATAFORMA INMOBILIARIA

De conformidad con la normativa vigente y aplicable en protección de datos de carácter personal, le informamos  que sus datos serán incorporados al sistema de tratamiento titularidad de APROPERTIES REAL ESTATE  ASSETS SL. con NIF B66207879 y domicilio social sito en PASSEIG DE GRACIA 85 PLANTA 8 08008,  BARCELONA, y que a continuación se relacionan sus respectivas finalidades, plazos de conservación y bases  legitimadoras. Para aquellos tratamientos que lo requieran, se informa también de la posible elaboración de  perfiles y decisiones automatizadas, así como las posibles cesiones y las transferencias internacionales que  APROPERTIES REAL ESTATE ASSETS S.L. tiene previsto realizar: 

TRATAMIENTOS REALIZADOS

Gestión de la página web

  • Finalidad: Tratamiento y gestión de los datos necesarios para la funcionalidad de la página  web 
  • Plazo de conservación: mientras perdure el consentimiento prestado  
  • Base legítima: El consentimiento del interesado 
  • Tipología de Datos: Datos meramente identificativos 
  • Cesiones: No se prevén 
  • Transferencias internacionales: No se prevén 
  • Elaboraciones de perfiles: No se prevén

Formulario contacto y cotización

  • Finalidad: Atender sus consultas y/o solicitudes 
  • Plazo de conservación: mientras se mantenga el consentimiento prestado. Base legítima: El consentimiento del interesado 
  • Tipología de Datos: Datos meramente identificativos 
  • Cesiones: Ninguna 
  • Transferencias internacionales: No se prevén 
  • Elaboraciones de perfiles: No se prevén

Gestión del cumplimiento normativo

  • Finalidad: Gestión y tramitación de las obligaciones y deberes que se deriven del  cumplimiento de la normativa a la cual está sujeta la entidad 
  • Plazo de conservación: conservación de las copias de los documentos hasta que  prescriban las acciones para reclamarle una posible responsabilidad 
  • Base legítima: El cumplimiento de una ley 
  • Tipología de Datos: Datos meramente identificativos 
  • Cesiones: sus datos serán comunicados en caso de ser necesario a Organismos y/o  administración pública con competencia en la materia con la finalidad de cumplir con las  obligaciones establecidas en la normativa aplicable. Además, se informa que la base  legitimadora de la cesión es cumplir con las obligaciones establecidas en la normativa  aplicable 
  • Transferencias internacionales: No se prevén 
  • Elaboraciones de perfiles: No se prevén

Acciones Comerciales

  • Finalidad: Captación, registro y tratamiento de datos con finalidades de publicidad y  prospección comercial de nuestros productos y/o servicios 
  • Plazo de conservación: mientras se mantenga el consentimiento prestado Base legítima: El consentimiento del interesado 
  • Tipología de Datos: Datos meramente identificativos 
  • Cesiones: Ninguna 
  • Transferencias internacionales: No se prevén 
  • Elaboraciones de perfiles: No se prevén

Gestión Bolsa de empleo

  • Finalidad: Registro y tratamiento de datos de candidatos para finalidades de selección de  personal referentes a puestos de trabajo vacantes de las entidades colaboradoras y gestión  de la bolsa de empleo 
  • Plazo de conservación: mientras perdure el consentimiento prestado 
  • Base legítima: El consentimiento del interesado 
  • Tipología de Datos: Datos meramente identificativos 
  • Cesiones: sus datos serán comunicados en caso de ser necesario a Entidades  Colaboradoras con la finalidad de gestionar la bolsa de empleo y trasladar la candidatura a  la empresa colaboradora. Además, se informa que la base legitimadora de la cesión es su  consentimiento 
  • Transferencias internacionales: No se prevén 
  • Elaboraciones de perfiles: No se prevén

GESTIÓN DE DATOS

De acuerdo con lo establecido por el Reglamento (UE) 2016/679 del Parlamento Europeo y del Consejo, de 27 de abril de 2016, relativo a la protección de las personas físicas en lo que respecta al tratamiento de datos personales y a la libre circulación de estos datos y por el que se deroga la Directiva 95/46/CE, APROPERTIES REAL ESTATE ASSETS SL informa al Usuario en relación a los sitios web www.aproperties.es y derivados (en adelante, sitios web), que la información que se pueda recabar en los sitios web se incorporará en los sistemas de tratamiento responsabilidad de APROPERTIES REAL ESTATE ASSETS SL, con las finalidades de realizar la gestión y el mantenimiento de la relación con el Usuario con los sitios web, así como las labores de información, estadística, y comercialización de los servicios y de las actividades relacionadas con los mismos.

APROPERTIES REAL ESTATE ASSETS SL informa de que la base legítima que ampara los tratamientos indicados es la existencia de un interés legítimo, asimismo en cuanto a la instalación de cookies se encuentran legitimados en la existencia del consentimiento prestado por parte de los interesados o, en su caso, de los representantes legales de los mismos.

  • APROPERTIES REAL ESTATE ASSETS SL informa de que los datos serán conservados mientras perdure el consentimiento prestado por el Usuario, exceptuando aquellos casos en los que estemos obligados legalmente a su conservación.
  • De acuerdo con los derechos que le confiere la normativa vigente en protección de datos, el Usuario podrá dirigirse a la Autoridad de Control competente para presentar la reclamación que considere oportuna, así como también podrá ejercer los derechos de acceso, rectificación, limitación de tratamiento, supresión, portabilidad y oposición al tratamiento de sus datos de carácter personal, así como a la retirada del consentimiento prestado para el tratamiento de los mismos.

De acuerdo con lo establecido por el artículo 32 del Reglamento (UE) 2016/679 del Parlamento Europeo y del Consejo, de 27 de abril de 2016, relativo a la protección de las personas físicas en lo que respecta al tratamiento de datos personales y a la libre circulación de estos datos y por el que se deroga la Directiva 95/46/CE, APROPERTIES REAL ESTATE ASSETS SL se compromete a adoptar las medidas técnicas y organizativas necesarias, acorde al nivel de riesgos que acompañan los tratamientos realizados por éstas e indicados en el apartado de los términos y condiciones de uso, de forma que garanticen su integridad, confidencialidad y disponibilidad.
 
Asimismo, APROPERTIES REAL ESTATE ASSETS SL informa que en el caso que el Usuario introduzca datos en los formularios de los sitios web de terceros, serán estos últimos los responsables de los datos de carácter personal, y quienes deberán adoptar las medidas técnicas descritas en el siguiente apartado.

DERECHOS DE LOS INTERESADOS

APROPERTIES REAL ESTATE ASSETS S.L. informa a los Usuarios que, podrá ejercer los derechos  de acceso, rectificación, limitación, supresión, portabilidad y oposición al tratamiento de sus datos de carácter personal ante el Responsable del Tratamiento, así como a la retirada del consentimiento prestado. 

  • Derecho de Acceso: Es el derecho del usuario a obtener información sobre sus datos concretos de carácter personal y del tratamiento que se haya realizado o realice, así como de la información disponible sobre el origen de dichos datos y las comunicaciones realizadas o previstas de los mismos. 
  • Derecho de Rectificación: Es el derecho del afectado a que se modifiquen los datos que resulten ser inexactos o incompletos. Sólo podrá satisfacerse en relación a aquella información que se encuentre bajo el control de la APP, por ejemplo, eliminar comentarios publicados en la propia página, imágenes o contenidos web donde consten datos de carácter personal del usuario. 
  • Derecho a la Limitación de tratamiento: Es el derecho a que se limiten los fines del tratamiento previstos de forma original por el responsable del tratamiento. 
  • Derecho de Supresión: Es el derecho a suprimir los datos de carácter personal del usuario, a excepción de lo previsto en el propio RGPD o en otras normativas aplicables que determinen la obligatoriedad de la conservación de los mismos, en tiempo y forma. 
  • Derecho de portabilidad: El derecho a recibir los datos personales que el usuario, haya facilitado, en un formato estructurado, de uso común y lectura mecánica, y a transmitirlos a otro responsable. 
  • Derecho de Oposición: Es el derecho del usuario a que no se lleve a cabo el tratamiento de sus datos de carácter personal o se cese el tratamiento de los mismos por parte de la APP. 

Para poder ejercer cualquiera de los derechos descritos anteriormente deberá cumplir con los siguientes requisitos: 

- Presentación de un escrito a la dirección indicada en la parte superior de esta (a la atención de APROPERTIES REAL ESTATE ASSETS S.L.) o bien a través de correo electrónico a [email protected]

- El escrito remitido por el titular de los datos que solicite el ejercicio deberá de cumplir los siguientes requisitos legales:

  • Nombre, apellidos del interesado y copia del DNI/NIE o cualquier documento identificativo. En los excepcionales casos en que se admita la representación, será también necesaria la identificación por el mismo medio de la persona que le representa, así como el documento acreditativo de la representación. La fotocopia del DNI podrá ser sustituida siempre que se acredite la identidad por cualquier otro medio válido en derecho. 
  • Petición en que se concreta la solicitud. (Ejercicio en el que se solicita la información a la que se quiere acceder). Si no hace referencia a un fichero concreto se le facilitará toda la información que se tenga con sus datos de carácter personal. Si solicita información de un fichero en concreto, sólo la información de este fichero. Si solicita información relativa a un tercero nunca se podrá facilitar. Si lo solicita por teléfono se le indicará que lo haga por escrito y se le informará de cómo lo puede hacer y la dirección a la que tiene que enviarlo. Nunca se le dará información por teléfono. 
  • Domicilio a efectos de notificaciones. 
  • Fecha y firma del solicitante. 
  • Documentos acreditativos de la petición que formula. 
  • El interesado debe utilizar cualquier medio que permita acreditar el envío y la recepción de la solicitud. 

Por último, le informamos que Usted tiene derecho a presentar una reclamación ante la Agencia Española de  Protección de Datos en caso de que tenga conocimiento o considere que un hecho pueda suponer un  incumplimiento de la normativa aplicable en materia de protección de datos.

APROPERTIES REAL ESTATE ASSETS S.L. se compromete a adoptar las medidas técnicas y organizativas  necesarias, acorde al nivel de riesgos que acompañan los tratamientos realizados por éstas e indicados en el  apartado de los términos y condiciones de uso, de forma que garanticen su integridad, confidencialidad y disponibilidad.

POLÍTICA DE REDES SOCIALES

De conformidad con lo establecido en la normativa vigente y aplicable de protección de datos de carácter  personal y la Ley 34/2002, de 11 de julio, de Servicios de la Sociedad de la Información y de Comercio  Electrónico (LSSI-CE), APROPERTIES REAL ESTATE ASSETS S.L. informa a los usuarios, que ha procedido a  crear un perfil en la/s Red/es Social/es Facebook, Instagram, Linkedin y YouTube, con la finalidad principal de  publicitar sus productos y servicios. 

El usuario dispone de un perfil en la misma Red Social y ha decidido unirse a la página creada por  APROPERTIES REAL ESTATE ASSETS S.L., mostrando así interés en la información que se publicite en la  Red. Al unirse a nuestra página, nos facilita su consentimiento para el tratamiento de aquellos datos personales  publicados en su perfil. 

El usuario puede acceder en todo momento a las políticas de privacidad de la propia Red Social, así como  configurar su perfil para garantizar su privacidad. 

APROPERTIES REAL ESTATE ASSETS S.L. tiene acceso y trata aquella información pública del usuario, en  especial, su nombre de contacto. Estos datos, sólo son utilizados dentro de la propia Red Social. No son  incorporados a ningún sistema de tratamiento. 

Derechos de los interesados 

En relación a los acceso, rectificación, limitación de tratamiento, supresión, portabilidad y oposición al tratamiento  de sus datos de carácter personal, de los que usted dispone y que pueden ser ejercitados ante APROPERTIES  REAL ESTATE ASSETS S.L., de acuerdo con la RGPD, debe tener en cuenta los siguientes matices: 

  • Derecho de Acceso: Es el derecho del usuario a obtener información sobre sus datos concretos de carácter personal y del tratamiento que se haya realizado o realice, así como de la información disponible sobre el origen de dichos datos y las comunicaciones realizadas o previstas de los mismos. 
  • Derecho de Rectificación: Es el derecho del afectado a que se modifiquen los datos que resulten ser inexactos o incompletos. Sólo podrá satisfacerse en relación a aquella información que se encuentre bajo el control de APROPERTIES REAL ESTATE ASSETS S.L., por ejemplo, eliminar comentarios publicados en la propia página, imágenes o contenidos web donde consten datos de carácter personal del usuario. 
  • Derecho a la Limitación de tratamiento: Es el derecho a que se limiten los fines del tratamiento previstos de forma original por el responsable del tratamiento. 
  • Derecho de Supresión: Es el derecho a suprimir los datos de carácter personal del usuario, a excepción de lo previsto en el propio RGPD o en otras normativas aplicables que determinen la obligatoriedad de la conservación de los mismos, en tiempo y forma. 
  • Derecho de portabilidad: El derecho a recibir los datos personales que el usuario, haya facilitado, en un formato estructurado, de uso común y lectura mecánica, y a transmitirlos a otro responsable. 
  • Derecho de Oposición: Es el derecho del usuario a que no se lleve a cabo el tratamiento de sus datos de carácter personal o se cese el tratamiento de los mismos por parte de APROPERTIES REAL ESTATE ASSETS S.L.. 

APROPERTIES REAL ESTATE ASSETS S.L. realizará las siguientes actuaciones: 

  • Acceso a la información pública del perfil. 
  • Publicación en el perfil del usuario de toda aquella información ya publicada en la página de APROPERTIES REAL ESTATE ASSETS S.L..
  • Enviar mensajes personales e individuales a través de los canales de la Red Social. 
  • Actualizaciones del estado de la página que se publicarán en el perfil del usuario. 

El usuario siempre puede controlar sus conexiones, eliminar los contenidos que dejen de interesarle y restringir  con quién comparte sus conexiones, para ello deberá acceder a su configuración de privacidad. 

Publicaciones 

El usuario, una vez unido a la página de APROPERTIES REAL ESTATE ASSETS S.L., podrá publicar en ésta  última comentarios, enlaces, imágenes o fotografías o cualquier otro tipo de contenido multimedia soportado por  la Red Social. El usuario, en todos los casos, debe ser el titular de los mismos, gozar de los derechos de autor y  de propiedad intelectual o contar con el consentimiento de los terceros afectados. Se prohíbe expresamente  cualquier publicación en la página, ya sean textos, gráficos, fotografías, vídeos, etc. que atenten o sean  susceptibles de atentar contra la moral, la ética, el buen gusto o el decoro, y/o que infrinjan, violen o quebranten  los derechos de propiedad intelectual o industrial, el derecho a la imagen o la Ley. En estos casos,  APROPERTIES REAL ESTATE ASSETS S.L. se reserva el derecho a retirar de inmediato el contenido,  pudiendo solicitar el bloqueo permanente del usuario. 

APROPERTIES REAL ESTATE ASSETS S.L. no se hará responsable de los contenidos que libremente ha  publicado un usuario. 

El usuario debe tener presente que sus publicaciones serán conocidas por los otros usuarios, por lo que él  mismo es el principal responsable de su privacidad. 

Las imágenes que puedan publicarse en la página no serán almacenadas en ningún sistema de tratamiento por  parte de APROPERTIES REAL ESTATE ASSETS S.L., pero sí que permanecerán en la Red Social. 

Concursos y promociones 

APROPERTIES REAL ESTATE ASSETS S.L. se reserva el derecho a realizar concursos y promociones, en los  que podrá participar el usuario unido a su página. Las bases de cada uno de ellos, cuando se utilice para ello la  plataforma de la Red Social, serán publicadas en la misma. Cumpliendo siempre con la LSSI-CE y con cualquier  otra norma que le sea de aplicación. 

La Red Social no patrocina, avala ni administra, de modo alguno, ninguna de nuestras promociones, ni está  asociada a ninguna de ellas.

Publicidad 

APROPERTIES REAL ESTATE ASSETS S.L. utilizará la Red Social para publicitar sus productos y servicios, en  todo caso, si decide tratar sus datos de contacto para realizar acciones directas de prospección comercial, será  siempre, cumpliendo con las exigencias legales del RGPD y de la LSSI-CE. 

No se considerará publicidad el hecho de recomendar a otros usuarios la página de APROPERTIES REAL  ESTATE ASSETS S.L. para que también ellos puedan disfrutar de las promociones o estar informados de su  actividad. 

A continuación detallamos el enlace a la política de privacidad de la Red Social: 

ÚLTIMA ACTUALIZACIÓN: 21 de enero de 2022.

Utilizamos cookies propias y de terceros para hacer funcionar de manera segura nuestra página web y personalizar su contenido. Igualmente, utilizamos cookies para medir y obtener datos de la navegación que realiza y para ajustar la publicidad a sus gustos y preferencias. Pulse el botón "Aceptar todas" para confirmar que ha leído y aceptado la información presentada. Para administrar o deshabilitar estas cookies haga click en "Configuración". Puede obtener más información en nuestra política de cookies.
Modificar cookies
Técnicas y funcionales Siempre activas
Este sitio web utiliza Cookies propias para recopilar información con la finalidad de mejorar nuestros servicios. Si continua navegando, supone la aceptación de la instalación de las mismas. El usuario tiene la posibilidad de configurar su navegador pudiendo, si así lo desea, impedir que sean instaladas en su disco duro, aunque deberá tener en cuenta que dicha acción podrá ocasionar dificultades de navegación de la página web.
Analíticas y personalización
Permiten realizar el seguimiento y análisis del comportamiento de los usuarios de este sitio web. La información recogida mediante este tipo de cookies se utiliza en la medición de la actividad de la web para la elaboración de perfiles de navegación de los usuarios con el fin de introducir mejoras en función del análisis de los datos de uso que hacen los usuarios del servicio. Permiten guardar la información de preferencia del usuario para mejorar la calidad de nuestros servicios y para ofrecer una mejor experiencia a través de productos recomendados.
Marketing y publicidad
Estas cookies son utilizadas para almacenar información sobre las preferencias y elecciones personales del usuario a través de la observación continuada de sus hábitos de navegación. Gracias a ellas, podemos conocer los hábitos de navegación en el sitio web y mostrar publicidad relacionada con el perfil de navegación del usuario.