Appartement à vendre avec vues à Malasaña - Universidad (Madrid)

Surface
231 m²
Chambres
3
Salles de bain
3
Appartement en vente
1.990.000 €

Vous aimez? Contactez-nous

  • J'ai lu et j'accepte les conditions d'utilisation

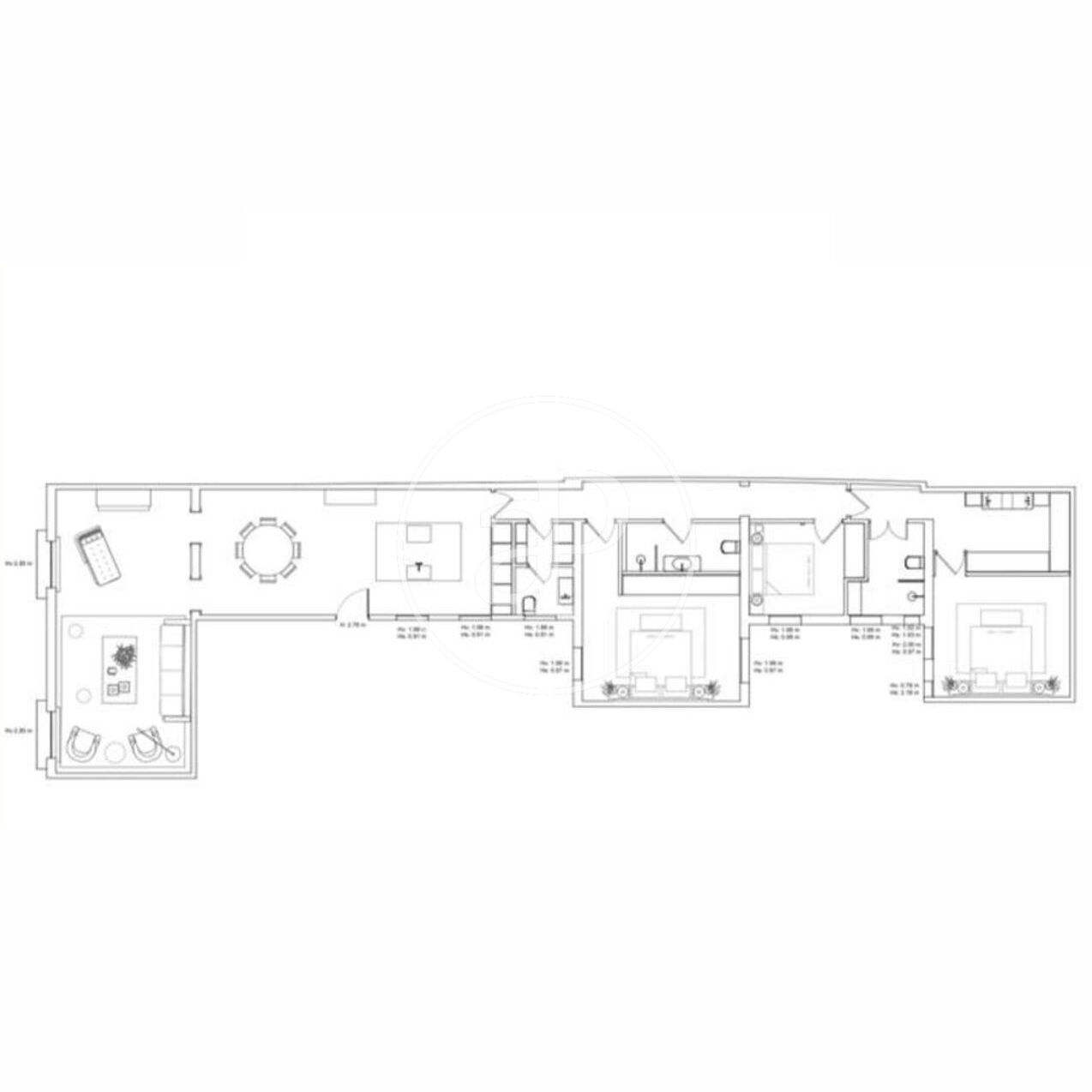
Appartement meublée de 231 m2 avec vues dans la région de Malasaña - Universidad, Madrid.

La propriété dispose de 3 chambres, 2 salles de bain, climatisation, armoires intégrées, balcon et chauffage.

  • Caractéristiques
  • Vues
  • Chauffage
  • Meublé
  • Aacc
  • Ascenseur
Certificat énergétique
Consommation d'énergie:
E
138.00 Kw h/m² an
    Émissions:
    E
    34.00 Co/m² an
Plus efficace Moins efficace Classe énergétique Consommation d'énergie Kw h/m² an Émissions Co/m² an 138.00 34.00

à propos de Malasaña - Universidad

Le district universitaire (à l’origine connu sous le nom de Barrio de Maravillas) est un quartier du quartier Centro offrant une atmosphère et une vie nocturne très variées. Certains experts sont venus le comparer avec le Camden Town de Londres ou le Bairro Alto de Lisbonne.

En raison de son emplacement stratégique entre les quartiers de Chueca et d'Argull; elles, ses rues se sont concentrées en grande partie sur les mouvements de Madrid Movida des années 70 et 80. Très bien connecté, c'est une bonne option pour les étudiants comme pour les adultes et les post-universitaires.

Propriétés regardées récemment

Appartement en vente
VPM2504010
2.600.000 €

Penthouse de luxe avec piscines privées à vendre à Cala Major

Cala Mayor, Mallorca
Opportunité unique d'acquérir un penthouse de luxe de haute qualité avec 2 piscines privées et une terrasse sur le toit avec une vue inégalée sur la mer dans un emplacement de choix. Un ascenseur vous emmène directement du garage à votre maison de rêve et à votre style de vie, qui ne laisse vraiment rien à désirer. Le salon lumineux avec accès direct à la première des deux piscines privées à débordement et à la première terrasse offre l'endroit idéal pour des réunions sociables ainsi que pour des couchers de soleil romantiques dont vous ne pouviez que rêver auparavant. Tout s'améliore un étage plus haut, sur le toit-terrasse privé, avec une vue panoramique spectaculaire et une autre piscine à débordement au design époustouflant : vivre et expérimenter n'a jamais été aussi beau. De retour à l'étage principal, vous trouverez la chambre principale magnifiquement conçue avec une élégante salle de bains attenante de la plus haute qualité et un dressing spacieux. Deux autres chambres avec de grandes fenêtres offrent des vues à couper le souffle et beaucoup d'espace pour votre famille ou vos invités. Le chauffage par le sol parfaitement conçu avec contrôle individuel du niveau de la pièce et l'élégante cuisine d'angle, incluse dans le prix d'achat, offrent une sensation de confort très spéciale tout au long de l'année. Cette maison de rêve est complétée par un autre espace piscine qui ne laisse rien à désirer et offre l'endroit idéal pour se détendre au sein de la communauté. La propriété est accessible par deux routes différentes, ce qui offre une commodité supplémentaire considérable, et le système d'interphone de haute qualité comprend également un système de caméra. L'espace de stationnement est généreux et comprend une salle de stockage qui est également incluse dans le prix. Un joyau incomparable dans un emplacement de choix qui combine la ville, la plage et les délices culinaires et satisfait tous les désirs au plus haut niveau. La plage de Cala Mayor avec ses eaux cristallines n'est qu'à quelques minutes de marche et sur le chemin vous trouverez de nombreux restaurants et cafés pour une pause agréable ainsi que des magasins, des pharmacies et divers services. Il y a également plusieurs écoles internationales dans les environs immédiats et les clubs de golf et courts de tennis renommés ne sont qu'à quelques minutes. Êtes-vous prêt à vivre ce rêve méditerranéen exclusif ? Nous sommes également à votre disposition pour des visites vidéo.
Surface 128 m2
Chambres 3
Salles de bain 2
2.600.000 €
Maison en vente
VBM2510001
998.000 €

Maison de luxe à Argentona

Argentona
Aproperties présente cette spectaculaire propriété avec vue sur la mer et la montagne, située à Argentona, à seulement 5 minutes du centre-ville et à 30 minutes de Barcelone. Édifiée sur un terrain de 1 110 m², cette maison allie espace, intimité et tranquillité, tout en étant proche de tous les services essentiels. De style méditerranéen rustique, la maison se distingue par une élégante façade en pierre naturelle, des toitures en tuiles en céramique et des porches à arcs rappelant l’architecture catalane et provençale. À l’intérieur, poutres en bois apparentes, sols en terre cuite et grandes fenêtres créent une atmosphère chaleureuse et accueillante, alliant tradition et modernité avec des finitions de haute qualité. Répartie sur deux niveaux, la maison propose des espaces spacieux, fonctionnels et lumineux. Le rez-de-chaussée comprend un vaste salon-salle à manger avec cheminée, donnant accès directement au porche et à la piscine. La cuisine office, entièrement équipée, dispose d’un garde-manger, d’une buanderie et d’un accès à un impressionnant espace barbecue avec un four zamorano, idéal pour les réunions. Ce niveau comprend également deux chambres d’amis, une salle de bain complète et un grand garage avec une pièce supplémentaire pouvant accueillir un WC. Une charmante cave à vin complète ce niveau. À l’étage supérieur, cinq chambres dont une salle polyvalente avec accès à un solarium et vue spectaculaire. La suite parentale dispose d’un accès extérieur, d’un dressing en chêne et d’une salle de bains privative. Trois autres chambres doubles très lumineuses et une salle de bains supplémentaire complètent cet étage. La propriété se distingue par ses finitions haut de gamme : chauffage au fioul, climatisation gainable, système domotique, portes en bois massif, menuiserie Technal à double vitrage, sols en terre cuite catalane artisanale et bois tchèque. L’éclairage a été soigneusement conçu avec des lumières thermorégulées et des détails décoratifs en céramique et fer forgé français. À l’extérieur, le jardin paysager a été soigneusement conçu avec un système d’arrosage automatique à faible consommation et des plantes autochtones comme le romarin, le thym, le laurier, les chênes verts et les chênes rouges d’Amérique. La piscine, orientée vers un environnement naturel, offre un véritable havre de paix et d’intimité. Située au cœur du Maresme, une région réputée pour sa qualité de vie, son climat méditerranéen et sa connectivité, cette propriété se trouve près de Mataró et d’écoles internationales renommées, dont la future British School of Barcelona à Cabrera de Mar.
Surface 495 m2
Parcelle 1.110 m2
Chambres 7
Salles de bain 5
998.000 €
x

DATOS DEL PROPIETARIO DE LA WEB

  • RAZÓN SOCIAL: APROPERTIES REAL ESTATE ASSETS SL
  • NIF: B66207879
  • DIRECCIÓN  POSTAL: PASSEIG DE GRACIA 85 PLANTA 8 08008, BARCELONA
  • DIRECCIÓN ELECTRÓNICA: [email protected] 
  • OBJETO PRINCIPAL: PLATAFORMA INMOBILIARIA

De conformidad con la normativa vigente y aplicable en protección de datos de carácter personal, le informamos  que sus datos serán incorporados al sistema de tratamiento titularidad de APROPERTIES REAL ESTATE  ASSETS SL. con NIF B66207879 y domicilio social sito en PASSEIG DE GRACIA 85 PLANTA 8 08008,  BARCELONA, y que a continuación se relacionan sus respectivas finalidades, plazos de conservación y bases  legitimadoras. Para aquellos tratamientos que lo requieran, se informa también de la posible elaboración de  perfiles y decisiones automatizadas, así como las posibles cesiones y las transferencias internacionales que  APROPERTIES REAL ESTATE ASSETS S.L. tiene previsto realizar: 

TRATAMIENTOS REALIZADOS

Gestión de la página web

  • Finalidad: Tratamiento y gestión de los datos necesarios para la funcionalidad de la página  web 
  • Plazo de conservación: mientras perdure el consentimiento prestado  
  • Base legítima: El consentimiento del interesado 
  • Tipología de Datos: Datos meramente identificativos 
  • Cesiones: No se prevén 
  • Transferencias internacionales: No se prevén 
  • Elaboraciones de perfiles: No se prevén

Formulario contacto y cotización

  • Finalidad: Atender sus consultas y/o solicitudes 
  • Plazo de conservación: mientras se mantenga el consentimiento prestado. Base legítima: El consentimiento del interesado 
  • Tipología de Datos: Datos meramente identificativos 
  • Cesiones: Ninguna 
  • Transferencias internacionales: No se prevén 
  • Elaboraciones de perfiles: No se prevén

Gestión del cumplimiento normativo

  • Finalidad: Gestión y tramitación de las obligaciones y deberes que se deriven del  cumplimiento de la normativa a la cual está sujeta la entidad 
  • Plazo de conservación: conservación de las copias de los documentos hasta que  prescriban las acciones para reclamarle una posible responsabilidad 
  • Base legítima: El cumplimiento de una ley 
  • Tipología de Datos: Datos meramente identificativos 
  • Cesiones: sus datos serán comunicados en caso de ser necesario a Organismos y/o  administración pública con competencia en la materia con la finalidad de cumplir con las  obligaciones establecidas en la normativa aplicable. Además, se informa que la base  legitimadora de la cesión es cumplir con las obligaciones establecidas en la normativa  aplicable 
  • Transferencias internacionales: No se prevén 
  • Elaboraciones de perfiles: No se prevén

Acciones Comerciales

  • Finalidad: Captación, registro y tratamiento de datos con finalidades de publicidad y  prospección comercial de nuestros productos y/o servicios 
  • Plazo de conservación: mientras se mantenga el consentimiento prestado Base legítima: El consentimiento del interesado 
  • Tipología de Datos: Datos meramente identificativos 
  • Cesiones: Ninguna 
  • Transferencias internacionales: No se prevén 
  • Elaboraciones de perfiles: No se prevén

Gestión Bolsa de empleo

  • Finalidad: Registro y tratamiento de datos de candidatos para finalidades de selección de  personal referentes a puestos de trabajo vacantes de las entidades colaboradoras y gestión  de la bolsa de empleo 
  • Plazo de conservación: mientras perdure el consentimiento prestado 
  • Base legítima: El consentimiento del interesado 
  • Tipología de Datos: Datos meramente identificativos 
  • Cesiones: sus datos serán comunicados en caso de ser necesario a Entidades  Colaboradoras con la finalidad de gestionar la bolsa de empleo y trasladar la candidatura a  la empresa colaboradora. Además, se informa que la base legitimadora de la cesión es su  consentimiento 
  • Transferencias internacionales: No se prevén 
  • Elaboraciones de perfiles: No se prevén

GESTIÓN DE DATOS

De acuerdo con lo establecido por el Reglamento (UE) 2016/679 del Parlamento Europeo y del Consejo, de 27 de abril de 2016, relativo a la protección de las personas físicas en lo que respecta al tratamiento de datos personales y a la libre circulación de estos datos y por el que se deroga la Directiva 95/46/CE, APROPERTIES REAL ESTATE ASSETS SL informa al Usuario en relación a los sitios web www.aproperties.es y derivados (en adelante, sitios web), que la información que se pueda recabar en los sitios web se incorporará en los sistemas de tratamiento responsabilidad de APROPERTIES REAL ESTATE ASSETS SL, con las finalidades de realizar la gestión y el mantenimiento de la relación con el Usuario con los sitios web, así como las labores de información, estadística, y comercialización de los servicios y de las actividades relacionadas con los mismos.

APROPERTIES REAL ESTATE ASSETS SL informa de que la base legítima que ampara los tratamientos indicados es la existencia de un interés legítimo, asimismo en cuanto a la instalación de cookies se encuentran legitimados en la existencia del consentimiento prestado por parte de los interesados o, en su caso, de los representantes legales de los mismos.

  • APROPERTIES REAL ESTATE ASSETS SL informa de que los datos serán conservados mientras perdure el consentimiento prestado por el Usuario, exceptuando aquellos casos en los que estemos obligados legalmente a su conservación.
  • De acuerdo con los derechos que le confiere la normativa vigente en protección de datos, el Usuario podrá dirigirse a la Autoridad de Control competente para presentar la reclamación que considere oportuna, así como también podrá ejercer los derechos de acceso, rectificación, limitación de tratamiento, supresión, portabilidad y oposición al tratamiento de sus datos de carácter personal, así como a la retirada del consentimiento prestado para el tratamiento de los mismos.

De acuerdo con lo establecido por el artículo 32 del Reglamento (UE) 2016/679 del Parlamento Europeo y del Consejo, de 27 de abril de 2016, relativo a la protección de las personas físicas en lo que respecta al tratamiento de datos personales y a la libre circulación de estos datos y por el que se deroga la Directiva 95/46/CE, APROPERTIES REAL ESTATE ASSETS SL se compromete a adoptar las medidas técnicas y organizativas necesarias, acorde al nivel de riesgos que acompañan los tratamientos realizados por éstas e indicados en el apartado de los términos y condiciones de uso, de forma que garanticen su integridad, confidencialidad y disponibilidad.
 
Asimismo, APROPERTIES REAL ESTATE ASSETS SL informa que en el caso que el Usuario introduzca datos en los formularios de los sitios web de terceros, serán estos últimos los responsables de los datos de carácter personal, y quienes deberán adoptar las medidas técnicas descritas en el siguiente apartado.

DERECHOS DE LOS INTERESADOS

APROPERTIES REAL ESTATE ASSETS S.L. informa a los Usuarios que, podrá ejercer los derechos  de acceso, rectificación, limitación, supresión, portabilidad y oposición al tratamiento de sus datos de carácter personal ante el Responsable del Tratamiento, así como a la retirada del consentimiento prestado. 

  • Derecho de Acceso: Es el derecho del usuario a obtener información sobre sus datos concretos de carácter personal y del tratamiento que se haya realizado o realice, así como de la información disponible sobre el origen de dichos datos y las comunicaciones realizadas o previstas de los mismos. 
  • Derecho de Rectificación: Es el derecho del afectado a que se modifiquen los datos que resulten ser inexactos o incompletos. Sólo podrá satisfacerse en relación a aquella información que se encuentre bajo el control de la APP, por ejemplo, eliminar comentarios publicados en la propia página, imágenes o contenidos web donde consten datos de carácter personal del usuario. 
  • Derecho a la Limitación de tratamiento: Es el derecho a que se limiten los fines del tratamiento previstos de forma original por el responsable del tratamiento. 
  • Derecho de Supresión: Es el derecho a suprimir los datos de carácter personal del usuario, a excepción de lo previsto en el propio RGPD o en otras normativas aplicables que determinen la obligatoriedad de la conservación de los mismos, en tiempo y forma. 
  • Derecho de portabilidad: El derecho a recibir los datos personales que el usuario, haya facilitado, en un formato estructurado, de uso común y lectura mecánica, y a transmitirlos a otro responsable. 
  • Derecho de Oposición: Es el derecho del usuario a que no se lleve a cabo el tratamiento de sus datos de carácter personal o se cese el tratamiento de los mismos por parte de la APP. 

Para poder ejercer cualquiera de los derechos descritos anteriormente deberá cumplir con los siguientes requisitos: 

- Presentación de un escrito a la dirección indicada en la parte superior de esta (a la atención de APROPERTIES REAL ESTATE ASSETS S.L.) o bien a través de correo electrónico a [email protected]

- El escrito remitido por el titular de los datos que solicite el ejercicio deberá de cumplir los siguientes requisitos legales:

  • Nombre, apellidos del interesado y copia del DNI/NIE o cualquier documento identificativo. En los excepcionales casos en que se admita la representación, será también necesaria la identificación por el mismo medio de la persona que le representa, así como el documento acreditativo de la representación. La fotocopia del DNI podrá ser sustituida siempre que se acredite la identidad por cualquier otro medio válido en derecho. 
  • Petición en que se concreta la solicitud. (Ejercicio en el que se solicita la información a la que se quiere acceder). Si no hace referencia a un fichero concreto se le facilitará toda la información que se tenga con sus datos de carácter personal. Si solicita información de un fichero en concreto, sólo la información de este fichero. Si solicita información relativa a un tercero nunca se podrá facilitar. Si lo solicita por teléfono se le indicará que lo haga por escrito y se le informará de cómo lo puede hacer y la dirección a la que tiene que enviarlo. Nunca se le dará información por teléfono. 
  • Domicilio a efectos de notificaciones. 
  • Fecha y firma del solicitante. 
  • Documentos acreditativos de la petición que formula. 
  • El interesado debe utilizar cualquier medio que permita acreditar el envío y la recepción de la solicitud. 

Por último, le informamos que Usted tiene derecho a presentar una reclamación ante la Agencia Española de  Protección de Datos en caso de que tenga conocimiento o considere que un hecho pueda suponer un  incumplimiento de la normativa aplicable en materia de protección de datos.

APROPERTIES REAL ESTATE ASSETS S.L. se compromete a adoptar las medidas técnicas y organizativas  necesarias, acorde al nivel de riesgos que acompañan los tratamientos realizados por éstas e indicados en el  apartado de los términos y condiciones de uso, de forma que garanticen su integridad, confidencialidad y disponibilidad.

POLÍTICA DE REDES SOCIALES

De conformidad con lo establecido en la normativa vigente y aplicable de protección de datos de carácter  personal y la Ley 34/2002, de 11 de julio, de Servicios de la Sociedad de la Información y de Comercio  Electrónico (LSSI-CE), APROPERTIES REAL ESTATE ASSETS S.L. informa a los usuarios, que ha procedido a  crear un perfil en la/s Red/es Social/es Facebook, Instagram, Linkedin y YouTube, con la finalidad principal de  publicitar sus productos y servicios. 

El usuario dispone de un perfil en la misma Red Social y ha decidido unirse a la página creada por  APROPERTIES REAL ESTATE ASSETS S.L., mostrando así interés en la información que se publicite en la  Red. Al unirse a nuestra página, nos facilita su consentimiento para el tratamiento de aquellos datos personales  publicados en su perfil. 

El usuario puede acceder en todo momento a las políticas de privacidad de la propia Red Social, así como  configurar su perfil para garantizar su privacidad. 

APROPERTIES REAL ESTATE ASSETS S.L. tiene acceso y trata aquella información pública del usuario, en  especial, su nombre de contacto. Estos datos, sólo son utilizados dentro de la propia Red Social. No son  incorporados a ningún sistema de tratamiento. 

Derechos de los interesados 

En relación a los acceso, rectificación, limitación de tratamiento, supresión, portabilidad y oposición al tratamiento  de sus datos de carácter personal, de los que usted dispone y que pueden ser ejercitados ante APROPERTIES  REAL ESTATE ASSETS S.L., de acuerdo con la RGPD, debe tener en cuenta los siguientes matices: 

  • Derecho de Acceso: Es el derecho del usuario a obtener información sobre sus datos concretos de carácter personal y del tratamiento que se haya realizado o realice, así como de la información disponible sobre el origen de dichos datos y las comunicaciones realizadas o previstas de los mismos. 
  • Derecho de Rectificación: Es el derecho del afectado a que se modifiquen los datos que resulten ser inexactos o incompletos. Sólo podrá satisfacerse en relación a aquella información que se encuentre bajo el control de APROPERTIES REAL ESTATE ASSETS S.L., por ejemplo, eliminar comentarios publicados en la propia página, imágenes o contenidos web donde consten datos de carácter personal del usuario. 
  • Derecho a la Limitación de tratamiento: Es el derecho a que se limiten los fines del tratamiento previstos de forma original por el responsable del tratamiento. 
  • Derecho de Supresión: Es el derecho a suprimir los datos de carácter personal del usuario, a excepción de lo previsto en el propio RGPD o en otras normativas aplicables que determinen la obligatoriedad de la conservación de los mismos, en tiempo y forma. 
  • Derecho de portabilidad: El derecho a recibir los datos personales que el usuario, haya facilitado, en un formato estructurado, de uso común y lectura mecánica, y a transmitirlos a otro responsable. 
  • Derecho de Oposición: Es el derecho del usuario a que no se lleve a cabo el tratamiento de sus datos de carácter personal o se cese el tratamiento de los mismos por parte de APROPERTIES REAL ESTATE ASSETS S.L.. 

APROPERTIES REAL ESTATE ASSETS S.L. realizará las siguientes actuaciones: 

  • Acceso a la información pública del perfil. 
  • Publicación en el perfil del usuario de toda aquella información ya publicada en la página de APROPERTIES REAL ESTATE ASSETS S.L..
  • Enviar mensajes personales e individuales a través de los canales de la Red Social. 
  • Actualizaciones del estado de la página que se publicarán en el perfil del usuario. 

El usuario siempre puede controlar sus conexiones, eliminar los contenidos que dejen de interesarle y restringir  con quién comparte sus conexiones, para ello deberá acceder a su configuración de privacidad. 

Publicaciones 

El usuario, una vez unido a la página de APROPERTIES REAL ESTATE ASSETS S.L., podrá publicar en ésta  última comentarios, enlaces, imágenes o fotografías o cualquier otro tipo de contenido multimedia soportado por  la Red Social. El usuario, en todos los casos, debe ser el titular de los mismos, gozar de los derechos de autor y  de propiedad intelectual o contar con el consentimiento de los terceros afectados. Se prohíbe expresamente  cualquier publicación en la página, ya sean textos, gráficos, fotografías, vídeos, etc. que atenten o sean  susceptibles de atentar contra la moral, la ética, el buen gusto o el decoro, y/o que infrinjan, violen o quebranten  los derechos de propiedad intelectual o industrial, el derecho a la imagen o la Ley. En estos casos,  APROPERTIES REAL ESTATE ASSETS S.L. se reserva el derecho a retirar de inmediato el contenido,  pudiendo solicitar el bloqueo permanente del usuario. 

APROPERTIES REAL ESTATE ASSETS S.L. no se hará responsable de los contenidos que libremente ha  publicado un usuario. 

El usuario debe tener presente que sus publicaciones serán conocidas por los otros usuarios, por lo que él  mismo es el principal responsable de su privacidad. 

Las imágenes que puedan publicarse en la página no serán almacenadas en ningún sistema de tratamiento por  parte de APROPERTIES REAL ESTATE ASSETS S.L., pero sí que permanecerán en la Red Social. 

Concursos y promociones 

APROPERTIES REAL ESTATE ASSETS S.L. se reserva el derecho a realizar concursos y promociones, en los  que podrá participar el usuario unido a su página. Las bases de cada uno de ellos, cuando se utilice para ello la  plataforma de la Red Social, serán publicadas en la misma. Cumpliendo siempre con la LSSI-CE y con cualquier  otra norma que le sea de aplicación. 

La Red Social no patrocina, avala ni administra, de modo alguno, ninguna de nuestras promociones, ni está  asociada a ninguna de ellas.

Publicidad 

APROPERTIES REAL ESTATE ASSETS S.L. utilizará la Red Social para publicitar sus productos y servicios, en  todo caso, si decide tratar sus datos de contacto para realizar acciones directas de prospección comercial, será  siempre, cumpliendo con las exigencias legales del RGPD y de la LSSI-CE. 

No se considerará publicidad el hecho de recomendar a otros usuarios la página de APROPERTIES REAL  ESTATE ASSETS S.L. para que también ellos puedan disfrutar de las promociones o estar informados de su  actividad. 

A continuación detallamos el enlace a la política de privacidad de la Red Social: 

ÚLTIMA ACTUALIZACIÓN: 21 de enero de 2022.

Nous utilisons nos propres cookies et ceux de tiers pour faire fonctionner notre site Web en toute sécurité et personnaliser son contenu. De même, nous utilisons des cookies pour mesurer et obtenir des données sur votre navigation et pour ajuster la publicité à vos goûts et préférences. Appuyez sur le bouton "Tout accepter" pour confirmer que vous avez lu et accepté les informations présentées. Pour gérer ou désactiver ces cookies, cliquez sur "Paramètres". Vous pouvez obtenir plus d'informations en consultant notre politique de cookies.
Modifier les cookies
Technique et Fonctionnel Toujours actif
Ce site Web utilise ses propres cookies pour collecter des informations afin d'améliorer nos services. Si vous continuez à naviguer, vous acceptez leur installation. L'utilisateur a la possibilité de configurer son navigateur, pouvant, s'il le souhaite, empêcher leur installation sur son disque dur, même s'il doit garder à l'esprit qu'une telle action peut entraîner des difficultés de navigation sur le site.
Analyse et Personnalisation
Ils permettent le suivi et l'analyse du comportement des utilisateurs de ce site. Les informations collectées via ce type de cookies sont utilisées pour mesurer l'activité du Web pour l'élaboration des profils de navigation des utilisateurs afin d'introduire des améliorations basées sur l'analyse des données d'utilisation effectuée par les utilisateurs du service. . Ils nous permettent de sauvegarder les informations de préférence de l'utilisateur pour améliorer la qualité de nos services et offrir une meilleure expérience grâce aux produits recommandés.
Marketing et Publicité
Ces cookies sont utilisés pour stocker des informations sur les préférences et les choix personnels de l'utilisateur grâce à l'observation continue de ses habitudes de navigation. Grâce à eux, nous pouvons connaître les habitudes de navigation sur le site Web et afficher des publicités liées au profil de navigation de l'utilisateur.