Wohnung Zum Verkauf mit Ausblicke in Collblanc (L'Hospitalet de Llobregat)

Gesamtfläche
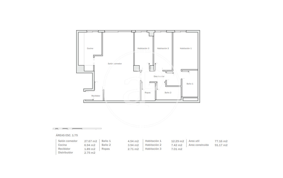
89 m²
Schlafzimmer
3
Bäder
2
Wohnung zum Verkauf
439.000 €
Verkauft
Play icon Video der Immobilie ansehen

FINCA SEMINUEVA 2007 - DELANTE LES CORTS - PLAZA PARKING MUY GRANDE - MUY LUMINOSO

Wohnung von 89 m2 mit Ausblicke Im Großraum von Collblanc, L'Hospitalet de Llobregat.

Die Immobilie hat 3 Zimmer, 2 Bäder, 1 Parkplatz, Klimaanlage, Waschküche und Heizung.

  • Merkmale
  • Views
  • Heitzung
  • Aacc
  • Hat Parkplatz
  • Lift
  • Überwachung

über Collblanc

Collblanc ist ein Stadtteil von Hospitalet de Llobregat im Großraum Barcelona. Es ist territorial zusammen mit La Torrassa dem Distrikt II zugeordnet, mit dem es in verschiedenen Aspekten sowohl des Verwaltungs- als auch des Bürgerlebens eine Einheit bildet. Es grenzt im Norden an das Barcelona-Viertel La Maternidad und San Ramón, im Osten an das Barcelona-Viertel Sants-Badal, im Südosten an La Torrassa und im Südwesten und Westen an La Florida sowie im Nordwesten an Pubilla Casas. Derzeit sind der Marktplatz von Collblanc und seine Umgebung die wichtigsten Zentren des Bürgerlebens. Bemerkenswerte Gebäude in der Nachbarschaft stechen hervor, wie Torre Barrina (18. Jahrhundert) im „Parc de la Marquesa“ (der ein Zentrum für junge Menschen in Bezug auf neue Technologien beherbergt), das Joventut-Theater oder der Wolkenkratzer auf dem gleichen Markt, der entworfen wurde von den beiden letzteren von Antoni Puig i Gairalt.

Recently viewed properties

Wohnung zum Verkauf
VPM2203035
640.000 €

Wohnung im Verkauf mit Terrasse und Meerblick in erster Linie Playa de Palma

Playa de Palma, Mallorca
Schöne Wohnung in erster Linie der PLAYA DE PALMA mit fantastischem Blick auf das MEER. Die Fotos mit Möbeln sind nur für Orientierungszwecke. Die Immobilie verfügt über rund 80 qm und wird gerade mit hochwertigen Materialien renoviert. Sie verfügt über zwei Doppelschlafzimmer, eines davon mit Bad en suite, Gästebad, Küche mit Hauswirtschaftsraum und Zugang zu einer riesigen Terrasse von ca. 400 qm. Vom Wohnzimmer aus hat man Zugang zu einer weiteren großen TERRASSE von ca. 100 qm in Frontlinie zum Strand mit fantastischem Meerblick. In allen Zimmern gibt es eine Klimaanlage durch Konduktoren. Ein Parkplatz ist im Preis inbegriffen. PALMA BEACH ist dabei, sich dank der Marke PALMA BEACH in ein prestigeträchtiges Reiseziel zu verwandeln. Mit dem Namen "Palma Beach" wollen Mika Ferrer, sein Bruder Juan Miguel und sein Partner das derzeitige Schmuddelimage, das mit Trunkenheit verbunden ist, ändern. Zu diesem Zweck haben sie vor einem Jahr eine Beteiligungs- und Marketinggesellschaft gegründet, deren Ziel es ist, die wichtigste Hotelanlage Mallorcas zu einem Qualitätsziel zu machen. Achtunddreißig Mitgliedsorganisationen haben sich dieser Initiative angeschlossen. Neben mehreren Bars, Restaurants, der Familie Ferrer selbst, den beiden Golfplätzen Puntiro und Son Gual und dem Club Náutico El Arenal gibt es fünf weitere mallorquinische Hotelketten, darunter Riu und Iberostar. Derzeit ist das Flaggschiff der eleganten Kampagne von Palma Beach das sechsstöckige Llaüt Palace, das im Dezember letzten Jahres seine Pforten öffnete. Das Fünf-Sterne-Hotel wurde für 35 Millionen Euro renoviert und bietet seinen Gästen einen traumhaften Blick auf die Bucht sowie ein fantastisches Restaurant auf der Panoramaterrasse. "Wir wollen, dass die Playa de Palma wieder glamourös wird", erklärte der Hoteldirektor bei der Einweihungsfeier.  
Gesamtfläche 180 m2
Schlafzimmer 2
Bäder 2
640.000 €
Wohnung zur Miete
Vermietet
APMS2504008
2.500 €

Wohnung zur Miete in Plaza Mercat

Plaça del Mercat, Mallorca
NUR FÜR KURZAUFENTHALTE (MINDESTENS 32 NÄCHTE) VERFÜGBAR AB 20. AUGUST Es handelt sich um eine kürzlich renovierte Luxuswohnung in der Altstadt von Palma. Beim Betreten der Wohnung werden Sie von den großzügigen und offenen Räumen überrascht sein, die durch hohe Decken hervorgehoben werden und ein Gefühl von Geräumigkeit und Licht vermitteln. Das Wohnzimmer verfügt über einen 65-Zoll-Fernseher mit hoher Auflösung. Die Küche ist im amerikanischen Stil gehalten und mit hochwertigen Geräten ausgestattet. Die Wohnung wurde komplett mit Designermöbeln ausgestattet und mit Klasse und gutem Geschmack dekoriert, wobei der ursprüngliche Charakter erhalten wurde. Jedes Detail wurde sorgfältig ausgewählt, um eine harmonische und komfortable Atmosphäre zu schaffen. Mit zwei Doppelzimmern bietet diese Wohnung den idealen Raum zum Ausruhen und Entspannen. Sie verfügt außerdem über zwei Badezimmer, eines mit begehbarer Dusche und das andere en-suite, ausgestattet mit einer eleganten Badewanne und Hydromassage. Die Wohnung verfügt über High-Speed-Internet, so dass Sie immer in Verbindung bleiben, und eine zentrale Klimaanlage. Aber das ist noch nicht alles: Das Highlight dieser Wohnung ist ihre Lage im historischen Zentrum von Palma de Mallorca. Wenn Sie in dieser Gegend wohnen, können Sie in die reiche Geschichte und Kultur der Stadt eintauchen. Genießen Sie die charmanten Kopfsteinpflasterstraßen, die berühmten Restaurants, die exklusiven Boutiquen und den ganzen Charme, den das Leben in dieser privilegierten Lage bietet. Können Sie sich vorstellen, hier zu leben?
Gesamtfläche 106 m2
Schlafzimmer 2
Bäder 2
2.500 €
x

ANGABEN ZUM BETREIBER DER WEBSITE

  • FIRMA: APROPERTIES REAL ESTATE ASSETS SL
  • Umsatzsteuer-ID: B66207879
  • POSTANSCHRIFT: PASSEIG DE GRACIA 85 PLANTA 8 08008, BARCELONA
  • E-MAIL: [email protected] 
  • VORRANGIGER UNTERNEHMENSGEGENSTAND: IMMOBILIENPLATTFORM

In Übereinstimmung mit den geltenden Bestimmungen zum Schutz personenbezogener Daten informieren wir Sie darüber, dass Ihre Daten in das Verarbeitungssystem von APROPERTIES REAL ESTATE ASSETS SL mit Umsatzsteuer-ID B66207879 und Firmensitz in PASSEIG DE GRACIA 85 PLANTA 8 BARCELONA 08008 aufgenommen werden, um Ihre Anfragen zu bearbeiten. Wir informieren Sie des Weiteren, dass Profile erstellt und automatisierte Entscheidungen getroffen werden könnten, wenn es für die Verarbeitung der Daten erforderlich ist, und dass APROPERTIES REAL ESTATE ASSETS S.L. die Daten möglicherweise weitergeben oder an Drittländer übertragen wird: 

VORGENOMMENE VERARBEITUNG

Verwaltung der Website

  • Zweck: Verarbeitung und Verwaltung der für die Funktionalität der Website erforderlichen Daten 
  • Speicherdauer: solange die Einwilligung nicht widerrufen wird  
  • Rechtliche Grundlage: Erteilung der Einwilligung 
  • Art der Daten: Identifizierungsdaten 
  • Weitergabe: nicht vorgesehen 
  • Übertragung an Drittländer: nicht vorgesehen 
  • Erstellung von Profilen: nicht vorgesehen

Kontakt- und Schätzungsformular

  • Zweck: Beantwortung Ihrer Anfragen 
  • Speicherdauer: solange die Einwilligung nicht widerrufen wird Rechtliche Grundlage: Erteilung der Einwilligung 
  • Art der Daten: Identifizierungsdaten 
  • Weitergabe: keine 
  • Übertragung an Drittländer: nicht vorgesehen 
  • Erstellung von Profilen: nicht vorgesehen

Erfüllung der gesetzlichen Pflichten

  • Zweck: Bearbeitung und Erledigung der Obliegenheiten und Pflichten, die sich aus der Erfüllung der für das Unternehmen geltenden gesetzlichen Vorschriften ableiten 
  • Speicherdauer: Aufbewahrung der Kopien der Dokumente bis zur Verjährung eines eventuell gegen Sie geltend zu machenden Haftungsanspruchs 
  • Rechtliche Grundlage: Erfüllung eines Gesetzes 
  • Art der Daten: Identifizierungsdaten 
  • Weitergabe: Ihre Daten werden wenn nötig an die öffentliche Verwaltung und zuständige Behörden weitergegeben, um die durch die einschlägigen Gesetze festgelegten Pflichten zu erfüllen. Wir informieren Sie, dass die rechtliche Grundlage für die Weitergabe der Daten die Erfüllung der gesetzlich festgelegten Pflichten ist. 
  • Übertragung an Drittländer: nicht vorgesehen 
  • Erstellung von Profilen: nicht vorgesehen

Kommerzielle Maßnahmen

  • Zweck: Erfassung, Speicherung und Verarbeitung von Daten zwecks Werbung und Marketing für unsere Produkte und Dienstleistungen 
  • Speicherdauer: solange die Einwilligung nicht widerrufen wird Rechtliche Grundlage: Erteilung der Einwilligung 
  • Art der Daten: Identifizierungsdaten 
  • Weitergabe: keine 
  • Übertragung an Drittländer: nicht vorgesehen 
  • Erstellung von Profilen: nicht vorgesehen

Verwaltung der Jobbörse

  • Zweck: Erfassung und Verarbeitung der Daten von Kandidaten zwecks Personalauswahl für freie Stellen bei Partnerunternehmen und Verwaltung der Jobbörse 
  • Speicherdauer: solange die Einwilligung nicht widerrufen wird 
  • Rechtliche Grundlage: Erteilung der Einwilligung 
  • Art der Daten: Identifizierungsdaten 
  • Weitergabe: Ihre Daten werden wenn nötig an die Partnerunternehmen weitergegeben, um die Jobbörse zu verwalten und die Bewerbungen an diese Unternehmen weiterzuleiten. Wir informieren Sie, dass die rechtliche Grundlage für die Weitergabe der Daten Ihre Einwilligung ist. 
  • Übertragung an Drittländer: nicht vorgesehen 
  • Erstellung von Profilen: nicht vorgesehen

VERWALTUNG DER DATEN

Gemäß den Bestimmungen der Verordnung (EU) 2016/679 des Europäischen Parlaments und des Rates vom 27. April 2016 zum Schutz natürlicher Personen bei der Verarbeitung personenbezogener Daten, zum freien Datenverkehr und zur Aufhebung der Richtlinie 95/46/EG informiert APROPERTIES REAL ESTATE ASSETS SL den Nutzer in Bezug auf die Website www.aproperties.es und die von ihr abgeleiteten Websites (im Folgenden Websites), dass die über sie in den Websites erfassten Informationen in die unter der Verantwortung von APROPERTIES REAL ESTATE ASSETS SL stehenden Verarbeitungssysteme aufgenommen werden, und zwar für die Verwaltung und Pflege der Beziehung mit dem Nutzer, sowie zu Informations- und Statistikzwecken und zur Vermarktung der damit verbundenen Dienstleistungen und Aktivitäten.

Rechtsgrundlage für die Datenverarbeitung ist das legitime Interesse von APROPERTIES REAL ESTATE ASSETS SL Die Installation von Cookies wird durch die vorherige Zustimmung der Betroffenen oder gegebenenfalls deren gesetzlicher Vertreter legitimiert.

  • APROPERTIES REAL ESTATE ASSETS SL informiert darüber, dass die Daten für die Dauer der vom Nutzer erteilten Zustimmung aufbewahrt werden, außer in den Fällen, in denen wir gesetzlich verpflichtet sind, sie für einen längeren Zeitraum aufzubewahren.
  • In Übereinstimmung mit den Rechten, die dem Nutzer durch die geltende Datenschutzgesetzgebung verliehen werden, kann er sich mit seiner Beschwerde an die zuständige Aufsichtsbehörde wenden, und auch sein Rechte auf Zugang, Berichtigung, Einschränkung der Verarbeitung, Löschung, Übertragbarkeit und Widerspruch gegen die Verarbeitung seiner persönlichen Daten ausüben sowie seine dafür erteilte Zustimmung widerrufen.

In Übereinstimmung mit den Bestimmungen von Artikel 32 der Verordnung (EU) 2016/679 des Europäischen Parlaments und des Rates vom 27. April 2016 zum Schutz natürlicher Personen bei der Verarbeitung personenbezogener Daten, zum freien Datenverkehr und zur Aufhebung der Richtlinie 95/46/EG, verpflichtet sich APROPERTIES REAL ESTATE ASSETS SL, die notwendigen technischen und organisatorischen Maßnahmen zu ergreifen, um, je nach den mit diesen Maßnahmen einhergehenden Risiken, die im Abschnitt der Nutzungsbedingungen angegeben sind, die Integrität, Vertraulichkeit und Verfügbarkeit der Daten zu gewährleisten.

Ebenso weist APROPERTIES REAL ESTATE ASSETS SL darauf hin, dass für den Fall, dass der Nutzer Daten in die Formulare von Websites Dritter eingibt, diese Letztgenannten für die persönlichen Daten verantwortlich sind und deshalb die im folgenden Abschnitt beschriebenen technischen Maßnahmen ergreifen müssen.

RECHTE DER BETROFFENEN

APROPERTIES REAL ESTATE ASSETS S.L. informiert die Nutzer, dass sie ihr Recht auf Auskunft, Berichtigung, Einschränkung der Verarbeitung, Löschung, Portabilität und Widerspruch gegen die Verarbeitung der personenbezogenen Daten gegenüber dem für die Verarbeitung Verantwortlichen ausüben und ihre Einwilligung widerrufen können. 

  • Recht auf Auskunft: Es handelt sich um das Recht des Nutzers, Auskunft über seine persönlichen Daten und deren durchgeführte oder geplante Verarbeitung zu erhalten, sowie die entsprechenden Informationen über die Herkunft dieser Daten und die mit ihnen durchgeführten oder geplanten Mitteilungen. 
  • Recht auf Berichtigung: Es handelt sich um das Recht der betroffenen Person, Daten, die sich als unrichtig oder unvollständig erweisen, ändern zu lassen. Dieses Recht kann nur in Bezug auf Informationen ausgeübt werden, die von der APP kontrolliert werden, wie zum Beispiel die Löschung von auf der Website veröffentlichten Kommentaren, Bildern oder Inhalten, die persönliche Daten des Benutzers enthalten. 
  • Recht auf Einschränkung der Verarbeitung: Es handelt sich um das Recht auf Einschränkung der ursprünglich vom Datenschutzverantwortlichen beabsichtigten Verarbeitungszwecke. 
  • Recht auf Löschung: Es handelt sich um das Recht, die persönlichen Daten des Nutzers zu löschen, mit Ausnahme der Bestimmungen der DSGVO selbst oder anderer geltender gesetzlicher Bestimmungen, welche die Aufbewahrung der Daten in Zeit und Form verbindlich festlegen. 
  • Recht auf Portabilität: Es handelt sich um das Recht, die vom Nutzer zur Verfügung gestellten persönlichen Daten in strukturierter, allgemein gebräuchlicher und maschinenlesbarer Form zu erhalten und an einen anderen Verantwortlichen zu übermitteln. 
  • Recht auf Widerspruch: Es handelt sich um das Recht des Nutzers, die Verarbeitung seiner persönlichen Daten zu verweigern oder der APP die Verarbeitung zu untersagen. 

Um die vorgenannten Rechte auszuüben, muss der Betroffene folgende Schritte unternehmen: 

- Sich schriftlich an die oben genannte Postadresse (z.H. APROPERTIES REAL ESTATE ASSETS S.L.) oder an die E-Mail-Adresse [email protected] wenden. 

- Das Schreiben des Betroffenen bezüglich der Ausübung seiner Rechte muss folgende Voraussetzungen erfüllen:

  • Es muss Vor- und Nachnamen sowie eine Kopie des Personalausweises/NIE oder eines sonstigen Identitätsdokuments des Betroffenen enthalten. In den seltenen Fällen, in denen ein Vertreter im Namen des Betroffenen handelt, muss sich der Vertreter auf dieselbe Weise ausweisen und ein Dokument beifügen, das seine Vertretungsbefugnis beweist. Die Fotokopie des Personalausweises kann durch einen gültigen Identitätsnachweis ersetzt werden. 
  • Genaue Beschreibung des Antrags. (Ausübung des Rechts auf Auskunft über die gewünschten Daten). Wenn keine spezifische Datei angegeben ist, werden sämtliche vorhandenen Informationen zu den personenbezogenen Daten zur Verfügung gestellt. Wird Auskunft bezüglich einer konkreten Datei verlangt, beschränken sich die Informationen auf diese Datei. Auskünfte über die Daten Dritter werden niemals erteilt. Wenn Sie die Informationen telefonisch anfordern, wird Ihnen erklärt, dass dies schriftlich zu erfolgen hat, wie Sie darum ansuchen können und an welche Adresse Sie Ihr Schreiben richten müssen. Keinesfalls werden Informationen telefonisch erteilt. 
  • Zustelladresse für Mitteilungen 
  • Datum und Unterschrift des Antragstellers 
  • Belege des gestellten Antrags 
  • Der Betroffene muss sein Ansuchen auf einem Weg übermitteln, der ermöglicht, die Sendung und den Empfang des Antrags zu beweisen. 

Zudem informieren wir Sie, dass Sie Beschwerde bei der „Agencia Española de Protección de Datos" (Nationale Datenschutzbehörde Spaniens) einreichen können, wenn Sie Kenntnis von einem Datenschutzverstoß haben oder der Ansicht sind, dass die Verarbeitung Sie betreffender personenbezogener Daten gegen das Datenschutzrecht verstößt.

APROPERTIES REAL ESTATE ASSETS S.L. verpflichtet sich, die notwendigen technischen und organisatorischen Maßnahmen zu ergreifen, um, je nach den mit der Datenverarbeitung einhergehenden Risiken, die im Abschnitt der Nutzungsbedingungen angegeben sind, die Integrität, Vertraulichkeit und Verfügbarkeit der Daten zu gewährleisten.

SOZIALE NETZWERKE

Gemäß den geltenden Datenschutzbestimmungen und dem spanischen E-Commerce-Gesetz vom 11. Juli 2002 (Ley 34/2002 - LSSI-CE) informiert APROPERTIES REAL ESTATE ASSETS S.L. die Nutzer, dass wir ein Profil bei Facebook, Instagram, LinkedIn und YouTube angelegt haben, um für unsere Produkte und Dienstleistungen zu werben. 

Der Nutzer hat ein Profil im selben sozialen Netzwerk und hat sich mit der von APROPERTIES REAL ESTATE ASSETS S.L. erstellten Seite verbunden, da er an den in diesem Netzwerk veröffentlichten Informationen interessiert ist. Indem Sie sich mit unserer Seite verbinden, erklären Sie sich mit der Verarbeitung der in Ihrem Profil veröffentlichten personenbezogenen Daten einverstanden. 

Der Nutzer kann jederzeit auf die Datenschutzerklärung des jeweiligen Sozialen Netzwerks zugreifen und er kann seine Profileinstellungen ändern, um seine Privatsphäre zu schützen. 

APROPERTIES REAL ESTATE ASSETS S.L. hat Zugriff auf die veröffentlichten Daten des Nutzers und verarbeitet diese, insbesondere seinen Kontaktnamen. Diese Informationen werden nur innerhalb des jeweiligen Sozialen Netzwerks verwendet. Sie werden in kein Verarbeitungssystem eingespeist. 

Rechte der Betroffenen

Hinsichtlich des Rechts auf Auskunft, Berichtigung, Einschränkung der Verarbeitung, Löschung, Portabilität und Widerspruch gegen die Verarbeitung der personenbezogenen Daten, das Sie gemäß der DSGV gegenüber APROPERTIES REAL ESTATE ASSETS S.L. ausüben können, sind folgende Punkte zu berücksichtigen: 

  • Recht auf Auskunft: Es handelt sich um das Recht des Nutzers, Auskunft über seine persönlichen Daten und deren durchgeführte oder geplante Verarbeitung zu erhalten, sowie die entsprechenden Informationen über die Herkunft dieser Daten und die mit ihnen durchgeführten oder geplanten Mitteilungen. 
  • Recht auf Berichtigung: Es handelt sich um das Recht der betroffenen Person, Daten, die sich als unrichtig oder unvollständig erweisen, ändern zu lassen. Dieses Recht kann nur in Bezug auf Informationen ausgeübt werden, die von APROPERTIES REAL ESTATE ASSETS SL kontrolliert werden, wie zum Beispiel die Löschung von auf der Website veröffentlichten Kommentaren, Bildern oder Inhalten, die persönliche Daten des Benutzers enthalten. 
  • Recht auf Einschränkung der Verarbeitung: Es handelt sich um das Recht auf Einschränkung der ursprünglich vom Datenschutzverantwortlichen beabsichtigten Verarbeitungszwecke. 
  • Recht auf Löschung: Es handelt sich um das Recht, die persönlichen Daten des Nutzers zu löschen, mit Ausnahme der Bestimmungen der DSGVO selbst oder anderer geltender gesetzlicher Bestimmungen, welche die Aufbewahrung der Daten in Zeit und Form verbindlich festlegen. 
  • Recht auf Portabilität: Es handelt sich um das Recht, die vom Nutzer zur Verfügung gestellten persönlichen Daten in strukturierter, allgemein gebräuchlicher und maschinenlesbarer Form zu erhalten und an einen anderen Verantwortlichen zu übermitteln. 
  • Recht auf Widerspruch: Es handelt sich um das Recht des Nutzers, die Verarbeitung seiner persönlichen Daten zu verweigern oder APROPERTIES REAL ESTATE ASSETS SL die Verarbeitung zu untersagen. 

APROPERTIES REAL ESTATE ASSETS S.L. wird folgende Aktionen durchführen: 

  • Zugriff auf die im Profil veröffentlichten Informationen. 
  • Veröffentlichung im Profil des Nutzers aller bereits auf der Seite von APROPERTIES REAL ESTATE ASSETS S.L. bereitgestellten Informationen.
  • Zustellung persönlicher und individueller Nachrichten über die Kanäle des sozialen Netzwerks. 
  • Veröffentlichung der Aktualisierungen der Seite im Profil des Nutzers. 

Der Nutzer kann über seine Datenschutzeinstellungen jederzeit seine Verbindungen kontrollieren, Inhalte entfernen, die ihn nicht mehr interessieren, und einschränken, mit wem er seine Verbindungen teilt. 

Veröffentlichungen

Nachdem der Nutzer sein Profil mit der Seite von APROPERTIES REAL ESTATE ASSETS S.L. verbunden hat, kann er auf ihr Kommentare, Links, Bilder oder Fotos oder andere vom sozialen Netzwerk unterstützte Arten von Multimedia-Inhalten veröffentlichen. Der Nutzer muss in jedem Fall Eigentümer dieser Inhalte sein, die diesbezüglichen Urheberrechte und Rechte an geistigem Eigentum besitzen oder über die Genehmigung der betroffenen Dritten verfügen. Es ist ausdrücklich verboten, auf der Seite Inhalte - seien es Texte, Grafiken, Fotos, Videos etc. - zu veröffentlichen, die gegen Moral, Ethik, guten Geschmack oder Anstand verstoßen oder verstoßen könnten und/oder die Rechte an geistigem oder gewerblichem Eigentum, das Recht am eigenen Bild oder das Gesetz verletzen. In diesen Fällen ist APROPERTIES REAL ESTATE ASSETS S.L. berechtigt, den Inhalt umgehend zu entfernen, und kann eine dauerhafte Sperrung des Nutzers beantragen. 

APROPERTIES REAL ESTATE ASSETS S.L. übernimmt keine Verantwortung für die Inhalte, die ein Nutzer freiwillig veröffentlicht hat. 

Der Nutzer muss sich bewusst sein, dass andere Benutzer Zugang zu seinen Veröffentlichungen haben und dass er deshalb vor allem selbst für die Wahrung seiner Privatsphäre verantwortlich ist. 

Die auf der Seite veröffentlichten Bilder werden von APROPERTIES REAL ESTATE ASSETS S.L. weder gespeichert noch verarbeitet, verbleiben aber im Sozialen Netzwerk. 

Wettbewerbe und Werbeaktionen

APROPERTIES REAL ESTATE ASSETS S.L. kann Wettbewerbe und Werbeaktionen durchführen, an denen die mit ihrer Seite verbundenen Nutzer teilnehmen können. Wird die Social-Media-Plattform für diese Wettbewerbe und Werbeaktionen verwendet, werden die Grundlagen für diese auf ihr veröffentlicht. Dabei werden stets die im E-Commerce-Gesetz und den sonstigen einschlägigen Vorschriften festgelegten Bestimmungen eingehalten. 

Das Soziale Netzwerk unterstützt, gewährleistet oder verwaltet in keiner Weise unsere Werbeaktionen und steht mit keiner von ihnen in Verbindung.

Werbung

APROPERTIES REAL ESTATE ASSETS S.L. nutzt die Social Media, um für seine Produkte und Dienstleistungen zu werben. Sollten wir beschließen, Ihre Kontaktdaten für die Durchführung direkter Marketingaktionen zu verwenden, so wird dies in jedem Fall unter Beachtung der Vorschriften des Datenschutzgesetzes und des E-Commerce-Gesetzes erfolgen. 

Die Empfehlung der Seite von APROPERTIES REAL ESTATE ASSETS S.L. an andere Benutzer, damit auch diese in den Genuss der Werbeaktionen kommen oder über die Tätigkeit der Firma informiert werden, wird nicht als Werbung angesehen. 

Nachstehend finden Sie die Links zu den Datenschutzerklärungen der Social Media: 

LETZTE AKTUALISIERUNG: 21. Januar 2022.

Wir verwenden unsere eigenen Cookies und Cookies von Drittanbietern, um die Sicherheit unserer Website zu gewährleisten und ihren Inhalt zu personalisieren. Ebenso verwenden wir Cookies, um Daten über Ihre Navigation zu messen und zu erhalten und um Werbung an Ihren Geschmack und Ihre Vorlieben anzupassen. Drücken Sie die Schaltfläche "Alle akzeptieren", um zu bestätigen, dass Sie die angezeigten Informationen gelesen und akzeptiert haben. Um diese Cookies zu verwalten oder zu deaktivieren, klicken Sie auf "Einstellungen". Weitere Informationen zu Cookies erhalte Sie in unserer Cookie-Richtlinie.
Cookies ändern
Technik und Funktional Immer aktiv
Diese Website verwendet eigene Cookies, um Informationen zu sammeln, um unsere Dienste zu verbessern. Wenn Sie weiter surfen, akzeptieren Sie deren Installation. Der Benutzer hat die Möglichkeit, seinen Browser zu konfigurieren und auf Wunsch zu verhindern, dass er auf seiner Festplatte installiert wird, obwohl er bedenken muss, dass dies zu Schwierigkeiten beim Navigieren auf der Website führen kann.
Analytik und Anpassung
Sie ermöglichen die Beobachtung und Analyse des Verhaltens der Nutzer dieser Website. Die durch diese Art von Cookies gesammelten Informationen werden verwendet, um die Aktivität des Webs zu messen, um Benutzernavigationsprofile zu erstellen, um basierend auf der Analyse der Nutzungsdaten der Benutzer des Dienstes Verbesserungen einzuführen. Sie ermöglichen es uns, die Präferenzinformationen des Benutzers zu speichern, um die Qualität unserer Dienstleistungen zu verbessern und durch empfohlene Produkte ein besseres Erlebnis zu bieten.
Marketing und Publizität
Diese Cookies werden verwendet, um Informationen über die Präferenzen und persönlichen Entscheidungen des Benutzers durch die kontinuierliche Beobachtung seiner Surfgewohnheiten zu speichern. Dank ihnen können wir die Surfgewohnheiten auf der Website kennen und Werbung in Bezug auf das Surfprofil des Benutzers anzeigen.